-
Köpa
Köpa -
Sälja
Sälja - Hitta bostad
- Skapa bevakning
- Hitta mäklare
Livskvalité i natur och sjönära miljö!
Virsbo, Surahammar
*Areauppgifter enligt taxeringsinformationen
Sjöutsikt -Solceller -Bergvärme -Garage -Friköpt tomt -Stressfri miljö -Lugnt och attraktivt läge!
Varmt välkomna till detta idyll med fantastisk sjöutsikt. Huset med byggår 1956 i ett och ett halvt plan med källarvåning har en boyta om 83 kvm och en biyta om 52 kvm. Entréplan karaktäriseras av fräscht och tilltalande kök, vardagsrum med trevligt ljusinsläpp, rogivande sovrum samt rymligt badrum. På övre plan finner ni allrum med goda förvaringsmöjligheter och sjöutsikt samt två rogivande sovrum. Källarplan består av tvättstuga, förråd samt garage.
Friköpt och lättskött tomt intill grönskande skogsparti. Promenadstråk ned till sjön. Naturbadet på udden i sjön inbjuder till de härliga kvällsdoppen. Gå ned i tempo och välj det lugna livet i Virsbo ca 35 minuters bilfärd från Västerås och ca 15 mil från Stockholm.
Med de många möjligheterna och den låga insatsen ekonomiskt som detta boende medför väljer du själv om du vill bo permanent eller nyttja det som ett högkvalitativt fritidsboende. Barnvänligt område nära lekplats och skola samt gång och cykelavstånd till ICA.
Kontakta ansvarig fastighetsmäklare för visning.
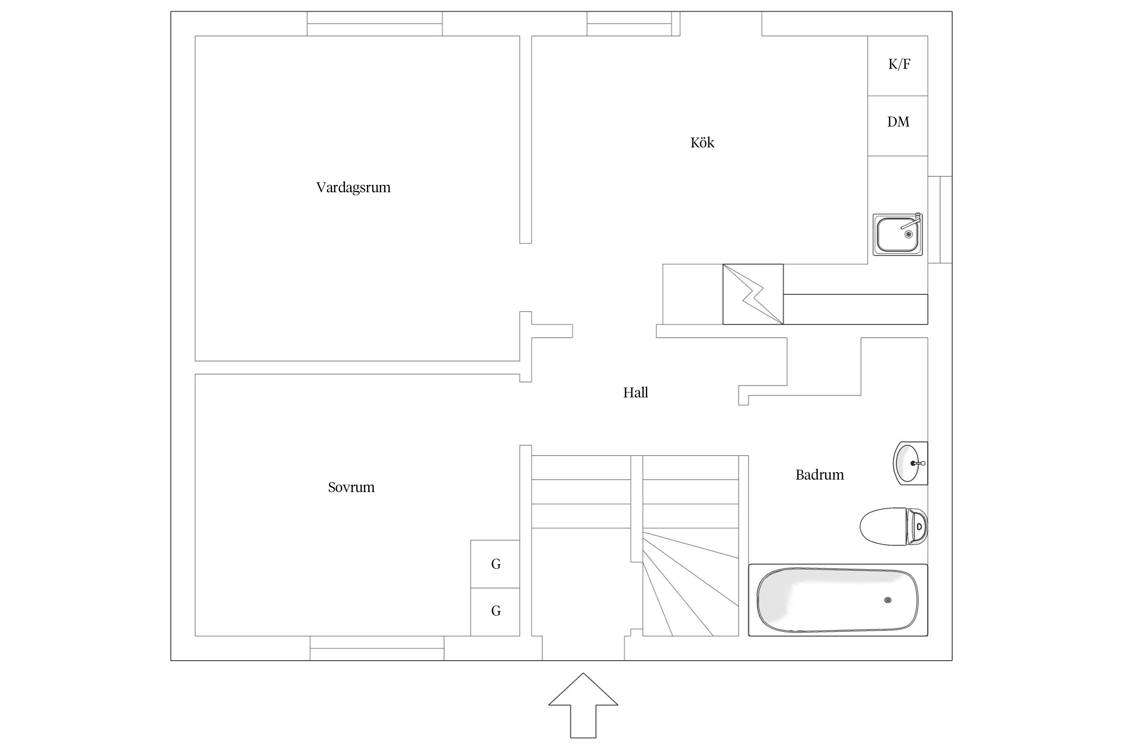
Entréplan:
Hall med trapp mot källarplan. Halvtrappa mot entréplan med avhängningsmöjligheter. I direkt anslutning påträffas badrummet bestående av våtrumsmatta samt våtrumstapet. Utrustning i form av badkar, handfat med tillhörande kommod, spegelskåp med belysning samt WC.
Fräscht och tilltalande kök med god förvaring bakom vita skåpluckor. Goda arbets- samt avlastningsytor med ovansittande stänkskydd. Den maskinella utrustningen består av häll/ugn, spisfläkt, integrerad diskmaskin samt kyl/frys. Matplats intill fönster. Här finner ni även utgången till balkongen med vacker sjöutsikt.
Vardagsrum med gott om plats för sedvanligt vardagsrumsmöblemang. Ytskikt bestående av tapetserade väggar/fondvägg samt stilrent laminatgolv. Trevligt ljusinsläpp via fönsterpartier.
Rogivande sovrum med gott om plats för säng med tillhörande sängbord. Goda förvaringsmöjligheter via garderober. Tapetserade väggar samt laminatgolv.
Övre plan:
Allrum med ljust målade väggar samt laminatgolv. Goda förvaringsmöjligheter via klädkammare. Fantastisk sjöutsikt via fönster.
Ytterligare två rogivande sovrum med plats för säng och sängbord. Ljust målade väggar/fondvägg samt laminatgolv.
Källarplan:
Här återfinns tvättstuga, förråd samt garage.



Entréplan
Övre plan
Virsbo 2:29
*Areauppgifter enligt taxeringsinformationen
Säljaren har utfört följande renoveringar:
-2020: Köksrenovering.
-20/21: Fiber
-2021:Ny eldragning, fönsterbyte, nytt tak, byte till garageport.
-2022: Solceller.
-2023: Målning av grund och påbörjad fasadrenovering.
Kommunalt vatten, Kommunalt avlopp.
Byggnadsplan (1965-04-23)
I posten el ingår kostnad för uppvärmning.
Det finns 6 st pantbrev uttagna om sammanlagt 666 000 kr
Vill du köpa, sälja eller värdera bostad i Västmanland? Kontakta våra mäklare i Västerås! Passa också på att anmäla dig till vår kostnadsfria söktjänst Boagenten som hjälper dig att hitta ditt drömboende.
Här hittar du alla våra lediga bostäder till salu i Västmanlands län just nu!
Kontakta mäklaren om du behöver hjälp att ta fram en boendekalkyl.
När du köper din bostad genom Bjurfors kan du ansöka om bolån till en förmånlig ränta hos vår samarbetspartner SEB.
Ansvarig mäklare