-
Köpa
Köpa -
Sälja
Sälja - Hitta bostad
- Skapa bevakning
- Hitta mäklare
Stadsskogen, Alingsås
*I avgiften ingår värmekostnad, vatten, bredband/ip-telefoni och Telias TV-paket Bas
På Förhand ligger bostäder som av olika anledningar inte är ute till försäljning just nu men som kan komma att säljas om förutsättningarna är rätt.
Kontakta mäklaren för mer information gällande budgivningen.
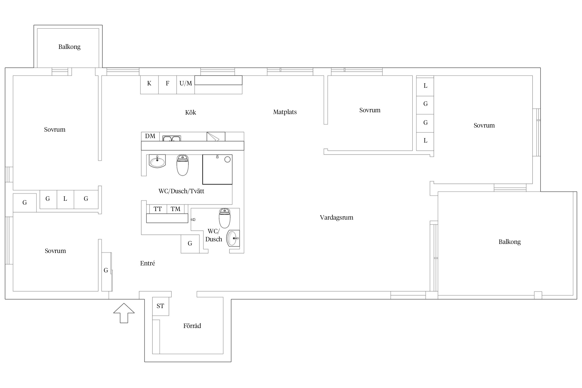
Välkommen till denna strålande och välplanerade femrummare om hela 119 kvm – ett hem som verkligen har allt du kan önska dig! Här bor du i en ljus och luftig lägenhet med ett lugnt och attraktivt läge nära både natur och den vackra sjön Mjörn.
Redan vid första steget in möts du av en härlig rymd och ett genomgående ljusinsläpp som skapar en trivsam och harmonisk atmosfär i hela bostaden. De fina parkettgolven löper genom lägenheten och bidrar till en varm och ombonad känsla. Planlösningen är både social och funktionell med generösa ytor som passar lika bra för familjeliv som för umgänge.
Lägenheten erbjuder fyra rymliga sovrum, vilket ger gott om plats för både familj, gäster eller hemmakontor. Förvaringsmöjligheterna är mycket goda, vilket gör det enkelt att hålla hemmet organiserat och stilrent.
Köket och vardagsrummet bjuder in till sociala stunder, och härifrån nås även bostadens ena balkong. Totalt finns två balkonger, varav den ena är delvis inglasad – en perfekt plats att njuta av utsikten och koppla av året runt, oavsett väder. Läget är högt och ljust med en rogivande vy som förstärker känslan av lugn och frihet.
Bostaden har två stilrena, kaklade badrum, båda utrustade med dusch. Det större badrummet är dessutom försett med en praktisk tvättavdelning med både tvättmaskin och torktumlare, vilket gör vardagen smidig och bekväm.
Här bor du i en stabil och välskött förening som erbjuder ett flertal uppskattade faciliteter. Det finns en gemensamhetslokal med grillmöjligheter – perfekt för trevliga sammankomster – samt en gästlägenhet med två rum och kök som kan hyras när du får besök. För dig som gillar att träna finns dessutom tillgång till bastu och motionsrum med bland annat löpband, crosstrainer, roddmaskin, motionscykel och fria vikter.
Utemiljön är trivsam och inbjudande med gröna ytor, bouleplan och sandlåda – en perfekt miljö för både barn och vuxna. Området är lugnt och naturnära med fantastiska möjligheter till promenader, bad och friluftsliv precis runt knuten.
Detta är helt enkelt ett hem som kombinerar rymd, komfort och ett fantastiskt läge – ett boende att trivas i under lång tid framöver.
Varmt välkommen att kontakta ansvarig mäklare Victoria Gillgren för mer information eller för att boka en visning!



I avgiften ingår värmekostnad, vatten, bredband/ip-telefoni och Telias TV-paket Bas
Fastigheten värms med fjärrvärme, vilket är en miljövänlig och ekonomisk uppvärmningsform som ingår i avgiften. Även kall och varm vatten ingår i avgiften. Varje lägenhet har egen elmätare och det är upp till lägenhetsinnehavaren att teckna eget elavtal.
Inglasad balkong 2012
Byte av innedörrar 2021
Två st förråd finns i källaren, 6 respektive 1 kvm i storlek.
Två stycken balkonger i sydöst/sydväst läge, varav den ena är inglasad
Garageplats med elbilsladd.
TV: Telia baspaket Internet: Fiber. Telia 1000
Bostadsrättens indirekta nettoskuldsättning baseras på föreningens skulder/lån minus föreningens räntebärande tillgångar och likvida medel. Beräkningen är gjord via Bopedia. För mer information kontakta ansvarig fastighetsmäklare.
Driftkostnader och elförbrukning är inhämtade från säljaren och bör endast ses som en uppskattning. Kostnaden kan variera och baseras på förbrukning och avtal.
Föreningens lägenheter är fördelade enligt följande:
2 rum och kök 1st
3 rum och kök 11st
4 rum och kök 14st
5 rum och kök 7st
Fastigheten är fullvärdeförsäkrad i IF Skadeförsäkring AB. I försäkringen ingår styrelseförsäkring.
Hemförsäkring bekostas individuellt av bostadsrättsinnehavarna och bostadsrättstillägget ingår i föreningens fastighetsförsäkring.
För att bevara föreningens hus i gott skick utförs löpande reparationer av
uppkomna skador samt planerat underhåll av normala förslitningar.
2024 har föreningen investerat i billaddare på sina 33 parkeringsplatser i garaget. Investeringen har utförts av Björkhagen-Stadsskogens Samfällighetsförening, som står för driften av laddarna till användarna. Installationen färdigställdes i december, och laddning startades i början av 2025 på några platser.
Föreningen har 6 p-platser samt en garageplats som hör till respektive bostadsrätt.
Föreningen har Telia som leverantör av bredband och digital-TV. Telias Baspaket ingår i avgiften.
Föreningen har tillgång till en trevlig utemiljö med bland annat en bouleplan, sandlåda och grönområde. Omgivningen runt föreningen erbjuder en fantastisk natur med möjlighet till flera aktiviteter.
I föreningens fastighet finns tillgång till gästlägenhet, gemensamhetslokal samt motion/bastu och relaxrum. Gästlägenheten innefattar minikök, allrum med bäddsoffa samt sovrum med dubbelbädd och babysäng. Gemensamhetslokalen är utrustad för upp till 40 gäster. I motionsdelen finns både löpband, crosstrainer och roddmaskin.
Föreningen är delaktig i Björkhagen Stadsskogens samfällighet tillsammans med BRF Björkhagen och Breidan 19. Samfälligheten förvaltar en gemensamhetsanläggning som omfattar markytor samt P-platser inom området.
Varmt välkommen till Stadsskogen, Alingsås nyaste stadsdel som fortsatt växer fram. Med sin nybyggaranda och varierande bebyggelse lockar Stadsskogen boende i alla åldrar och skeden i livet. Namnet beskriver på ett ypperligt sätt grundtanken och kärnan i stadsdelen; staden och skogen. Kommunikationerna till Alingsås centrum samt servicen i närområdet ger stadens utbud samtidigt som den omgivande naturen är påtaglig.
Området
Sjön Mjörn är i blickfånget från Stadsskogens sluttningar och flera av bostäderna i området kan njuta av vyn från egen uteplats. Nere vid sjön finner vi Alingsås segelsällskap, två fina badstränder inom promenadavstånd och en idrottsanläggning med minst sagt fint läge. Den som söker lugnet i skogen har stora och vackra områden att promenera på och likaså finns motionsspår.
Fritid
Som ovan nämnt finns skogar att ströva i, motionsspår och fina badmöjligheter vid strandkanten. Den fotbollsintresserade kan bland annat se Alingsås FC:s duktiga damlag på Mjörnvallen. I moderna Stadsskogshallen utövas bland annat innebandy, handboll och badminton. Här brukar det vara bra stämning på läktaren. Väl värt ett besök är Alingsås Parken som ligger inom promenadavstånd. I parken finns en klassisk dansbana som är aktiv och utöver dans anordnas även andra trevliga evenemang under året.
Utbildning
Kommunal och fristående förskola finns i området. Grundskolan Stadsskogenskolan hyser årskurserna från förskoleklass upp till årskurs 6. Här finns även fritidsverksamhet. Högstadium och gymnasium finns i centrala Alingsås.
Service
Då stadsdelen fortsätter att växa kommer vi säkerligen se flera etableringar under åren som kommer. Redan nu finner vi en modern och mysig kvarterskrog. Under mars månad 2020 kommer en efterlängtad livsmedelsaffär att öppna i helt nya lokaler. Sävelångens omtyckta vårdcentral finner vi också i området.
Kommunikationer
Alingsåssnabben är en expressbuss som tar resenärerna från Stadsskogen till Svingeln i Göteborg på bara 45 minuter. En mycket uppskattad pendlarlinje vilken breddar arbetsmöjligheterna för de boende markant. Stadsbussarna till centrala Alingsås går med täta mellanrum. Det går även bra att både cykla och promenera in till centrum.
Köpa, sälja eller värdera bostad i Stadsskogen, Alingsås? Kontakta våra mäklare i Alingsås! Passa också på att anmäla dig till vår kostnadsfria söktjänst Boagenten som hjälper dig att hitta ditt drömboende.
Kontakta mäklaren om du behöver hjälp att ta fram en boendekalkyl.
När du köper din bostad genom Bjurfors kan du ansöka om bolån till en förmånlig ränta hos våra banksamarbetspartners Söderberg & Partners och SEB.
Kontakta mäklaren för mer information gällande budgivningen.
Kontakta mäklareAnsvarig mäklare