-
Köpa
Köpa -
Sälja
Sälja - Hitta bostad
- Skapa bevakning
- Hitta mäklare
Stilren och totalrenoverad villa med uterum och insynsskyddad trädgård i eftertraktade Kullingsberg
Kullingsberg, Alingsås
*Areauppgifter enligt taxeringsinformationen
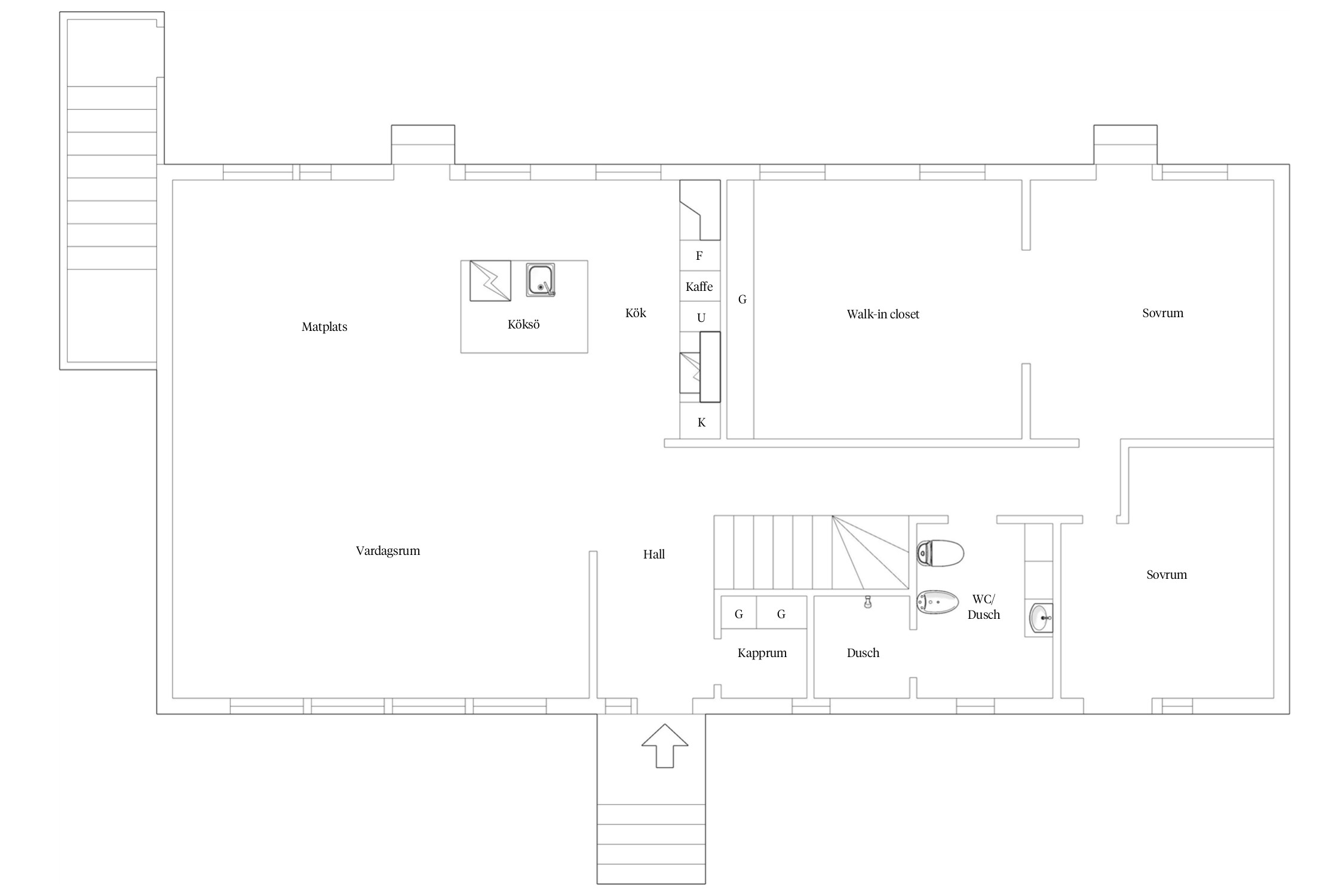
Totalrenoverad villa på Kullingsberg med ca 268 kvm yta, vinterbonat uterum och insynsskyddad trädgård – nära både natur och centrum.
Välkommen till denna stilfullt totalrenoverade villa i hjärtat av attraktiva Kullingsberg – ett område som erbjuder det bästa av två världar: ett lugnt och tryggt bostadsområde med närhet till både naturens stillhet och stadens puls. Här bor du i en trivsam miljö med närhet till skolor, förskolor, grönområden och promenadstigar, samtidigt som du når centrum på bara några minuter till fots.
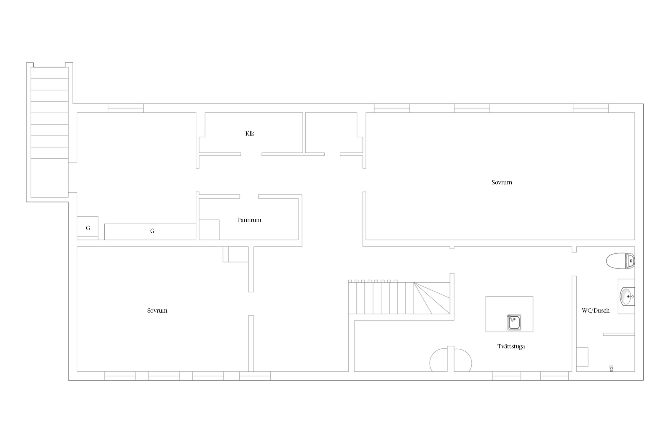
Huset erbjuder totalt ca 268 kvm välplanerade och smakfullt disponerade ytor – fördelade på 118 kvm boarea och 150 kvm fullständigt inredd biyta i källarplan. Här har varje kvadratmeter tagits till vara på, med en arkitektonisk känsla för både estetik och funktion. Det här är ett hem som inte bara är vackert – det är också praktiskt, hållbart och inbjudande.
Villans interiör präglas av en harmonisk färgsättning, stilrena materialval och en genomgående hög standard. Källarplanet är lika påkostat som entrévåningen, vilket gör huset helt och hållet disponibelt för boende året runt – oavsett om du behöver ytor för gäster, hemmakontor, hobby, gym eller tonårsdel.
Det nybyggda uterummet är vinterbonat och skapar ett extra vardagsrum med utsikt över den lummiga trädgården – en perfekt plats för morgonkaffet, middagar med vänner eller lugna kvällar året runt. Trädgården är inramad av tät grönska och uppvuxna buskar som ger ett fullgott insynsskydd. Här finns gott om plats för lek, odling eller stillsam avkoppling under sommarens soliga dagar.
Läget är optimalt för både barnfamiljen och den aktiva pendlaren. Med bara några minuters promenad når du stadskärnans service, butiker och restauranger. Du bor samtidigt med direkt närhet till skog, motionsspår och naturreservat. Kommunikationerna är mycket goda – du når snabbt större trafikleder och kollektivtrafik som tar dig vidare mot exempelvis Göteborg, Alingsås eller Trollhättan.



Grävlingen 17
*Areauppgifter enligt taxeringsinformationen
Totalrenovering av villa 2022-2023
- Ändrad planlösning från 4 rok till 6 rok var av 4 sovrum
- Nytt kök
- Förläggning av golvvärme i hela övervåningen
- Nya trägolv samtliga rum (två av sovrum har heltäckningsmatta)
- Nya klinkergolv vid båda entréerna
- Nya innerväggar av gips målade
- Nya lister och foder
- Nytt gipstak målat på entréplan
- Ny el med kontakter och uttag i hela huset
- Bytt trappa och trappräcke
- Byte fönsterkasseter
- Ny taklucka till vind
- Nytt altandäck och räcke
- Nytt inglasat uterum med värme
- Ny tvättstuga med samtliga maskiner utbytta
- Klinkergolv i tvättstuga
- Samtliga innerdörrar bytta
- Ytterdörr samt sidoglas bytt
2022-2019
- Båda badrummen totalrenoverade
- Taket omlagt med glaserat tegel
- Ny kompressor i värmepump
Garage för två bilar
Uterum med direkt access till trädgården samt en stor altan som erbjuder gott om utrymme för både avkoppling och socialt umgänge.
Kommunalt vatten, Kommunalt avlopp.
Tomten är insynsskyddad med gräsmatta, träd och buskar. Det vinterbonade uterummet har direkt anslutning till trädgården, vilket ger smidig åtkomst till uteplatsen.
Uppfarten rymmer flera bilar och är utrustad med laddbox för elbil, vilket ger bekväma parkeringsmöjligheter direkt vid huset.
Stadsplan (1970-12-09) Tomtindelning (1968-07-03)
Fiber
Uppvärmning är inklusive elbils laddning av tre bilar och hushålls el.
Det finns 3 st pantbrev uttagna om sammanlagt 5 067 000 kr
Välkommen till Alingsås, den naturnära trästaden med småstadens fördelar, storstadens utbud och möjligheter som passar både ung som gammal. Alingsås är en stad med visioner om framtiden vilket gör kommunen levande för både stadsbor, besökare, studenter och pensionärer.
BEBYGGELSE
I Alingsås kommun bor idag cirka 38 000 invånare. Staden som är under ständig förändring har ett växande kommuninvånarantal, och en blandad bebyggelse som utgörs av såväl toppmoderna hem samt träbyggnader från 1700- och 1800-talen.
UTBILDNING
I Alingsås kommun finns ett 30-tal kommunala förskolor samt flera grundskolor och fritidshem. Även Alströmergymnasiet som har ett brett utbud av olika program ligger beläget i Alingsås.
SERVICE
Området erbjuder ett brett serviceutbud. Alingsås kallas ofta Kaféstaden, på grund av sina många caféer, och har ett levande centrum med även stort utbud av butiker och restauranger. Centralt ligger köpcentren Storken och Vimpeln och i Bolltorp finns ett nybyggt handelsområde med bl.a. byggvaruhus och mataffär.
KOMMUNIKATIONER
Pendeltåget mellan Alingsås och Göteborg erbjuder ett snabbt och smidigt färdsätt med en restid in till Göteborg på ca 30 minuter. Alla busslinjer anländer till Alingsåsterminalen, så att resenärerna på ett smidigt sätt ska ha möjlighet till bytesresor.
NATUR OCH FRITID
I området finns flera fina parker och man har alltid nära till friluftsliv och olika sjöar. Hjortmarka naturreservat sägs vara kommunens mest frekventerade rekreationsområde med elljusspår och vandringsleder, men runtom i Alingsås finns mängder av promenadvänlig natur. För den som vill uppleva naturen nära centrum finns Nolhaga park; en grön oas med öppen djurpark och lekplats. Lövekulle camping ligger alldeles vid Mjörn och där kan du t.ex. hyra kajak och kanot.
Varje oktober lockas över 80 000 besökare till Lights in Alingsås, Europas största arrangemang för experimentell ljussättning av offentliga platser. Staden har även en egen Potatisfestival som bl.a. firas med knallemarknad, musikframträdanden och nöjesfält.
Köpa, sälja eller värdera bostad i Alingsås kommun? Kontakta våra mäklare i Alingsås! Passa också på att anmäla dig till vår kostnadsfria söktjänst Boagenten som hjälper dig att hitta ditt drömboende.
Kontakta mäklaren om du behöver hjälp att ta fram en boendekalkyl.
När du köper din bostad genom Bjurfors kan du ansöka om bolån till en förmånlig ränta hos vår samarbetspartner SEB.