-
Köpa
Köpa -
Sälja
Sälja - Hitta bostad
- Skapa bevakning
- Hitta mäklare
Familjevänlig arkitektvilla i populärt område
Olsfors, Bollebygd
*Areauppgifter enligt taxeringsinformationen
På Förhand ligger bostäder som av olika anledningar inte är ute till försäljning just nu men som kan komma att säljas om förutsättningarna är rätt.
Nu presenteras ett ljust och rymligt hem med imponerande fönsterpartier, fina sällskapsytor och en grönskande tomt med flera uteplatser.
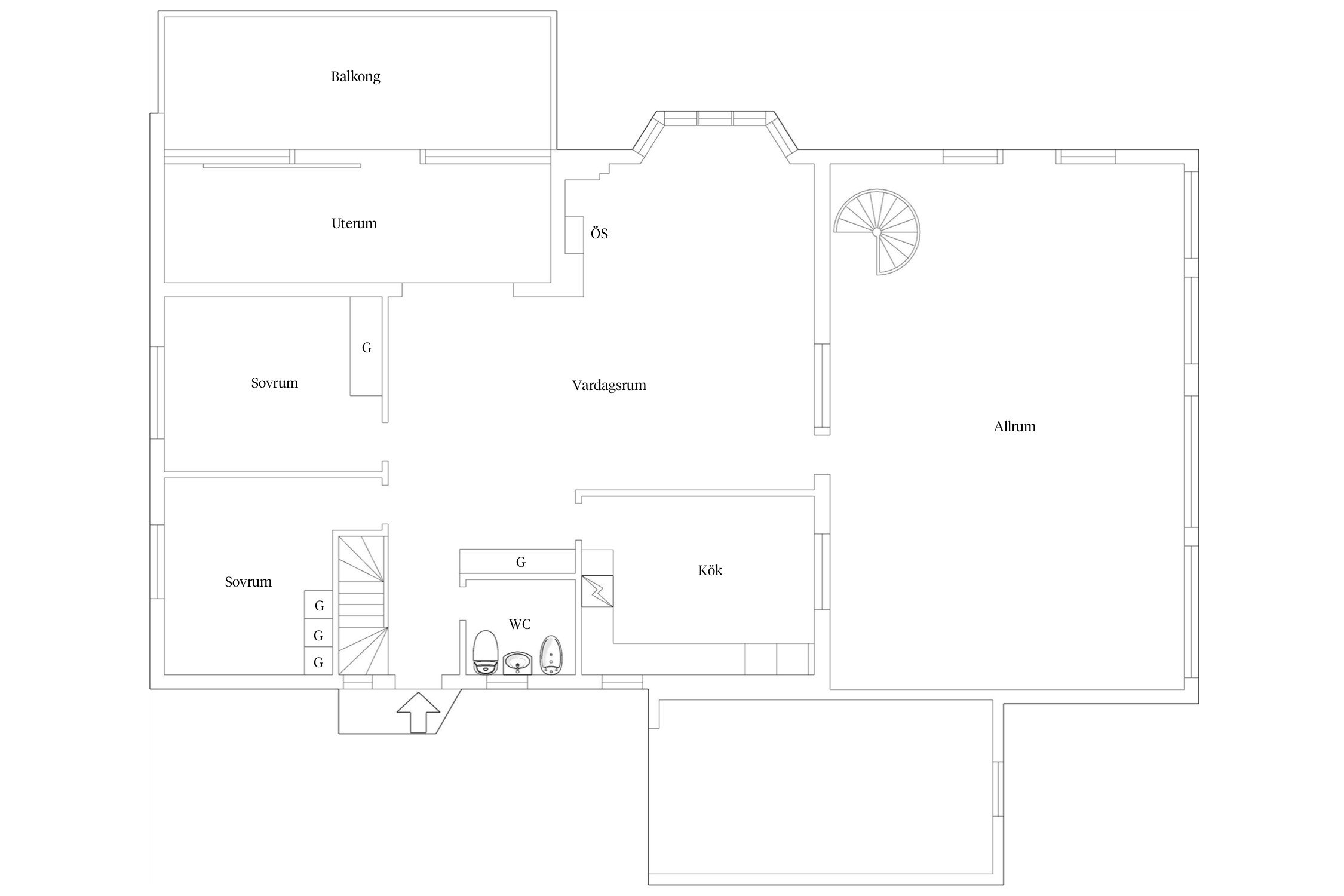
Längst in på en lugn återvändsgata finner ni denna karaktärsfulla och rymliga villa med generösa sällskapsytor, stora fönsterpartier och en grönskande tomt som skapar en privat och rofylld miljö. Här bor ni med naturen som närmsta granne samtidigt som bostaden erbjuder gott om plats för både familjeliv och sociala tillställningar.
Redan när ni kliver in möts ni av husets öppna och inbjudande planlösning där ljuset flödar genom de stora fönsterpartierna. Vardagsrummet är ett av hemmets verkliga hjärtan – ett imponerande rum med ryggåstak, synliga träbjälkar och generösa panoramafönster som suddar ut gränsen mellan inne och ute. Här finns gott om plats för både soffgrupp och sällskapsytor, och rummet erbjuder en fantastisk vy över grönskan. Härifrån finns även utgång till trädgården där jacuzzi och flera uteplatser gör det enkelt att njuta av lugna kvällar eller trevliga grillkvällar med familj och vänner.
I anslutning ligger köket som renoverades 2018 och erbjuder goda arbetsytor, modern maskinell utrustning och plats för matlagning i en social miljö. Från köket nås även hemmets allrum som lämpar sig utmärkt som tv-rum, lekrum eller ytterligare sällskapsyta.
Entréplanet rymmer även två sovrum samt ett badrum. Från vardagsrummet nås ett trevligt uterum som förlänger utesäsongen och skapar en naturlig plats för umgänge. Från uterummet nås även bostadens balkong.
Källarplanet erbjuder stora och funktionella ytor med bland annat gillestuga, ytterligare sovrum, badrum, bastu, tvättstuga, förråd samt pannrum. Här finns gott om plats för hobbyverksamhet, gäster eller tonårsdel.
Tomten om 909 kvm ligger insynsskyddad med fina gräsytor, planteringar och plats för både lek och avkoppling. På uppfarten finns goda parkeringsmöjligheter samt ett garage i huskroppen.
Olsfors ligger vackert i Söråns dalgång där ån rinner från Viaredssjön i riktning mot Bollebyggd. Landskapet är kuperat och bebyggelsen är belägen på dom vackra sluttningarna mot ån. Olsfors är beläget i den östra delen av Bollebygds kommun mot gränsen till Borås. Avståendet till Göteborg är knappt fem mil, Bollebygd åtta kilometer och till Borås femton kilometer. Olsfors ligger både i närhet till naturen likväl som närhet till RV40. Pendlingsmöjligheter till närliggande städer är goda med både bil och kollektivtrafik. Det lokala bussnätet mellan de olika orterna i kommunen är också det väl utbyggt. För att resa vidare till Göteborg byter du till tåg eller buss i Bollebygd. Det finns ett aktivt föreningsliv med idrottsanläggning i området samt förskola och skola F-6 samt inom räckhåll finns flera stora vandringsleder som går genom bygden där du kan uppleva naturens olika skiftningar från storskog till öppet landskap. Fiske och bad finns i närliggande sjöar som Gesebols sjön och Viarredssjön.
Välkommen att anmäla ditt intresse!



Örlid 1:92
*Areauppgifter enligt taxeringsinformationen
*Tillbyggt 1979
2025 badrum på entréplan, utfört i egen regi.
2024 målning av fasad.
2022 balkong.
2018 Kök. Badrum källare, Ny elcentral, Klinkers på golv. renovering gästrum i källare, stenläggning utanför huset.
2016 Golv tv-rum, nya ytskikt i sovrum, Nya ytskikt hall.
Kommunalt vatten, Kommunalt avlopp.
Byggnadsplan (1969-08-29)
Last: Avtalsservitut Kraftledning mm, 15-IM3-25/242.2
Avtalsservitut Kraftledning mm
Driftkostnader och elförbrukning är inhämtade från säljaren och bör endast ses som en uppskattning. Kostnaden kan variera och baseras på förbrukning och avtal.
Det finns 5 st pantbrev uttagna om sammanlagt 1 665 000 kr
Vill du köpa, sälja eller värdera bostad i Västra Götaland? Kontakta våra mäklare i Göteborg! Passa också på att anmäla dig till vår kostnadsfria söktjänst Boagenten som hjälper dig att hitta ditt drömboende.
Kontakta mäklaren om du behöver hjälp att ta fram en boendekalkyl.
När du köper din bostad genom Bjurfors kan du ansöka om bolån till en förmånlig ränta hos våra banksamarbetspartners Söderberg & Partners och SEB.
Ansvarig mäklare