-
Köpa
Köpa -
Sälja
Sälja - Hitta bostad
- Skapa bevakning
- Hitta mäklare
Sekelskiftesdröm anno 1904
Bergsäter, Borås
*Areauppgifter enligt taxeringsinformationen
Bo- och biarean från gårdshuset är inte inkluderat i dem taxerande siffrorna.
På Förhand ligger bostäder som av olika anledningar inte är ute till försäljning just nu men som kan komma att säljas om förutsättningarna är rätt.
Denna villa från 1904 är ett hem där det bästa av två världar kombineras. Välbevarade originaldetaljer tillsammans med en varsam modern renovering.
I ett lugnt område, med naturen runt knuten och i ypperligt solläge, har vi nöjet att presentera detta stilsäkra hem som med fingertoppskänsla och genomtänkta val bjuder på det lilla extra. Här bor ni fridfullt, fåglarna kvittrar och stjärnorna lyser lite extra klart. Bostaden har under det senare åren genomgått en omfattande förvandling med påkostade renoveringar, allt omsorgsfullt utfört för att bevara hemmets sekelskiftescharm och karaktär med inslag av diskret modern exklusivitet. Väl tilltagna sällskapsrum radar upp sig på entréplan där vardagsrum, matsal och kök harmoniserar och öppnar upp för umgänge i goda vänners lag. En trappa upp välkomnar hemmets privata avdelning med tre sovrum och stort badrum. Ovanvåningen är unikt utformad med spännande vinklar och vrår, vackra bjälkar och häpnadsväckande takhöjd i tornrummet. Förvaringsmöjligheter i mängder i form av tidsenliga garderober och vindsutrymmen i såväl hemmet som i den renoverade gårdshuset.
Exteriört samspelar den röda träpanelen med villans många fönsterpartier och trädgårdens vackra stensättningar. Villan ligger varmt omfamnad av välmående grönska från norr till söder med härliga ytor i främsta solläge. Fina stunder avnjuts på den uppskattade altanen eller den stenlagda uteplatsen, medan blicken får vila på de vackra omgivningarna, med fina siktlinjer och rogivande grönska. Goda parkeringsmöjligheter erbjuds på den stenlagda uppfarten samt i gårdshusets garage med plats för en bil och installerad laddbox. I det tillhörande gårdshuset i två plan finns dessutom en lägenhet som passar utmärkt för separat uthyrning eller som boende för exempelvis en tonåring.
Bergsäter är en centralt belägen stadsdel, här bor ni med närhet till allt. Det tar bara tio att promenera in till centrumkärnan och läsa menyn på någon av stadens restauranger. På gångavstånd ligger den nybyggda förskolan Lunden med närhet till både skog och stad. Lek och Idrott är förskolans profil. I området finns även populära Annelundsparken som har en kolonistuga, boulebana och en av stadens största lekplatser. För den som pendlar med bil är läget utmärkt då man tar sig snabbt ut till RV40. Dessutom finns både Coop och ICA Maxi nära inpå.
Välkommen att anmäla ditt intresse!



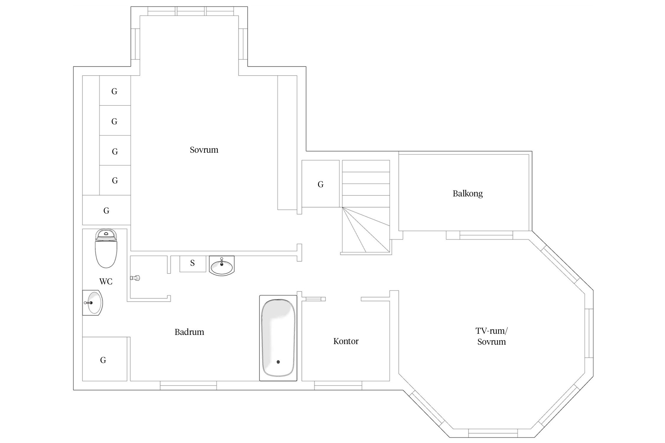
Entréplan
Ovan plan
Backsippan 14
*Areauppgifter enligt taxeringsinformationen
Bo- och biarean från gårdshuset är inte inkluderat i dem taxerande siffrorna.
Källare med betonggolv-Kryp/Torpargrunder med träbjälklag
FÖREGÅENDE ÄGARE:
-1993: Tak är bytt (papp, läkt, betongpannor)
-2004: Tillbyggnad/ombyggnad
-2004: Kök renoverat, delar av tak bytt och bandtäkt plåt lagd vid utbyggnad
-2005: Badrum totalrenoverat och ändrad i planlösning, större delen av fasaden renoverades
-2009: Pellets panna installerades
-2011: Fönster till större delen bytta.
-2017: Ny diskmaskin.
-2018: Installation av fiber
-2018: Inrett källare garage.
NUVARANDE ÄGARE:
-2023: Textilmatta i trappa samt rum på övervåning
-2023: Målning av ytskikt invändigt i matrum, tornrum nere, sovrum uppe samt kontor/barnrum
-2023: Byte av elcentral
-2023: Installation av elbilsladdare i garaget
-2024: Byte av uppvärmningssystem från pelletspanna till luft-/vattenvärmepump
- 2024: Installerat luft-/luftvärmepump för värme och kyla
-2024–2025: Staket runt huset
-2025: Renovering av tvättstuga
-2025: Målning av tornrummet uppe
I det tillhörande gårdshuset i två plan finns ett garage med plats för en bil samt en lägenhet som passar utmärkt för separat uthyrning eller som boende för exempelvis en tonåring. Tidigare ägare hyrde ut lägenheten med en hyresintäkt om drygt 6 000 kr per månad. I gårdshuset finns även husets renoverade tvättstuga. Idag används gårdshuset som gästhus.
Kommunalt vatten, Kommunalt avlopp.
Husets välskötta trädgård välkomnar med en vacker stensättning på framsidan, där även en trevlig uteplats och stämningsfull markbelysning skapar en inbjudande känsla. På baksidan breder trädgården ut sig i etage med flera härliga uteplatser och en större gräsyta – perfekt för både lek och avkoppling. Här finns dessutom två balkonger/uteplatser i soligt sydvästläge.
Garage med plats för en bil. Intill huset finns även en stensatt yta som ger plats för extra parkering.
Tomtindelning (1948-02-05) Stadsplan (1946-05-03)
Fiber
Det finns 9 st pantbrev uttagna om sammanlagt 4 026 000 kr
MODERNA OCH VÄXANDE BORÅS
I Borås bor du i en vackert belägen stad som följer Viskans dalgång med ett vakande öga från Rya Åsars beskyddande kullar.Det är modern stad och del av en dynamisk tillväxtregion i en miljö där proportionerna är lagom och takten lite lugnare.
VÄVD AV HISTORIEN, FORMAD AV FRAMTIDEN
Borås är sen sekler tillbaka en starkt präglad textil- och handelsstad. Staden är vävd av historien och formad för framtiden. Borås Konstmuseum, Textilmuseet och Borås Museum erbjuder ett rikt utbud av konstnärliga höjdpunkter av olika slag och former om du vill uppleva historiens vingslag. Staden utvecklar sin framtid på arvet från textil och handel. Den är en del av en tillväxtregion och utmärker sig nationellt inom affärsområden som textil, e-handel och logistik. Här finns också Viared utmed riksväg 40, en företagspark under stark utveckling. En strategisk skandinavisk placering med ungefär samma avstånd till Stockholm, Köpenhamn och Oslo och närhet till Göteborg med Landvetter Airport. Floden Viskan var förr den livsnerv som industrin byggde sin framtid på. Nu ger Viskans flöde inspiration till rekreation och upplevelser.
PULS OCH PAUS
Det är kontrasterna som genomsyrar Borås. Å ena sidan puls, shopping och nöjesliv, å andra sidan mysiga parker, kullerstenar och svalkande bad. Här finns ett variationsrikt kulturutbud och upplevelser om du är aktiv. Djurparken är en av landets största. Borås är rikt på sjöar och vattendrag. Det finns flera badplatser med stor variation och kalla vintrar lockar stadsparksbadet. Sportintresset är stort i Borås kommun med lokala elitlag som IF Elfsborg, Norrby IF och Borås Basket.
Sträckan Göteborg-Borås är det tredje största pendlingsstråket i landet där pendling sker i båda riktningarna. Infrastrukturen inom regionen är en prioriterad fråga med Götalandsbanan i spetsen. Staden är navet i Sjuhärad med väl utbyggd kollektivtrafik inom Borås och till de fyra serviceorterna Dalsjöfors, Fristad, Sandared och Viskafors.
Köpa, sälja eller värdera bostad i Borås? Kontakta Bjurfors mäklare i Borås! Passa också på att anmäla dig till vår kostnadsfria söktjänst Boagenten som hjälper dig att hitta ditt drömboende.
Kontakta mäklaren om du behöver hjälp att ta fram en boendekalkyl.
När du köper din bostad genom Bjurfors kan du ansöka om bolån till en förmånlig ränta hos vår samarbetspartner SEB.
Ansvarig mäklare