-
Köpa
Köpa -
Sälja
Sälja - Hitta bostad
- Skapa bevakning
- Hitta mäklare
Detta är en kommande försäljning, kontakta mäklaren för mer info!
Brämhult, Borås
*Areauppgifter enligt taxeringsinformationen
På Förhand ligger bostäder som av olika anledningar inte är ute till försäljning just nu men som kan komma att säljas om förutsättningarna är rätt.
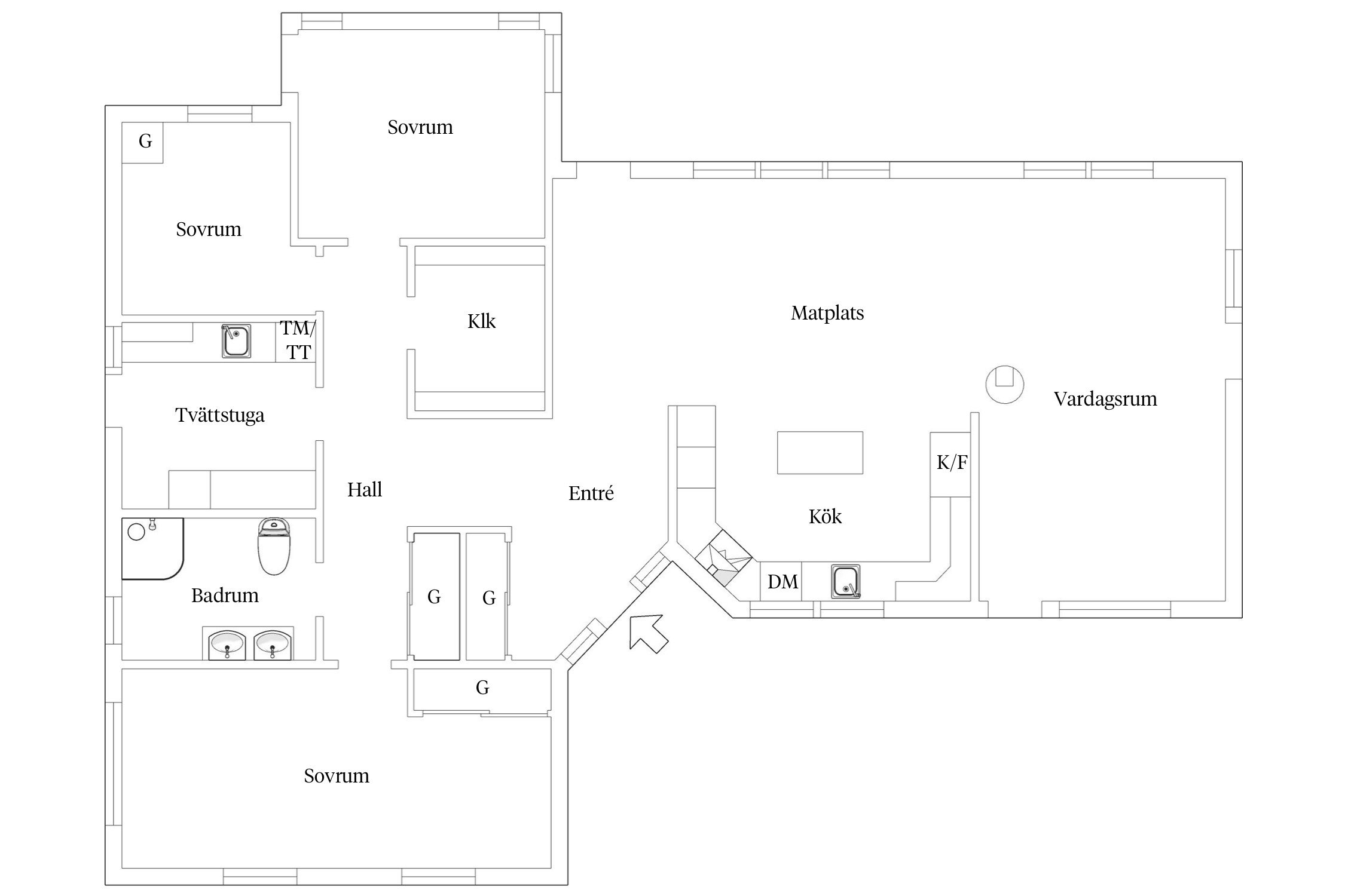
Välkommen till ett hem som verkligen skiljer sig från mängden. På attraktiva Kärrahagsvägen erbjuds denna specialritade villa om 138 + 11 kvm – skapad med fokus på rymd, funktion och en genomgående känsla av kvalitet.
Här möts du av en unik arkitektonisk idé där det stora sällskapsrummet öppnar upp sig hela vägen upp till nock. Den fulla takhöjden, utan avbrott mot hallen, skapar en imponerande volym och ett fantastiskt ljusflöde – en lösning som tagits fram i samarbete med arkitekt och konstruktörer för att förena estetik med hållbar konstruktion.
Planlösningen är genomtänkt in i minsta detalj med tydligt fokus på vardagens behov. Här har man prioriterat exklusiva material val, smarta lösningar och funktion före standardval – vilket resulterar i ett hem som upplevs både mer praktiskt och mer harmoniskt. Förvaringen är generös och välplanerad, med flera garderober utöver klädkammare, något som många familjer värdesätter högt.
Bostaden erbjuder fyra rum med en naturlig balans mellan sociala ytor och privata delar. Här finns gott om plats för både umgänge och avkoppling – ett hem att leva i, inte bara bo i.
Detta är inte ett massproducerat kataloghus, utan ett hem med en egen identitet. Den individuella utformningen, tillsammans med gedigen svensk byggstandard och kvalitativa materialval, skapar en helhet som upplevs både trygg och exklusiv.
Läget i Brämhult är lugnt och familjevänligt med närhet till natur, skolor och service – ett område där många trivs och stannar länge.
Fantastisk och lättskött tomt med generösa altanytor som löper runt stora delar av huset och skapar flera naturliga uteplatser i olika nivåer. Här kan du följa solen från morgon till kväll och alltid hitta en perfekt plats att slå dig ner på.
De smakfulla stenläggningarna ramar in tomten på ett stilrent sätt och ger både karaktär och funktion. Det finns gott om utrymme för både lek och umgänge – exempelvis plats för studsmatta eller andra aktiviteter.
På uppfarten finns generösa parkeringsmöjligheter med plats för flera bilar, samt en praktisk carport.
En perfekt kombination av estetik, funktion och minimalt underhåll – här är det bara att flytta in och njuta.
Ett hem för dig som söker något mer än det vanliga.
Ni kommer inte bli besvikna på denna underbara plats, kom och se efter själva.
*Intresseanmäl er redan idag!*
Med vänliga hälsningar
- Lina Amor Monroy på Bjurfors.
073-347 00 23



Brämhults-kärra 1:37
*Areauppgifter enligt taxeringsinformationen
Grundlagd med Betongplatta på mark med underliggande isolering och golvvärmeslang.
2024- Service värmepump 2024
2021- Elbilsladdare installerad
Flera altaner i olika nivåer som löper runt huset. Här kan du njuta av solen hela dagen.
Kommunalt vatten, Kommunalt avlopp.
Lättskött tomt med fina stenläggningar och gott om plats för lek och umgänge, exempelvis studsmatta.
Generös uppfart med plats för flera bilar samt carport.
Detaljplan (2009-05-12)
Fiber finns.
Det finns 2 st pantbrev uttagna om sammanlagt 3 679 200 kr
MODERNA OCH VÄXANDE BORÅS
I Borås bor du i en vackert belägen stad som följer Viskans dalgång med ett vakande öga från Rya Åsars beskyddande kullar.Det är modern stad och del av en dynamisk tillväxtregion i en miljö där proportionerna är lagom och takten lite lugnare.
VÄVD AV HISTORIEN, FORMAD AV FRAMTIDEN
Borås är sen sekler tillbaka en starkt präglad textil- och handelsstad. Staden är vävd av historien och formad för framtiden. Borås Konstmuseum, Textilmuseet och Borås Museum erbjuder ett rikt utbud av konstnärliga höjdpunkter av olika slag och former om du vill uppleva historiens vingslag. Staden utvecklar sin framtid på arvet från textil och handel. Den är en del av en tillväxtregion och utmärker sig nationellt inom affärsområden som textil, e-handel och logistik. Här finns också Viared utmed riksväg 40, en företagspark under stark utveckling. En strategisk skandinavisk placering med ungefär samma avstånd till Stockholm, Köpenhamn och Oslo och närhet till Göteborg med Landvetter Airport. Floden Viskan var förr den livsnerv som industrin byggde sin framtid på. Nu ger Viskans flöde inspiration till rekreation och upplevelser.
PULS OCH PAUS
Det är kontrasterna som genomsyrar Borås. Å ena sidan puls, shopping och nöjesliv, å andra sidan mysiga parker, kullerstenar och svalkande bad. Här finns ett variationsrikt kulturutbud och upplevelser om du är aktiv. Djurparken är en av landets största. Borås är rikt på sjöar och vattendrag. Det finns flera badplatser med stor variation och kalla vintrar lockar stadsparksbadet. Sportintresset är stort i Borås kommun med lokala elitlag som IF Elfsborg, Norrby IF och Borås Basket.
Sträckan Göteborg-Borås är det tredje största pendlingsstråket i landet där pendling sker i båda riktningarna. Infrastrukturen inom regionen är en prioriterad fråga med Götalandsbanan i spetsen. Staden är navet i Sjuhärad med väl utbyggd kollektivtrafik inom Borås och till de fyra serviceorterna Dalsjöfors, Fristad, Sandared och Viskafors.
Köpa, sälja eller värdera bostad i Borås? Kontakta Bjurfors mäklare i Borås! Passa också på att anmäla dig till vår kostnadsfria söktjänst Boagenten som hjälper dig att hitta ditt drömboende.
Kontakta mäklaren om du behöver hjälp att ta fram en boendekalkyl.
När du köper din bostad genom Bjurfors kan du ansöka om bolån till en förmånlig ränta hos våra banksamarbetspartners Söderberg & Partners och SEB.
Ansvarig mäklare