-
Köpa
Köpa -
Sälja
Sälja - Hitta bostad
- Skapa bevakning
- Hitta mäklare
Modern familjevilla i absolut toppklass
Brämhult, Borås
*Areauppgifter enligt taxeringsinformationen
På Förhand ligger bostäder som av olika anledningar inte är ute till försäljning just nu men som kan komma att säljas om förutsättningarna är rätt.
Nu förbereder vi denna smakfullt och exklusivt renoverade villan på eftertraktad adress i Brämhult med naturen som närmsta granne
Välkommen till Rådjursgatan 15 - På en lugn och vacker gata i populära Brämhult finner du denna magnifikt renoverade soutterängvilla – ett hem som imponerar redan vid första steget över tröskeln. Här möts du av en genomgående påkostad och stilren känsla, där exklusiva materialval, tidlös design och smarta planlösningar skapar ett boende som mycket sällan kommer ut till försäljning.
Med mexitegel, bergvärme, nya badrum och nytt kök samt de finaste av golv – fiskbensparkett i ett stort och öppet sällskapsplan – erbjuder huset en perfekt kombination av stil, komfort och funktionalitet. Ett hem att växa i, trivas i och vara stolt över.
Ett boende som överraskar med sin rymd och flexibilitet
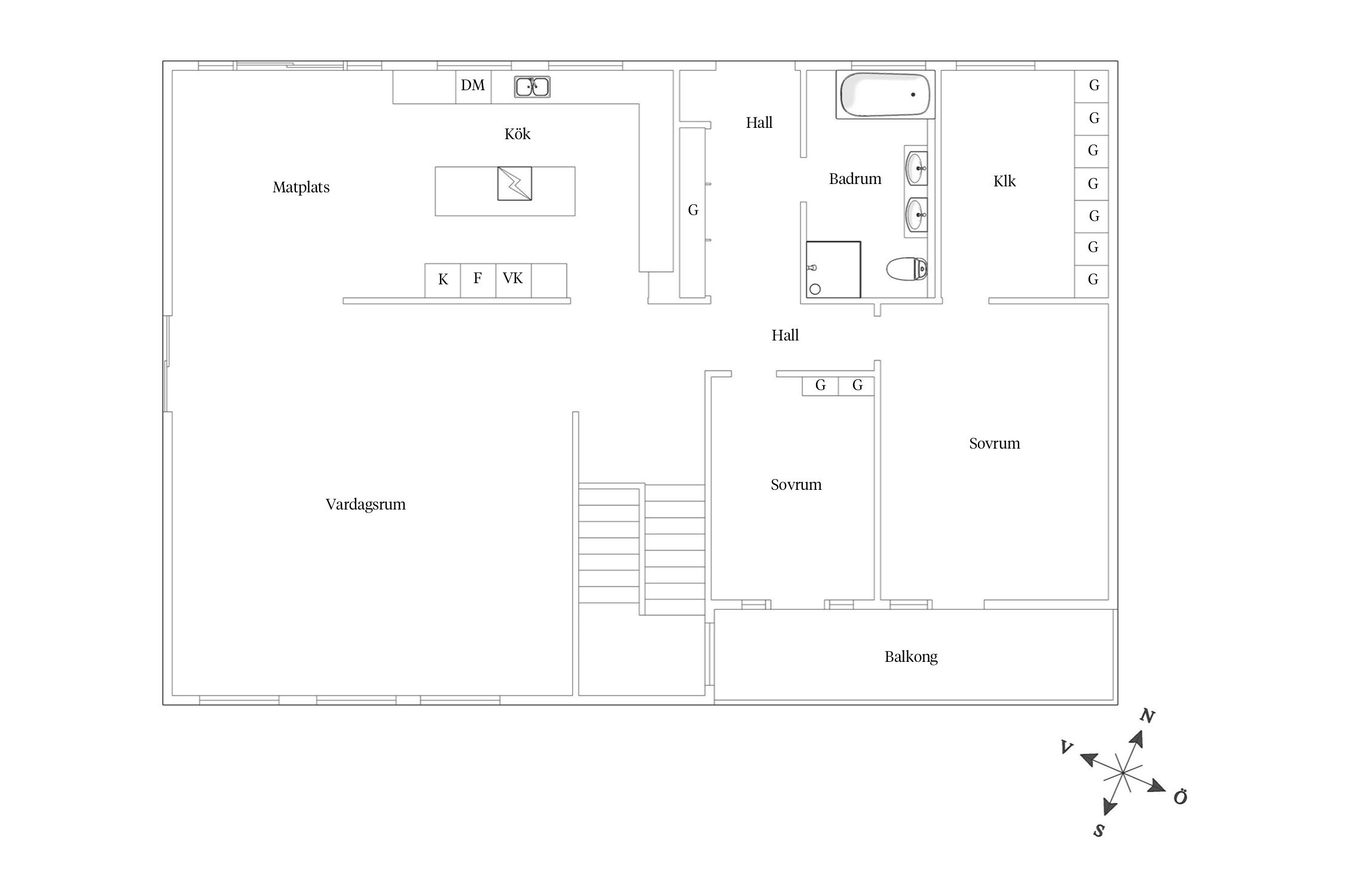
Huset ligger i soutterräng och bjuder därför på en otrolig rymd med två fulla våningsplan, där varje del av huset har sin egen naturliga funktion. Den smarta planeringen ger dig möjlighet till många sovrum, flera allrum och gott om förvaringsmöjligheter. Perfekt för den stora familjen, för hemmajobbare – eller för dig som vill ha både gästrum och hobbyutrymmen.
Det övre planet öppnar upp sig med ett stort vardagsrum och matplats i öppen planlösning, där den vackra fiskbensparketten sätter tonen. Här flödar ljuset in från flera väderstreck, och naturen utanför blir en naturlig del av atmosfären.
Det nya köket är stilrent och modernt med en inbjudande köksö, kvalitativa vitvaror och genomtänkta detaljer som gör matlagningen till ett nöje. I anslutning finns utmärkt matplats och generösa sociala ytor – perfekt för både vardag och fest.
Planets två sovrum, nyrenoverat badrum och walk-in-closet ger en trivsam och balanserad helhet.
På nedre plan finns ett stort allrum, flera förvaringsutrymmen, ytterligare sovrum och ett renoverat badrum. För dig som drömmer om SPA-känsla finns dessutom en egen bastu. Tvättstugan är generös och välplanerad med moderna maskiner och god arbetsyta.
Via detta plan nås även det rymliga garaget, perfekt för både bil och extra förvaring.
Brämhult är en attraktiv villaförort till Borås. Här finns känslan av lantligt läge utan kompromiss med stadens fördelar. På gångavstånd når man Ymergården med flera olika verksamhetsområden inom boule, beachvollyboll , motion, utegym och orientering. Utöver detta finns dessutom en mycket välbesökt discgolfbana och vintertid finns det fantastiska längdspår. Från Ymergården utgår fyra motionsspår/vandringsleder. Ymergården passerar du också om du vandrar den långa vandringsleden Sjuhäradsleden. I närheten finner ni flertalet grundskolor. Ett stenkast bort ligger skolor från 1-9 med fritidsavdelningar. Här bor du med närhet till allmän service såsom matbutik, apotek och vårdcentral. Borås centrumkärna nås samidigt via goda kommunikationer, bil eller cykel. För den som pendlar med bil till Göteborg eller andra delar av Borås är läget utmärkt då man tar sig snabbt ut till RV40 men ändå är läget mycket lugnt och tyst.
Välkommen att anmäla ert intresse för att uppleva känslan på plats!



Övre plan
Entréplan
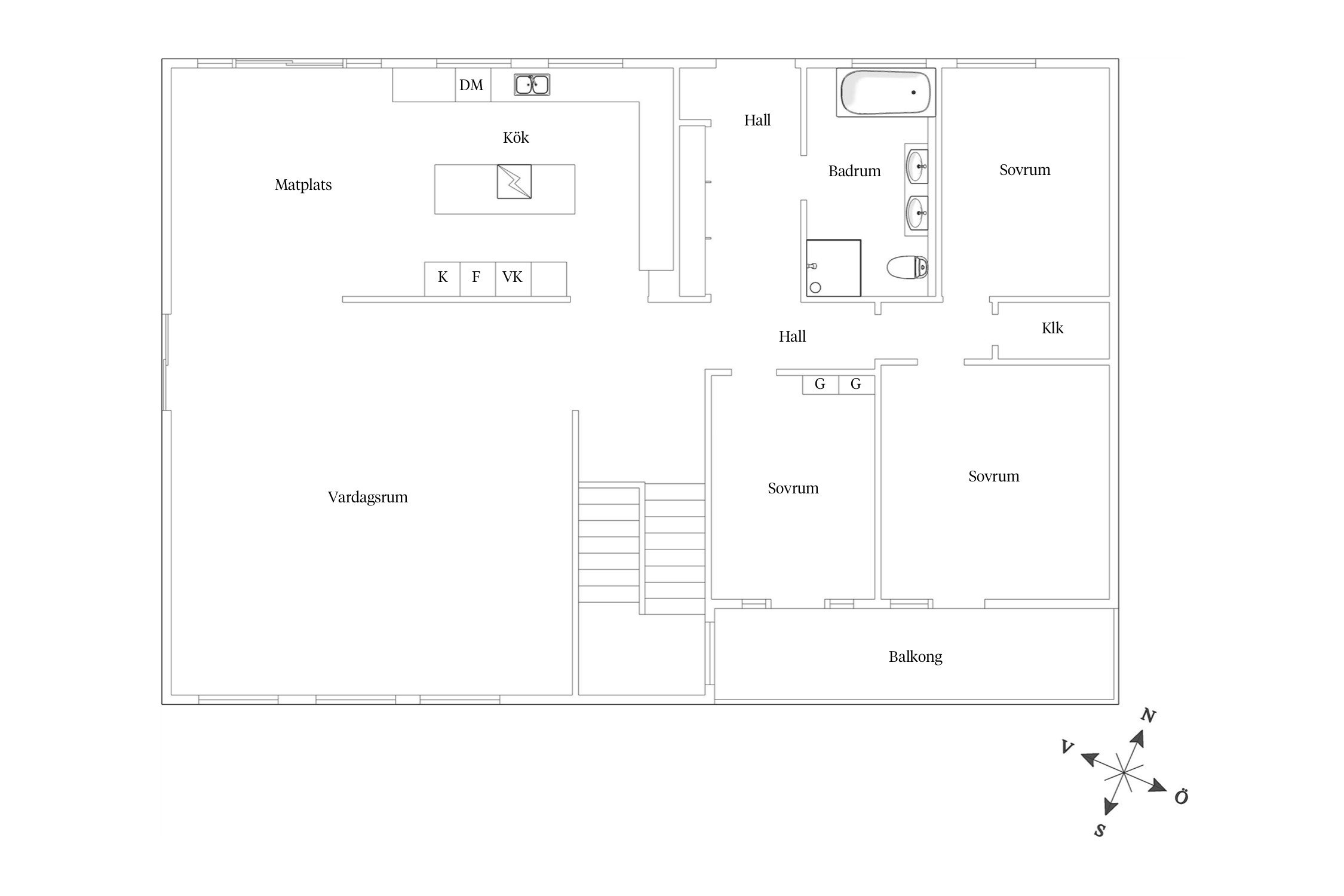
Alternativ planlösning övre plan med extra sovrum
Brämhults-ön 1:189
*Areauppgifter enligt taxeringsinformationen
2020 totalrenoverades hela övervåningen och större delen av nedervåningen
-
Alla rör byttes ut på övervåning.
-
Väggar togs ner för att öppna upp mer. I balk placerades i öppning mellan kök och vardagsrum för att bära av vägg som tagits bort.
-
Alla golv lades om på över- och undervåning.
-
Hela övervåningen flytspacklades för att undvika trösklar och ett flytande parkettgolv (fiskben) lades in).
-
Ett glasparti sattes in i köket (bygglov finns).
-
Badrum på övervåning helrenoverades.
-
Trapphus renoverades med nytt golv (fiskbensparkett samt glasräcken)
-
All el drogs om och nytt elskåp sattes upp.
-
Plejd kopplades in i de flesta kontakterna.
-
På nedervåningen lades luftcirkulation in under golv och upp på en av ytterväggarna. En gipsvägg sattes upp framför för att skapa cirkulation.
2025 renoverades badrummet på nedervåningen. Rör i källaren byttes ut i samband med detta och bastu sattes in i badrum.
Kända renoveringar av tidigare ägare:
2003-2004
Installation av Fönster, Bergvärmepump, Badrum övre plan, Dränering, Renovering kök, Nya ytskikt.
Kommunalt vatten, Kommunalt avlopp.
Byggnadsplan (1978-02-01)
Last: Avtalsservitut Ledning, 15-IM3-57/1170.1
Avtalsservitut Ledning
Elkostnader avser kostnader för både uppvärmning och hushållsel.
Det finns 13 st pantbrev uttagna om sammanlagt 5 553 000 kr
MODERNA OCH VÄXANDE BORÅS
I Borås bor du i en vackert belägen stad som följer Viskans dalgång med ett vakande öga från Rya Åsars beskyddande kullar.Det är modern stad och del av en dynamisk tillväxtregion i en miljö där proportionerna är lagom och takten lite lugnare.
VÄVD AV HISTORIEN, FORMAD AV FRAMTIDEN
Borås är sen sekler tillbaka en starkt präglad textil- och handelsstad. Staden är vävd av historien och formad för framtiden. Borås Konstmuseum, Textilmuseet och Borås Museum erbjuder ett rikt utbud av konstnärliga höjdpunkter av olika slag och former om du vill uppleva historiens vingslag. Staden utvecklar sin framtid på arvet från textil och handel. Den är en del av en tillväxtregion och utmärker sig nationellt inom affärsområden som textil, e-handel och logistik. Här finns också Viared utmed riksväg 40, en företagspark under stark utveckling. En strategisk skandinavisk placering med ungefär samma avstånd till Stockholm, Köpenhamn och Oslo och närhet till Göteborg med Landvetter Airport. Floden Viskan var förr den livsnerv som industrin byggde sin framtid på. Nu ger Viskans flöde inspiration till rekreation och upplevelser.
PULS OCH PAUS
Det är kontrasterna som genomsyrar Borås. Å ena sidan puls, shopping och nöjesliv, å andra sidan mysiga parker, kullerstenar och svalkande bad. Här finns ett variationsrikt kulturutbud och upplevelser om du är aktiv. Djurparken är en av landets största. Borås är rikt på sjöar och vattendrag. Det finns flera badplatser med stor variation och kalla vintrar lockar stadsparksbadet. Sportintresset är stort i Borås kommun med lokala elitlag som IF Elfsborg, Norrby IF och Borås Basket.
Sträckan Göteborg-Borås är det tredje största pendlingsstråket i landet där pendling sker i båda riktningarna. Infrastrukturen inom regionen är en prioriterad fråga med Götalandsbanan i spetsen. Staden är navet i Sjuhärad med väl utbyggd kollektivtrafik inom Borås och till de fyra serviceorterna Dalsjöfors, Fristad, Sandared och Viskafors.
Köpa, sälja eller värdera bostad i Borås? Kontakta Bjurfors mäklare i Borås! Passa också på att anmäla dig till vår kostnadsfria söktjänst Boagenten som hjälper dig att hitta ditt drömboende.
Kontakta mäklaren om du behöver hjälp att ta fram en boendekalkyl.
När du köper din bostad genom Bjurfors kan du ansöka om bolån till en förmånlig ränta hos vår samarbetspartner SEB.
Ansvarig mäklare