-
Köpa
Köpa -
Sälja
Sälja - Hitta bostad
- Skapa bevakning
- Hitta mäklare
Slående i alla lägen
Öresjö Ängar, Borås
*I månadsavgiften ingår värme, vatten samt bostadsrättstillägg. Utöver månadsavgiften tillkommer en avgift för internet på 299 kr/mån.
*** Areauppgifter enligt bostadsrättsföreningen
På Förhand ligger bostäder som av olika anledningar inte är ute till försäljning just nu men som kan komma att säljas om förutsättningarna är rätt.
En kort promenad från Öresjö finner ni detta nyproducerade hem. Här väntar modern interiör, påkostade tillval och fantastisk uteplats.
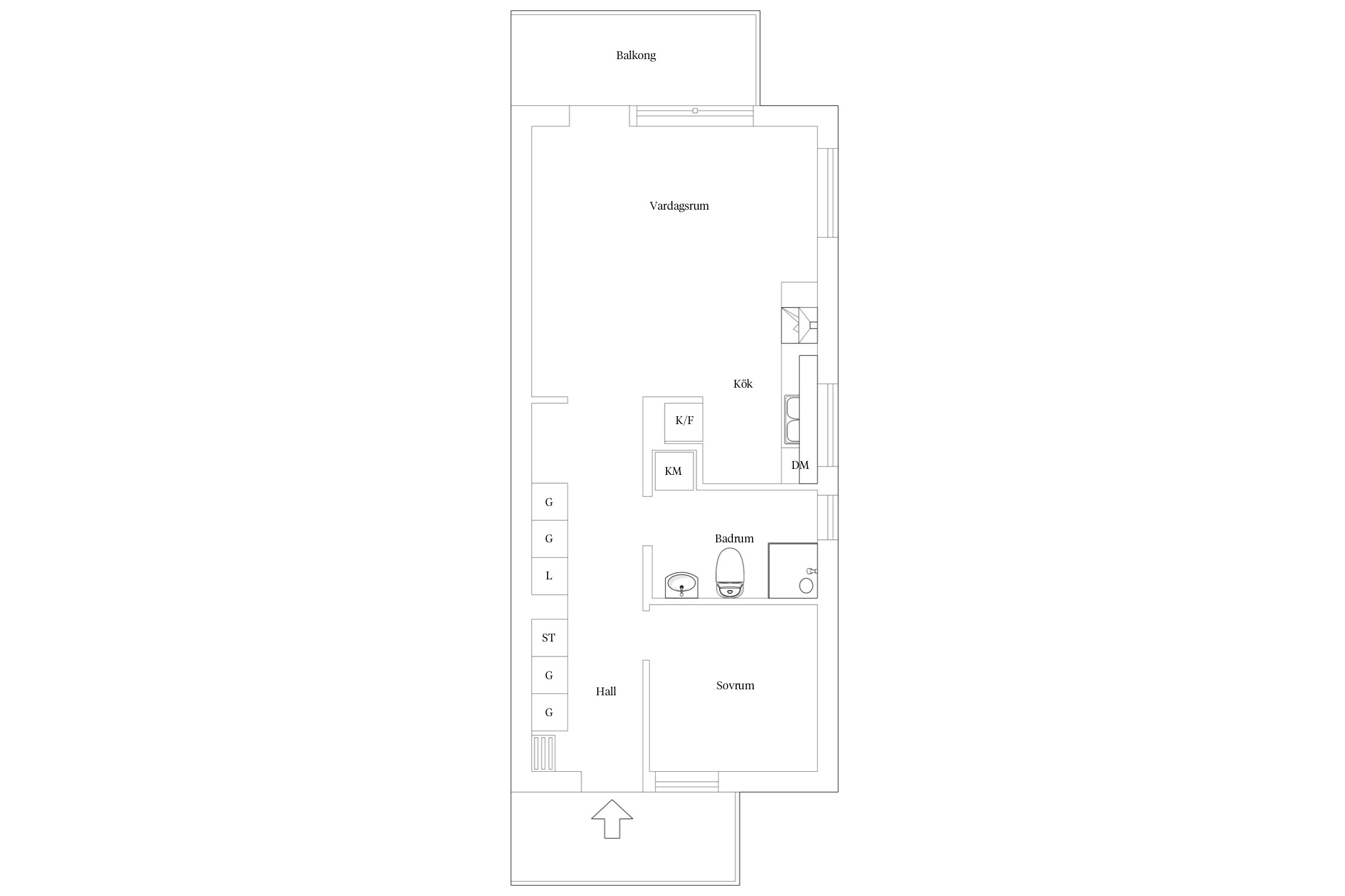
Välkommen till denna stilfulla tvårummare på expansiva Öresjö Ängar! Här möts ni av en ljus och modern bostad med öppen planlösning mellan kök och vardagsrum. De generösa fönsterpartierna bjuder in dagsljuset och skapar en luftig atmosfär, medan den sociala planlösningen gör det enkelt att umgås och trivas i hemmets hjärta. Från vardagsrummet når ni bostadens balkong – en härlig plats att njuta av både lugna morgnar och varma sommarkvällar. Avskilt från de sociala ytorna finner ni ett rofyllt sovrum med gott om förvaring. Bostaden erbjuder även ett stilrent badrum med moderna materialval och väl genomtänkt funktion.
Den nya stadsdelen Öresjö Ängar ligger mellan Sjöbo och Tosseryd i ett lugnt och grönt område. Bebyggelsen kommer bestå av blandade bostadsformer, allt från flerbostadshus till villor och radhus, med variationsrik arkitektur. Alldeles utanför dörren finns vacker natur och innanför tröskeln alla bekvämligheter du kan drömma om. På nära gång- och cykelavstånd ligger Öresjö med fantastisk natur, härliga badplatser och sköna vandringsleder i området kring Kypesjön. Många fiskare anser även att Öresjö räknas som en av Sveriges bästa pimpelsjöar. I närområdet finns all tänkbar service. Njut av att bo i direkt närhet till allt från skolor och förskolor till matbutiker, apotek och vårdcentral. Bara några minuter bort finns Knalleland med sitt utbud av kaféer, restauranger och småbutiker. Djurparken och Simarenan ligger också nära till hands. Centrumkärnan och Högskolan nås samtidigt via goda kommunikationer eller via bil inom 10 minuter.
Välkommen att anmäla ert intresse!



** Areauppgifter enligt bostadsrättsföreningen
I månadsavgiften ingår värme, vatten samt bostadsrättstillägg. Utöver månadsavgiften tillkommer en avgift för internet på 299 kr/mån.
Förråd finns på gården.
Balkong i uppskattat väderstreck.
Parkeringsplats finns att hyra för 350kr/månad.
Förberett el till parkeringen som är kopplad mot lägenhetens elmätare, så det bara är att installera en laddbox sen om man vill.
Föreningen har tecknat ett kollektivt avtal för internet (fiber 250/250 mbit.) Detta är ett obligatoriskt tillägg på 299 kr/månad som regleras i samband med månadsavgiften.
Bostadsrättens indirekta nettoskuldsättning baseras på föreningens skulder/lån minus föreningens räntebärande tillgångar och likvida medel. Beräkningen är gjord och baseras på senaste tillgängliga årsredovisningen. För mer information kontakta ansvarig fastighetsmäklare.
BRF-Utsikten på Öresjö ängar är en modern och välskött bostadsrättsförening som erbjuder våra medlemmar en rad förmåner och en stark gemenskap. Vår förening består av 39 lägenheter som varierar i storlek och planlösning, vilket gör det möjligt för oss att erbjuda boendealternativ som passar alla typer av hushåll och livsstilar.
Hos oss är miljön en prioritet, och vi har därför investerat i energieffektiva och hållbara lösningar för att skapa ett miljömedvetet och bekvämt boende. Våra lägenheter är utrustade med moderna bekvämligheter och smarta funktioner som säkerställer en hög livskvalitet för våra medlemmar.
Vi är stolta över att kunna erbjuda en vacker och lugn miljö som omger vår förening. Med närhet till natursköna Öresjö och områdets grönska får våra medlemmar njuta av en harmonisk balans mellan stad och natur. Vi erbjuder även gemensamma utrymmen och aktiviteter som främjar samhörighet och gemenskap, vilket gör BRF-Utsikten på Öresjöängar i Tosseryd till en plats där människor trivs och känner sig hemma
MODERNA OCH VÄXANDE BORÅS
I Borås bor du i en vackert belägen stad som följer Viskans dalgång med ett vakande öga från Rya Åsars beskyddande kullar.Det är modern stad och del av en dynamisk tillväxtregion i en miljö där proportionerna är lagom och takten lite lugnare.
VÄVD AV HISTORIEN, FORMAD AV FRAMTIDEN
Borås är sen sekler tillbaka en starkt präglad textil- och handelsstad. Staden är vävd av historien och formad för framtiden. Borås Konstmuseum, Textilmuseet och Borås Museum erbjuder ett rikt utbud av konstnärliga höjdpunkter av olika slag och former om du vill uppleva historiens vingslag. Staden utvecklar sin framtid på arvet från textil och handel. Den är en del av en tillväxtregion och utmärker sig nationellt inom affärsområden som textil, e-handel och logistik. Här finns också Viared utmed riksväg 40, en företagspark under stark utveckling. En strategisk skandinavisk placering med ungefär samma avstånd till Stockholm, Köpenhamn och Oslo och närhet till Göteborg med Landvetter Airport. Floden Viskan var förr den livsnerv som industrin byggde sin framtid på. Nu ger Viskans flöde inspiration till rekreation och upplevelser.
PULS OCH PAUS
Det är kontrasterna som genomsyrar Borås. Å ena sidan puls, shopping och nöjesliv, å andra sidan mysiga parker, kullerstenar och svalkande bad. Här finns ett variationsrikt kulturutbud och upplevelser om du är aktiv. Djurparken är en av landets största. Borås är rikt på sjöar och vattendrag. Det finns flera badplatser med stor variation och kalla vintrar lockar stadsparksbadet. Sportintresset är stort i Borås kommun med lokala elitlag som IF Elfsborg, Norrby IF och Borås Basket.
Sträckan Göteborg-Borås är det tredje största pendlingsstråket i landet där pendling sker i båda riktningarna. Infrastrukturen inom regionen är en prioriterad fråga med Götalandsbanan i spetsen. Staden är navet i Sjuhärad med väl utbyggd kollektivtrafik inom Borås och till de fyra serviceorterna Dalsjöfors, Fristad, Sandared och Viskafors.
Köpa, sälja eller värdera bostad i Borås? Kontakta Bjurfors mäklare i Borås! Passa också på att anmäla dig till vår kostnadsfria söktjänst Boagenten som hjälper dig att hitta ditt drömboende.
Kontakta mäklaren om du behöver hjälp att ta fram en boendekalkyl.
När du köper din bostad genom Bjurfors kan du ansöka om bolån till en förmånlig ränta hos vår samarbetspartner SEB.
Ansvarig mäklare