-
Köpa
Köpa -
Sälja
Sälja - Hitta bostad
- Skapa bevakning
- Hitta mäklare
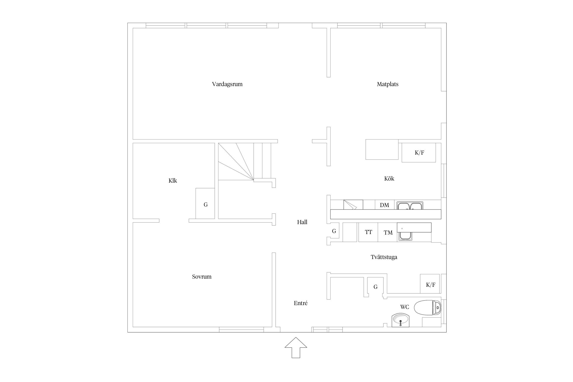
Trivsam villa med lugnt läge på populära Salängen
Salängen , Borås
*Areauppgifter enligt taxeringsinformationen
På Förhand ligger bostäder som av olika anledningar inte är ute till försäljning just nu men som kan komma att säljas om förutsättningarna är rätt.
Fyll i formuläret nedan så hjälper vi dig!



MODERNA OCH VÄXANDE BORÅS
I Borås bor du i en vackert belägen stad som följer Viskans dalgång med ett vakande öga från Rya Åsars beskyddande kullar.Det är modern stad och del av en dynamisk tillväxtregion i en miljö där proportionerna är lagom och takten lite lugnare.
VÄVD AV HISTORIEN, FORMAD AV FRAMTIDEN
Borås är sen sekler tillbaka en starkt präglad textil- och handelsstad. Staden är vävd av historien och formad för framtiden. Borås Konstmuseum, Textilmuseet och Borås Museum erbjuder ett rikt utbud av konstnärliga höjdpunkter av olika slag och former om du vill uppleva historiens vingslag. Staden utvecklar sin framtid på arvet från textil och handel. Den är en del av en tillväxtregion och utmärker sig nationellt inom affärsområden som textil, e-handel och logistik. Här finns också Viared utmed riksväg 40, en företagspark under stark utveckling. En strategisk skandinavisk placering med ungefär samma avstånd till Stockholm, Köpenhamn och Oslo och närhet till Göteborg med Landvetter Airport. Floden Viskan var förr den livsnerv som industrin byggde sin framtid på. Nu ger Viskans flöde inspiration till rekreation och upplevelser.
PULS OCH PAUS
Det är kontrasterna som genomsyrar Borås. Å ena sidan puls, shopping och nöjesliv, å andra sidan mysiga parker, kullerstenar och svalkande bad. Här finns ett variationsrikt kulturutbud och upplevelser om du är aktiv. Djurparken är en av landets största. Borås är rikt på sjöar och vattendrag. Det finns flera badplatser med stor variation och kalla vintrar lockar stadsparksbadet. Sportintresset är stort i Borås kommun med lokala elitlag som IF Elfsborg, Norrby IF och Borås Basket.
Sträckan Göteborg-Borås är det tredje största pendlingsstråket i landet där pendling sker i båda riktningarna. Infrastrukturen inom regionen är en prioriterad fråga med Götalandsbanan i spetsen. Staden är navet i Sjuhärad med väl utbyggd kollektivtrafik inom Borås och till de fyra serviceorterna Dalsjöfors, Fristad, Sandared och Viskafors.
Köpa, sälja eller värdera bostad i Borås? Kontakta Bjurfors mäklare i Borås! Passa också på att anmäla dig till vår kostnadsfria söktjänst Boagenten som hjälper dig att hitta ditt drömboende.
Ansvarig mäklare