-
Köpa
Köpa -
Sälja
Sälja - Hitta bostad
- Skapa bevakning
- Hitta mäklare
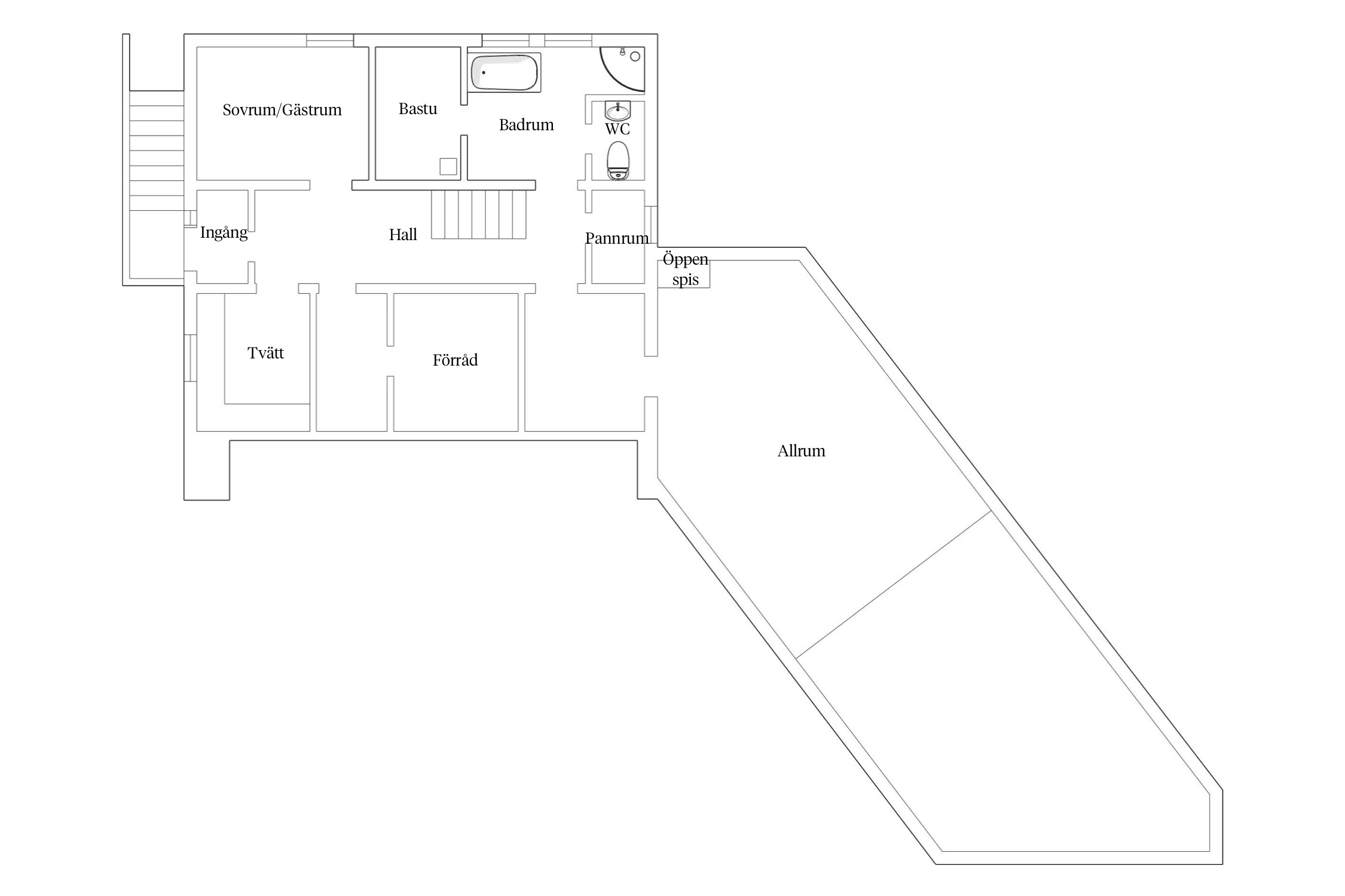
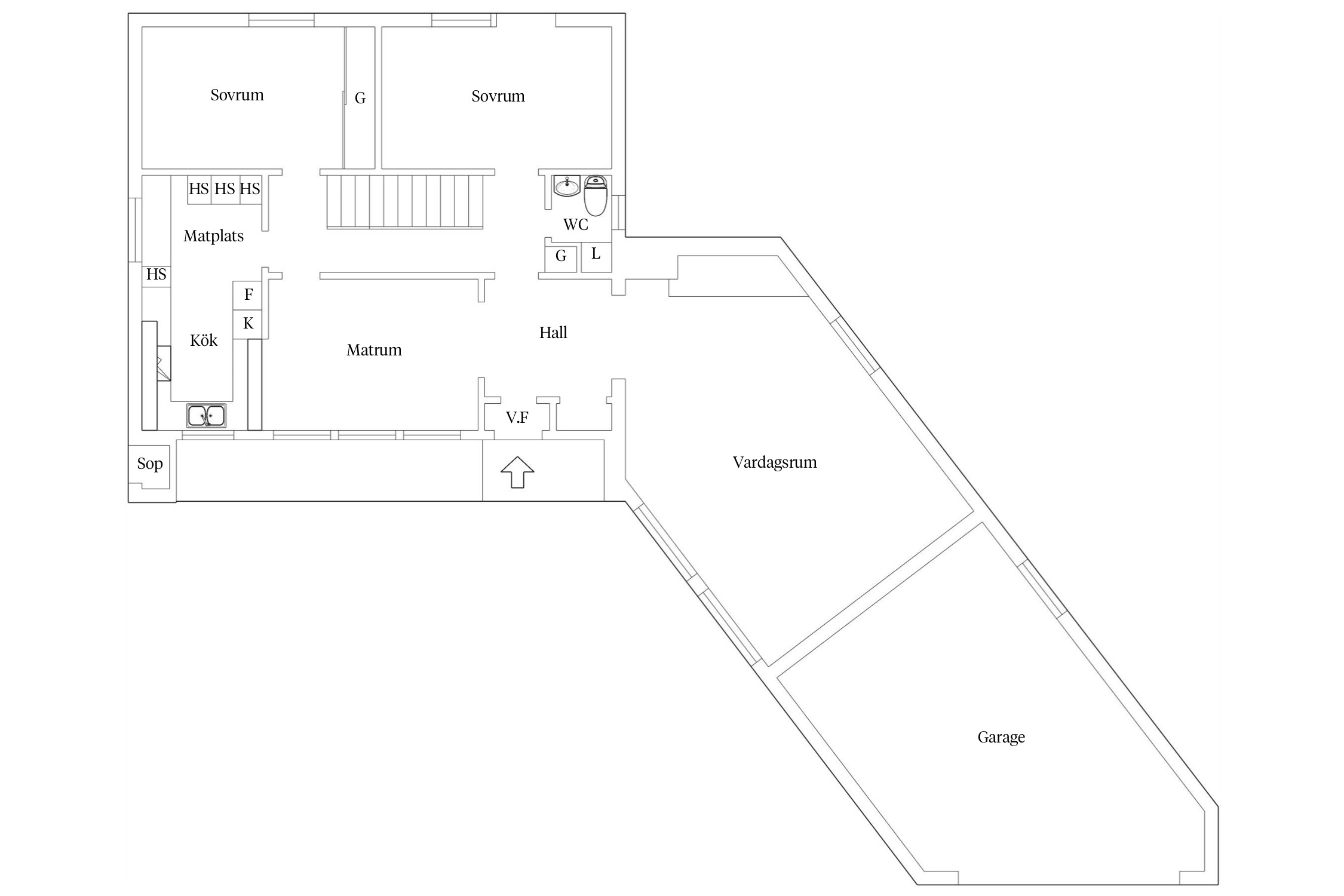
Modernistisk villa i Askim – arkitektritad av Johannes Olivegren
Askim, Göteborg
*Areauppgifter enligt taxeringsinformationen
Fyll i formuläret nedan så hjälper vi dig!



BO I POPULÄRA ASKIM
Bekvämt, naturskönt och stadsnära är för många ord som beskriver livskvalitet. Att se havets skiftningar över året, andas in den friska, salta luften och känna den där sköna tryggheten i sitt eget gemytliga hemmakvarter – det är också livskvalitet. Det sammanfattar livet i Askim ganska bra.
LIVSKVALITÉ PÅ HEMMAPLAN
Med sköna och gröna naturområden i ryggen och blicken mot havet är det lätt att njuta av Askim året om. Av såväl vinande höstvindar och klara, kalla vinterdagar med rimfrost och hög luft som ljumma, ljuva sommarkvällar, eller en promenad efter ett uppfriskande vårregn. Genom århundraden har familjer förstått att detta är platsen för att hitta harmoni och trivas. Det har skapat ett område med en skön blandning av villor i olika storlekar och stilar. Från pittoreska sekelskifteshus och sommarstugetorp till ultramoderna objekt - Bel-Air möter nyfunkis. Trots det havsnära läget och lugnet, känns Askim som en självklar del av staden och det är aldrig långt till närmsta butik. Till de centrala delarna av Göteborg tar det bara 20 minuter med expressbussarna eller varför inte ta cykeln längs Säröbanan? En nedlagd tågbana som förr transporterade badgäster till Askim och Särö – ett minne av svunna tiders exklusiva sommartillhåll.
NATURRESERVAT OCH BADPLATSER
Som boende i Askim är du nästan oförskämt bortskämd med badmöjligheter. Förutom havet finns inte bara en, utan två vackra badsjöar inom räckhåll. Du har Sisjön med fina motionsspår och naturstigar och Oxsjön vid kanten av Sandsjöbacka naturreservat med härliga strövområden och öppna ljunghedar. Längs Askimsviken finns många olika badplatser att välja på och som askimsbo hittar du dina egna smultronställen bland sandstränder och härliga klippor. Askimsbadet bjuder på en härlig badpir och varma sommardagar myllrar badet av soltörstande göteborgare. Desto mer rofyllt är det att slå sig ner med en bok och en kopp kaffe på piren en klar hösteftermiddag.
Askim är förstås mycket mer än så. Som om det inte vore nog med de naturliga grönområdena finns anrika Göteborgs golfklubb vilken är Sveriges äldsta golfbana. Du har också möjligheter till andra sporter som tennis, simning, fotboll och löpning eller varför längdskidåkning i fantastisk natur? Kort sagt - det blir aldrig tråkigt i Askim, tempot upplevs bara lite lugnare här.
Köpa, sälja eller värdera bostad i Askim? Kontakta våra mäklare i Västra Göteborg! Passa också på att anmäla dig till vår kostnadsfria söktjänst Boagenten som hjälper dig att hitta ditt drömboende.