-
Köpa
Köpa -
Sälja
Sälja - Hitta bostad
- Skapa bevakning
- Hitta mäklare
Gavelradhus i tre plan med bästa solläge i populära Sisjön.
Askim, Göteborg
*Areauppgifter enligt taxeringsinformationen
Bokad visning. Du kan även ringa Bjurfors Bokningscenter 031-761 79 50. Välkommen!
Bokad visning. Du kan även ringa Bjurfors Bokningscenter 031-761 79 50. Välkommen!
Rymligt och välplanerat gavelradhus nära natur och stad med generösa sällskapytor och fint ljusinsläpp.
Gavelradhus i tre plan i eftertraktade Sisjön – ett hem som kombinerar generösa ytor, fint ljusinsläpp och närhet till både natur och stad. Med generösa fönsterpartier två väderstreck erbjuds en härlig villakänsla och ett boende att trivas i från första stund.
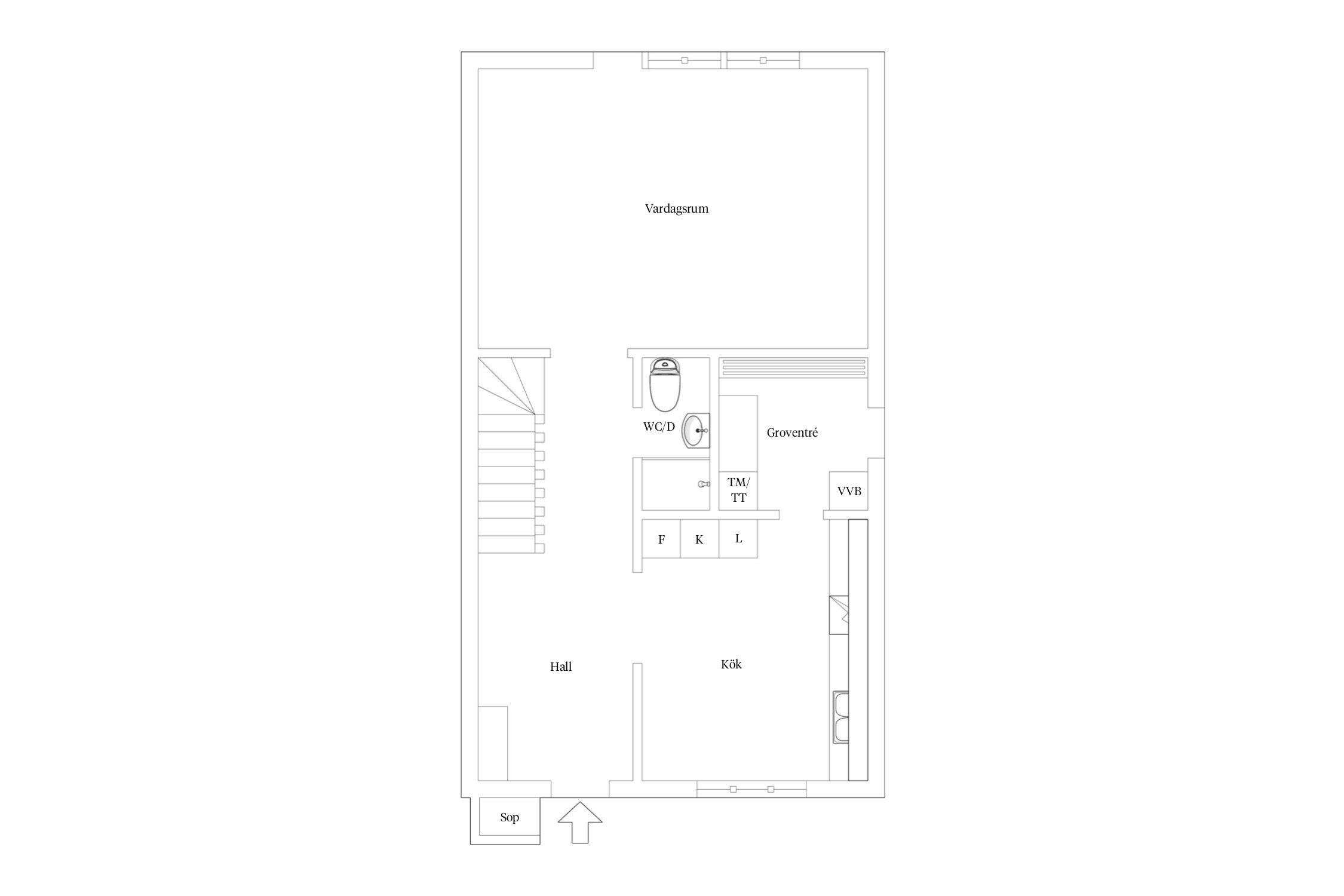
Bostaden är välplanerad och fördelad över tre plan med ett modernt kök i stilrena vita toner och en inbjudande matplats vid stort fönster i soligt västerläge. Entréplanet bjuder på sociala ytor med ett rymligt vardagsrum som rymmer både matsalsmöbel och soffgrupp, samt utgång till en generös uteplats där solen kan avnjutas under förmiddagen – perfekt för både avkoppling och umgänge.
På övre plan finns tre rymliga sovrum, en praktisk klädkammare samt ett helkaklat badrum. Källarplanet erbjuder ett stort och flexibelt allrum – idealiskt som tv-rum, lekyta eller tonårsavdelning – samt ett rymligt förråd som ger gott om förvaringsmöjligheter. Med ingång från köket finner vi tvättstugan med egen groventré och ett extra badrum finns i anslutning till hallen.
Bostaden är väl omhändertagen och renoverad med fokus på både funktion och trivsel, vilket skapar ett modernt och inflyttningsklart hem. Som gavelradhus upplever du en luftig känsla, tillsammans med flera uteplatser att välja mellan – en insynsskyddad altan på baksidan samt en lugn och möblerbar entrésida, där en soldränkt altan erbjuder sol från tidig lunch till sen kväll.
Huset är beläget vid en trivsam och grönskande gård med lugnt läge och sandlåda för barnen. Området är familjevänligt med bilfria gårdar och flera lekplatser. Garage i länga med möjlighet till elbilsladdning samt förråd finns.
Läget erbjuder det bästa av två världar – med naturen runt hörnet och stadens centrum inom bekvämt avstånd. Sisjön och Sandsjöbackas naturreservat nås enkelt och bjuder på badplatser, klippor samt fina promenad- och motionsspår. Förskola, skola och service finns nära till hands, och centrala Göteborg nås på cirka 20 minuter.



Kobbegården 6:684
*Areauppgifter enligt taxeringsinformationen
Kök helrenovering 2012 -Gjort själva, förutom vvs Goton Bygg
Badrum uppe helrenovering 2012 - Goton Bygg
Takbyte 2015 - Bosa Bygg
Källare - renovering av gillestuga 2016 - Själva, el Goton Bygg
Varmvattenberedare 2019
Kommunalt vatten, Kommunalt avlopp.
Stadsplan (1976-05-07)
Gemensamhetsanläggning: Göteborg kobbegården ga:16 ändamål: Vägar, Vattenförsörjning, Avloppsanläggning, Radio- TV och/eller tele, Elledning och/eller belysning
Det finns 13 st pantbrev uttagna om sammanlagt 3 061 500 kr
BO I POPULÄRA ASKIM
Bekvämt, naturskönt och stadsnära är för många ord som beskriver livskvalitet. Att se havets skiftningar över året, andas in den friska, salta luften och känna den där sköna tryggheten i sitt eget gemytliga hemmakvarter – det är också livskvalitet. Det sammanfattar livet i Askim ganska bra.
LIVSKVALITÉ PÅ HEMMAPLAN
Med sköna och gröna naturområden i ryggen och blicken mot havet är det lätt att njuta av Askim året om. Av såväl vinande höstvindar och klara, kalla vinterdagar med rimfrost och hög luft som ljumma, ljuva sommarkvällar, eller en promenad efter ett uppfriskande vårregn. Genom århundraden har familjer förstått att detta är platsen för att hitta harmoni och trivas. Det har skapat ett område med en skön blandning av villor i olika storlekar och stilar. Från pittoreska sekelskifteshus och sommarstugetorp till ultramoderna objekt - Bel-Air möter nyfunkis. Trots det havsnära läget och lugnet, känns Askim som en självklar del av staden och det är aldrig långt till närmsta butik. Till de centrala delarna av Göteborg tar det bara 20 minuter med expressbussarna eller varför inte ta cykeln längs Säröbanan? En nedlagd tågbana som förr transporterade badgäster till Askim och Särö – ett minne av svunna tiders exklusiva sommartillhåll.
NATURRESERVAT OCH BADPLATSER
Som boende i Askim är du nästan oförskämt bortskämd med badmöjligheter. Förutom havet finns inte bara en, utan två vackra badsjöar inom räckhåll. Du har Sisjön med fina motionsspår och naturstigar och Oxsjön vid kanten av Sandsjöbacka naturreservat med härliga strövområden och öppna ljunghedar. Längs Askimsviken finns många olika badplatser att välja på och som askimsbo hittar du dina egna smultronställen bland sandstränder och härliga klippor. Askimsbadet bjuder på en härlig badpir och varma sommardagar myllrar badet av soltörstande göteborgare. Desto mer rofyllt är det att slå sig ner med en bok och en kopp kaffe på piren en klar hösteftermiddag.
Askim är förstås mycket mer än så. Som om det inte vore nog med de naturliga grönområdena finns anrika Göteborgs golfklubb vilken är Sveriges äldsta golfbana. Du har också möjligheter till andra sporter som tennis, simning, fotboll och löpning eller varför längdskidåkning i fantastisk natur? Kort sagt - det blir aldrig tråkigt i Askim, tempot upplevs bara lite lugnare här.
Köpa, sälja eller värdera bostad i Askim? Kontakta våra mäklare i Västra Göteborg! Passa också på att anmäla dig till vår kostnadsfria söktjänst Boagenten som hjälper dig att hitta ditt drömboende.
Kontakta mäklaren om du behöver hjälp att ta fram en boendekalkyl.
När du köper din bostad genom Bjurfors kan du ansöka om bolån till en förmånlig ränta hos våra banksamarbetspartners Söderberg & Partners och SEB.
Bokad visning. Du kan även ringa Bjurfors Bokningscenter 031-761 79 50. Välkommen!
Bokad visning. Du kan även ringa Bjurfors Bokningscenter 031-761 79 50. Välkommen!