-
Köpa
Köpa -
Sälja
Sälja - Hitta bostad
- Skapa bevakning
- Hitta mäklare
Charmig trea med nyrenoverat kök och tidstypiska detaljer!
Bagaregården, Göteborg
*inkl. vatten, kabel-TV och bredband. Utöver månadsavgiften tillkommer ett obligatoriskt tillägg om 362 kr/mån för bränsle (värme).
**Areauppgifter enligt bostadsrättsförening och säljare
Förhandsvisning, hör av dig till ansvarig mäklare för mer information
På Förhand ligger bostäder som av olika anledningar inte är ute till försäljning just nu men som kan komma att säljas om förutsättningarna är rätt.
Bjurfors Century presenterar en unik lägenhet om tre rum och kök. Privat utgång till uteplats med plats för grill, middagsbord och loungedel!
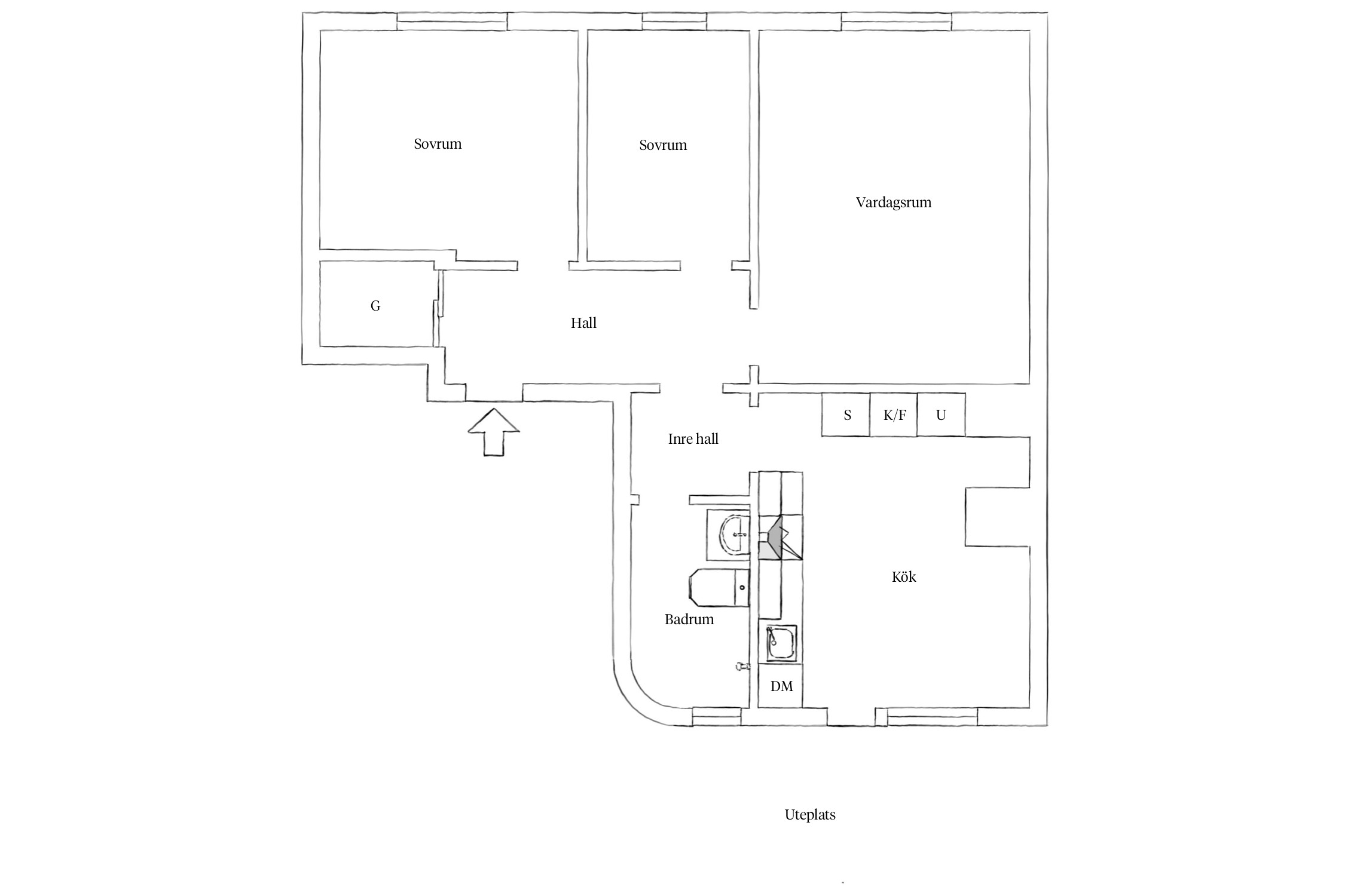
Äntligen presenteras en trea med privat utgång till den härliga uteplatsen i omtyckta BRF Renen. Här bjuds ni in i en bostad som omfamnas av en tidlös stil med delvis framtagna originalgolv och spröjsade fönster. Ljuset strömmar in genom stora fönsterpartier i motsatta väderstreck. Köket är generöst i sin storlek och en framtagen bit av tegelväggen skänker charm tillsammans med vit, liggande panel. Badrummet är renoverat i stilrena färg- och materialval med ny inredning. Både det stora och det mindre sovrummet är belägna i lugnt läge mot det grönskande berget utanför. Välkomna till en mycket trivsam lägenhet med fina sällskapsytor och med alla förutsättningar att trivas.
Det hörs nästan på namnet Bagaregården att det är ett av Göteborgs allra mysigaste områden, med vacker stadsbild och småskalig bebyggelse. Bagaregården är en liten pärla av klassicistisk och nationalromantisk arkitektur från tidigt 1900-tal. Tryggt undanskymt från stadspulsen som väntar bara några kvarter bort. Närliggande Redbergsplatsen erbjuder bra kommunikationer som enkelt tar dig vidare till stadens alla hörn. En kort promenad bort finner ni Olskrokstorget med mataffärer, butiker, apotek samt marknader. Cykelavstånd till Härlanda Tjärn och Skatås med dess grönområden och badplats. Här finns möjlighet till en mängd olika fritidsaktiviteter att ta del av året runt.
Varmt välkomna till en helt unik Bagaregårdspärla! Redan i hallen infinner sig en lugn och inbjudande atmosfär. Här finns gott om plats för både hatthylla och skoställ, medan den övriga förvaringen ryms i den rymliga klädkammaren med framtaget tegel och eleganta spegelskjutdörrar. Väggarna är målade i vitt och det vackra originalgolvet – omsorgsfullt slipat 2020 – löper genom hallen tillsammans med en praktisk klinkersektion vid ytterdörren. Spotlights installerades 2018 och ger ett fint ljus åt rummet.
Direkt till höger ligger badrummet som är generöst tilltaget och utrustat med ett praktiskt vädringsfönster. Kakel och klinker i grå, svart och vit ton skapar en stilren atmosfär. Kommod, blandare och spegelskåp byttes 2018 och här ryms även wc, duschdel och handdukstork på plats.
Köket är nu mycket inbjudande efter sin renovering 2024 och rymmer enkelt hela familjen. Här samsas ljusa luckor med en arbetsyta som harmonierar fint med det ljusa kaklet ovanför. Det ljusa golvet ihop med väggar målade i varm beige nyans ger en rogivande helhet. Köket är utrustat med hel kyl och frys, spis med häll, ugn, fläkt samt diskmaskin. En del av tegelväggen är framtagen även här och bidrar med karaktär tillsammans med en pärlspont i liggande vit panel. Dagsljuset strömmar in genom det stora fönsterpartiet som leder ut till den härliga terrassen. Vid köksutgången har ägarna en loungehörna och matplats, men terrassen kan nyttjas av alla i föreningen.
Det vackra golvet leder oss in till vardagsrummet som med sina härliga väggar ger en fin bas att inreda till. Här ryms en större soffgrupp samt tv-möbel om så önskas. Tack vare det lugna läget mot skogspartiet ramas denna sida av lägenheten in av en grönskande oas när träden börjar blomma utanför fönstren.
Master bedroom inrymmer dubbelsäng med sängbord samt byrå eller skrivbord. Här vilar ljust och nyslipat brädgolv som tillsammans med en grön fondvägg skapar en lugn känsla. Att lägenheten ligger centralt är inget som påverkar sömnen, tjocka väggar och läget mot skogen gör det alldeles tyst och rogivande.
Det mindre sovrummet har fina brädgolv tillsammans med ljusa väggar. Rummet lämpar sig perfekt som barnrum eller hemmakontor.



*Areauppgifter enligt bostadsrättsförening och säljare
inkl. vatten, kabel-TV och bredband. Utöver månadsavgiften tillkommer ett obligatoriskt tillägg om 362 kr/mån för bränsle (värme).
Privat utgång till föreningens gemensamma uteplats.
Boendeparkering i området. Boendekort kan sökas via Göteborgs stad, 031-368 25 65.
Göteborgs Stads Parkerings ABs har parkeringsplatser vid Redbergsskolan. Till dessa är det separat kö.
Bostadsrättens indirekta nettoskuldsättning baseras på föreningens skulder/lån minus föreningens räntebärande tillgångar och likvida medel. Beräkningen är gjord via Bopedia. För mer information kontakta ansvarig fastighetsmäklare.
*Betalas av säljare
Föreningen bildades år 1985 och består av 93 bostadsrättslägenheter och 9 lokaler på Ånäsvägen 2-16. Lägenheterna är indelade i 30 st. 2:or, 47 st. 3:or, 11 st. 4:or och 5 st. 5:or.
Avgiftsförändringar:
Föreningen höjde senast avgifterna 2012. Föreningen sänkte månadsavgifterna med 5 procent från och med februari 2022. Det berodde på att föreningen har en god ekonomi och intäkterna är större än vad föreningen har behov av, även med hänsyn till kommande utgifter och underhåll.
För mer information se årsredovisning och föreningens hemsida: www.brfrenen.se.
Utförda renoveringar:
1985: Stambyte avloppsstammar.
2009: Entréportar samt trappuppgångar renoverades.
2010: Installation av portlås, porttelefon, injustering av värmesystemet och installation av brandlarm. Renovering av tvättstugor.
2012-2013: Tvätt och målning av tak samt fasad och delvis panelbyte. Fönsterrenovering. Nytt ventilationsaggregat för Halta Lottas restaurang som numera är Masala Kitchen. Nytt fläktaggregat. Ny mangel till tvättstugan. Nytt kök i föreningslokalen. Nytt staket till lekplatsen.
2016: OVK-besiktning.
2017: Fettavskiljare installerad i restauranglokalen för Masala Kitchen. Pulverbomber installerade i soprummen för att utöka brandsäkerheten.
2019: Fasader och plåttak som vetter mot innergården har målats och stuprör har bytts ut.
2020: Installation av portkodsystem. Målning av fasad och plåttak som vetter ut mot gatan färdigställdes under hösten 2020.
2021: Återställande av skyddsrum
2022: Byte av lås i gemensamma utrymmen, Ny vippgunga i sandlådan
2023: Markarbeten på Ånäsvägen, Renovering av ekportar, Ersättning av trappa på terrassen
2024: OVK lägenheter, OVK lokaler, Ompackning av hydraulcylindrar hissar, Åtgärder fukt i källare samt renovering / omläggning av stentrappa
Föreningen har en underhållsplan som upprättades 2018 och sträcker sig 30 år framåt.
Kommande renoveringar:
2025: Åtgärder fukt i källare mot Ånäsvägen, Fasadtvätt, Färdigställande av OVK för lokaler, Färdigställande av OVK för lägenheter, Taktvätt
2026:Renovering och målning av trapphus, Arbete tegelfasad
2035: Relining och / eller stambyte
Boendeparkering i området. Boendekort kan sökas via Göteborgs stad, 031-368 25 65.
Göteborgs Stads Parkerings ABs har parkeringsplatser vid Redbergsskolan. Till dessa är det separat kö.
TV: Alla kanaler i grundutbudet är digitala. Önskas fler kanaler beställs och bekostas detta av medlem.
Internet: Bredband via Bahnhof, 1000/1000 Mbit. Ingår i månadsavgiften.
Föreningen har en stor innergård – som är uppdelad i tre gårdar – mellangården, norrgården och södergården. Här finns flera olika sittgrupper och möjligheter att grilla. På mellangården finns en sandlåda för barn. Några av föreningens medlemmar tar ansvar för att ta hand om blommorna i våra planteringar.
Det finns cykelförråd om man vill parkera sin cykel inomhus, här ryms också barnvagnar. Det finns också flera cykelställ på gårdarna.
Varje lägenhet har ett vinds- eller källarförråd.
Föreningen har två större gemensamma tvättstugor. Det är lätt att få tvättid som bokas via en app i din mobil eller på digital tavla i tvättstugorna. Många lägenheter har också egna tvättmaskiner.
Det finns en föreningslokal med pentry som kan hyras separat om man ska ha kalas.
Föreningen har ett nyrenoverat gästrum med 3-4 sovplatser och toalett. Det går att boka för att använda som extra sovplatser vid besök. Gästrummet kostar 200 kr/natt att hyra.
BO I GEMYTLIGA BAGAREGÅRDEN
Det hörs nästan på namnet att här ligger ett av Göteborgs allra mysigaste områden, med vacker stadsbild och småskalig bebyggelse. Bagaregården är en liten pärla av klassicistisk och nationalromantisk arkitektur från tidigt 1900-tal. Tryggt undanskymt från stadspulsen som väntar bara några kvarter bort.
TA ETT DOPP I HÄRLANDA TJÄRN
Det första som möter dig när du kommer till Bagaregården är landshövdingehusen, ursprungligen byggda som bostäder åt arbetarna på SKF och Gamlestadens Fabriker. Några av dem har sirligt utsmyckade fasader, medan andra är försedda med burspråk, takkupor eller runda gavelfönster. Istället för inneslutna gårdar bildar flera hus en gemensam kvartersgård, med små lekplatser, odlingar och statyer här och var. På var sida om området går spårvagnsspåren, som snabbt tar dig in till centrum, österut mot Gamlestaden eller västerut genom Kålltorp och Örgryte mot Korsvägen. Till Härlanda tjärn är det promenadavstånd och därefter ligger hela Delsjöområdet och väntar på dig för att utforskas.
ÄPPELTRÄDEN SOM VÄRNAR OM FAMILJEN
Bagaregården är det första området som stadsingenjören Albert Lilienberg planlade i början av förra seklet. Lilienberg ville skapa en stadsmiljö som var mer anpassad efter terrängen och där huskroppar och svängda gator tillsammans med växtlighet och detaljer som lyktstolpar, räcken och skulpturer skapade ett stadsrum. Samma känsla känns igen i flera andra Lilienbergsområden, som Änggården, Kungsladugård och Kålltorp. Blandningen av radhus, småhus och landshövdingehus är också typiskt för stadsplanen. Egnahemsområdet som ligger i södra delen av Bagaregården är en gemytlig trädgårdsstad som började byggas 1911 och sedan fortsatte att byggas ut fram till ca 1940. Detta var tider som föregåtts av flera perioder av matbrist och undernäring i Sverige och det bestämdes därför att det i varje trädgård skulle planteras ett äppelträd, för att säkerställa att familjerna åtminstone skulle få i sig lite näring ifall det blev kristider igen. Många av dessa ”nödäppelträd” finns kvar. Ta en promenad i kvarteren och se efter om trädens placering kan avslöja om de är original eller om träden planterats av senare generationers ägare.
BRÖDKULTUR OCH KULTURFÄNGELSE
Namnet Bagaregården förpliktigar och självklart kan du hitta ditt eget favoritbageri längs huvudstråken Ånäsvägen och Stockholmsgatan, där du också hittar ett flera butiker och caféer. Visst låter det ljuvligt att gå ut och köpa sitt frukostbröd tvärs över gatan, duka upp en kaffebricka och slå sig ner ute på gården en solig sommarmorgon? Och visst är det så att namnet Bagaregården kommer från en bagare, som bodde på Landeriet Bagaregården på 1600-talet. Själva Landeribyggnaden är troligen byggd långt senare och har bland annat varit fritidsgård, bibliotek och kulturhus men sedan Kulturhuset Kåken öppnade har byggnaden fungerat som kontor. Kulturhuset Kåken har förresten gett kultur- och fritidslivet ett uppsving i stadsdelen. Inhyst i det gamla fängelset Härlanda rymmer det både bibliotek, café, konstutställningar och öppen förskola.
Köpa, sälja eller värdera bostad i Bagaregården? Kontakta våra mäklare i Göteborg! Passa också på att anmäla dig till vår kostnadsfria söktjänst Boagenten som hjälper dig att hitta ditt drömboende.
Kontakta mäklaren om du behöver hjälp att ta fram en boendekalkyl.
När du köper din bostad genom Bjurfors kan du ansöka om bolån till en förmånlig ränta hos vår samarbetspartner SEB.
Förhandsvisning, hör av dig till ansvarig mäklare för mer information
Ansvarig mäklare
Extra kontaktperson