-
Köpa
Köpa -
Sälja
Sälja - Hitta bostad
- Skapa bevakning
- Hitta mäklare
Trivsamt boende i Helgered – mitt emellan stadens puls och havets lugn.
Centrala Hisingen - Helgered, Göteborg
*Areauppgifter enligt säljaren
Bokad visning. Du kan även ringa Bjurfors Bokningscenter 031-761 79 50. Välkommen!
På Förhand ligger bostäder som av olika anledningar inte är ute till försäljning just nu men som kan komma att säljas om förutsättningarna är rätt.
Välskött enplansvilla i natursköna Helgered – ett harmoniskt boende nära naturen.
Mitt emellan stad och hav, i naturnära Helgered, ligger denna välskötta enplansvilla. Huset har genomgått omfattande renoveringar under åren med bland annat nytt tak, dränering, nya fönster samt uppdaterat kök och badrum. Uppvärmning sker via ett energieffektivt vattenburet system kopplat till luft/vattenvärmepump, vilket ger låga driftskostnader och god komfort.
Området erbjuder ett bekvämt och familjevänligt läge med närhet till busshållplats, vackra strövområden i Hisingsparken samt den populära föräldrakooperativa förskolan Helge. Inom promenadavstånd finns även golfbana med café och 4H-gården Kättilsröd. För den som uppskattar hav och båtliv nås både Björlanda Kiles båthamn och Lilleby havsbad på cirka tio minuter.



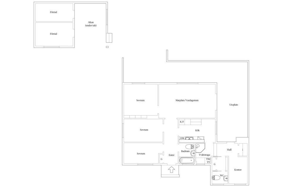
Entréplan
Helgered 1:75
*Areauppgifter enligt säljaren
2025
-Service och byte av fläkt i värmeväxlare (CTC)
-Eldragning till bilplats
2024
-Ny frys, Samsung med automatisk avfrostning
2022
-Ny spisfläkt (Fjäråskupan)
-Ny rullgardin vid balkongdörr
2021
-Omfattande trädgårdsanläggning
-Stenläggning och plattor
-Kantstål i corten
-Odlingslådor
-Planteringar och detaljer i trädgården
-Ny postlåda
2019
-Byte av ytterdörrar och fönster (Ekstrands)
2018
- Nya rullgardiner och persienner
2017
- Omläggning av tak
2015
- Indragning av fiber
2011–2012
- Dränering runt huset
- Nya hängrännor och stuprör
- Tillbyggnad/uppgradering av friggebod
2009
- Installation av värmeväxlare (CTC)
2005
- Nytt kök från Hagaköket
- Nya vitvaror
- Nytt kakel och klinker
- Ombyggnation samt el- och VVS-arbeten
2004
- Duschkabin och handdukstork i tvättstuga
- Ny rör- och eldragning
2003–2004
- Byte till automatsäkringar
- Nya elledningar i hela huset
2001–2003
- Totalrenovering av badrum
- Bubbelbadkar
- Vägghängd WC
- Kakel och klinker
- Uppdaterad el, VVS och ventilation
1998
- Installation av markis
1997
- Klinkergolv med golvvärme i hall, WC, elrum, pannrum och tvättstuga
1996
- Byte av altandörr
- Anläggning av parkeringsplats inklusive sprängning, asfaltering och ombyggd trappa
1994
- Nya innertak i tvättstuga, hall och elrum
1993
- Installation av vattenutkastare utomhus
1991
- Anläggning av uteplats i väster med plattor och stödmur
1988–1989
- Uppförande av extra WC
1987
- Byte av köksfönster
1982
- Uppförande av friggebod
1978
- Byte av ytterdörr (baksida)
1977
- Installation av tvättmaskin och tvättbänk (el och vatten)
1976
- Ny taklucka till vind
- Ny belysning på vinden
- Tilläggsisolering och nytt golv på vinden
Kommunalt vatten och avlopp.
Byggnadsplan (1959-06-09)
Gemensamhetsanläggning: Göteborg helgered ga:3 ändamål: Vägar, Grönområden, Garage och/eller parkering
Förmån: Officialservitut Väg, 14-BJL-1047.1
Fiber
Posten Uppvärmning inkluderar även kostnad för elförbrukning och elnät.
Vatten och avlopp inkluderar även kostnad för renhållning.
Driftkostnaden kan variera beroende på avtal och personlig förbrukning.
Helgered på Hisingen är ett omtyckt och barnvänligt område som erbjuder ett tryggt boende i lugna villakvarter med naturen precis runt knuten. Här bor familjen med närhet till stora grönområden, lekvänliga omgivningar samt Hisingsparken, ett av Göteborgs största naturområden med promenadstigar, öppna ytor och gott om plats för lek, cykling och utflykter året om.
I närområdet finns flera förskolor och skolor inom bekvämt avstånd, vilket gör vardagen smidig för barnfamiljen. Den populära Föräldrakooperativet Helge Förskola ligger i direkt närhet i en trygg och naturnära miljö. För äldre barn finns grundskolor i närliggande stadsdelar, och kollektivtrafiken gör det enkelt att ta sig vidare till både skolor och aktiviteter runt om i Göteborg.
Området har goda bussförbindelser som möjliggör smidig pendling till centrala Göteborg, samtidigt som barnen kan växa upp i en lugn och skyddad villamiljö. Närheten till naturen ger fina möjligheter till ett aktivt familjeliv med promenader, cykelturer och spontana utflykter. I Hisingsparken ligger även Kättilröds 4H-gård, en mycket uppskattad mötesplats för barn med djur, lek och pedagogiska aktiviteter.
För varma sommardagar finns flera badplatser längs Hisingens kust inom kort bil- eller cykelavstånd, där både strandliv, krabbfiske och salta dopp blir en naturlig del av familjens fritid. Sammantaget erbjuder Helgered ett idealiskt boende för barnfamiljen som söker trygghet, närhet till skolor och förskolor, rikligt med natur och enkel tillgång till både stad och hav.
Det finns 9 st pantbrev uttagna om sammanlagt 2 000 000 kr
Hisingen är Sveriges fjärde största ö, även kallad Göteborgs Manhattan omgärdad av Göta älv i syd och öster, Nordre älv i norr samt Kattegatt i väster. På Hisingen finner du ett komplett serviceutbud kombinerat med vacker natur och närhet till havet. Bebyggelsen är blandad med både flerbostadshus och villor.
Brämaregården består främst av s.k. landshövdingehus, dvs. trevåningshus där bottenvåningen är anlagd i sten, medan övre våningar är uppförda i trä. Kvilletorget är områdets centrum och här finner man butiker och restauranger. Nya Kvillebäcken har blivit en attraktiv stadsdel precis bredvid Backaplan. Här finns bland annat den omåttligt populära Kville Saluhall. Norr om Kvillebäcken har trädgårdsstaden Hildedal växt fram. Här finner man lägenheter i flerbostadshus och parhus med antingen balkonger eller egen trädgård. Här är grönytorna lika viktiga som byggnaderna och området liknar en liten småstad med parker och andra gemensamma gröna ytor.
Lundby är en stor stadsdel på Hisingen där invånarantalet ökar snabbt i takt med att fler och fler bostadsområden byggs. I några delar är det flerfamiljshusen som dominerar, men här finner man även villaområden samt industriområden. Det finns ett rikt näringsliv med företag i alla storlekar.
På Centrala Hisingen ligger Keillers Park med Ramberget. Berget, som är 87 meter högt, är ett markant landmärke och utsikten från toppen är en av Göteborgs bästa. Hisingsparken är ett annat utflyktsmål som är värt ett besök, det är Göteborgs största park med gott om gångvägar och stigar.
I närheten finner man även området Norra Älvstranden. Det är ett av Göteborgs mest expansiva områden och här finner man vackra promenadstråk och bostadskvarter precis vid kajkanten.
Det finns flera grundskolor och gymnasium i de olika stadsdelarna på Hisingen. För de mindre barnen kan man välja mellan flera olika förskolor, både kommunala och enskilda eller dagbarnvårdare. Vid Lindholmen finner man IT-universitet som är en gemensam satsning mellan Göteborgs Universitet och Chalmers tekniska högskola.
Gillar man shopping finns flera shoppingområden. Backaplan är det största shoppingområdet och här finner du de flesta stora affärskedjor. Med buss eller spårvagn når man innerstaden på bara några minuter.
Innan Bohuslän blev svenskt från att tidigare tillhört Danmark/Norge gick landsgränsen längs med Hisingens gränser. På 1800-talet började industrialiseringen av ön och under större delen av 1900-talet låg flera ledande verkstäder och varv där. Bland dem kan nämnas varven Götaverken, Eriksberg, Lindholmen och Arendalsvarvet. Volvo startade sin verksamhet på Hisingen under 1920-talet.
Bor man på Hisingen har man alltid nära till havet. På några få minuter når du centralstationen och innerstaden med antingen buss eller spårvagn.
Köpa, sälja eller värdera bostad på Hisingen-Helgered? Kontakta våra Bjurfors mäklare på Hisingen! Passa också på att anmäla dig till vår kostnadsfria söktjänst Boagenten som hjälper dig att hitta ditt drömboende.
Kontakta mäklaren om du behöver hjälp att ta fram en boendekalkyl.
När du köper din bostad genom Bjurfors kan du ansöka om bolån till en förmånlig ränta hos vår samarbetspartner SEB.
Bokad visning. Du kan även ringa Bjurfors Bokningscenter 031-761 79 50. Välkommen!
Ansvarig mäklare