-
Köpa
Köpa -
Sälja
Sälja - Hitta bostad
- Skapa bevakning
- Hitta mäklare
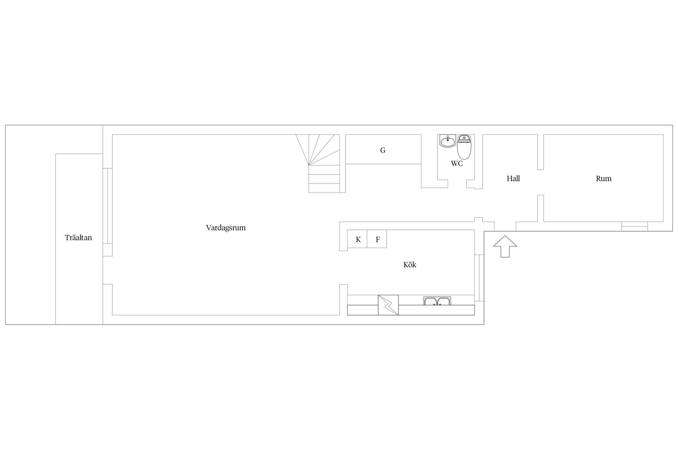
Barnvänligt radhus med två uteplatser och fyra möjliga sovrum – Drakblommegatan 42
Centrala Hisingen - Kvillebäcken, Göteborg
*Areauppgifter enligt taxeringsinformationen
Bokad visning.
I ett lugnt och trivsamt kvarter, omgivet av grönska och lekplatser, välkomnas du till detta lättskötta radhus med två uteplatser och välplanerade ytor. Bostaden är varsamt uppdaterad med bland annat renoverat kök, fräscha ytskikt och ett extra sovrum tillbyggt på entréplan – vilket gör det möjligt att bo med upp till fyra sovrum. Här får du ett hem som passar såväl den växande familjen som dig som söker ett smidigt och bekvämt boende med närhet till allt.
Den charmiga tomten erbjuder både solig framsida och en privat baksida – perfekt för både vardagsliv och umgänge. I området bor många barnfamiljer och det är gångavstånd till både förskolor och Bjurslättsskolan. På några minuter promenerar du till populära grönområden som Slätta Damm, Keillers park och Hisingsparken – med naturupplevelser året om.
På kort gångavstånd har ett nytt och pulserande Kvillebäcken vuxit fram med saluhall, restauranger, butiker, bibliotek och gym. För den sportintresserade finns Bravida Arena och Lundbybadet nära, och omvandlingen av Backaplan och Frihamnen kommer ytterligare lyfta området – med framtida bastu, sandstrand och stadsbad. Läget är perfekt för dig som vill ha närhet till både city och arbetsplatser som Volvo, Lindholmen och Eriksberg.
Med cykel eller buss når du centrum på bara några minuter – här är kommunikationerna helt enkelt svårslagna.
Varmt välkommen att upptäcka ett radhus med både charm och funktion, i ett område som fortsätter utvecklas. Kontakta mäklaren för mer information eller för att boka visning.



Kvillebäcken 42:3
*Areauppgifter enligt taxeringsinformationen
2025
Nya fönster i kök och badrum
Nya persienner på övre plan samt köket
2024
Oljad altan
Förråd och entré ommålad
2023
Stambyte
2019
Ny altandörr samt två nya fönster bytta i sovrum
Renoveringar av tidigare ägare
2012
Badrum
2007
Kök
2005
Nytt papptak
Maskinell utrustning
2019
Diskmaskin Electrolux
2012
Torktumlare Bosch
2007
Spis Electrolux
Frys Samsung
Kyl Samsung
Tvättmaskin Cylinda
Altan på framsida med norrläge.
Altan på baksidan i söderläge
Kommunalt vatten, Kommunalt avlopp.
Tomträtt
Samfälligheten förfogar över 14 parkeringsplatser samt 4 garageplatser.
Varje hushåll är garanterat en parkeringsplats. För den som önskar garageplats finns möjlighet att ställa sig i kö. Garageplatserna är kostnadsfria och i regel byter en plats användare årligen.
Den som disponerar garageplats har även rätt att parkera en andra bil framför garaget. Däremot kan man inte samtidigt ha både garageplats och parkeringsplats.
Tomtindelning (1959-08-14) Stadsplan (1958-04-22)
Gemensamhetsanläggning: Göteborg kvillebäcken ga:2 ändamål: Vägar, Vattenförsörjning, Avloppsanläggning, Grönområden, Garage och/eller parkering, Kvartersanläggning
Last: Avtalsservitut Ledning mm, 14-IM1-60/2135A.1
Förmån: Avtalsservitut Ledning mm, 14-IM1-60/2131A.1
Förmån: Avtalsservitut Ledning mm, 14-IM1-60/2133A.1
Förmån: Avtalsservitut Ledning mm, 14-IM1-60/2137A.1
Förmån: Avtalsservitut Ledning mm, 14-IM1-60/2139A.1
Förmån: Avtalsservitut Ledning mm, 14-IM1-60/2141A.1
Förmån: Avtalsservitut Ledning mm, 14-IM1-60/2143A.1
Förmån: Avtalsservitut Ledning mm, 14-IM1-60/2145A.1
Förmån: Avtalsservitut Ledning mm, 14-IM1-60/2147A.1
Förmån: Avtalsservitut Ledning mm, 14-IM1-60/2149A.1
Förmån: Avtalsservitut Ledning mm, 14-IM1-60/2150A.1
Förmån: Avtalsservitut Ledning mm, 14-IM1-60/2152A.1
Förmån: Avtalsservitut Ledning mm, 14-IM1-60/2154A.1
Förmån: Avtalsservitut Ledning mm, 14-IM1-60/2156A.1
Förmån: Avtalsservitut Ledning mm, 14-IM1-60/2158A.1
Förmån: Avtalsservitut Ledning mm, 14-IM1-60/2160A.1
Förmån: Avtalsservitut Ledning mm, 14-IM1-60/2162A.1
Förmån: Avtalsservitut Ledning mm, 14-IM1-60/2164A.1
Förmån: Avtalsservitut Ledning mm, 14-IM1-60/2166A.1
Förmån: Avtalsservitut Tvättstuga mm, 14-IM1-60/2128.1
Tele 2 genom samfällighet
Avtalsservitut Ledning mm
I samfällighetsavgiften ingår gemensam tvättstuga, Tele2 bredband, Tele 2 kabel-TV, en parkeringsplats, värme, vatten och avlopp.
Obs, tomträttsavgälden är avdragsgiltig på den årliga skatten likt ränteavdraget fråga mäklaren om mer information.
Observera att driftskostnaderna varierar beroende på familjestorlek och förbrukning
Det finns 16 st pantbrev uttagna om sammanlagt 3 417 000 kr
Hisingen är Sveriges fjärde största ö, även kallad Göteborgs Manhattan omgärdad av Göta älv i syd och öster, Nordre älv i norr samt Kattegatt i väster. På Hisingen finner du ett komplett serviceutbud kombinerat med vacker natur och närhet till havet. Bebyggelsen är blandad med både flerbostadshus och villor.
Brämaregården består främst av s.k. landshövdingehus, dvs. trevåningshus där bottenvåningen är anlagd i sten, medan övre våningar är uppförda i trä. Kvilletorget är områdets centrum och här finner man butiker och restauranger. Nya Kvillebäcken har blivit en attraktiv stadsdel precis bredvid Backaplan. Här finns bland annat den omåttligt populära Kville Saluhall. Norr om Kvillebäcken har trädgårdsstaden Hildedal växt fram. Här finner man lägenheter i flerbostadshus och parhus med antingen balkonger eller egen trädgård. Här är grönytorna lika viktiga som byggnaderna och området liknar en liten småstad med parker och andra gemensamma gröna ytor.
Lundby är en stor stadsdel på Hisingen där invånarantalet ökar snabbt i takt med att fler och fler bostadsområden byggs. I några delar är det flerfamiljshusen som dominerar, men här finner man även villaområden samt industriområden. Det finns ett rikt näringsliv med företag i alla storlekar.
På Centrala Hisingen ligger Keillers Park med Ramberget. Berget, som är 87 meter högt, är ett markant landmärke och utsikten från toppen är en av Göteborgs bästa. Hisingsparken är ett annat utflyktsmål som är värt ett besök, det är Göteborgs största park med gott om gångvägar och stigar.
I närheten finner man även området Norra Älvstranden. Det är ett av Göteborgs mest expansiva områden och här finner man vackra promenadstråk och bostadskvarter precis vid kajkanten.
Det finns flera grundskolor och gymnasium i de olika stadsdelarna på Hisingen. För de mindre barnen kan man välja mellan flera olika förskolor, både kommunala och enskilda eller dagbarnvårdare. Vid Lindholmen finner man IT-universitet som är en gemensam satsning mellan Göteborgs Universitet och Chalmers tekniska högskola.
Gillar man shopping finns flera shoppingområden. Backaplan är det största shoppingområdet och här finner du de flesta stora affärskedjor. Med buss eller spårvagn når man innerstaden på bara några minuter.
Innan Bohuslän blev svenskt från att tidigare tillhört Danmark/Norge gick landsgränsen längs med Hisingens gränser. På 1800-talet började industrialiseringen av ön och under större delen av 1900-talet låg flera ledande verkstäder och varv där. Bland dem kan nämnas varven Götaverken, Eriksberg, Lindholmen och Arendalsvarvet. Volvo startade sin verksamhet på Hisingen under 1920-talet.
Bor man på Hisingen har man alltid nära till havet. På några få minuter når du centralstationen och innerstaden med antingen buss eller spårvagn.
Köpa, sälja eller värdera bostad på Hisingen- Kvillebäcken? Kontakta våra Bjurfors mäklare på Hisingen! Passa också på att anmäla dig till vår kostnadsfria söktjänst Boagenten som hjälper dig att hitta ditt drömboende.
Kontakta mäklaren om du behöver hjälp att ta fram en boendekalkyl.
När du köper din bostad genom Bjurfors kan du ansöka om bolån till en förmånlig ränta hos vår samarbetspartner SEB.
Bokad visning.
Extra kontaktperson