-
Köpa
Köpa -
Sälja
Sälja - Hitta bostad
- Skapa bevakning
- Hitta mäklare
Välplanerad fyra med balkong i västerläge!
Hisings Kärra, Göteborg
*I avgiften ingår värme, vatten, kabel-TV och bredband. Separat mätning av el tillkommer på avgiften efter egen förbrukning. Utöver månadsavgiften tillkommer ett obligatoriskt tillägg på 254 kr/mån som avser garage.
Bokad visning.
Två badrum och modernt kök. Här bor du i ett lugnt område med närhet till matbutik och bussförbindelser som tar dig till centrala Göteborg på 20 min!
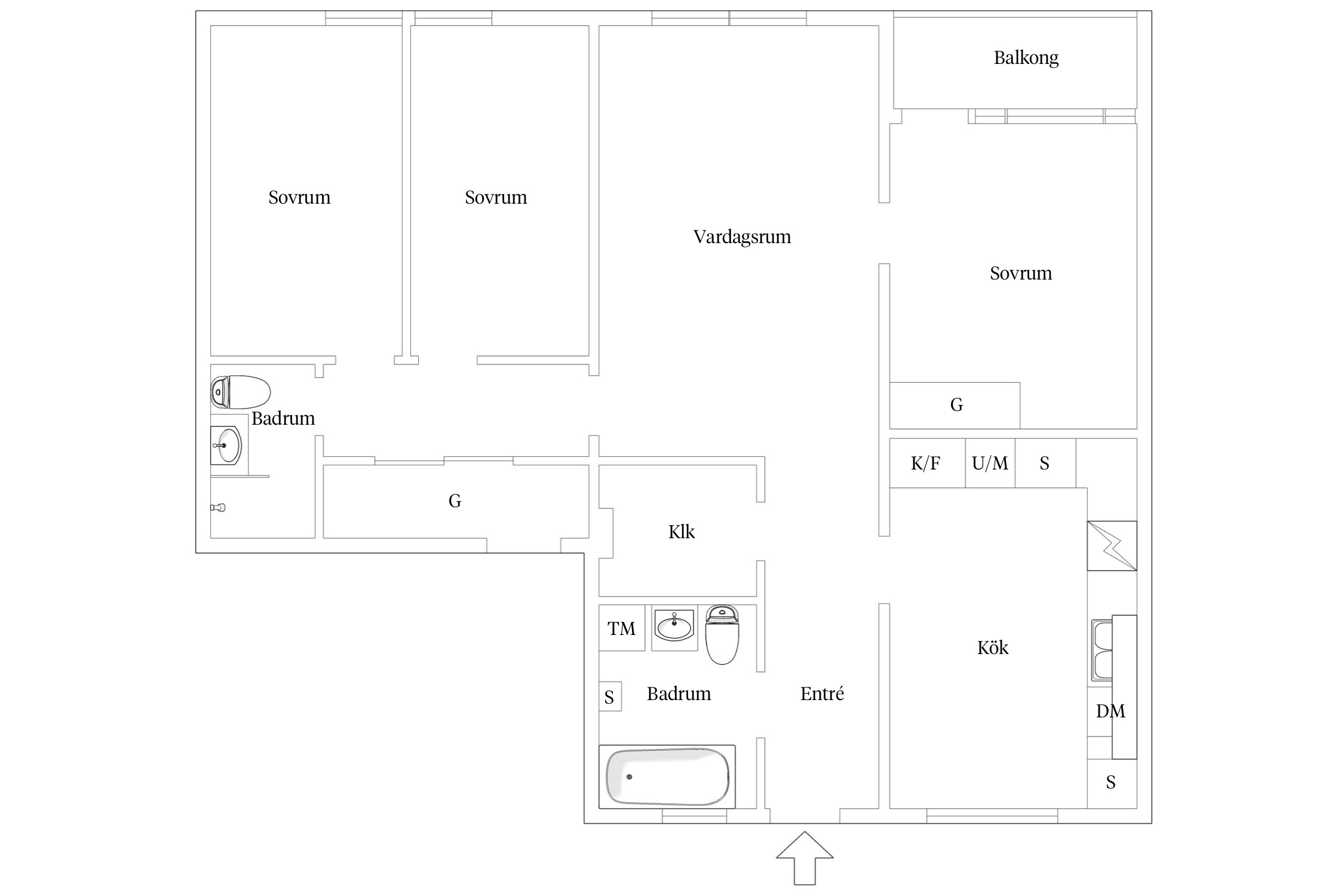
Här erbjuds en generös och mycket välplanerad bostad om 97,7 kvm fördelad på fyra rum och kök. Lägenheten har sitt ursprung i två separata bostäder som slagits samman, vilket ger en flexibel planlösning med två ingångar – en idealisk lösning för den större familjen, generationsboende eller för dig som önskar extra avskildhet.
Du välkomnas in via huvudentrén som nås från loftgången. Här möts du av en rymlig hall med goda förvaringsmöjligheter, bland annat i form av en stor klädkammare. Bostaden erbjuder två helkaklade badrum som inom kort kommer att renoveras i samband med föreningens stambyte. Köket är renoverat i modernt utförande och fullt utrustat för att möta vardagens behov.
Det luftiga vardagsrummet skapar en naturlig samlingspunkt för familj och vänner. Lägenheten rymmer tre sovrum, varav ett med utgång till balkong i soligt västerläge. De två övriga sovrummen är något mindre och ligger mer avskilt från de sociala ytorna, vilket ger en lugn och privat atmosfär.
Här bor du i ett trivsamt och lugnt område med närhet till både natur och service. På bekvämt promenadavstånd ligger Kärra centrum med matbutik, apotek, café, tandvård och simhall. Skola och förskola finns i närområdet och goda bussförbindelser tar dig in till city på cirka 20 minuter.
Ett perfekt boende för dig som vill kombinera närhet till stadens puls med ett naturnära och familjevänligt läge



I avgiften ingår värme, vatten, kabel-TV och bredband. Separat mätning av el tillkommer på avgiften efter egen förbrukning. Utöver månadsavgiften tillkommer ett obligatoriskt tillägg på 254 kr/mån som avser garage.
Till lägenheten hör en garageplats till en kostnad om 254 kr/mån.
Bostadsrättens indirekta nettoskuldsättning baseras på föreningens skulder/lån minus föreningens räntebärande tillgångar och likvida medel. Beräkningen är gjord och baseras på senaste tillgängliga årsredovisningen. För mer information kontakta ansvarig fastighetsmäklare.
Detta är enbart riktvärden och kan variera beroende på avtal och förbrukning.
*Betalas av säljare
Förening: HSB Brf Hisings Kärra
HSB Brf Hisings Kärra består av 460 lägenheter samt ett antal lokaler fördelat på 15 huskroppar. Bostäderna var klara för inflyttning 1972-1973. Föreningen innehar fastigheterna med tomträtt.
Avgiften höjdes med 10% 1/7-2025. Vänligen observera att föreningen har upplyst om att det inte går att ge klara besked i förtid om planerade justeringar av avgiften, då det finns faktorer som kan påverka utfallet fram tills dess att budget och avgiftsjustering fastställs av styrelsen.
Föreningen är fullvärdesförsäkrad i Länsförsäkringar och har ett kollektivt bostadsrättstillägg.
Genomförda renoveringar:
2009 - Renoverades stammar i bottenplatta med metoden relining.
2013 - Reparerades spruckna fönsterbalkar samt bottenplattan på loftgångar i markplan och de tegelfasader där behov fanns. Under samma år genomfördes en OVK-besiktning av ventilationen. Målat om tvättstugor.
2014 - Utfördes renovering av avloppsrör i källarplan med metoden relining. Samma år påbörjades arbete med att reparera balkongnosar och balkonggolv, måla och fräscha upp entréer och trapphus samt plåtbyte och tilläggsisolering av fasader.
2017 - Markarbeten, byte plåtfasad, balkongrenoveringar.
2018 - Satt upp bommar i området, spolat köksstammar.
2019 - Installerades övervakningskameror i flertal källargångar, samtliga armaturer i trapphus och källare har bytts till LED, trapphusmålning i höghusen har gjorts, totalrenoverat stugan på Gullholmen, renovering av föreningslokalen på Lillekärr Norra 92, genomfört en OVK och spolat utebrunnar samt installerat pumpar. Se årsredovisning för mer information om planerade/pågående renoveringar.
2020 - Dränering av dagvattenledningar.
2020-2021 - Takrenovering
2023 - Tak- och fasadrenovering
2023 - Installation av solceller på höghusen
2024 - Laddstolpar installerat
2025 - Modernisering av hissarna.
Planerade renoveringar:
- 2025-2027 - Stambyte inklusive badrumsrenovering. Se länk: https://www.hsb.se/goteborg/brf/hisingskarra/projekt/stambyte/
Föreningen arbetar efter en långsiktig underhållsplan vilken uppdateras löpande. På hemsidan hittar du löpande information om vad som är på gång i föreningen. För mer detaljerad information om ekonomin i föreningen, se årsredovisning eller kontakta expeditionen under deras öppettider.
Föreningen förfogar över ca 420 parkeringsplatser (med och utan eluttag) och garageplatser.
Till alla lägenheter förutom 60 st hör antingen en parkeringsplats, parkeringsplats med elstolpe eller garageplats. Kostnad för respektive plats tillkommer på avgiften.
För de som inte har någon plats finns det möjlighet att hyra i andra hand.
I föreningen finns även ett gemensamt mc garage med plats för 6 MC.
Kostnaden för dessa 200 kr/månaden.
I området finns gästparkeringar.
Kabel-tv levereras av Tele2, basutbud ingår i avgiften.
Föreningen är ansluten till fibernätet och har ett avtal med Bredband2 upp till 1000Mbit som ingår i avgiften.
Gemensam innergård med utemöbler samt en nyrenoverad parkliknande lekplats. Föreningen anordnar gemensam höst- och vårstädning.
Det finns cykelförråd, barnvagnsförråd, tvättstuga med torkrum. För en årlig avgift kan man få tillgång till bastu, gym, spolplatta samt snickeriverkstad. Det finns även en föreningslokal som kan hyras till ett förmånligt pris av medlemmarna.
Brf Hisings Kärra har ett hus på Stora Härmanö, vilket medlemmarna kan hyra. Uthyrning sköts av föreningen under sommaren, övrig tid kan stugan hyras direkt av föreningen Gullholmsbaden.
Förvärvaren skall vara medlem i HSB innan den kan godkännas ett medlemskap i bostadsrättsföreningen. Det tillkommer en medlemsavgift till HSB om 825 kronor för köparen. Är det två köpare så betalar den ena 825 kronor och den andra 525 kronor. Andelsavgiften i HSB är 500 kr/person och återbetalas vid utträde.
Informationen är tagen från styrelsen, hemsida, årsredovisning samt stadgar. Vi ansvarar inte för att informationen stämmer utan råder dig att kontrollera det som är av betydelse för dig.
BO I NÄRA NATUREN I HISINGS KÄRRA
I Hisings Kärra bor du med närhet till Göteborg men ändå lugnt och skönt. Natursköna Hisings Kärra är inne i en utvecklande fas och befintliga områden utvecklas och nya växer fram.
BO PÅ LANDET MEN ÄNDÅ I STAN
Hisings Kärra är ett stort område som har centrerats kring Kärra Centrum. Bostäderna här består nästan helt av bostadsrätter, radhus och villor. Stadsdelen är befolkningsmässigt en av de minsta i kommunen men till ytan en av de största. Här finns också tätorten Gerrebacka och lantbruksbygden Rödbo som gränsar mot Kungälv. Stadsdelen lockar många barnfamiljer och i området finns det flera förskolor och grundskolor att välja på.
När du bor här är det alltid nära till skön natur. Norr om Hisings Kärra ligger Svankällan, en våtmarkspark där djur- och växtliv frodas. I den annorlunda natur- och kulturparken finns stigar, fågeltorn och utsiktsberg. Mittemellan Hisings Kärra och Rödbo finns Europas nordligaste bokskog med ett rikt fågelliv och hit kommer hägern varje vår för att häcka.
MED SPORTEN I CENTRUM
I Hisings Kärra är idrotten en viktig del av vardagen och det finns föreningar för både handboll, fotboll och innebandy. Clarebergs Ridklubb är populär och lockar många hästintresserade. Lockar motion i naturen dig desto mer har du den runt knuten. På Jämmerberget finns elljusspår och när du når toppen möts du av en vacker utsikt.
Den naturliga platsen att mötas på är Kärra Centrum. Här arrangeras säsongsaktiviteter som midsommarfirande och julmarknad samt den populära Kärradagen. Området kring torget håller på att utvecklas, renoveras och byggas ut.
Kommunikationerna från Hisings Kärra är goda och bussen tar dig till Göteborgs innerstad på 20 min.
Köpa, sälja eller värdera bostad i Hisings Kärra? Kontakta våra Bjurfors mäklare på Hisingen! Passa också på att anmäla dig till vår kostnadsfria söktjänst Boagenten som hjälper dig att hitta ditt drömboende.
Kontakta mäklaren om du behöver hjälp att ta fram en boendekalkyl.
När du köper din bostad genom Bjurfors kan du ansöka om bolån till en förmånlig ränta hos våra banksamarbetspartners Söderberg & Partners och SEB.
Bokad visning.