-
Köpa
Köpa -
Sälja
Sälja - Hitta bostad
- Skapa bevakning
- Hitta mäklare
Helt nyrenoverad genomgångsetta med stor balkong
Hisings Kärra, Göteborg
*I avgiften ingår el, kabel-TV, internet och vatten. Ett obligatoriskt tillägg om 410 kr tillkommer och avser värme. Den totala kostnaden blir då 3 746 kr.
Bokad visning. Du kan även ringa Bjurfors Bokningscenter 031-761 79 50. Välkommen!
Bokad visning. Du kan även ringa Bjurfors Bokningscenter 031-761 79 50. Välkommen!
Välkommen till denna nyrenoverade genomgångsetta med balkong och hiss i huset. Här bor man i ett lugnt och omtyckt område med närhet till allt.
Varmt välkomna till ett trivsamt boende i ett lugnt och omtyckt område. Här bor du i en välplanerad och nyrenoverad genomgångsetta med balkong i västerläge.
Fönsterpartier i två väderstreck skapar ett härligt ljusflöde till lägenheten. Köket är nyrenoverat och väldisponerat med matplats för flera invid fönstret. Allrummet är stort och luftigt vilket skapar en härlig rymd och härifrån nås den stora balkongen. Bostadens badrum är helkaklat i mörkt golv och vita väggar. Hushållsel ingår i avgiften.
I Kärra har du närhet till allt och bostaden ligger bara ett stenkast från Kärra centrum med dess stora utbud. Skola och förskola finns i närheten och det är goda bussförbindelser in till city. Perfekt boende med närheten till city men ändå i ett lugnt naturskönt område. I avgiften ingår värme, el, kabel-TV och vatten. Obligatoriskt tillägg om 410 kr tillkommer.
Varmt välkommen till Prilyckegatan 103!
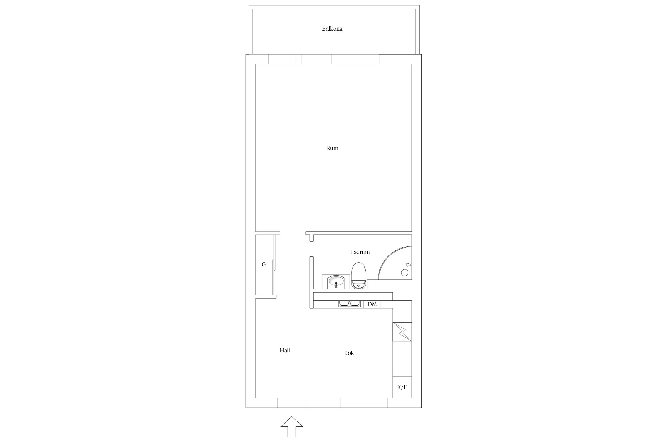
Denna renoverade bostad välkomnar dig med hallen som är rymlig och kan enkelt möbleras upp. På golvet sitter slitstarkt kakel och väggarna är vitmålade. Avhängningsmöjligheter till vänster.
Till höger om hallen ligger det stilrena köket. Här finns rikligt med skåp och arbetsyta. Ovan arbetsbänken sitter stilfullt kakel. Den maskinella utrustningen består av integrerad ugn och micro, häll, spisfläkt, diskmaskin och kombinerad kyl/frys.
I hallen mot vardagsrummet finner du lägenhetens badrum. Det är också stilrent med tidlösa färg- och materialval. Helkaklat med vitt kakel på väggarna och mörk klinker på golvet. Badrumsinredning i form av toalett, tvättställ med kommod, duschhörna med vikbara duschväggar och spegelskåp.
Lägenhetens största rum utgörs av allrummet. Här finns många möbleringsmöjligheter för både sov- samt vardagsrumsdel. Rummet är ljust tack vare det rika ljusinsläppet från de härliga fönsterpartierna. Väggarna är vitmålade och golvet pryds av snygg laminat.
Härifrån når du även den rymliga balkongen i västerläge som erbjuder många härliga soltimmar.
I det stora allrummet går det att sätta upp en vägg som gör att du får en egen avskild sovplats.
Till källaren finns förråd.
Varmt välkomna på visning.



I avgiften ingår el, kabel-TV, internet och vatten. Ett obligatoriskt tillägg om 410 kr tillkommer och avser värme. Den totala kostnaden blir då 3 746 kr.
Föreningen försöker tillhandahålla en parkering mot avgift till varje bostad men det finns inga garantier för detta. Öppen plats med el: 175 kr/mån.
Nettoskuldsättningen är en uträkning baserad på information som föreningen har tillhandahållit. Den är eventuellt baserad på fel andelstal och kan därför vara felaktig
Detta är enbart riktvärden och kan variera beroende på avtal och förbrukning
*Betalas av köpare
Adresserna i föreningen är Prilyckegatan 87-123 och Lillekärr Södra 164-194. På tomten har år 1974-1975 uppförts bostadshus med 431 lägenheter med en sammanlagd lägenhetsyta av 30.169,5 kvm.
Fastigheterna innehas med tomträtt.
Se gärna föreningens hemsida för mer information: www.gbghus38.se
Avgiftshöjning med 5% 2023-08-01.
Avgiftshöjning med 3% 2024-07-01.
Avgiftshöjning med 3% 2025-08-01.
Fastigheten är fullvärdesförsäkrad genom Folksam.
2007-2008 - Spolades V/A-stammar i kök och badrum.
2009 - Byttes fönster och dörrar i samtliga lägenheter och tvättstugor renoverades.
2011 - Renoverades fasaden på Prilyckegatan och likaså carportar tillhörande samma adress och man renoverade samtliga lekplatser samt dränerade radhusen på nummer 95-97.
2011-2012 - Utfördes elarbete i källaren (el flyttades då från mark till tak i samtliga källargångar). Samma år sattes rörelsecensorer in i källare och tvättstugor och alla låssystem i källargångar och tvättstugor byttes till tags. Föreningen slutförde även värmejustering så alla boende skulle få en god inomhustemperatur.
2012 - Byttes samtliga elcentraler ut och takfläktar på höghusen byttes ut.
2012-2013 - Gjordes kontroll av föreningens stammar och en takutredning genomfördes. Dränering samt tätning av gavlar genomfördes.
2013-2014 - Byttes V/A-stammar mellan husen och en stamrenovering med metoden relining genomfördes av de vertikala och horisontala stammarna. Arbeten utfördes för att förbättra takavrinning och under samma period renoverades samlingslokalen Kajutan.
2014 - Renoverades källartrappor.
2015-2016 - Slutfördes stamrenovering med relining.
2016-2017 - Byttes fönster i källare, radhus och tvättstugor. Även pålning och förstärkning av trapphus på Prilyckegatan 87-89 samt 103-105. Även bastun renoverades.
2017 - Påbörjades betongrenovering.
2018-Betongrenoveringar
2020 - Dränering, tak, solpaneler
2021 - Underhåll av hissar. Återställande av takrenoveringar.
2024-2026 - Utbyggnad av laddstolpar.
2024-2025 - Upprustning av sopstationer.
Till varje lägenhet försöker föreningen alltid att erbjuda en parkering med avgift. Man kan sätta upp sig i kö för att få hyra en extra parkering (200 kr) eller byta till carport (300kr). Det finns även parkering inomhus för MC (300 kr), till dessa är det kö. Föreningen erbjuder också ett antal husvagnsparkeringar både på Prilyckegatan och Lillekärr Södra, till dessa är det kö. Föreningen har även 34 st laddstolpar och parkering med laddplats kostar 400kr/mån + 3kr/kWh.
För att sätta upp sig i kö kontakta föreningen.
E-post: parkering@gbghus38.se
TV via Tele2 och ingår i månadsavgiften.
Bredband via Tele2 och fiber via Telia. Avtal tecknas separat av lägenhetsinnehavaren.
I föreningen finns fyra olika gårdar.
Medlemmarna har tillgång till en fin samlingslokal som går att hyra för t.ex. kalas eller liknande. Här finns bord och stolar samt enklare köksutrustning, även diskmaskin samt kyl/frys. Övernattningslägenhet - Lägenheten är utrustad med täcken, kuddar samt köksutrustning för fyra personer. Pingisrum finns i källaren på Prilyckegatan 101 och bastun finns i källaren på Prilyckegatan 12. Det finns flera tvättstugor i föreningen, 2 st på varje gård. På Prilyckegatan 89 samt Lillekärr södra 184 finns tvättstuga med maskiner avsedda för mattvätt.
Övriga utrymmen:
Till varje lägenhet hör ett förråd. I radhus med källarplan finns förrådet i lägenhetens källarplan.
Föreningen har ett antal extra förråd som man kan hyra. Om du vill sätta upp dig i kö kontakta föreningen.
Om du vill glasa in din balkong behöver du föreningens tillstånd och bygglov.
Informationen ovan är tagen från hemsida, årsredovisning samt stadgar. Vi ansvarar ej för att uppgifterna från dessa källor är korrekta utan råder dig som köpare att kontrollera fakta som är av vikt för dig.
BO I NÄRA NATUREN I HISINGS KÄRRA
I Hisings Kärra bor du med närhet till Göteborg men ändå lugnt och skönt. Natursköna Hisings Kärra är inne i en utvecklande fas och befintliga områden utvecklas och nya växer fram.
BO PÅ LANDET MEN ÄNDÅ I STAN
Hisings Kärra är ett stort område som har centrerats kring Kärra Centrum. Bostäderna här består nästan helt av bostadsrätter, radhus och villor. Stadsdelen är befolkningsmässigt en av de minsta i kommunen men till ytan en av de största. Här finns också tätorten Gerrebacka och lantbruksbygden Rödbo som gränsar mot Kungälv. Stadsdelen lockar många barnfamiljer och i området finns det flera förskolor och grundskolor att välja på.
När du bor här är det alltid nära till skön natur. Norr om Hisings Kärra ligger Svankällan, en våtmarkspark där djur- och växtliv frodas. I den annorlunda natur- och kulturparken finns stigar, fågeltorn och utsiktsberg. Mittemellan Hisings Kärra och Rödbo finns Europas nordligaste bokskog med ett rikt fågelliv och hit kommer hägern varje vår för att häcka.
MED SPORTEN I CENTRUM
I Hisings Kärra är idrotten en viktig del av vardagen och det finns föreningar för både handboll, fotboll och innebandy. Clarebergs Ridklubb är populär och lockar många hästintresserade. Lockar motion i naturen dig desto mer har du den runt knuten. På Jämmerberget finns elljusspår och när du når toppen möts du av en vacker utsikt.
Den naturliga platsen att mötas på är Kärra Centrum. Här arrangeras säsongsaktiviteter som midsommarfirande och julmarknad samt den populära Kärradagen. Området kring torget håller på att utvecklas, renoveras och byggas ut.
Kommunikationerna från Hisings Kärra är goda och bussen tar dig till Göteborgs innerstad på 20 min.
Köpa, sälja eller värdera bostad i Hisings Kärra? Kontakta våra Bjurfors mäklare på Hisingen! Passa också på att anmäla dig till vår kostnadsfria söktjänst Boagenten som hjälper dig att hitta ditt drömboende.
Kontakta mäklaren om du behöver hjälp att ta fram en boendekalkyl.
När du köper din bostad genom Bjurfors kan du ansöka om bolån till en förmånlig ränta hos vår samarbetspartner SEB.
Bokad visning. Du kan även ringa Bjurfors Bokningscenter 031-761 79 50. Välkommen!
Bokad visning. Du kan även ringa Bjurfors Bokningscenter 031-761 79 50. Välkommen!
Ansvarig mäklare