-
Köpa
Köpa -
Sälja
Sälja - Hitta bostad
- Skapa bevakning
- Hitta mäklare
Citynära etta med inglasad balkong
Högsbo, Göteborg
*I avgiften ingår vatten, digital-TV (grundutbud), bredband (500/500) och IP-telefoni. Utöver avgiften tillkommer ett värmetillägg om 310kr/mån.
**Areauppgift enligt lägenhetsförteckningen och säljaren.
Anmäl dig till mäklaren för visningstid
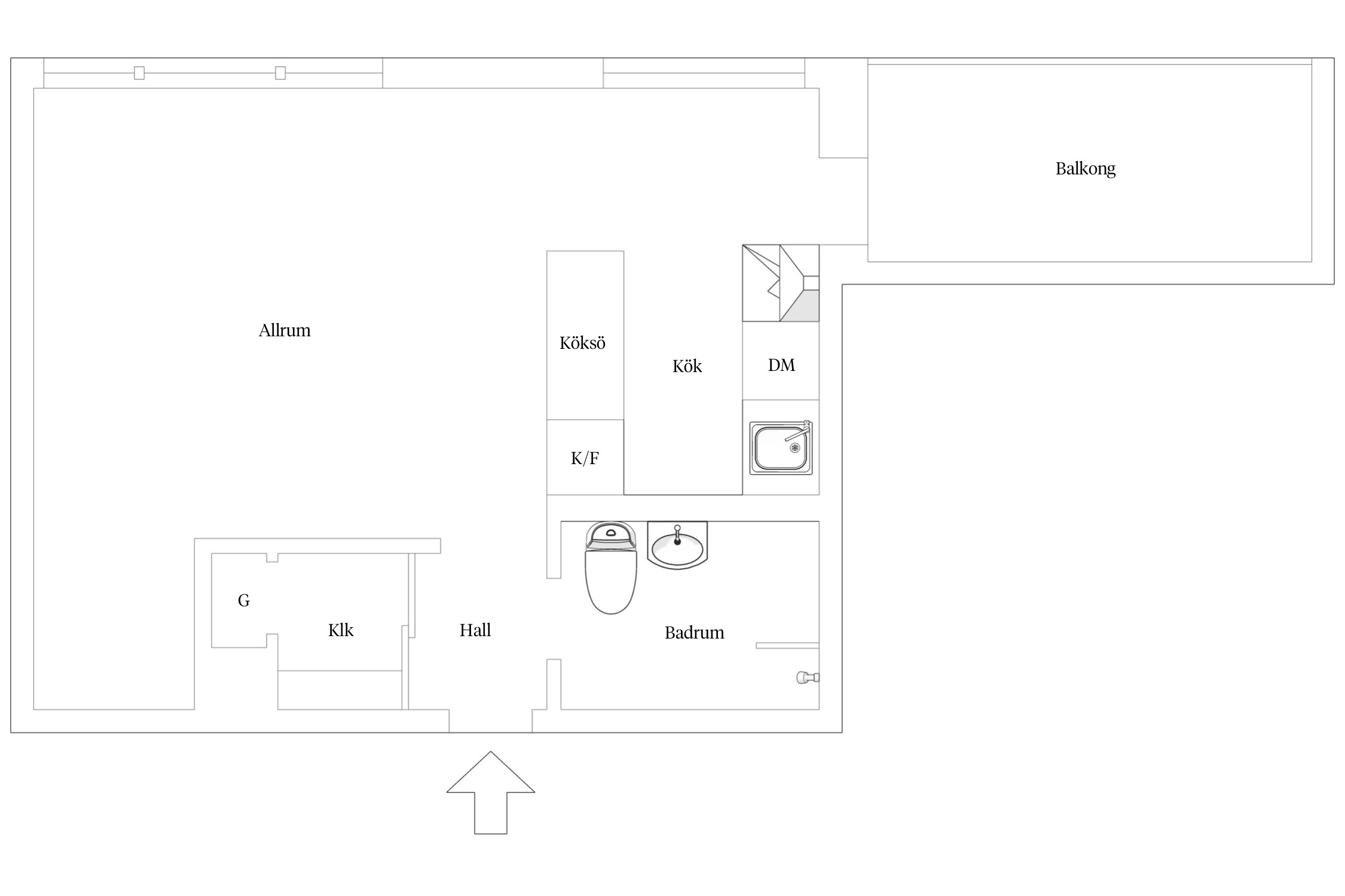
Varmt välkommen till en välplanerad och trivsam etta på omtyckta Marklandsgatan, med smart planlösning och inglasad balkong i soligt läge.
På våning fyra finner du denna ljusa bostad med goda förvaringsmöjligheter och en inglasad balkong som förlänger bostaden under stora delar av året.
När du kliver in möts du av en välkomnande hall med goda förvaringsmöjligheter och en rymlig klädkammare. Planlösningen är genomtänkt och kvadratsmart, vilket gör bostaden både lättmöblerad och funktionell. Allrummet är ljust och luftigt med plats för både soffgrupp, säng och kontorsplats. Härifrån nås den inglasade balkongen med fri utsikt utan insyn - en lugn och trivsam plats för morgonkaffet eller en avkopplande kväll. Köket ligger i öppen anslutning till rummet, en planlösning som bidrar till en mer social atmosfär. Köket är modernt renoverat i en tidlös design och erbjuder goda arbetsytor, bra förvaring samt en praktisk köksö som fungerar både som arbetsyta och matplats.
Badrummet är helkaklat i neutrala kulörer och utrustat med dusch, wc och handfat.
Till lägenheten hör dessutom ett praktisk förråd belägna på markplan. Fastigheten är utrustad med hiss vilket gör bostaden till ett bekvämt boende för såväl yngre som äldre.
Här bor du i en stabil förening som förvaltas av Riksbyggen. Läget vid Marklandsgatan erbjuder närhet till det mesta. På promenadavstånd finns några av Göteborgs mest uppskattade naturområden - Änggårdsbergen, Botaniska trädgården och Slottsskogen. Från Marklandsgatans hållplats tar du dig enkelt till stadens olika delar, med Linné och centrala Göteborg endast fem till femton minuter bort.I närområdet finns även matbutiker, gym och service. För den som uppskattar hav och bad når du enkelt badplatser vid Askim och Amundön samt skärgårdsbåtarna vid Saltholmen.
Varmt välkommen på visning!
Bostadens hall erbjuder gott om förvaringsutrymme. Här finns en rymlig klädkammare som bidrar till en lättmöblerad och funktionell bostad.
Vidare in öppnar bostadens allrum upp sig, ett ljust och luftigt rum med plats för både soffgrupp, säng och matplats. Planlösningen gör det enkelt att skapa olika funktioner i rummet och forma hemmet efter dina behov. Från allrummet nås balkongen, som blir en naturlig förlängning av bostaden under årets varmare månader.
Köket ligger i öppen anslutning till rummet och har en social utformning med köksö som både ger extra arbetsyta och fungerar som en naturlig samlingspunkt. Här finns gott om förvaring och goda möjligheter till matlagning samtidigt som du enkelt kan umgås med gäster.
Badrummet är praktiskt planerat och utrustat med dusch, wc och handfat.



*Areauppgift enligt lägenhetsförteckningen och säljaren.
I avgiften ingår vatten, digital-TV (grundutbud), bredband (500/500) och IP-telefoni. Utöver avgiften tillkommer ett värmetillägg om 310kr/mån.
Till lägenheten tillhör ett källarförråd.
Stor inglasad balkong med fri utsikt
TV: TV Bas Plus med för närvarande 32 kanaler i grundutbudet Internet: Bredband från Telenor, 500/500 Mbit
Bostadsrättens indirekta nettoskuldsättning baseras på föreningens skulder/lån minus föreningens räntebärande tillgångar och likvida medel. Beräkningen är gjord och baseras enbart på den senaste tillgängliga årsredovisningen. För mer information kontakta ansvarig fastighetsmäklare.
*Betalas av köpare
Bostadsrättsförsäkring
Medlem i Brf Göteborghus 26 har en bostadsrättsförsäkring i den avgift medlemmen betalar till föreningen.
Bostadsrättsförsäkringen innebär möjlighet att få ersättning för skada på fasta inventerarier i bostaden.
Bostadsrättstillägget har vissa självriskkostnader. Vid läckageskada är självrisken 3 000 kr och vid övrig skada 1 500 kr. Om både fastighetsägarens försäkring som bostadsrättstillägget berörs utgår ingen självrisk. Beroende på ålder på det som skadats tillämpas, som i alla försäkringar, ett åldersavdrag.
Årsavgiften höjdes med 10% från 1 juli 2024. Värmedebiteringen ligger kvar på 133 kronor per år och kvadrameter. Det finns flera anledningar till höjningen av årsavgiften. I första hand behöver föreningen ha en beredskap att hantera höjning av avgälden för tomträtten.
Underhåll av gemensamma anläggningar - är installation av nytt passersystem, digital bokning av tvättstugor m m samt info skärmar. Utförda underhåll 2024 är målning av entréer och renovering av tvättstugor.
Avgift för parkeringsplats eller garageplats är:
Parkeringsplats - 250 kr/månad (fr o m 1 september 2020).
Parkeringsplats med laddningspunkt - 500 kr/månad samt kostnad för använd el.
Garageplats - 580 kr/månad (fr o m 1 september 2020).
Husbilsplats - 580 kr/månad (fr o m 1 september 2020).
Kortaste hyrestid är 3 månader.
Föreningen har ett gruppavtal med Telenor (Bredbandsbolaget). Avtalet omfattar:
-Bredband, 500/500 Mbit
-TV, TV Flex med för närävarande 19 kanaler i grundutbudet och möjlighet att välja till ytterligare 8 kanaler.-
-Telefoni, Mini, fast avgift. Tidigare abonnemang löper vidare, ingen nyteckning.
Kostnaden för detta ingår i den ordinarie månadsavgiften med undantag för en startavgift vid inkoppling av tjänsten. Tillkommande tjänster för till exempel fler TV-kanaler utöver TV-flex beställs av medlemmar och debiteras medlemmen direkt från Bredbandsbolaget. Detsamma gäller också för den som önskar högre hastighet i bredbandet.
Det finns två gästrum att hyra, "4:an" och "6:an", detta sker för en debitering av 400kr/dygn och per gästrum.
Föreningen har även ett hobbyrum för mindre och enklare arbeten. Där finns ett par snickarbänkar och bord.
Bastu finns i föreningen och kan bokas via appen Hemshare.
BO GRÖNSKANDE I STADSNÄRA HÖGSBO
När du bor i Högsbo har du vackra och gröna Slottsskogen, Änggårdsbergen och Botaniska trädgården alldeles runt knuten. Samtidigt är Högsbo ett citynära område som inte ger avkall på restaurangliv och nöjen.
LIKA NÄRA TILL NATUR SOM CITY
Stora delar av Högsbo ligger på berg och bergsluttningar och var du än bor i stadsdelen har du närhet till grönska. Knyt på dig löparskorna eller pumpa däcken på mountainbiken för en uppfriskande tur i Änggårdsbergen eller Slottsskogen – du har nära till båda. Det är inte heller långt till havets salta brus och ett dopp när andan faller på. Men när kvällen närmar sig låter kanske en värmande ramen eller läcker pasta lockande? Såväl restaurangstråken i Linné som de ambitiösa kvarterskrogarna vid Mariaplan nås på bara fem minuter med spårvagn från Marklandsgatan.
RETROKÄNSLA PÅ AXEL DAHLSTRÖMSTORG
Högsbo består till stor del av flerfamiljshus om tre- och fyravåningars av typen lamellhus i tegel eller puts i jordnära färger, som byggdes på 50- och 60-talet. Balkonger är en vanlig syn på den här typen av hus, vilket passar perfekt för såväl morgonkaffe som fredagsbubbel.
På Axel Dahlströms torg, som stod klart 1954, dras blickarna till konstnären Endre Nemes 50-talsverk Marmorintarsia, som innehåller 60 sorters marmor och sägs ha tagit över 7 500 timmar att färdigställa. Nemes var under en period på 40- och 50-talet föreståndare för Valands Konstskola. Men även om Högsbo bjuder på välbevarade retrovibbar behöver du inte vara orolig om du hellre föredrar ett nyproducerat boende. Stadsdelen utvecklas ständigt och här växer nytt fram vid sidan av det gamla i skön symbios med den omgivande naturen.
Högsbo är som en liten stad i staden, där Axel Dahlströms torg fortfarande är navet. Vid torget finns det matbutik, apotek, gym och bageri. Här hittar du också Axelhuset – en given mötesplats för alla åldrar – komplett med bibliotek, fritidsgård och öppen förskola.
KNUTPUNKTEN MARKLANDSGATAN
Marklandsgatan är områdets knutpunkt när det gäller kommunikation och här tar du dig smidigt vidare till andra delar av Göteborg. I Högsbo industriområde ligger köpcentrumet 421 och här har du ett komplett vardagsutbud med mataffär, restauranger, apotek och shopping. Frölunda Torg med sin förstklassiga shopping nås på under tio minuter med spårvagn och innerstans gator som Vallgatan och Magasinsgatan på ungefär en kvart.
Många barnfamiljer väljer att bo i Högsbo tack vare närheten till naturen och bra kommunikationer både in till centrala Göteborg som till Frölunda och söderut till Högsbo Industriområde och Sisjön. Förskolorna i Högsbotillhör Askim-Frölunda-Högsbo stadsdelsförvaltning, och det finns även flera föräldrakooperativ i stadsdelen. Du har också flera grundskolor runt om i stadsdelen.
Köpa, sälja eller värdera bostad i Högsbo? Kontakta våra mäklare i Västra Göteborg! Passa också på att anmäla dig till vår kostnadsfria söktjänst Boagenten som hjälper dig att hitta ditt drömboende.
Kontakta mäklaren om du behöver hjälp att ta fram en boendekalkyl.
När du köper din bostad genom Bjurfors kan du ansöka om bolån till en förmånlig ränta hos våra banksamarbetspartners Söderberg & Partners och SEB.
Anmäl dig till mäklaren för visningstid
Ansvarig mäklare
Extra kontaktperson