-
Köpa
Köpa -
Sälja
Sälja - Hitta bostad
- Skapa bevakning
- Hitta mäklare
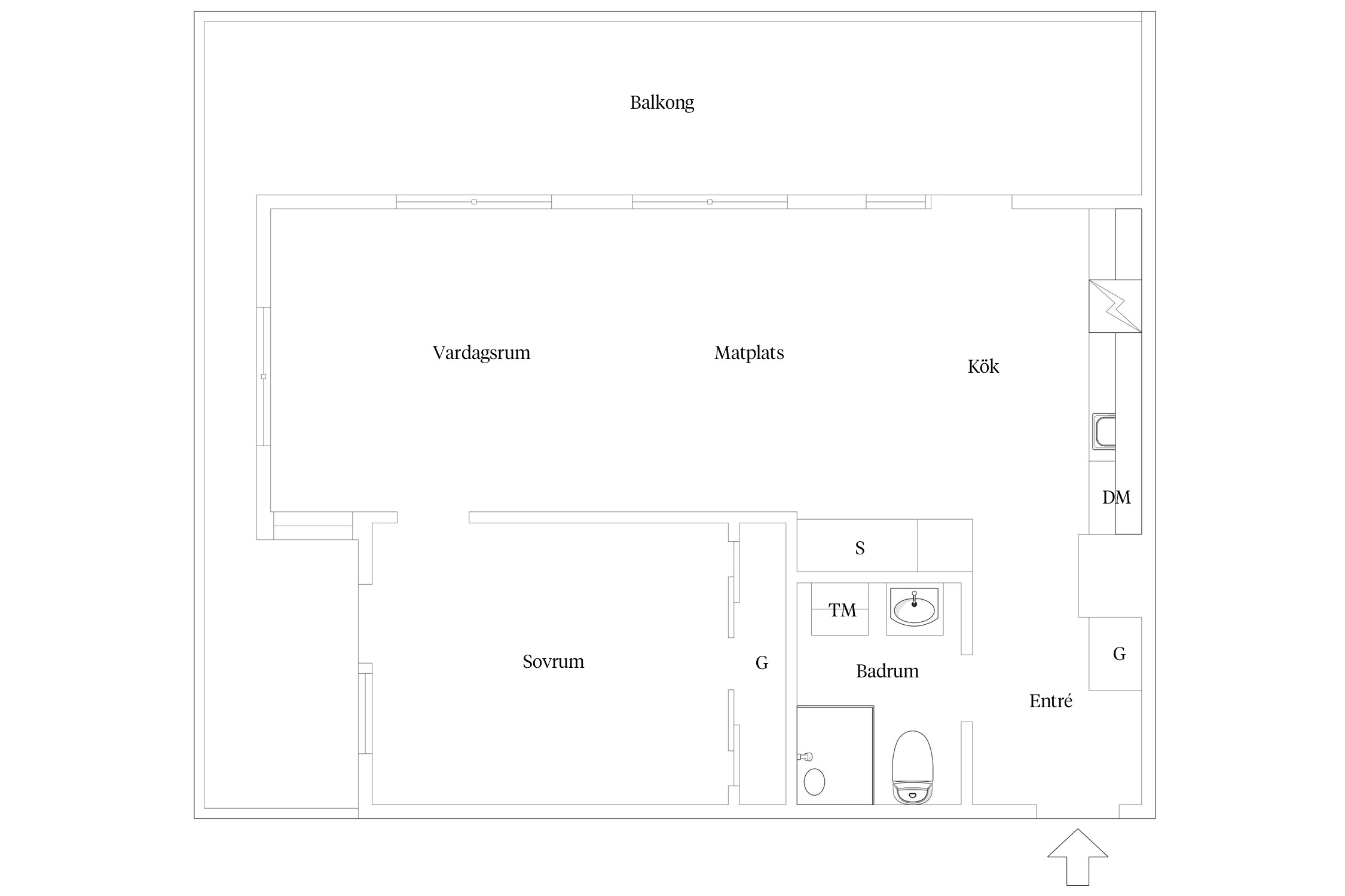
Högst upp i huset – exklusiv hörnlägenhet med havsutsikt & balkong om 27kvm i väster & Söder
Hovås, Göteborg
*I avgiften ingår värme, kallvatten. Varmvatten och hushållsel debiteras via föreningen efter förbrukning. Utöver avgiften tillkommer ett obligatoriskt tillägg om 206kr/mån gällande TV, bredband & telefoni.
**Areauppgifter enligt bostadsrättsföreningen
På våning 7 av 7 väntar denna unika hörnlägenhet där du bor helt insynsskyddat och med fri panoramautsikt över hav och land! Varje detalj är noggrant utvald för att erbjuda en förstklassig boendeupplevelse med en gedigen balkong som sträcker sig runt lägenheten om hela 27kvm, med sol från morgon till kväll!. Balkongen nås smidigt både från vardagsrummet och sovrummet och blir som ett extra vardagsrum under årets varmare månader.
Entré/Hall
Redan när du kliver in möts du av ljuset som strömmar in tack vare bostadens höga och fria läge. Här finns gott om plats för att hänga av sig ytterkläder och ställa skorna, och en praktisk garderob tar hand om förvaringen. På golvet ligger ett elegant klinkergolv som underlättar de regniga dagarna. Vidare löper ett snyggt mattlackat trägolv i 3-stavig ek som tillsammans med de vitmålade väggarna skapar en tidlös och luftig känsla, en stil som återkommer i hela hemmet.
Badrum
Badrummet är smakfullt inrett med exklusivt kakel på väggarna och matchande klinkergolv. Duschhörna med klarglasväggar, stilren kommod och spegelskåp med bra förvaring. Här finns även tvättkomfort på hög nivå med kombinerad tvättmaskin och torktumlare från Siemens samt en praktisk handdukstork.
Vardagsrum
I vardagsrummet är havet alltid närvarande genom de stora fönsterpartierna som släpper in ett generöst dagsljus. Den öppna planlösningen gör rummet lättmöblerat och ger plats för både en inbjudande soffhörna och en rymlig matplats där man gärna samlas.
Kök
Köket, signerat Marbodal, kombinerar funktion och stil. Här finns gott om arbetsytor och bänkskivor i natursten, kompletterat med infälld LED-belysning under överskåpen. De ljusa, stilrena luckorna ger ett tidlöst uttryck. Maskinparken från Siemens är komplett och inkluderar separat kyl och frys, induktionshäll, integrerad diskmaskin, varmluftsugn, mikro i bekväm arbetshöjd samt köksfläkt.
Balkong
Balkongen är en av bostadens absoluta höjdpunkter – rymlig, solig och med utsikt som får dig att stanna upp. Här kan du njuta av solens strålar från morgon till kväll och se solen gå ner över havet. Ytan rymmer enkelt loungemöbler, växter och detaljer som gör den till ett extra vardagsrum under sommarhalvåret.
Sovrum
Sovrummet är generöst tilltaget och har en hel garderobsvägg som ger utmärkt förvaring. En helglasad balkongdörr ger både vackert ljusinsläpp och direkt tillgång till balkongen – perfekt för att starta dagen med frisk havsluft.
I föreningen finns bekvämligheter som cykelrum, miljörum, barnvagnsförråd, gemensamhetslokal, övernattningslägenhet och kontor. För den bilburne finns både garage i direkt anslutning och möjlighet att hyra någon av föreningens två elbilar.



*Högst upp i huset!
**Areauppgifter enligt bostadsrättsföreningen
I avgiften ingår värme, kallvatten.
Varmvatten och hushållsel debiteras via föreningen efter förbrukning.
Utöver avgiften tillkommer ett obligatoriskt tillägg om 206kr/mån gällande TV, bredband & telefoni.
Till lägenheten hör ett förråd.
Föreningen har ett gemensamt hus som innefattar bland annat lokal samt 2 övernattningslägenheter.
Stor balkong som vetter både mot söder & väster
Föreningen har totalt 110 parkeringsplatser fördelat på 3 garage samt utomhusplatser,
46 laddplatser varav 44 är i garage och 2 utomhus. Två bilpoolsplatser och 1 MC-plats.
Parkering:
Garage med laddning - 1600kr/månad + förbrukning
Garage utan laddning - 1400kr/månad
P-plats utomhus - 1000kr/månad
P-plats utomhus vid Skalldalsvägen 18 - 695kr/månad
Telia Triple play (1000/1000)
Bostadsrättens indirekta nettoskuldsättning baseras på föreningens skulder/lån minus föreningens räntebärande tillgångar och likvida medel. Beräkningen är gjord och baseras enbart på den senaste tillgängliga årsredovisningen. För mer information kontakta ansvarig fastighetsmäklare.
Föreningen upphandlar elen kollektivt. Både elförbrukning och varmvattenförbrukning avläses varje månad och debiteras efter verklig förbrukning månaden efter. Observera att dessa uppgifter härrör från säljaren och att driftskostnader kan variera beroende på förbrukning och familjesammansättning.
*Betalas av köpare
Bostadsrättsföreningen disponerar och tillhandahåller ett gemensamhetshus till sina medlemmar, Navet. Här finns gemensamma ytor såsom lokal, och 2 övernattningslägenheter.
Källarförråd finns till lägenheterna.
Det finns även två vinterträdgårdar med semiglasat tak och glasväggar till boendens förfogande sam en bilpool med 2 st elbilar.
Poolbilar finns att hyra, står på föreningens parkeringsplatser samt cyklar och lådcyklar att hyra som finns i Navet.
Föreningen har totalt 110 parkeringsplatser fördelat på 3 garage samt utomhusplatser,
46 laddplatser varav 44 är i garage och 2 utomhus. Två bilpoolsplatser och 1 MC-plats.
Telia
BO I HOVÅS OCH FÅ DET BÄSTA AV TVÅ VÄRLDAR
I mer än 100 år har Hovås varit ett av Göteborgs mest attraktiva områden, Här är det lätt att finna lugnet och harmonin i livet, med sköna, gröna naturområden i ryggen och blicken mot havet.
NJUT AV UNDERBAR NATUR
Mot en fond av sommarresidens- och badhotellskultur med dess sekelskiftescharm, växte under 1900-talet ett klassiskt och genuint villaområde fram. Idag hittar du både villor, radhus och lägenheter i Hovås. Här är havet ständigt närvarande, året om och i alla väder. I Södra Hovås finner du Brottkärr med Stora och Lilla Amundön samt Brottkärrs hamn. Här möts du av gröna ängar med betande hästar och gångstigar som löper genom orörd natur. Ön är ett naturreservat och är en riktig skatt i Göteborgs skärgård. Med flera större båthamnar och många olika badplatser att välja på, hittar man lätt sina egna smultronställen – fina sandstränder, härliga klippor eller kallbadhuset med bryggor, bastu och restauranger.
Men Hovås är förstås mycket mer än så. Som om det inte vore nog med alla sköna grönområden att motionera eller ströva omkring i, breder Sveriges äldsta och väldigt vackra golfbana ut sig och lockar till en 18-hålsrunda. Eller varför inte bara ett snack över god lunch medan man blickar ut mot det blå havet? Har du andra intressen än golf, finns ett stort utbud av idrottsföreningar, klubbar, träningslokaler och aktiviteter som tennis, simning, fotboll eller löpning i underbar natur.
HÖJ DIN LIVSKVALITÈ I HOVÅS
Villastaden Hovås växte fram mellan 1905 till 1930 och hade Djursholm i Stockholm som förebild. De vackra nationalromantiska sekelskiftesvillorna med sina stora trädgårdar, tillsammans med senare decenniers klassicism, funkis och arkitektritade hus fått fint sällskap av 2010- och 2020-talens nya bostäder. I Nya Hovås möter hav och natur det enkla, moderna stadslivet med tillgång till ett brett och personligt utbud av butiker, restauranger, kaféer, träningsmöjligheter och kommunikationer. Här växer en urban och småskalig blandstad fram och det innebär förnyelse med mängder av nya möjligheter till kultur och nöjen – en ny typ av stadsliv, lite utanför staden.
Blir längtan in till centrala Göteborg ändå svår att motstå, tar bil eller buss inte många minuter. Den som föredrar cykel trampar istället lätt och smidigt på vackra Säröbanan, den gamla tågbanan som kring förra sekelskiftet transporterade badgäster till Hovås, Askim och Särö. Ett minne av svunna tiders exklusiva sommartillhåll. I Hovås möts nutid, dåtid och framtid – men vissa saker är och förblir alltid lika attraktiva, oavsett tidpunkt. Som havsnära lägen, stilfull vacker arkitektur och livskvalitet.
Köpa, sälja eller värdera bostad i Hovås? Kontakta våra mäklare i Västra Göteborg! Passa också på att anmäla dig till vår kostnadsfria söktjänst Boagenten som hjälper dig att hitta ditt drömboende.
Kontakta mäklaren om du behöver hjälp att ta fram en boendekalkyl.
När du köper din bostad genom Bjurfors kan du ansöka om bolån till en förmånlig ränta hos vår samarbetspartner SEB.
Ansvarig mäklare