-
Köpa
Köpa -
Sälja
Sälja - Hitta bostad
- Skapa bevakning
- Hitta mäklare
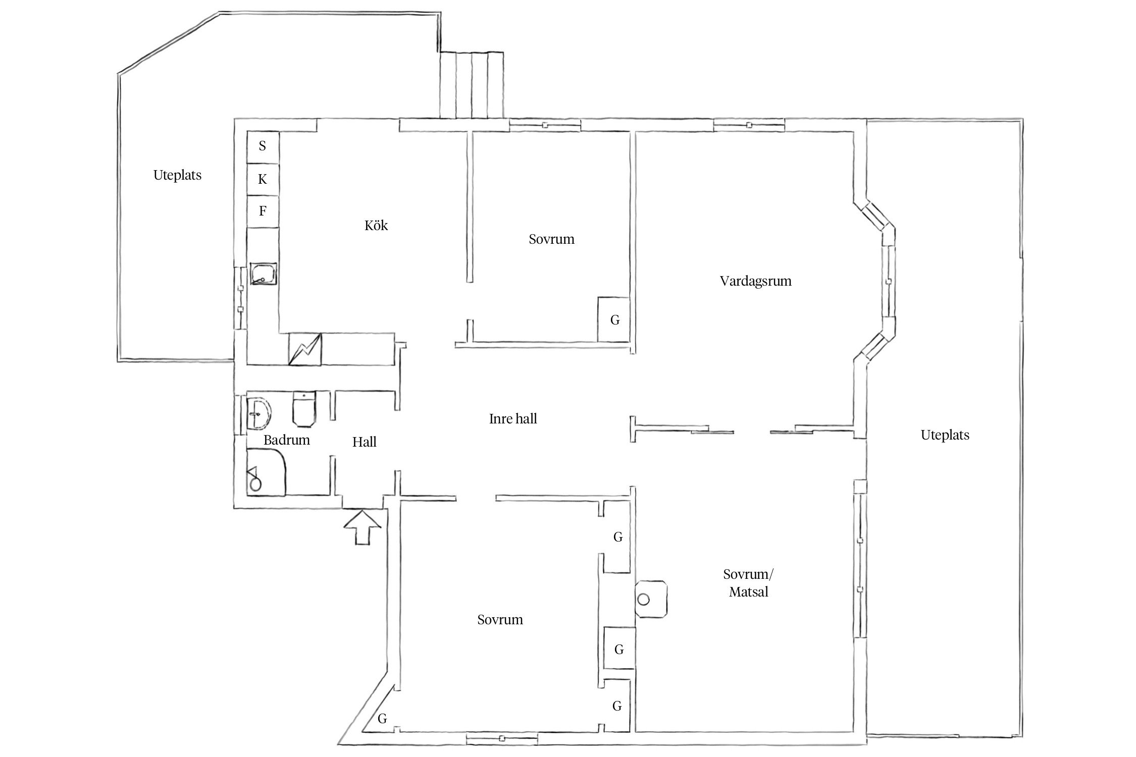
Fyrarummare med villakänsla och uteplatser i soliga lägen i Johannebergs villastad!
Johanneberg, Göteborg
*Obligatoriskt tillägg om 429 kr/mån avser bredband.
**Areauppgifter enligt säljaren och förvaltaren
Fyll i formuläret nedan så hjälper vi dig!



SMÅSTADSLIV MITT I CENTRALA GÖTEBORG
När du bor i Johanneberg får du det bästa av två världar. På en kort promenad når du Göteborgs mittpunkt vilket bäddar för spontant aktivt stadsliv och samtidigt har du närheten till ett stillsamt småstadsliv med gröna parker, härliga kvarterskrogar och mysiga kaféer.
SVERIGES FÖRSTA FUNKISOMRÅDE
Johanneberg är en av Göteborgs mest populära stadsdelar. Många väljer att bo här just för att det är så nära till Göteborgs innerstad – Korsvägen, Södra vägen, Götaplatsen och Avenyn. Arkitekturen i Johanneberg är enhetlig då merparten av husen byggdes på 1940-talet i utpräglad funkisstil.
GRÖNA YTOR OCH TRAFIKNAV
I Johanneberg blir du härligt bortskämd med flera gröna parker. Näckrosdammen är den självklara platsen för grillning eller en paus i solen och i Johannebergsparken finns en fin och välbesökt lekplats. Dessutom hittar du många mindre grönytor mellan bostadshusen, där du kan ta en spontan paus. Eftersom det är gångavstånd till allt ser man hela tiden människor i rörelse. Du som rör dig i snabbare tempo väljer Mossens motionsslinga, eller tränar på någon av de många träningsanläggningarna som finns i området.
På tal om gångavstånd, så är det aldrig långt till någonting när du bor i Johanneberg. Med flera stombusslinjer, gott om hållplatser och en av lokaltrafikens stora knutpunkter Korsvägen på promenadavstånd, är Johanneberg bästa läget oavsett om du ska till Mölndal, Centralstationen eller ut i vida världen via Landvetter.
BO MED NÄRHET TILL SKOLOR
Johanneberg tillhör stadsdelen Centrum där förskolorna och skolorna är indelade i två geografiska spår, Guldhedsspåret och Burås-/Johannebergsspåret. Varje spår har verksamhet för barn från 1 till 16 år så barnen behöver alltså inte byta spår under sin förskole- och skoltid. I centrala Göteborg finns också flera alternativa skolor som till exempel Franska förskolan och International School of the Gothenburg Region (ISGR). I området ligger också Chalmers tekniska högskola med studenter från hela världen vilket bidrar till att många unga bor i Johanneberg. Även Göteborgs universitet har flera institutioner i närheten, bland annat ligger Humanisten i anslutning till Näckrosdammen.
Köpa, sälja eller värdera bostad i Johanneberg? Kontakta våra mäklare i Göteborg! Passa också på att anmäla dig till vår kostnadsfria söktjänst Boagenten som hjälper dig att hitta ditt drömboende.
Extra kontaktperson