-
Köpa
Köpa -
Sälja
Sälja - Hitta bostad
- Skapa bevakning
- Hitta mäklare
Skärgårdsidyll med storslagen utsikt
Långedrag - Tångudden, Göteborg
*Inkl. kallvatten, sophämtning och privat carport. (Obligatoriskt tillägg om 220 kr per månad för Tv/Bredband och Ip-telefoni. Sammantaget ger det en månadskostnad om 5667 kr per månad)
**Areauppgift enligt bostadsrättsföreningen
Bokad visning. Du kan även ringa Bjurfors Bokningscenter 031-761 79 50. Välkommen!
På Förhand ligger bostäder som av olika anledningar inte är ute till försäljning just nu men som kan komma att säljas om förutsättningarna är rätt.
Arkitektritad skärgårdsidyll om 123 kvm med hänförande utsikt över hamninloppet. Västervänd altan. Låg avgift i stabil och lågt belånad HSB-förening.
FÖRSÄLJNINGSSTART JANUARI 2026, VÄNLIGEN ANMÄL DITT INTRESSE TILL MÄKLAREN ELLER BOKA DIG PÅ VISNING REDAN NU GENOM LÄNKEN I ANNONSEN.
Brf Valö Fyr har det perfekta läget mellan skärgård och storstadpuls. Här slingrar sig de charmiga husen längs naturens terräng, med havet och hamninloppet på första parkett. Huset i massivträ är energisnålt och karaktäriseras av det gamla bohuslänska kustsamhället vilket också genomsyrar bostadens gedigna naturmaterial. Utan att göra avkall på det praktiska erbjuds här ett friliggande hus om 123 kvm med genomgående stilrena färg- och materialval. Öppna ytor samt ett tveklöst attraktivt läge på sluttningen av Stora Billingen. En härligt vindskyddad entrésida med rikligt med södersol och en rejäl västervänd altan med grönskan och havet som närmsta granne. Perfekt för er som vill bo i hus men med alla de fördelar en stabil och mycket lågt belånad bostadsrättförening har att erbjuda.
Från Tångudden har man nära till goda kommunikationer samt välskötta gång- och cykelleder som med lätthet tar dig in mot city. Här bor man idealiskt i skarven mellan den idylliska skärgården och det charmiga Nya Varvet med dess välbesökta fik och promenadstråk. Nya Varvets torg lockar med matbutik, delikatessbutik och fiskvagn. I närheten finns också flera skolor och inte minst Frölunda Torg med dess stora utbud av shopping och övrig allmän service.
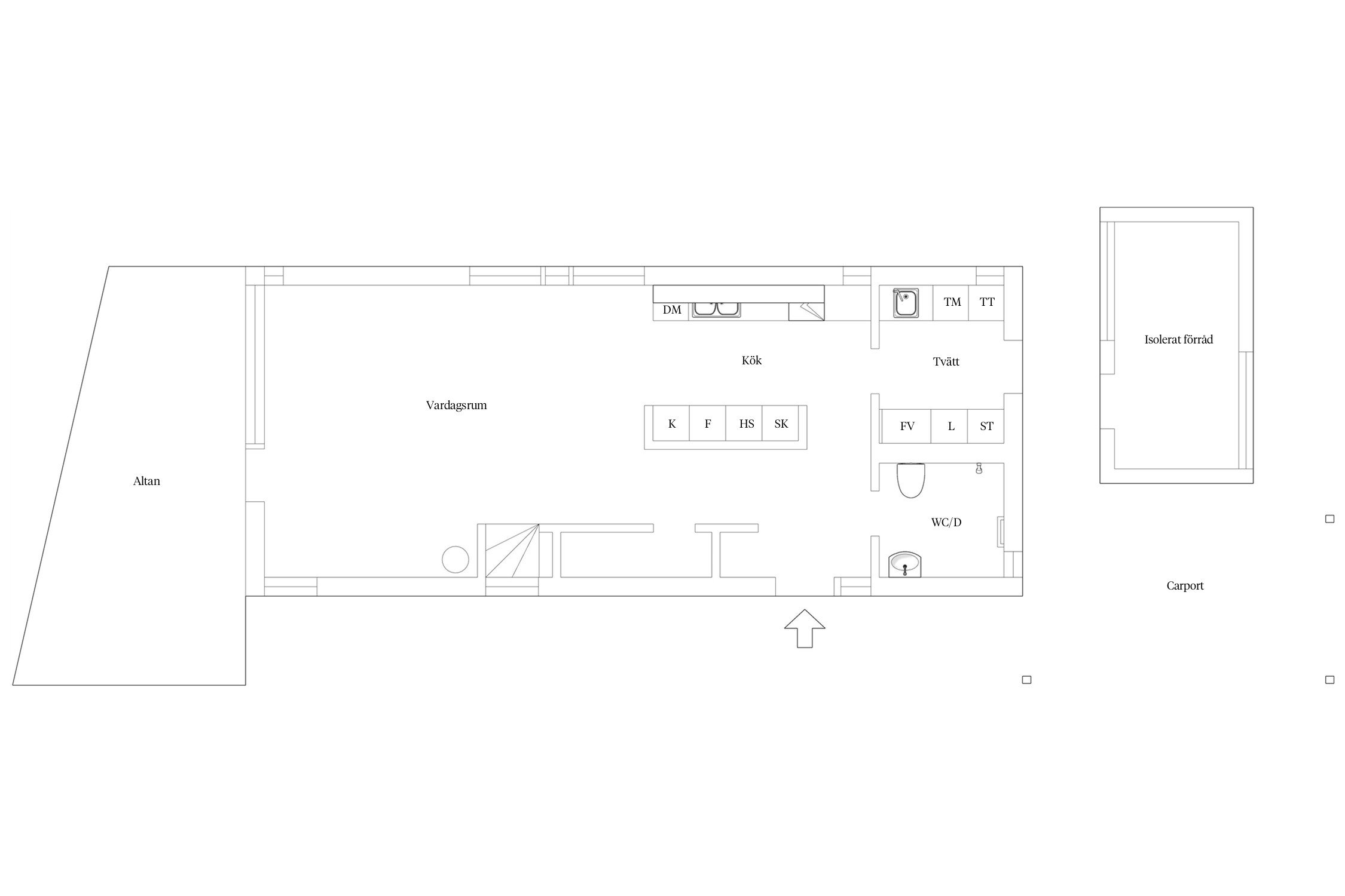
Kör upp bilen på carporten och stig in till Tånguddsbacken 47. Ett av föreningens samt Tånguddens bättre lägen, med utsikt över Göteborgs hamninlopp. Genomgående för hela bostaden är dess kvalité i de gedigna naturmaterialen, som bland annat visar sig i de vitmålade väggarna där trästrukturen lyser igenom. Hela nedre plan är försett med underliggande golvvärme och ovanpå löper ekparkett med undantag från hall, badrum och vardagsrum närmast altanen. Ytskikten är genomgående ljusa, vilket gör det enkelt för nästkommande ägare att sätta sin egen prägel. I detta hem är ingenting lämnat åt slumpen.
Hallen är ljus och rymlig, det finns plats för avhängning av ytterkläder direkt till vänster. Golvet är beklätt med ett lika snyggt som praktiskt klinker av en mörkare grå nyans. Ytterligare förvaringsmöjlighet ges i intilliggande klädkammare/förrådsutrymme under trappan.
Badrummet på nedre plan nås från hallen. Det är i stilrent utförande, med klassiska färg- och materialval. Vita kakelplattor samsas med grå klinker försedda med komfortvärme. Rymlig hörndusch med glasvägg, vägghängd toalettstol samt handfat med kommod och med ovansittande spegelskåp. Ytterligare attribut som finns att tillgå är värmeförsedd handdukstork.
Vägg i vägg ligger bostadens tvättstuga och groventré, kort och gott med allt som behövs för vardagens bestyr. Tvättmaskin från Husqvarna (ny 2024) samt torktumlare från Miele med praktisk ovanliggande avlastningsyta. Här finns också tvättho samt gott om förvaringsmöjligheter. Längs golvet löper klinker och ytterdörren tar dig ut till husets kortsida och carport.
Bostadens Marbodalkök karaktäriseras av materialval i mycket god kvalitet. Förvaring göms både stilrent och praktiskt bakom vit köksinredning och den maskinella utrustningen finns i integrerade lösningar. Ovan arbetsytorna som försetts med den klassiska bänkskivan i mattslipad granit finns ett snyggt och praktiskt havsblått glaskakel. Här finns god punktbelysning och den maskinella utrustningen består av kyl och frys i fullhöjd, diskmaskin, ugn med spishäll och fläkt. Diskmaskin och inbyggnadsugn är utbytta under 2019.
Vid kökets matplats finns gott om rum för större bord att samla vänner och familj kring. Här kan många gäster njuta av en god middag och härlig havsutsikt. Golvet i kök och vardagsrum slipades om under 2025.
Vardagsrummet är bostadens givna samlingspunkt. Altanen breddar rummets yta och glaspartier ned till golv välkomnar in utemiljön. Havet gör sig ständigt påmint och här, liksom i bostadens flesta fönster, är havsutsikten närvarande . Västerläget bjuder på många soltimmar. Ytan i vardagsrummet är generös och planlösningen är öppen och social. Här kan möbleras med större soffa och tillhörande möblemang, allt efter eget tycke och smak.
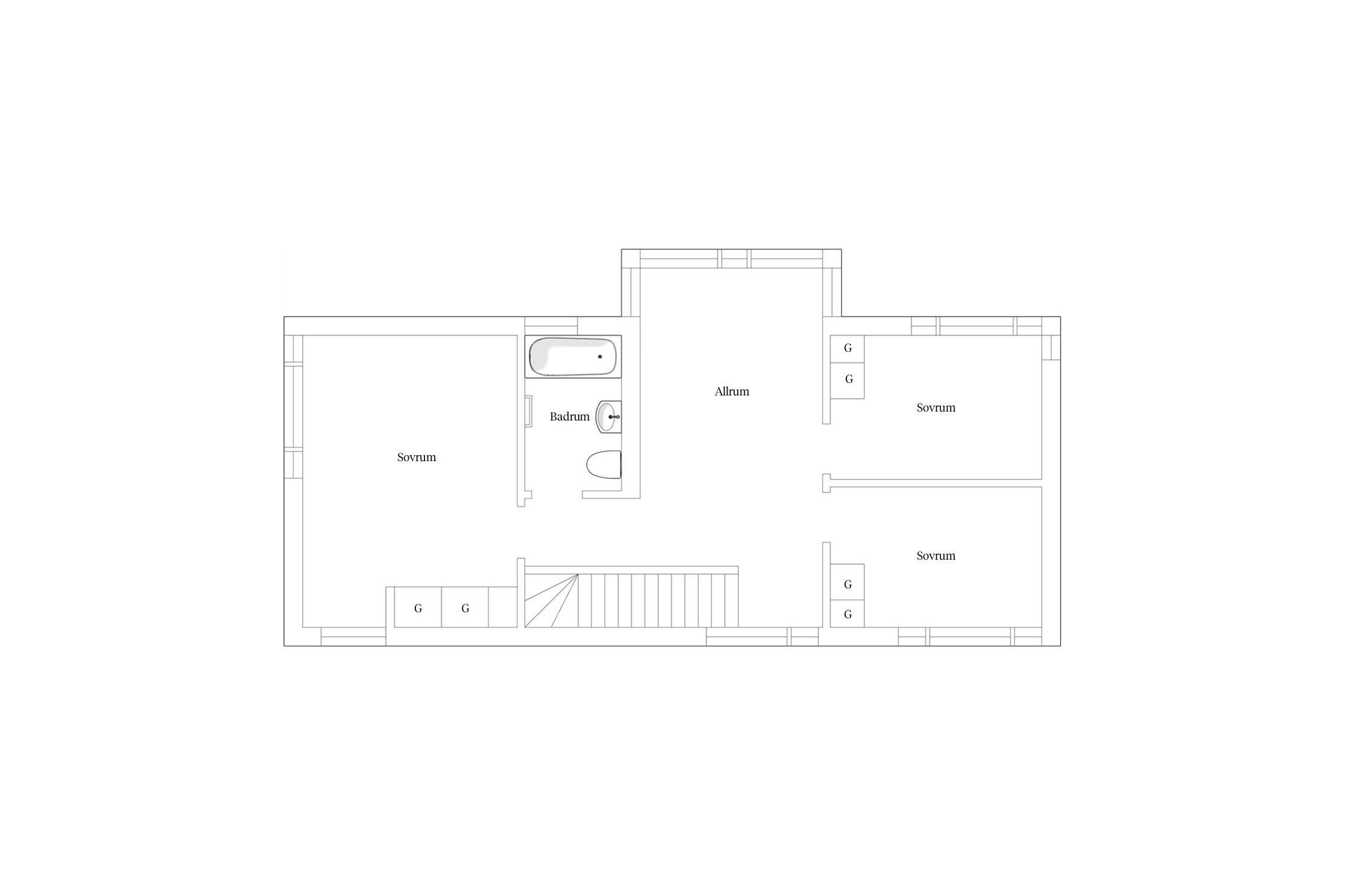
Trappan tar oss upp till övre plan. Här slås man genast av takhöjden, ända upp till nock. Gott om fönster ger rymd och ljus till hela det övre planet och även här bjuder havet på fantastisk utsikt. Allrummet blir ett bra komplement till det nedre vardagsrummet och härifrån når man samtliga sovrum.
Master bedroom rymmer med lätthet dubbelsäng och kompletterande avlastningsmöbler. Här finns också flera garderober för god klädvård.
De två mindre sovrummen ligger vägg i vägg och på motsatt sida av allrummet. Även i dessa rum finns platsbyggd förvaring. Används i dagsläget som hemmakontor/gästrum.
Bostadens andra badrum finns på detta plan. Gråtonat klinker samsas med vitt kakel. Komfort i form av badkar samt underliggande golvvärme. Här finns wc, handfat med ovansittande spegelskåp samt handduksstork. De diskreta färgvalen öppnar upp för textila färgklickar.
En isolerad bod fungerar som förråd och finns alldeles intill huset.



*Areauppgift enligt bostadsrättsföreningen
Inkl. kallvatten, sophämtning och privat carport. (Obligatoriskt tillägg om 220 kr per månad för Tv/Bredband och Ip-telefoni. Sammantaget ger det en månadskostnad om 5667 kr per månad)
Till bostaden hör ett fristående och isolerat förråd/bod i angränsning till bostadens entré.
I föreningen finns också en stor gemensamhetslokal med övernattningsmöjlighet. Perfekt för studenter, större kalas eller bara påhälsande släktmedlemmar.
Stort altandäck med havsutsikt.
En carport, alldeles intill huset, ingår i avgiften. Utöver det har föreningen ett flertal p-platser, carportar samt garage som man kan hyra.
4 timmars fri parkering samt avgiftsbelagda besöksparkeringar finns runtom i området och en avgiftsbelagd besöksparkering finns vid infarten till området.
Föreningen har tecknat avtal med Telia avseende bredband, TV samt IP- telefoni. Bredbandet är 100 Mbit/s. Paketet heter "Telia Lagom"
Bostadsrättens indirekta nettoskuldsättning baseras på föreningens skulder/lån minus föreningens räntebärande tillgångar och likvida medel. Beräkningen är gjord och baseras enbart på den senaste tillgängliga årsredovisningen. För mer information kontakta ansvarig fastighetsmäklare.
Driftskostnader som tillkommer är hushållsel inklusive nätavgift samt Fjärrvärme och sotning. Kostnader kan variera beroende på avtal och förbrukning och uppgifter härrör från säljaren. Detta hus har en hyrd fjärrvärmeanläggning som återfinns i groventrén.
Nuvarande ägare betalade år 2024 totalt 11.655 kr för uppvärmning av huset och vattnet genom fjärrvärme. Hushållets elförbrukning har legat på 3146 kr och kostnaden för elnätet på 600 kr för 2024. Sotning av kaminen har kostat ca 300 kr per år.
Välkommen till brf Valö Fyr, där god förvaltning, tryggt boende samt bra boendegemenskap är föreningens signum. Föreningens 49 huskroppar färdigställdes löpande under september -08 till juli -10.
Trähusen med karaktär av det gamla bohuslänska fiskesamhället, är ritade av arkitekten Anders Landström och ligger på toppen av Stora Billingen. Samtliga hus är utformade i ett och ett halvt plan och varierar mellan storlekarna 103 kvm, 123 kvm samt 136 kvm.
Husen är placerade likt de gamla skärgårdsbyarna där naturen med dess terräng fått bestämma dess placering. Stommen är av stabil konstruktion och byggd i massivträ. Taken består av lertegel och blir en läcker detalj till den liggande träpanelen i diskret grå kulör. Uppvärmning sker med fjärrvärme med undercentral samt individuell mätning för varje hus.
I dessa lättskötta samt energisnåla hus förenas fördelarna med villa och bostadsrätt- det bästa av två världar. Här bor man också med bergen och skogen i ryggen samt Göteborgs hamninlopp på första parkett- en svårslagen kombination!
Dess slingrande placering kring bergssluttningen är typiskt för de bohuslänska kustsamhället, vilket också medför en känsla av att man är betydligt längre från citykärnan än endast tio minuter. Här är också mycket barnvänligt med närhet till lekplatser, förskolor och skolor i Hagen och Nya Varvet. En kort promenad bort nås hållplatser för både buss- och spårvagnar som smidigt tar dig till Göteborgs olika stadsdelar.
Via den välskötta strandpromenaden nås inom ett par minuter Nya varvet med dess välbesökta utbud av småbåtshamn, fik, restauranger och inte minst promenadstråk. Väl värt ett besök!
Detta är en stabil och välskött bostadsrättsförening med mycket hjärta och gemenskap. Medlemmarna är flitiga arrangörer av diverse gemensamma aktiviteter och området har även en trevlig boulebana.
Föreningen har ordnat farthinder i området med en hastighetsbegränsning på 10 km/h. Man har även byggt ett skyddsstaket kring dammen. Mellan 2019-2020 har samtliga hus målats om.
Långedrag har allt – ett kustnära samhälle med flera segelklubbar, lugna, kuperade villagator, förstklassiga restauranger och cykelavstånd till centrala Göteborg. Inte undra på att Långedrag är ett av de mest omtyckta områdena, faktiskt inte bara i Göteborg utan i hela Sverige.
OMRÅDET
Långedrag beskrivs ofta som paradiset för båtfolk. Här möter du såväl proffs som söndagsseglare, träbåtsnostalgiker som fartälskare – och så förstås de som helst hänger på bryggan eller aldrig satt sin fot i en båt men ändå sällar sig till kategorin. För väl på plats i Långedrag blir du på ett både naturligt och nästan övernaturlig sätt en del av seglarvärlden. Men givetvis är Långedrag mycket mer än så. Inte minst är det ett levande och varierande landskap av villor och radhus av alla storlekar, stilar och epoker. Det är också klippor, stränder och bryggor, fint ackompanjerat av den friska brisen från havet. Spårvagnen som ringlar genom Långedrag ut till Saltholmen är tråden som knyter ihop innerstaden med porten till villaområdena i väster. Det är också här porten mot havet börjar med Nya Varvet och Tångudden, vidare ut till Hinsholmens småbåtshamn eller Saltholmen, där skärgårdsbåtarna tar vid. Att hav- och båtlivet är så genomgående beror på att det är en så självklar del av Långedrags historia. Man hittar även många spår från tiden då det var ett jordbruks- och fiskarsamhälle, samt från örlogsflottan och nationalromantiken från början av förra seklet när Långedrag blev en populär badort. Saltholmens kallbadhus är en av alla gamla fina traditioner som lever kvar, med sin charmigt avslappnade atmosfär.
FRITID
Det ligger nära till hands att anta att boende i Långedrag kommer lättare och oftare ut i friska luften, av naturliga skäl. De typiska långedragsborna uppskattar verkligen värdet av ett havsnära boende. Samtidigt är de inte skrytsamma, snarare stolta över sitt område som de vårdar, precis som sina trädgårdar och båtar. Promenera genom villakvarteren från Hagen till Tångudden och ut till Saltholmen en solig söndag, och du möts av ett fejande, putsande och målande. Den oprentiösa attityden beror kanske på att det inte finns något bevisa – Långedrag har ju ett självklart och välförtjänt gott rykte och behöver aldrig förklara eller förställa sig i något sammanhang.
Köpa, sälja eller värdera bostad på Tångudden, Långedrag? Kontakta våra mäklare i Västra Göteborg! Passa också på att anmäla dig till vår kostnadsfria söktjänst Boagenten som hjälper dig att hitta ditt drömboende.
Kontakta mäklaren om du behöver hjälp att ta fram en boendekalkyl.
När du köper din bostad genom Bjurfors kan du ansöka om bolån till en förmånlig ränta hos vår samarbetspartner SEB.
Bokad visning. Du kan även ringa Bjurfors Bokningscenter 031-761 79 50. Välkommen!