-
Köpa
Köpa -
Sälja
Sälja - Hitta bostad
- Skapa bevakning
- Hitta mäklare
Nybyggd lägenhet med härligt ljusinsläpp i populära Lindholmen
Lindholmen, Göteborg
*Månadsavgiften inkluderar värme, kabel-tv och bredband. El och vatten debiteras separat efter förbrukning via månadsavin.
**Areauppgifter enligt bostadsrättsföreningen.
På Förhand ligger bostäder som av olika anledningar inte är ute till försäljning just nu men som kan komma att säljas om förutsättningarna är rätt.
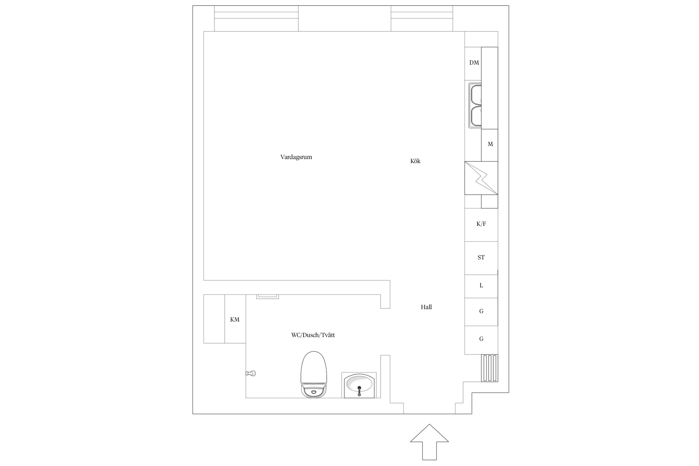
Välkomna till denna yteffektiva bostad där varje kvadratmeter nyttjats väl. Tack vare den optimala planlösningen får ni gott om plats för säng, matplats och soffgrupp utan att det känns trångt. Fönster släpper in ljuset och tillsammans med vita väggar fås en luftig atmosfär som gör det enkelt att sätta er egna prägel på bostaden. Badrummet är kaklat i modern färgskala med dusch, wc och tvättdel med kombinerad tvättmaskin som underlättar vardagsbestyren. Bra med förvaring genom flera garderober.
Denna studiolägenhet på Lindholmen är nybyggd i ett av Göteborgs häftigaste område. Föreningens energiklass är B vilket kan ge rabatt på bolånet från de flesta banker. Utanför föreningens fastighet finns en park som ger en trevlig plats av grönytor i området precis intill populära promenadstråk. Lindholmen är ett nytänkande område med bland annat Karlastaden som byggs, nära vatten och härliga promenadstråk. Många restauranger, caféer, närbutiker och gym finns inom promenadavstånd. Härifrån kommer du in till Brunnsparken på ca. 10 minuter och en kort promenad bort når ni Lindholmspiren med gratisfärjan Älvsnabbare som tar dig till city på ett trevligt sätt. Snart går även spårvagnen utanför som tar dig bland annat in till city. Lägenheten har ett centralt läge i Lindholmen med gångavstånd till Göteborgs universitet, Chalmers samt flera företag.



*Areauppgifter enligt bostadsrättsföreningen.
Månadsavgiften inkluderar värme, kabel-tv och bredband. El och vatten debiteras separat efter förbrukning via månadsavin.
Bostadsrättens indirekta nettoskuldsättning baseras på föreningens skulder/lån minus föreningens räntebärande tillgångar och likvida medel. Beräkningen är gjord och baseras på senaste tillgängliga årsredovisningen. För mer information kontakta ansvarig fastighetsmäklare.
*Betalas av köpare
Brf Futura består av 91 st lägenheter på adresserna Lindholmsallén 22 B, D och 24 B, C i hus om 4-8 våningar. Husen färdigställdes 2024 då inflytt skedde. Fastigheten urholkas av ett 3D-utrymme till förmån för två andra fastigheter. Bostadarea är 4344 kvm. Runt gården finns även en annan bostadsrättsförening och den gemensamma gården, garage, cykelrum, miljörum samt sophantering sköts och förvaltas av Futura samfällighetsförening, dit båda föreningarna betalar en samfällighetsavgift. På taken finns solcellsanläggning för att producera egen elförsörjningen till varje bostad går genom föreningen och debiteras efter förbrukning.
9 st av föreningens bostäder är köpta av Riksbyggen som kommer att tillhandahålla dessa genom "Hyrköp". Det innebär att man startar med att hyra i max 4 år. Därefter har man möjlighet att köpa bostaden av Riksbyggen. Om man inte gör det efter 4 år, kommer Riksbyggen i sin tur att sälja bostaden vidare på öppna marknaden. Under dessa 4 års hyrestid kommer man inte kunna hyra ut bostaden i andra hand, utan då säljer Riksbyggen bostaden istället om man inte kan nyttja den.
Teknisk och eknomisk förvaltning sköts av Riksbyggen.
Då föreningen är nystartad finns ännu en årsredovisning. För kostnadsberäkningar och finanseringplan hänvisas till den ekonomiska planen. Där finns även en känslighetsanalys som visar en bedömning över kostnadläget över några års sikt.
Föreningens fastighetsförsäkring inkluderar kollektiv bostadsrättstillägg för samtliga lägenheter.
Garage finns under föreningens fastighet och är gemensamt med ytterligare två fastigheter. Uthyrning sker via samfällighetsföreningen. Det finns 63 platser varav 6 förses med laddstolpe. Fördelning av platser sker utifrån respektive förenings storlek. En plats är reserverad för framtida bilpool. Kostnad 1200 kr/månad alt 1925 kr/mån för plats med laddstolpe.
I närområdet har även Göteborgs parkeringsbolag två p-hus där man kan hyra plats. Plats finns tillgängliga.
Byggnaden är ansluten till Tele2 frö TV, internet och telefoni.
I föreningen finns barnvagsrum, rullstodsförråd med laddning, cykelrum, miljörum, gemensamhetslokal samt en övernattningslägenhet. Det är även reserverats plats för framtida cykelpool.
Förråd i källarplan och till dessa har man särskild nyttjanderätt till. Det innebär att man på egen bekostnad skall sköta och hålla utrymmet i gott skick. Vissa lägenheter har istället förrådsutrymme inne i bostaden.
BO PÅ EXPANSIVA LINDHOLMEN
På Lindholmen bor du vattennära i ett område som är på väg att bli Göteborgs hetaste. Lindholmen är ett växande område där närheten till vattnet och naturen är viktiga ingredienser när innerstaden breder ut sig på andra sidan älven. Här växer nya stadsdelar upp i ett område med historiska anor.
EN HÅLLBAR BLANDSTAD
Här blandas nybyggt och modern design med fastigheter från den tidigare varvtiden. Hela området utvecklas nu till ett storstadsområde med nya kvarter som kommer att bli ett av Göteborgs hetaste och fräckaste bostadsområde. Inte minst med nya stadsdelen Karlastaden. På Lindholmen hittar du en skön mix av nöjen. För den matintresserade finns ett stort utbud av restauranger, barer och bagerier. Lockar kultur hittar du Aftonstjärnans biograf, konstnärsateljéer, evenemangshall och teater. Allt detta jämte Lindholmen Science Park, som är stadens mest kunskapsintensiva och expansiva område samt en viktig knutpunkt för det växande Göteborg. Här verkar forskare, universitet och gymnasieskolor sida vid sida med boende och företag. Med framtiden i fokus är en hållbar vardag och gröna värden viktiga faktorer, när Lindholmen växer fram.
Med Nordens högsta hus Karlatornet i centrum, växer här Karlastaden fram. En modern blandstad med Göteborgs första riktiga skyskrapa för boende. Här kommer finnas allt som en stad behöver. Förskolor, affärer och butiker i markplan blandas med restauranger och caféer samt saluhall och kulturhus. I Karlatornet byggs även en utsiktsplats, som är öppen för alla göteborgare och besökande turister. Ett helt nytt landmärke växer fram i dina kvarter.
NÄRA TILL BÅDE HAV OCH GRÖNSKA
Följ den träskodda kajen, som går från Älvsborgsbron längst Älvstranden och vattnet. Perfekt att ta vara på en solig dag med att slå dig ner på däcket. Koppla av och se på båtarna som glider förbi och verkligen njuta av harmonin, som infinner sig. Vill du njuta av utsikt över hela stan, ligger vackra och natursköna Ramberget alldeles i närheten.
För den idrottsintresserade finns ett stort utbud av träningsmöjligheter då många gymkedjor har etablerat sig här. Lundbys kulturskola har ett brett utbud för barn, här kan de bland annat spela musik och teater, dansa, sjunga, måla och jobba med keramik.
TA DIG ENKELT TILL CENTRALA GÖTEBORG
Cityfärjan Älvsnabben går från kajkanten och tar dig bekvämt och snabbt in till centrum utan bil och parkeringsbekymmer och är samtidigt ett mycket tilltalande sätt att få se staden och vattnet. Det går också en gratisfärja kontinuerligt från Lindholmen Science park direkt till Stenpiren. På färjorna tar du enkelt med dig cykeln, för fortsatt cykelfärd på andra sidan. Det finns också bra förbindelser med buss och spårvagn till centrala Göteborg. Föredrar du bil går det enkelt att ta sig ut på de stora lederna.
Köpa, sälja eller värdera bostad på Lindholmen? Kontakta våra Bjurfors mäklare på Hisingen! Passa också på att anmäla dig till vår kostnadsfria söktjänst Boagenten som hjälper dig att hitta ditt drömboende.
Kontakta mäklaren om du behöver hjälp att ta fram en boendekalkyl.
När du köper din bostad genom Bjurfors kan du ansöka om bolån till en förmånlig ränta hos vår samarbetspartner SEB.
Ansvarig mäklare