-
Köpa
Köpa -
Sälja
Sälja - Hitta bostad
- Skapa bevakning
- Hitta mäklare
Välplanerad etta med balkong i västerläge
Linné, Göteborg
*I avgiften ingår värme och kallvatten. Utöver avgiften tillkommer ett obligatorisk tillägg för triple play med 198 kr/mån. Kostnad för hushållsel och varmvatten tillkommer enligt schablon och räknas av kvartalsvis i efterskott efter faktisk förbrukning. (Schablonberäknad avgift för varmvatten 148 kr/mån avgift & för hushållsel 176 kr/mån)
**Areauppgifter enligt den ekonomiska förvaltaren.
Bokad visning. Du kan även ringa Bjurfors Bokningscenter 031-761 79 50. Välkommen!
Välkommen till denna moderna och yteffektiva etta om 26 kvm, perfekt belägen på eftertraktade Masthuggskajen. Här bor du i ett lugnt men centralt läge med närhet till allt området har att erbjuda – caféer, restauranger, service och utmärkta kommunikationer.
Bostaden har en öppen och social planlösning som gör att ytorna känns större än siffrorna anger. De stora fönsterpartierna släpper in rikligt med ljus, och från vardagsrummet når du den härliga balkongen i västläge, där du kan njuta av eftermiddags och kvällssolen.
Lägenheten är i mycket gott skick och utrustad med bekvämligheter som diskmaskin och tvättmaskin. Praktiskt och ovanligt smidigt för en etta i den här storleken.
Brf Ciceron är en stabil och modern förening som erbjuder sina medlemmar en fantastisk gemensam takterrass med utsikt över området – perfekt för sociala tillställningar eller lugna stunder i solen.
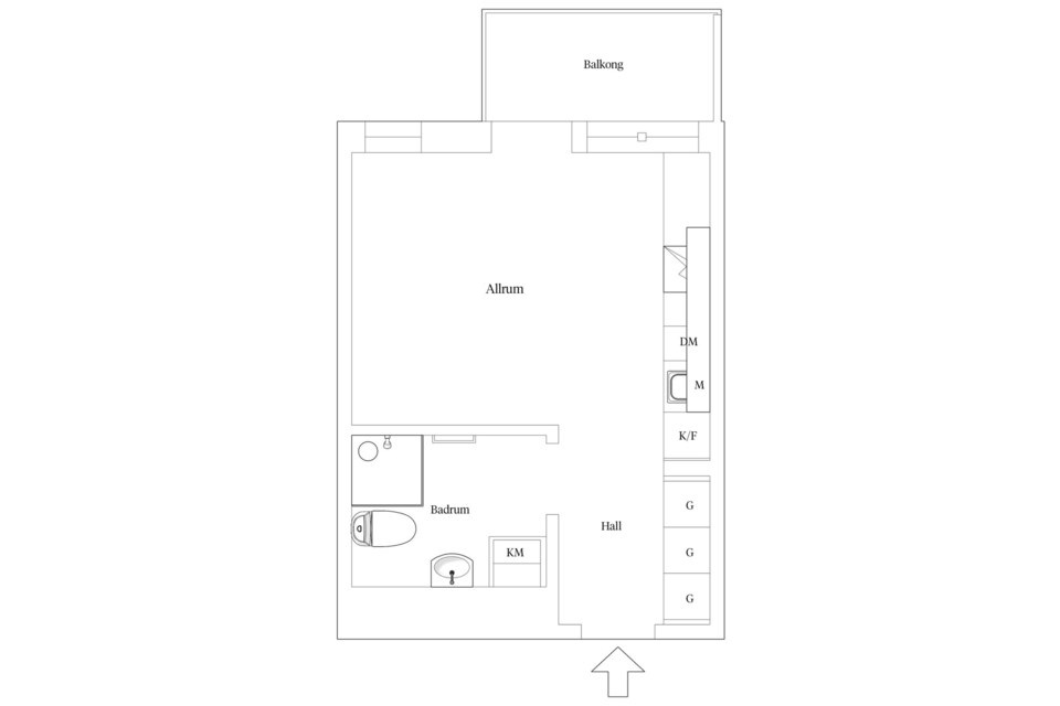
Hall:
Välkomnande hall med gott om plats för avhängning och förvaring. Ljusa materialval och smart planering ger ett ordnat första intryck och binder ihop bostadens ytor på ett naturligt sätt.
Allrum:
Ljust och luftigt rum med öppen planlösning som skapar en social och trivsam känsla. Här ryms både soffa, matplats och säng utan att rummet känns trångt. De stora fönstren släpper in rikligt med dagsljus och ger en harmonisk atmosfär. Direkt utgång till balkongen i västläge.
Kök:
Modernt och välutrustat kök med stilrena materialval. Köket erbjuder generöst med arbetsyta och förvaring samt full maskinpark för bekvämt vardagsliv – inklusive diskmaskin. Den öppna kopplingen mot vardagsrummet gör det enkelt att umgås medan du lagar mat.
Badrum:
Fräscht och helkaklat badrum i modern design. Här finns tvättmaskin för extra bekvämlighet, samt dusch, WC, handfat och förvaring i kommod och spegelskåp.
Balkong:
Underbar balkong i västerläge som bjuder på eftermiddags- och kvällssol. Perfekt för avkoppling, odling eller en kopp kaffe i solen. Läget är lugnt och avskilt trots närheten till stadspulsen.



*Areauppgifter enligt den ekonomiska förvaltaren.
I avgiften ingår värme och kallvatten. Utöver avgiften tillkommer ett obligatorisk tillägg för triple play med 198 kr/mån.
Kostnad för hushållsel och varmvatten tillkommer enligt schablon och räknas av kvartalsvis i efterskott efter faktisk förbrukning. (Schablonberäknad avgift för varmvatten 148 kr/mån avgift & för hushållsel 176 kr/mån)
Bostadens indirekta nettoskuldsättning grundar sig i föreningens ekonomiska plan.
Driftkostnaderna är schablon och baseras på individuell förbrukning.
*Betalas av köpare
Brf Ciceron med adress Nordhemsgatan 10 är ett flerbostadshus med 17 våningar. Nyproduceras av Nordr och har ritats av arkitekt Krook & Tjäder. Beräknad inflyttning i bostäderna är vintern 2023/2024.
Föreningen erbjuder en räntegaranti under tre år från tillträde. Vilket kommer samtliga föreningsmedlemmar till del i form av begränsade avgiftshöjningar kopplade till räntehöjningar.
Föreningen kommer att teckna en fastighetsförsäkring till fullvärde inklusive ansvarsförsäkring.
Föreningen förfogar över 34 parkeringstillstånd i externa parkeringsanläggningen P-hus Koffen. I området finns det även bilpooler. För närvarande är det KINTO och Volvo on Demand som har bilar i Koffen.
Föreningen är ansluten till Telia triple play. Obligatoriskt tillägg till avgiften om 198kr/mån.
Gemensamt vardagsrum i anslutning till entrén bestående av en köksdel, matplatsdel och badrum.
Cykelrum i två plan med spolplats och servicestation som nås från Första Långgatan. Miljörum finns i entréplan med ingång från Masthamnsgatan och korridor.
Gemensam takterrass om 110 kvm i fyra sektioner.
IMD för hushållsel och varmvatten, debiteras enligt schablon och räknas av kvartalsvis i efterskott efter faktisk förbrukning.
Har man en gång flyttat till Linné blir man lätt kvar här och det är inte undra på. Få stadsdelar erbjuder kombinationen av kontinental stadsvibb, ståtliga sekelskifteshus och en park som Slottsskogen intill, nästan som en egen trädgård – alltihop inlindat i en avslappnad och tillbakalutad atmosfär.
UTELIV OCH HEMMAKÄNSLA
Linné är en av Göteborgs mest omtyckta stadsdelar. Oavsett om du bor här eller bara brukar hänga på någon av de många restaurangerna, barerna eller kaféerna är det lätt hänt att du gör Linné till din hemmaplan – din del av stan. Det som bygger upp den sköna stämningen i Linné är förmodligen områdets blandning av folk, allt ifrån unga hipsters till äldre damer med hund och småbarn i overall. Längs huvud-stråket Linnégatan är det alltid folk i rörelse och gatan binder ihop Järntorget i norr med Slottsskogen i söder, samt sidogatorna med dess respektive kvarter.
MOTLUT OCH UPPSVING
När du bott ett tag i Linné upptäcker du snart att de olika kvarteren skiljer sig åt i såväl karaktär som byggnadsstilar. Linnégatan kantas av många stenhus från sekelskifte till 1930-tal, med restauranger, kaféer, frisörer och boutiquer i gatuplan. Även i Kommendantsängen öster om Linnégatan finns många bra matställen, bagerier och speciella affärer. Olivedal, väster om Linnégatan är även det ett vibrerande område men med lugnare gator insprängda, samt några av stans allra brantaste backar och trappor. På kvällarna flockas tusentals nöjeslystna människor i Linné, framförallt i kvarteren längs Långgatorna som fått ett enormt uppsving de senaste åren.
Det är ingen hemlighet att närheten till Slottsskogen är en stor orsak till att det är så populärt att bo här. Vad kan ge mer livskvalitet än att vilken dag som helst på året kunna ladda med en morgonjogg i din egen park, eller slappa i eftermiddagssolen med vännerna? Löprundan förlänger du lätt genom att ta dig vidare upp mot vildmarken i Änggårdsbergen.
STAMMISAR OCH NYTÄNKARE
Även om Linnéområdet utvecklas och nya ställen poppar upp emellanåt finns det vissa saker som ändå är precis som de alltid har varit. Visst säger det en del om en inrättnings popularitet när den har 10, 20 eller 30 år på nacken, vilket gäller för många klassiska kaféer, restauranger och butiker längs Linnégatan. Kanske är det så att invånarna i Linné ofta väljer sitt eget stammisställe, gärna i samma byggnad man bor i, så att man kan traska ner en helt vanlig tisdag och låtsas som att det är helg.
Köpa, sälja eller värdera bostad i Linné? Kontakta våra mäklare i Göteborg! Passa också på att anmäla dig till vår kostnadsfria söktjänst Boagenten som hjälper dig att hitta ditt drömboende.
Kontakta mäklaren om du behöver hjälp att ta fram en boendekalkyl.
När du köper din bostad genom Bjurfors kan du ansöka om bolån till en förmånlig ränta hos vår samarbetspartner SEB.
Bokad visning. Du kan även ringa Bjurfors Bokningscenter 031-761 79 50. Välkommen!
Ansvarig mäklare