-
Köpa
Köpa -
Sälja
Sälja - Hitta bostad
- Skapa bevakning
- Hitta mäklare
Exklusiv 2:a med balkong i söderläge – ett hem med ljus, stil och tidstypisk charm från 1913
Lorensberg, Göteborg
*I månadsavgiften ingår värme och VA. Utöver månadsavgiften tillkommer ett obligatoriskt tillägg om 100 kr/mån för bredband och 71 kr/mån för balkongtillägg. Den totala kostnaden blir då 3 337 kr per månad.
**
Uppmätt 2026-03-26, 2 rok enligt lägenhetsförteckningen.
Bokad visning. Du kan även ringa Bjurfors Bokningscenter 031-761 79 50. Välkommen!
På Förhand ligger bostäder som av olika anledningar inte är ute till försäljning just nu men som kan komma att säljas om förutsättningarna är rätt.
Bjurfors Century presenterar ett stilfullt hem där tidstypisk charm möter modern perfektion. I en mycket stabil BRF!
Så snart du kliver in genom entrédörren möts du av en harmonisk och pampig atmosfär – ett hem där varje detalj vittnar om omsorg och karaktär. Hallen välkomnar med ett exklusivt, tidstypiskt klinkergolv från Byggfabriken, platsbyggd förvaring och en stor specialbeställd spegel som förstärker känslan av rymd och ljus. Härifrån nås även ett smart planerat halvrum som idag används som kontor – en perfekt plats för arbete, studier eller kreativt skapande.
Bostaden har under åren 2022–2025 genomgått en omfattande och varsam renovering där originalgolven har tagits fram och slipats i en matt, elegant finish. Samtliga ytskikt har målats i noggrant utvalda kulörer, och genomgående återfinns imponerande, cirka 40 cm höga golvsocklar i klassisk stil – ett gediget hantverk som skapar en enhetlig och exklusiv helhet.
Planlösningen har omsorgsfullt utvecklats för att möta dagens behov. En vägg har öppnats upp och en annan tillförts, vilket skapar en social och luftig koppling mellan kök och vardagsrum, samtidigt som ett separat kontor möjliggjorts.
Kök och vardagsrum samspelar i en öppen och inbjudande miljö där ljuset flödar in från generösa fönster i söderläge. Köket, installerat 2025 från danska Reform, är ett verkligt drömkök med genomtänkta lösningar och materialval i toppklass. Här möts du av bänkskivor i exklusiv Kinnekulle-kalksten i två nyanser, integrerade vitvaror inklusive vinkyl, en platsbyggd fläkt samt en påkostad spis från Ilve. Köksön skapar både arbetsyta och en naturlig samlingspunkt. Takrosetter, stuckaturer, gjutjärnselement och de höga golvsocklarna förstärker den tidstypiska charmen, medan de framtagna plankgolven ger värme och autenticitet.
Via hallen nås bostadens mer privata del. Badrummet har 2025 lättrenoverats med stor omsorg – med målade ytskikt, inbyggt badkar och ny kommod skapas en stilren och funktionell miljö. Sovrummet är rofyllt och vetter mot balkongen i soligt söderläge. Här finns fyra platsbyggda garderober som erbjuder generös förvaring, och stora fönsterpartier samt balkongdörr förstärker känslan av ljus och rymd. Balkongen, med ny trall från 2024, blir en självklar plats för morgonkaffe eller avkoppling i solen.
Detta är ett hem där sekelskiftescharm möter moderna bekvämligheter på ett sällsynt harmoniskt sätt. Originaldetaljer från 1913 – såsom takrosetter, gjutjärnselement, höga golvsocklar och vackra snickerier – samspelar med exklusiva materialval och nutida funktionalitet. Med sociala ytor, rikligt ljusinsläpp, balkong i söderläge och en smart planlösning upplevs bostaden större än sina kvadratmeter.
Här bor du i ett attraktivt läge med stadens puls, kommunikationer och grönområden inom räckhåll – samtidigt som hemmet erbjuder en lugn och privat oas.



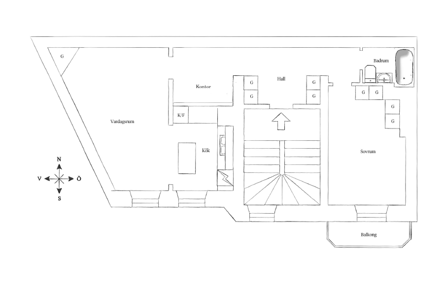
Planskiss
*
Uppmätt 2026-03-26, 2 rok enligt lägenhetsförteckningen.
I månadsavgiften ingår värme och VA. Utöver månadsavgiften tillkommer ett obligatoriskt tillägg om 100 kr/mån för bredband och 71 kr/mån för balkongtillägg. Den totala kostnaden blir då 3 337 kr per månad.
Till lägenheten disponeras ett vindsförråd.
Magisk balkong i söderläge.
TV: TV och bredband via Telia.
Bostadsrättens indirekta nettoskuldsättning baseras på föreningens skulder/lån minus föreningens räntebärande tillgångar och likvida medel. Beräkningen är gjord och baseras enbart på den senaste tillgängliga årsredovisningen. För mer information kontakta ansvarig fastighetsmäklare.
Brf Skånegatan 37 bildades 2001, då de förvärvade fastigheten Heden 31:6. Fastigheten byggdes 1913 och består av 1 flerbostadshus med adresser Skånegatan 37A och B. Föreningen upplåter 19 lägenheter med bostadsrätt och 1 lägenhet och 5 parkeringsplatser med hyresrätt. Föreningen har ett soprum och en tvättstuga som delas med Familjebostäder. Förvaltningen sköts av Bredablick.
Föreningen höjde avgifterna med 2 % i januari 2025 och med 2% 2026.
Exempel på genomfört underhåll:
1980: Rör- och elstambyte, omläggning av tak och omputsning fasad.
2008-2009: Utbyte av porttelefon, ommålning av trapphusen och ombyggnation av lokal till 2 st lägenheter.
2009-2010: Nya balkonger.
2014: Euroborbehandling av fastighetens pålar.
2015: OVK.
2016: Dränering.
2017: Målning av tak, fasadrenovering 37A.
2018: Säkerhetsdörrar och målning tak 37B.
2019: Målning av fönster mot gården.
2020: Renovering av porten.
2021: Spolning och filmning stammar.
2022: Relining av stammar samt installation av fem laddstolpar.
2023: OVK-besiktning.
2024: Borttagning av betongpellare samt läggning av gatsten framför entré
Exempel på kommande underhåll:
Under 2026 påbörjas renovering av burspråk med tillhörande fönsterpartier, om ca 5år så planeras ytterligare fönster att renoveras på primärt innergård, samt omläggning tak.Pågående OVK arbeten som bekostas av medlem men samordnas av föreningen/styrelsen.
LORENSBERG ÄR EN STADSDEL MED NÄRHET TILL ALLT
Genom hjärtat av Göteborg där pulsen slår som hårdast, löper Avenyn med sina butiker, restauranger, kaféer och de klassiska nattklubbarna. Men Lorensberg är så mycket mer än bara Avenyn. Kvarteren har gamla anor och ett högt kulturhistoriskt värde och här har du nära till allt. Mer centralt än så här kan man helt enkelt inte bo.
KLUBBKIDS OCH KULTURTANTER
Hela Lorensberg andas historia. Det var här stadens societet skulle bo när den förnäma stadsdelen planerades på 1860-talet. Sedan dess har de stora, pampiga stenhusen i Jugend-, nationalromantik och tjugotalsklassicism fått sällskap av funkishus från 1930-tal och tillsammans med nyare hus från 70- och 80-talen skapar de den storstadskänslan som är så typisk för Lorensberg.
Carl Milles Poseidon har blivit en symbol för Göteborg där han ståtligt tittar ut över Avenyn, omringad av Konstmuseet, Stadsteatern och Konserthuset. Platsen byggdes till Jubileumsutställningen 1923 och är i nyklassicistisk stil. Här i finkulturens centrum är det inte långt till andra nöjen och Avenyns trendiga klubbar. På parallellgatan Södra vägen hittar du ett pärlband av restauranger för alla smaker och många fina mindre butiker och mysiga kaféer. Det centrala läget till trots uppstår ett skönt lugn så snart man viker av från huvudgatorna.
NÄRA TILL ALLT
Mitt i Göteborg är det aldrig långt att ta sig någonstans. I stadsdelen finns ett stort utbud av förskolor, grundskolor och gymnasium. Flera buss- och spårvagnslinjer löper genom stadsdelen och Korsvägen, Valand och Hedens busscentral är tre av stans viktigaste knutpunkter.
Snett bakom Götaplatsen planeras det för det nya området Cirkus Lorensberg, med bostäder och lokaler. Social och ekologisk hållbarhet kommer att prägla området och ska bidra till att hela Lorensberg blir en influens som inbjuder till ett gott vardagsliv och möten i innerstadsmiljö.
Köpa, sälja eller värdera bostad i Lorensberg? Kontakta våra mäklare i Göteborg! Passa också på att anmäla dig till vår kostnadsfria söktjänst Boagenten som hjälper dig att hitta ditt drömboende.
Kontakta mäklaren om du behöver hjälp att ta fram en boendekalkyl.
När du köper din bostad genom Bjurfors kan du ansöka om bolån till en förmånlig ränta hos våra banksamarbetspartners Söderberg & Partners och SEB.
Bokad visning. Du kan även ringa Bjurfors Bokningscenter 031-761 79 50. Välkommen!
Ansvarig mäklare