-
Köpa
Köpa -
Sälja
Sälja - Hitta bostad
- Skapa bevakning
- Hitta mäklare
Ståndsmässig tvåa om 83 kvm med två balkonger och nyinstallerad bastu!
Lorensberg, Göteborg
*I avgiften ingår värme, vatten och TV.
**Areauppgifter enligt säljaren och förvaltaren
Bokad visning. Du kan även ringa Bjurfors Bokningscenter 031-761 79 50. Välkommen!
Bjurfors Century presenterar en smakfullt renoverad tvåa om hela 83 kvm. Bostaden erbjuder dubbla balkonger, bastu och luftiga rumsvolymer.
Välkomna till Wadmansgatan 4 och en ståndsmässig tvåa om hela 83 kvm. Bostaden erbjuder två härliga balkonger, bastu, luftig takhöjd och sällsynt bevarad charm från byggåret.
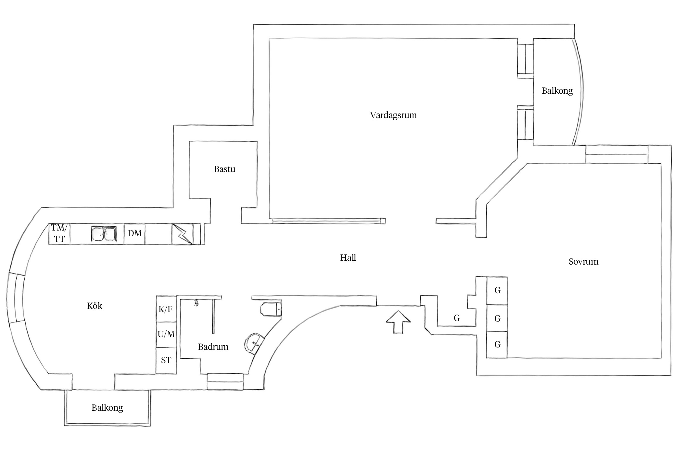
I hjärtat av Lorensbergs ståndsmässiga kvarter där stenhusen i nationalromantikens tecken avlöser varandra har vi nu nöjet att presentera en ljus och rymlig tvåa om hela 83 kvadratmeter. Bostaden ligger två hela trappor upp från entrén (hiss finns!) och läget på Wadmansgatan är rofyllt med en kontinental stämning. Skicket är mycket gott med genomgående smakfulla renoveringar av både kök, badrum och ytskikt. De dubbla balkongerna, en från köket och en från vardagsrummet, skapar en trivsam känsla. Vardagsrumsbalkongen mot Wadmansgatan ligger i rakt västerläge med eftermiddagssol och köksbalkongen ligger i behagligt norrläge. Sovrummet är en klass för sig med fiskbensparkett, kassettak samt måttanpassade mörkläggningsgardiner som följer med köpet. I bostaden finns även något så unikt som en nyinstallerad bastu (plats för 4 personer) som nuvarande ägare låtit installera. Rymligt och välutrustat kök med gott om plats för matbord.
Mitt i den välbevarade stenstaden Lorensberg i en lika formren som pampig byggnad anno 1912 är det inte svårt att trivas. Här har ni kort promenadavstånd till såväl stans bästa restauranger som till lugnet runt Näckrosdammen. Från Berzeliigatan eller Korsvägen finns kommunikationer till samtliga delar av staden. Det är inte svårt att förstå varför kvarteret bär på ett kulturhistoriskt arv.
Välkomna på visning!
Via det tidstypiska trapphuset anno 1912 tar ni trapporna eller hissen upp till våning 2. Här välkomnas ni till en rymlig hall med gott om plats för förvaring i en överraskande stor klädkammare. På golvet ligger trägolv och väggarna är nymålade.
Till höger från hallen nås en av bostadens stora höjdpunkter - Sovrummet. Taket är klätt med ett mycket pampigt kassettak, väggarna är målade och på golvet ligger en klassisk behandlad fiskbensparkett. Gott om klädförvaring i garderober.
Vardagsrummet är mycket luftigt med gott om plats för soffgrupp och matgrupp. Även här ligger fiskbensparkett och taket är klätt med sparsmakad stuckatur. Från vardagsrummet nås en av bostadens två balkonger, denna mot lugna Wadmansgatan där ni får fin eftermiddagssol.
Till vänster från entrén nås köket som renoverades smakfullt 2015/2016. Väggarna är ljusa, på golvet ligger brädgolv och utrustningen består av induktionshäll, inbyggd ugn och micro, integrerad diskmaskin, fläkt, vinkyl, nyinstallerad tvättmaskin samt kombinerad kyl/frys. All utrustning är från Siemens och Fjäråskupan, bänkskivan är i carraramarmor och skåpinredningen är från Kvik. Från köket nås den andra balkongen, denna i norrläge.
Badrummet är även det smakfullt renoverat. Väggarna är helkaklade i vitt, golvet klätt i oktagonskuren klinker i svart och utrustningen består av wc, handfat, dusch och golvvärme. Behagligt vädringsfönster mot innergården.
Sist men inte minst har vi bastun som ligger mitt emot badrummet. Bastun är nyinstallerad 2025 och rymmer 4 personer. Den kan startas via mobilen och värms upp på ca 20 minuter - Vilken dröm efter en löprunda i höstrusket!



*Areauppgifter enligt säljaren och förvaltaren
I avgiften ingår värme, vatten och TV.
Till bostaden nyttjas ett källarförråd.
Två balkonger.
Bostadsrättens indirekta nettoskuldsättning baseras på föreningens skulder/lån minus föreningens räntebärande tillgångar och likvida medel. Beräkningen är gjord och baseras enbart på den senaste tillgängliga årsredovisningen. För mer information kontakta ansvarig fastighetsmäklare.
*Betalas av säljare
Bostadsrättsföreningen Ametisten nr 18 registrerades 1981 och förvärvade fastigheten Heden 26:18 1919. Föreningen upplåter 17 lägenheter med bostadsrätt och 2 lokaler med hyresrätt. Adresserna är Wadmansgatan 4A och B. Byggnadens totalyta är enligt taxeringsbeskedet 1 615 kvm, varav 1 489 kvm utgör lägenhetsyta och 126 kvm lokalyta.
Den ekonomiska förvaltningen sköts av EkoGruppen i Väst AB. De senaste åren har man höjt avgiften och i dagsläget finns det inga planer på ytterligare justeringar.
Exempel på genomfört underhåll:
2023: Gjutit platta för brandtrappa på innergård. Tagit ner och forslat bort almsjukt träd på innergård. Bytt ut karm och dörr till hyresgästs lokal på innergård.
2022: Omvandlat föreningslokal till lägenhetsförråd.
2021: Nya balkonger samt ett klart bygglov för att omvandla råvinden till lägenheter.
2020: Renoveirng av entrén till innergården.
2019: OVK med godkänt resultat.
2017: Service och underhåll av hissen.
2016-2017: Renovering mot hussvamp samt byte av fönster mot gatan.
2012: Fasadrenovering samt relining av stammarna.
1990-1993: Byte av el och VA-stammar.
Exempel på kommande underhåll:
Föreningen följer en underhållsplan som sträcker sig till 2030, vilken uppdaterades 2022. De har ett pågående projekt med att omvandla råvinden till lägenheter, där den erhållna försäljningslikviden planeras gå till att amortera ner lånen samt till kommande underhåll av fastigheten. De planerar bl.a. att bygga en ny tvättstuga och torkrum, ett nytt cykelhus på gården, renovera trappuppgångar samt rusta upp fönster mot innergården mellan 2023-2026. Byggstart på vinden är planerad under 2025.
Fullvärdesförsäkring finns via Bostadsrätternas medlemsförsäkring. I försäkringen ingår kollektivt bostadsrättstillägg för medlemmarna samt ansvarsförsäkring för styrelsen.
Boendeparkering M gäller i området. Föreningen har tre stycken parkeringsplatser med löpande schema mellan medlemmar som får hyra ett år i taget.
Tv och bredband via Tele2.
Fin innergård med uteplats och grönområde. Här finns även ett återvinningshus med bra källsortering. Gemensam tvättstuga med nya maskiner finns i huset.
LORENSBERG ÄR EN STADSDEL MED NÄRHET TILL ALLT
Genom hjärtat av Göteborg där pulsen slår som hårdast, löper Avenyn med sina butiker, restauranger, kaféer och de klassiska nattklubbarna. Men Lorensberg är så mycket mer än bara Avenyn. Kvarteren har gamla anor och ett högt kulturhistoriskt värde och här har du nära till allt. Mer centralt än så här kan man helt enkelt inte bo.
KLUBBKIDS OCH KULTURTANTER
Hela Lorensberg andas historia. Det var här stadens societet skulle bo när den förnäma stadsdelen planerades på 1860-talet. Sedan dess har de stora, pampiga stenhusen i Jugend-, nationalromantik och tjugotalsklassicism fått sällskap av funkishus från 1930-tal och tillsammans med nyare hus från 70- och 80-talen skapar de den storstadskänslan som är så typisk för Lorensberg.
Carl Milles Poseidon har blivit en symbol för Göteborg där han ståtligt tittar ut över Avenyn, omringad av Konstmuseet, Stadsteatern och Konserthuset. Platsen byggdes till Jubileumsutställningen 1923 och är i nyklassicistisk stil. Här i finkulturens centrum är det inte långt till andra nöjen och Avenyns trendiga klubbar. På parallellgatan Södra vägen hittar du ett pärlband av restauranger för alla smaker och många fina mindre butiker och mysiga kaféer. Det centrala läget till trots uppstår ett skönt lugn så snart man viker av från huvudgatorna.
NÄRA TILL ALLT
Mitt i Göteborg är det aldrig långt att ta sig någonstans. I stadsdelen finns ett stort utbud av förskolor, grundskolor och gymnasium. Flera buss- och spårvagnslinjer löper genom stadsdelen och Korsvägen, Valand och Hedens busscentral är tre av stans viktigaste knutpunkter.
Snett bakom Götaplatsen planeras det för det nya området Cirkus Lorensberg, med bostäder och lokaler. Social och ekologisk hållbarhet kommer att prägla området och ska bidra till att hela Lorensberg blir en influens som inbjuder till ett gott vardagsliv och möten i innerstadsmiljö.
Köpa, sälja eller värdera bostad i Lorensberg? Kontakta våra mäklare i Göteborg! Passa också på att anmäla dig till vår kostnadsfria söktjänst Boagenten som hjälper dig att hitta ditt drömboende.
Kontakta mäklaren om du behöver hjälp att ta fram en boendekalkyl.
När du köper din bostad genom Bjurfors kan du ansöka om bolån till en förmånlig ränta hos vår samarbetspartner SEB.
Bokad visning. Du kan även ringa Bjurfors Bokningscenter 031-761 79 50. Välkommen!