-
Köpa
Köpa -
Sälja
Sälja - Hitta bostad
- Skapa bevakning
- Hitta mäklare
Stor enrummare med balkong i sydvästläge!
Norra Guldheden, Göteborg
*Obligatoriskt tillägg på 13kr/månaden elmätartjänst (IMD-el) och 145 kr/mån för Bredband, TV och Telefoni (Telenor). Total avgift på 3 294 kr.
**Areauppgift enligt säljare och bostadsrättsförening
Bokad visning. Du kan även ringa Bjurfors Bokningscenter 031-761 79 50. Välkommen!
På Förhand ligger bostäder som av olika anledningar inte är ute till försäljning just nu men som kan komma att säljas om förutsättningarna är rätt.
Bjurfors Century presenterar en fullutrustad enrummare i ett grönskande och insynskyddat läge - ett stenkast bort från centrum och universitet.
Välkommen till denna optimalt planerade enrummare. Du möts av genomgående parkett, takets generösa höjd, fönsterbänkar i marmor - kombinerat med ett stilrent kök med diskmaskin och ett helkaklat badrum. Lägenheten flödar av naturligt ljus och bjuder in till en balkong i sydvästläge, som är belägen högt över marken och med grönskan framför. Balkongen utgör en idealisk plats för att njuta av solens strålar under vår- och sommarmånaderna. Här bor ni i en omtyckt och välskött förening som äger marken. Föreningen har genom åren genomfört flera större renoveringar och har en sund ekonomi med låg belåningsgrad. Som medlem i föreningen får ni tillgång till flera uppskattade gemensamhetsutrymmen såsom träningslokal, pingisrum, cykelrum, tvättstugor och en härlig innergård med lekplats och pallkrageodling för den odlingsintresserade. Boendeparkering finns att tillgå.
Belägen i Norra Guldheden är ni omringade av grönska med närhet till ett flertal grönområden, som Änggårdsbergen med mysiga jogging- och promenadstråk, Slottsskogen och Göteborgs botaniska trädgård. Området har dessutom närhet till flertal lekplatser, förskolor, grundskolor, universitet, bland annat Chalmers tekniska högskola. Ett stenkast bort ligger dessutom Geovetarcentrum, Sahlgrenska och Guldhedstorget, där finns det mesta ni kan behöva med kort varsel likt Tempo livsmedelsbutik, restauranger och andra trevliga butiker. En promenad bort nås även Landala torg som erbjuder bland annat apotek, matbutik, frukt- och grönsaksaffär, fiskaffär, blomsteraffär, systembolag och gym. Från bostaden har ni goda kommunikationer med både buss och spårvagn från Wavrinskys plats och Medicinaregatan, som tar er till stadens alla hörn och med promenadavstånd når ni Linnéstaden, Vasastaden, Avenyn och dess trevliga utbud av caféer och restauranger.
Varmt välkommen till att kontakta ansvarig mäklare för mer information om bostaden!
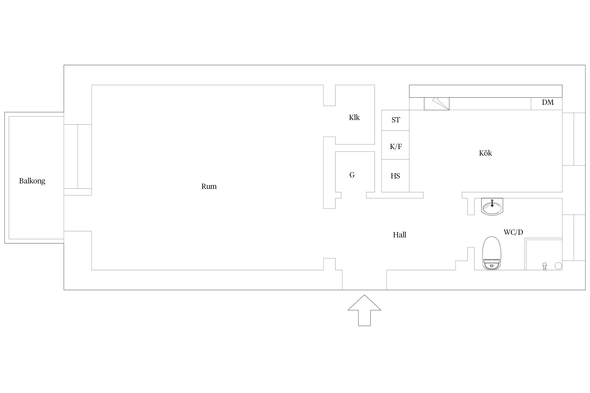
Genom entrén möts du av ett ljust och luftigt intryck med genomgående parkettgolv, generös takhöjd och ljusa ytskikt, vilket skapar en tidlös och fräsch känsla. Hallen är rymlig och ger plats för möblemang, här finns inbyggd garderob med gott om plats för ytterkläder, skor eller annan förvaring.
Framför dig nås det stilrena köket i original, som både är praktiskt och trivsamt - köket har varsamt uppdaterats med bekvämligheter som diskmaskin. Vita skåpsluckor möter ett gråblått kvadratiskt kakel samt en bänkskiva i rostfritt stål. Här finns gott om arbetsyta, plats för matbord och förvaring i både över- och underskåp. Den maskinella utrustningen består av spis, ugn med kermikhäll, fläkt, kombinerad kyl och frys samt en mindre diskmaskin – perfekt för en smidig vardag.
Allrummet, som ligger i anslutning till hallen, är rymligt och flexibelt, vilket gör det enkelt att inreda med både sovdel, soffhörna och studie eller arbetsplats. En inbyggd klädkammare ger extra förvaring, och den stora bonusen är balkongen i ett härligt sydvästläge. Tack vare byggnadens placering är balkongen belägen högt över marken.
Badrummet är helkaklat med vitt kakel, blått klinker och utrustat med toalett, handfat, spegel, och badkar som kan bytas ut till dusch, om det skulle önskas istället. Ett stort fönster släpper in naturligt ljus och ger möjlighet till vädring. Dessutom finns en handukstork för extra komfort.
Tvättstuga finns för en smidig och effektiv tvätthantering. Till lägenheten disponeras ett vindsförråd och källarförråd.
Denna bostad erbjuder en perfekt kombination av charm, smart planlösning och bekvämligheter – ett riktigt trivsamt boende!



Med reservation för avvikelser. Planskissen är ej skalenlig
Guldheden 17:1
*Areauppgift enligt säljare och bostadsrättsförening
Obligatoriskt tillägg på 13kr/månaden elmätartjänst (IMD-el) och 145 kr/mån för Bredband, TV och Telefoni (Telenor). Total avgift på 3 294 kr.
*Besiktigad: torsdag 15 oktober 2020
Till bostaden disponeras ett vindsförråd och källarförråd.
Balkong i sydvästläge.
Ingår i månadsavgift som ett obligatoriskt tillägg.
Bostadsrättens indirekta nettoskuldsättning baseras på föreningens skulder/lån minus föreningens räntebärande tillgångar och likvida medel. Beräkningen är gjord och baseras enbart på den senaste tillgängliga årsredovisningen. För mer information kontakta ansvarig fastighetsmäklare.
*Betalas av säljare
BRF Guldlänken (757200-8881) är belägen i Norra Guldheden, ett centralt läge nära Linnéstaden, Vasastaden, Chalmers, Sahlgrenska och Änggårdsbergen.
I föreningen har ni tillgång till större gräsytor och mycket grönska, vilket gör området till en lugn oas.
Föreningens fastigheter byggdes år 1946 (färdiga för inflyttning år 1947), består av tre våningar höga tegelhus och omfattar gatorna Ängemarken 1-11, Lövskogsgatan 3-11, Fricksgatan 2-4 samt Vildapelsgatan 3 som år 2014 byggdes om från affärslokal till fyra lägenheter.
Föreningen äger marken och påverkas inte av Göteborgs stad tomträttsavgäld.
Lägenhetsbeståndet är totalt 173 och fördelar sig på 12 fyror, 52 treor, 64 tvåor och 45 ettor. Samtliga lägenheter har balkong och rymliga källar- och vindsförråd. Föreningen äger även två lokaler som idag används som frisersalong och tandläkarmottagning.
Det finns en odlingsgrupp i bostadsrättsföreningen med pallkragsodling på gräsmattan mellan Ängemarken 11 och Lövskogsgatan 3.
Odlingen finansieras av odlarna själva och eventuella bidrag.
Förvaltare:
HSB sköter föreningens ekonomiska och administrativa förvaltning.
Novo Fastighet & Förvaltning sköter fastighetsskötseln och städningen. Optimal Service sköter föreningens tekniska förvaltning.
Information om planerad byggnation i området, läs mer på Stadsbyggnadskontorets hemsida:
https://goteborg.se/wps/portal/start/byggande--lantmateri-och-planarbete/kommunens-planarbete/plan--och-byggprojekt?uri=gbglnk%3Agbg.page.bb7386fd-1152-47cb-9da4-d06bd7780a77&projektid=BN0449%2F11
För ytterliga information besök föreningens hemsida http://brfguldlanken.se/medlemsinformation/renovering
Kontakta styrelse på - guldlanken@gmail.com
Se årsredovisning, stadgar och energideklaration.
Föreningens ekonomi är mycket välskött och belåningsgraden låg. Belåningsgraden i bostadsrättsföreningar ligger normalt på en nivå mellan 0-12.000 kronor/kvadratmeter, i HSB Brf Guldlänken uppgår detta nyckeltal under 3 087 kr/kvadratmeter enligt årsredovisningen 2023.
Inför 2023 höjdes avgiften med 16% och 2024-01-01 med 8%. Avgiften för 2025 är justerad med 3%.
Inga kommande avgiftshöjningar, information från styrelsen 9/12-2025.
Fastigheten är fullvärdesförsäkrad genom Länsförsäkringar. Alla boende behöver själva ordna bostadsrättstillägg.
Renoveringar/underhåll i urval:
1984-1985 Byte av vertikala stammar, omfogning av tegel på alla fastigheter, stuprör och hängrännor är behandlade eller bytta på alla fastigheter, renovering av alla balkonger, byte till 3-glasfönster, byte av takpannor, byte av yttedörrar och balkongdörrar, isolering av vind och fasader.
2005 Byte av takfläktar inklusive styrning.
2009 Målning av samtliga trapphus och skorstenar, portar renoverades.
2010 Byte av termostatventiler till samtliga radiatorer, byte av exteriörbelysning vid alla trapphus.
2014 Byggdes en lokal om till 4 nya lägenheter; Vildapelsgatan 3 A-D och dessa lägenheter fick i samband med ombyggnationen nya rör.
2016 Utfördes ett markprojekt, där en stödmur längs Lövskogsgatan ersattes mot en ny och
dagvattenledningar längs samma sträcka byttes ut.
2015-2017 Slipning av golv genomfördes löpande i trapphusen på Lövskogsgatan 3,5 och 11, Ängemarken 1-5,7,9 och 11, Fricksgatan 2 och 4.
2016-2021 Relining av liggande stammar på bottenplan på Fricksgatan 2 och 4, Lövskogsgatan 3,5,7 och 11, Ängemarken 1-5,7,9 och 11.
2018 Renoverades trapporna.
2021 Målning av källare och installation av LED-armaturer i källare.
2022 Stadenliga fastighetsbesiktining utfördes. IMD-el installation i samtliga bostadsrätter.
Färdigställandet av tränningsrummet på Ängemarken 7.
2023. IMD-el installation i samtliga bostadsrätter, arbeta av målning och byte till energisnål, närvarostyrd belysning i trappuppgångarna.
Driftsättning av solpaneler.
2025 1 juni sänks avgiften på bredband från 214 kr till 145kr per månad och hushåll.
Just nu:
Relining av avloppsstammar i alla lägenheter, planerat att vara klart i mars/april 2026. De estimerar att reliningen ska hålla i cirka 50 år (styrelsen 9/12-2025).
Planer framåt:
Översyn av föreningens värmesystem, ventilationskanaler, balkonger, tegelfasad och dränering runt Fricksgatan 2 och 4.
Se årsredovisning för mer detaljer.
Boendeparkering
För att parkera längs gatorna i området krävs ett boendeparkeringstillstånd. För mer information om boendeparkering gå in på Göteborgs Stads webbplats eller ring 031-368 00 00.
Gästparkering
Gästparkering med automater finns:
- mitt emot Ängemarken 9 vid Geovetarcentrum
- i korsningen Fricksgatan och Lövskogsgatan
- längs gatan vid Guldhedstorget
Parkeringshus
Vid Geovetarcentrun finns ett stort parkeringshus som tillhör Hemfosa Fastigheter AB. Kontakta dem för mer information.
Brf Guldlänken har avtal med Telenor (tidigare Bredbandsbolaget).
Bredband, TV och telefoni ingår i månadsavgiften. Vid frågor om utbudet kontakta Telenor. Hastighet 250/250 Mbit/s.
Det finns fyra tvättstugor i föreningen. Varje lägenhet är hänvisad till en speciell tvättstuga. I varje tvättutrymme finns 2 tvättmaskiner, en torktumlare, 1-2 torkrum, samt elektrisk mangel. Tvättider finns att bokas mellan 08-22.
I föreningen finns en målerilokal (Fricksgatan 4) och pingisrum (Ängemarken 1-5) som alla får använda. På föreningens grönområden finns lekplats, plats för grillning samt utemöbler.
Det finns bär och fruktträd som är fritt fram för medlemmar att plocka.
I källaren på Ängemarken 7 finns en träningslokal som medlemmar kan använda mot en avgift på 360kr/år.
På Ängemarken 5 har föreningen ett övernattningsrum som kan hyras av medlemmar i föreningen. Rummet består av 2 sängplatser, dusch, toalett samt enklare matbord. Medlemmen som hyr ansvarar för rummets skick och iordningställande. Priset är 250 kr per natt.
I varje bostadshus finns ett soprum. Här skiljer man på komposterbart avfall och vanligt hushållsavfall. Återvinningsrum på Lövskogsgatan 7.
Närmsta återvinningscentral ligger i Högsbo.
För renoveringar som tex pentry, ändringar i befintliga ledningar för avlopp, värme, el eller vatten mm. En sådan åtgärd kräver en renoveringsansökan och formellt beslut fattas i samband med det från styrelsen.
PÅ TOPPEN AV STADEN
Funkishus med gröna gårdar och nära till allt du behöver. Det är populära Norra Guldheden. De flesta husen här är byggda 1945 -1947 runt lokala små torg med butiker som lätt blir nya favoriter. Här bor du nära naturen i Änggårdsbergen och pulsen i både Linnéstaden och Vasastaden.
ETT STYCKE LÄKARHISTORIA
Guldhedens närhet till Sahlgrenska Universitetssjukhus har påverkat många av gatunamnen som är döpta efter läkare och sjuksköterskor, till exempel Doktor Allards gata. Idén bakom stadsdelen var att bygga för grannsämja och gemenskap, en känsla som många guldhedsbor menar lever kvar än idag. Med boendekvalitet i åtanke byggdes stadsdelen som ett mönsterområde, med skön natur inpå knuten och all tänkbar service på de små torgen. Doktor Fries torg, andas 50-tal med schackrutiga plattor och skulpturen Fina Fisken. Här hittar du bland annat flera restauranger, matbutik, apotek, bibliotek och gym.
KLASSISK ARKITEKTUR OCH SMÅ STUGOR
Många av husen har en slående utsikt över stora delar av stan och från Guldhedens Vattentorn ser du ända ut till Vinga. Tornet är ett klassiskt utflyktsmål för många göteborgare – en pampig byggnad med höga valv och målningar på insidan, ritad av arkitekten Nils Einar Eriksson, som även gjort Biografen Draken, Göteborgs konserthus och Park Avenue. Strax intill Guldhedstorget ligger Olssons Trädgård, en liten pärla till park som anlades av konstnären och trädgårdsentusiasten Carl Olsson. När du bor i Norra Guldheden har du nära till Änggårdsbergen, naturreservatet som är som gjort för promenader i unik och varierande natur eller långa löprundor i härlig terräng.
TÄT TERRÄNG OCH GODA GRANNAR
Husen i Norra Guldheden är från 1940-talet och många har sadeltak och burspråk. Typiskt för dessa hus är att de är byggda med kvalitetsmaterial, direkt på plats och av skickliga hantverkare. I sann funkisanda är bostäderna ljusa, bekväma och praktiska. Den omväxlande terrängen behölls för att skapa en trivsam och grön boendemiljö, utan störande inslag. Avsaknaden av genomfartsleder bidrar till att Guldheden än idag upplevs som ett lugnt och stillsamt bostadsområde, trots närheten till stadskärnan. Kommunikationerna är annars helt optimala, med Wavrinskys plats som central knutpunkt och buss- och spårvagnslinjer som kör täta turer. Du bor ett stenkast från Linnéstaden och Vasastaden. Så nära centrum – men ändå så avskilt. Genom Toltorpsdalen tar du dig enkelt till Mölndal. Möjligheten att välja stadspuls med shopping, restauranger och nöjesliv eller promenader i skog och natur är helt enkelt oslagbar.
Köpa, sälja eller värdera bostad i Norra Guldheden? Kontakta våra mäklare i Göteborg! Passa också på att anmäla dig till vår kostnadsfria söktjänst Boagenten som hjälper dig att hitta ditt drömboende.
Kontakta mäklaren om du behöver hjälp att ta fram en boendekalkyl.
När du köper din bostad genom Bjurfors kan du ansöka om bolån till en förmånlig ränta hos vår samarbetspartner SEB.
Bokad visning. Du kan även ringa Bjurfors Bokningscenter 031-761 79 50. Välkommen!
Ansvarig mäklare