-
Köpa
Köpa -
Sälja
Sälja - Hitta bostad
- Skapa bevakning
- Hitta mäklare
Renoverad gaveltvåa med balkong!
Norra Guldheden, Göteborg
*Värme, vatten, samt bredband. Elen mäts individuellt (IMD el) och bostadsrättsinnehavaren betalar för förbrukad el. Elnät har de genom Göteborgs energi och elleverantör är Jämtkraft. De har 100% förnybart och rörligt. Avgift justerad för 2026.
**Enligt förvaltaren
Registrerad som 2rok
Bokad visning. Du kan även ringa Bjurfors Bokningscenter 031-761 79 50. Välkommen!
Kontakta mäklaren för mer information gällande budgivningen.
Bjurfors Century presenterar en varsamt renoverad 40-talstvåa med originaldelar - belägen i populära Norra Guldheden, en promenad bort från Linné.
Välkomna till ett hem beläget högt upp på Guldhedsberget, med balkong i väster, vacker fiskbensparkett, generös takhöjd och fönsterbänkar i sten. Detta kombineras med ett renoverat kök, nya ytskikt och väl genomtänkta förvaringslösningar.
Vardagsrummet är rymligt och präglas av ett stort fönsterparti som ger ett härligt ljusinsläpp och leder ut till den trevliga balkongen. Sovrummet vetter mot två väderstreck och köket har två fönster, vilket även här skapar en ljus och luftig atmosfär. Köket är rymligt och erbjuder en naturlig matplats intill fönstret, med gott om plats för köksbord och stolar.
Kvadratmetrarna är väl disponerade och i både hall och sovrum finns utmärkta förvaringsmöjligheter från golv till tak i form av inbyggda originalgarderober. Badrummet är helkaklat i ljusa kulörer och utrustat med handdukstork.
Ni får här chansen att bo i en omtyckt och välskött HSB-förening med låg belåningsgrad. Föreningen äger marken och har en stabil ekonomi. De större renoveringarna är genomförda, såsom fasad, balkonger, hissar, stamspolning, takrenovering samt installation av laddpunkter till parkeringsplatserna. I husen finns tillgång till tvättstuga, cykel- och barnvagnsförråd, vinds- och källarförråd samt en gästlägenhet. Boendeparkering finns att tillgå, och dessutom finns parkeringsplatser att hyra – separat kö tillämpas.
Bostaden är belägen i Norra Guldheden, omgiven av grönska och med närhet till flera natursköna områden såsom Änggårdsbergen, Slottsskogen och Göteborgs botaniska trädgård – perfekta för promenader och avkoppling. Området erbjuder även närhet till lekplatser, förskolor, grundskolor och universitet, bland annat Chalmers tekniska högskola. På kort avstånd ligger dessutom Geovetarcentrum, Sahlgrenska och Guldhedstorget, där ni hittar det mesta för vardagen såsom livsmedelsbutik, restauranger och andra trevliga butiker. En kort promenad bort når ni även Landala Torg med apotek, matbutik, frukt- och grönsakshandel, fiskaffär, blomsteraffär, systembolag och gym. Från bostaden har ni goda kommunikationer med både buss och spårvagn från Wavrinskys plats och Medicinaregatan, vilket ger enkel access till hela staden. Dessutom är det promenadavstånd till Linnéstaden, Vasastaden och Avenyn – med deras rika utbud av caféer, restauranger och butiker.
Varmt välkommen att kontakta ansvarig mäklare för mer information om bostaden!
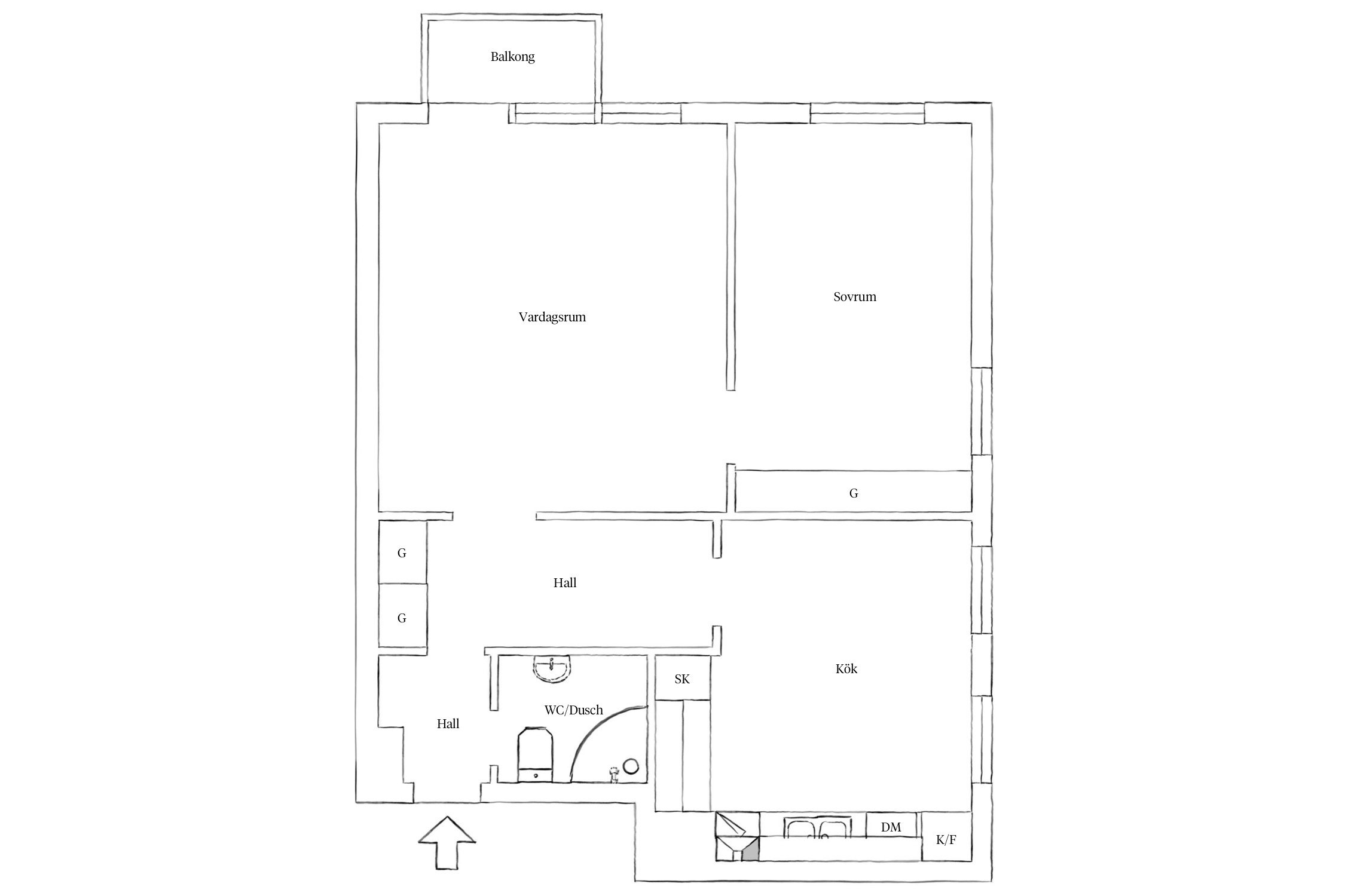
Välkommen två trappor upp till en otroligt charmig lägenhet som varsamt har uppdaterats till dagens standard med nya ytskikt, slipade golv och renoverat kök.
Entréhallen välkomnar med ljusa väggar och ett vackert originalgolv i fiskbensparkett som löper vidare in i vardagsrummet. Den inre hallen förbinder alla lägenhetens rum och erbjuder dessutom goda förvaringsmöjligheter i form av två inbyggda garderober.
Rakt fram nås bostadens hjärta – vardagsrummet. Här möts ni av ett härligt sällskapsrum med stora fönsterpartier och en trevlig utsikt över Linné. Rummet erbjuder generöst med plats för både soffgrupp samt arbetshörna eller matbord, vilket gör det till en perfekt plats för umgänge och avkoppling. Som pricken över i:et finns en trevlig balkong i västerläge.
Vidare genom vardagsrummet nås sovrummet, med fönster i två väderstreck. Det ena fönstret vetter mot väster och det andra mot norr. Inbyggda originalgarderober löser förvaringen även här. Rummet erbjuder plats för dubbelsäng och ytterligare möblemang och upplevs som ljust och luftigt, vilket ger goda förutsättningar för en god natts sömn. Väggarna är ljusa och golvet belagt med träliknande laminat.
Vägg i vägg med sovrummet ligger köket. Originalköksluckor i kombination med nya vita luckor och vitt kakel ger ett charmigt och fräscht intryck. Väggarna är ljusa och golvet belagt med ett vitbeige schackrutigt golv. Den maskinella utrustningen består av kombinerad kyl och frys, diskmaskin, spis samt kolfilterfläkt. Intill fönstret finns en rymlig plats för matbord och stolar – perfekt för både vardag och umgänge. Köket är flexibelt och det finns möjlighet att sätta upp en vägg för att skapa ett extra rum om så önskas.
Badrummet är helkaklat med ljusa väggar och beige klinkergolv. Här finns dusch, wc, handfat samt badrumsskåp med spegel och belysning. För extra komfort finns även handdukstork.
Tvättstuga, källarförråd och vindsförråd finns i huset.
Välkommen till ett trivsamt hem!



Med reservation för avvikelser. Planskissen är ej skalenlig
Guldheden 15:1
*Första våningen men två trappor
**Enligt förvaltaren
Registrerad som 2rok
Värme, vatten, samt bredband. Elen mäts individuellt (IMD el) och bostadsrättsinnehavaren betalar för förbrukad el. Elnät har de genom Göteborgs energi och elleverantör är Jämtkraft. De har 100% förnybart och rörligt. Avgift justerad för 2026.
Till bostaden disponeras vinds- och källarförråd
Balkong i västerläge
Bredbands-TV via tv-box eller Telia Play/Mitt Telia med utbudet i Telias kanalpaket Lagom. Ytterligare kanaler kan beställas via Telias kundtjänst.
Bredband från Telia om 250/100 Mbit är fritt tillgänglig för alla medlemmar. snabare bredband beställs på egen bekostnad. Bredbandsuttaget hittar du i hallen. Aktivering och support sker via Telias hemsida eller kundtjänst. Telia-enheter tillhör föreningen och lämnas kvar vid flytt.
Bostadsrättens indirekta nettoskuldsättning baseras på föreningens skulder/lån minus föreningens räntebärande tillgångar och likvida medel. Beräkningen är gjord och baseras enbart på den senaste tillgängliga årsredovisningen. För mer information kontakta ansvarig fastighetsmäklare.
*Betalas av säljare
HSB Brf Guldberget är belägen längst ut på berget på Norra Guldheden i slutet av Lövskogsgatan. Detta fina läge ger lugna, lummiga omgivningar, frisk luft och en strålande utsikt över Linnéstaden samtidigt som det är promenadavstånd till Linnégatan, Kungsportavenyn, Chalmers och Sahlgrenska.
Föreningen äger och förvaltar fyra sexvåningshus byggda 1947, vilka totalt rymmer 96 lägenheter fördelat jämnt på två- och trerumslägenheter. Det finns hiss i husen. Uppvärmningen av husen görs med fjärrvärme. Kommunikationerna till och från Norra Guldheden är mycket goda med flertalet spårvagns- och busslinjer från Wavrinskys plats.
Arkitekterna Gunnar Wejke och Kjell Ödeen gjorde den plan som låg till grund för den formella stadsplanen för Norra Guldheden år 1945. Planerna återger 1940-talets vision om hur barnfamiljer bör kunna bo i framtiden. Idealen var ljusa, luftiga bostäder i närhet till naturen. Stor hänsyn togs till terrängens förutsättningar och bergen lämnades i möjligaste mån orörda. För att ge bra ljusförhållanden ligger vissa hus indragna från gatan och andra ligger nära. Gatorna är planerade så att de följer nivåskillnaderna i terrängen.
Förvärvaren skall vara medlem i HSB innan den kan godkännas ett medlemskap i bostadsrättsföreningen. Det tillkommer en medlemsavgift till HSB om 825 kronor för köparen. Är det två köpare så betalar den ena 825 kronor och den andra 525 kronor. Andelsavgiften i HSB är 500 kr/person och återbetalas vid utträde.
Se ytterligare information på föreningens hemsida:
http://www.guldberget.se/
styrelsen@guldberget.se
Föreningen gjorde en avgiftshöjning, om 5 %
år 2025. Varefter höjningarna
förväntas stabiliseras till cirka 2 % årligen. 2024 gjordes en avgiftshöjning på 9%. Eventuellt en höjning på 3% men ej beslutat. (Kontrollerat 2025-10-28)
Låg belåningsgrad på 926 kr/kvm
De planerade investeringarna under 2025 förväntas leda till en viss reduktion av framtida kostnader. Under December 2024 så band de om två lån i samband med att det var en lägre räntenivå.
Fullvärdesförsäkrad hos Länsförsäkringar. Kollektivt bostadsrättstillägg ingår ej i föreningens fastighetsförsäkring. Tecknas av medlem själv.
Nuvarande försäkringsavtal gäller t.o.m. 2026-01-31.
UTFÖRDA RENOVEIRNGAR:
1990 Byttes samtliga elledningar. Under samma år byttes även samtliga fönster och renovering av balkonger utfördes.
1997 Byttes samtliga V/A-stammar i kök och badrum. Under samma år byttes fasadskivor på sydvästfasaderna på Lövskogsgatan 16 och 18, en översyn av tak gjordes och ett nytt soprum uppfördes.
2005 Installerades säkerhetsdörrar till samtliga lägenheter.
2006 Målades trappuppgångar.
2007 Utfördes renoveringsarbete av tegelfasader i syd- och östläge.
2008-2009 Renoverades tak.
2009 Sågs hissar över.
2010 Installation av ett nytt värmeregleringssytem. Under samma år utfördes en energideklaration.
2010-2011 Utfördes en OVK.
2011 Dränerades fastigheten runt Lövskogsgatan 16, 18 och 19.
2012 Installerades nya ventiler i samtliga lägenheter.
2013 Renoverades styrelserummet, ytterdörrar målades och ny värmeväxlare till fjärrvärmesystemet installerades.
2014 Installerades nya låsbanor i hissarna, ny vattentank till värmesystemet samt ny tvättmaskin i tvättstugan på Lövskogsgatan 18. Avloppsstammarna sköljdes samt en genomgång av värmesystemet genomfördes.
2016 Utfördes fasadrenovering på Lövskogsgatan 14 & 19.
2017 Har nya fasadlampor samt en ny tvättmaskin i tvättstugan installerats. Samtidigt skedde en injustering på värmesystemet.
2018 Bytt termostater och installerat givare i varje lägenhet. Under året installerades även avfuktare i torkrummen.
2019 Rustades grönområden upp samt att man gjorde kontroll av hissar och balkonger.
2020 Har föreningen bytt passage- och bokningssystem för gemensamma utrymmen (tvättstugor).
2020/2021 spolades stammarna.
2021 byggdes 4 nya ladd-platser vid parkeringen.
2022 IMD- el infördes. (Individuell mätning och debitering för el)
2023 Fasadrenovering
2023 Byte av balkonger
2023 Renovering av hiss
2023 Avloppsrensning
2025 Avloppsrensning
2024 Nya brandvarnare till medlemmarnas lägenheter
2024 Underhåll portar
2024 OVK-inspektion samt rensning av ventilationskanaler
2024 Utomhusbelysning
2024 Laddpunkter till ytterligare 10 parkeringsplatser
2024 Linjemarkering P-platserna
2025 Fukt källare hus 14 "vi har redan gjort flera åtgärder och väntar in vintern för att se om allt är löst och vi kan återställa eller om något mer behövs.
Det har inte varit stora skador som det är på tal om. Det omfattar ett förråd i cykelrummet samt Entren som är nästan återställd (väggar kvar) - 2025-10-29)
KOMMANDE:
2025 Trapphusarmaturer LED
2027 Översyn tvättstugor
2027 Avloppsrensning
2028 Översyn avloppsledningar
2029 Avloppsrensning
2030 Asfaltering
2030 Nya balkongdörrar
2030 Målning av trapphus
Föreningen har en underhållsplan som skapades om 2017 och som sträcker sig 30-år framöver. Den uppdateras löpande. Fler gjorda renoveringar finns tydligt redovisade i årsredovisningen. Avsikten med planen är att föreningen genom årliga fondavsättningar skall kunna finansiera det framtida underhållet med huvudsakligen egna medel.
Föreningen hyr ut 58 st parkeringsplatser, varav 18 st laddstolpar för elbil. Avgiften är 760 kr/månad för platser med laddmöjlighet och 580 kr/månad för övriga. Utöver avgiften tillkommer en debitering för elförbrukning för platserna med laddmöjlighet. I dagsläget är alla parkeringsplater uthyrda (separat kö). Utmed Lövskogsgatan finns möjligheter till boendeparkering. Ansökan om boendeparkering görs hos kommunen.
Maila styrelsen@guldberg.se för att ställa dig i kön. För närvarande ca 6 månader för att få tillgång till en parkeringsplats. (Kontrollerat 2025-10-28)
I återvinningsrummet i hus 14 finns en gästparkeringslista där medlemmar tillfälligt kan låna ut sina parkeringsplatser. Längsta sammanhängande tid en medlem får låna en annan medlems plats är sju dagar. Observera att lånetiden om inget annat anges av utlånaren gäller kl 00-24, dvs parkeringsplatsen får ej lånas dygnet efter sista bokade dygn.
Bredband från Telia om 250/100 Mbit är fritt tillgänglig för alla medlemmar. Snabare bredband beställs på egen bekostnad. Bredbandsuttaget hittar du i hallen. Aktivering och support sker via Telias hemsida eller kundtjänst. Telia-enheter tillhör föreningen och lämnas kvar vid flytt.
Bredbands-TV via tv-box eller Telia Play/Mitt Telia med utbudet i Telias kanalpaket Lagom. Ytterligare kanaler kan beställas via Telias kundtjänst.
Medlemmar har tillgång till tvättstugor, soprum, hobbyrum, cykelförråd samt extra förråd. Utöver dessa gemensamma utrymmen finns även en gästlägenhet att tillgå.
Föreningen har tre moderna välutrustade tvättstugor, en på Lövskogsgatan 14 och två på Lövskogsgatan 18. De bokas med en tag på en skärm i entrén alternativt via internet. Det är tillåtet att tvätta alla dagar i veckan. En stenmangel och elektrisk kallmangel finns i hus 18 och en varmmangel i hus 14.
Föreningens gästlägenhet ligger i hus 14 och har egen ingång från markplanet runt hörnet till vänster om huvudentrén. Den är möblerad med bl a två sängar och en bäddsoffa. Vidare finns pentry med kokplatta, mikrovågsugn och kylskåp samt porslin. Det finns också ett duschrum. Hyran är 400 kr per natt oavsett antalet gäster.
Det gamla pannrummet på Lövskogsgatan 14 är inrett till ett rymligt soprum med möjlighet att källsortera allt från papp till glasförpackningar.
Ett hobbyrum finns tillgängligt på Lövskogsgatan 18. Detta behöver inte bokas.
Föreningen har en trädgårdsgrupp och har fixat ett gym med redskap på Lövskogsgatan 14.
I varje hus finns ett stort cykelförråd i markplan.
Fastigheterna ventileras med självdrag, varför frånluftsfläkt från kök inte är tillåtet. Välj istället kolfilterfläkt som inte behöver anslutas till husets ventilationskanaler. Av samma skäl är inte heller badrumsfläktar anslutna till ventilationen tillåtna.
Önskas en vägg sättas upp i kök, krävs godkännande från styrelsen.
PÅ TOPPEN AV STADEN
Funkishus med gröna gårdar och nära till allt du behöver. Det är populära Norra Guldheden. De flesta husen här är byggda 1945 -1947 runt lokala små torg med butiker som lätt blir nya favoriter. Här bor du nära naturen i Änggårdsbergen och pulsen i både Linnéstaden och Vasastaden.
ETT STYCKE LÄKARHISTORIA
Guldhedens närhet till Sahlgrenska Universitetssjukhus har påverkat många av gatunamnen som är döpta efter läkare och sjuksköterskor, till exempel Doktor Allards gata. Idén bakom stadsdelen var att bygga för grannsämja och gemenskap, en känsla som många guldhedsbor menar lever kvar än idag. Med boendekvalitet i åtanke byggdes stadsdelen som ett mönsterområde, med skön natur inpå knuten och all tänkbar service på de små torgen. Doktor Fries torg, andas 50-tal med schackrutiga plattor och skulpturen Fina Fisken. Här hittar du bland annat flera restauranger, matbutik, apotek, bibliotek och gym.
KLASSISK ARKITEKTUR OCH SMÅ STUGOR
Många av husen har en slående utsikt över stora delar av stan och från Guldhedens Vattentorn ser du ända ut till Vinga. Tornet är ett klassiskt utflyktsmål för många göteborgare – en pampig byggnad med höga valv och målningar på insidan, ritad av arkitekten Nils Einar Eriksson, som även gjort Biografen Draken, Göteborgs konserthus och Park Avenue. Strax intill Guldhedstorget ligger Olssons Trädgård, en liten pärla till park som anlades av konstnären och trädgårdsentusiasten Carl Olsson. När du bor i Norra Guldheden har du nära till Änggårdsbergen, naturreservatet som är som gjort för promenader i unik och varierande natur eller långa löprundor i härlig terräng.
TÄT TERRÄNG OCH GODA GRANNAR
Husen i Norra Guldheden är från 1940-talet och många har sadeltak och burspråk. Typiskt för dessa hus är att de är byggda med kvalitetsmaterial, direkt på plats och av skickliga hantverkare. I sann funkisanda är bostäderna ljusa, bekväma och praktiska. Den omväxlande terrängen behölls för att skapa en trivsam och grön boendemiljö, utan störande inslag. Avsaknaden av genomfartsleder bidrar till att Guldheden än idag upplevs som ett lugnt och stillsamt bostadsområde, trots närheten till stadskärnan. Kommunikationerna är annars helt optimala, med Wavrinskys plats som central knutpunkt och buss- och spårvagnslinjer som kör täta turer. Du bor ett stenkast från Linnéstaden och Vasastaden. Så nära centrum – men ändå så avskilt. Genom Toltorpsdalen tar du dig enkelt till Mölndal. Möjligheten att välja stadspuls med shopping, restauranger och nöjesliv eller promenader i skog och natur är helt enkelt oslagbar.
Köpa, sälja eller värdera bostad i Norra Guldheden? Kontakta våra mäklare i Göteborg! Passa också på att anmäla dig till vår kostnadsfria söktjänst Boagenten som hjälper dig att hitta ditt drömboende.
Kontakta mäklaren om du behöver hjälp att ta fram en boendekalkyl.
När du köper din bostad genom Bjurfors kan du ansöka om bolån till en förmånlig ränta hos vår samarbetspartner SEB.
Bokad visning. Du kan även ringa Bjurfors Bokningscenter 031-761 79 50. Välkommen!
Kontakta mäklaren för mer information gällande budgivningen.
Kontakta mäklareAnsvarig mäklare