-
Köpa
Köpa -
Sälja
Sälja - Hitta bostad
- Skapa bevakning
- Hitta mäklare
Inbjudande bostad i grönskande omgivning
Örgryte - Skår, Göteborg
*inkl. värme, vatten, kabel-tv, sophantering och garage.
**Areauppgifter enligt bostadsföreningen
Bokad visning. Du kan även ringa Bjurfors Bokningscenter 031-761 79 50. Välkommen!
På Förhand ligger bostäder som av olika anledningar inte är ute till försäljning just nu men som kan komma att säljas om förutsättningarna är rätt.
Bjurfors Century presenterar 115 kvm av ett charmigt hem med ljusa rum, klassiska detaljer och uteplats!
Bjurfors Century presenterar en bostad fylld av charm och ljus i eftertraktade Örgryte Skår. Här bor ni i ett av Göteborgs mest uppskattade villakvarter, omgivet av ståtliga villor, grönskande omgivningar och med stadens centrum endast några minuter bort. Kombinationen av rofyllt villaliv och närhet till city gör området unikt och mycket attraktivt. Bostaden präglas av ljus och harmoni med stora fönster i fyra väderstreck som skapar ett fantastiskt ljusflöde under hela dagen. Den generösa takhöjden tillsammans med tidstypiska detaljer, såsom fönsterbrädor i granit och en vacker öppen spis, förstärker den inbjudande atmosfären. Här möts klassisk elegans och modern komfort på ett smakfullt sätt. Planlösningen är väl genomtänkt med tydlig separation mellan sociala ytor och privata sovrum. Vardagsrummet är rymligt och inbjuder till umgänge framför brasan eller middagar med familj och vänner. Via vardagsrummet nås den lummiga trädgården med uteplats som förlänger bostaden under årets varmare månader. Köket är en självklar samlingsplats och imponerar med sina materialval, välplanerade arbetsytor och harmoniska färgsättning. De tre sovrummen ligger avskilt från de sociala ytorna och erbjuder rofyllda miljöer för hela familjen. Detta är ett hem där klassisk charm möter nutida bekvämlighet i ett av Göteborgs mest eftertraktade områden
Här bor ni med villakänsla i lugnt och avskilt men med närhet till skolor, förskolor och gångavstånd till city. I området kring Sankt Sigfrids plan finns bland annat den härliga inrednings- & blomsterbutiken Fiori, restaurangen Sigfrid, pizzeria, thairestaurang samt trevligt café. Inom gångavstånd nås även Delsjöterrängens naturreservat med dess badsjöar och rekreation samt Liseberg och Korsvägen. Kollektivtrafiken når ni med någon minuts gångväg som tar er till Avenyn på ca 15 minuter.
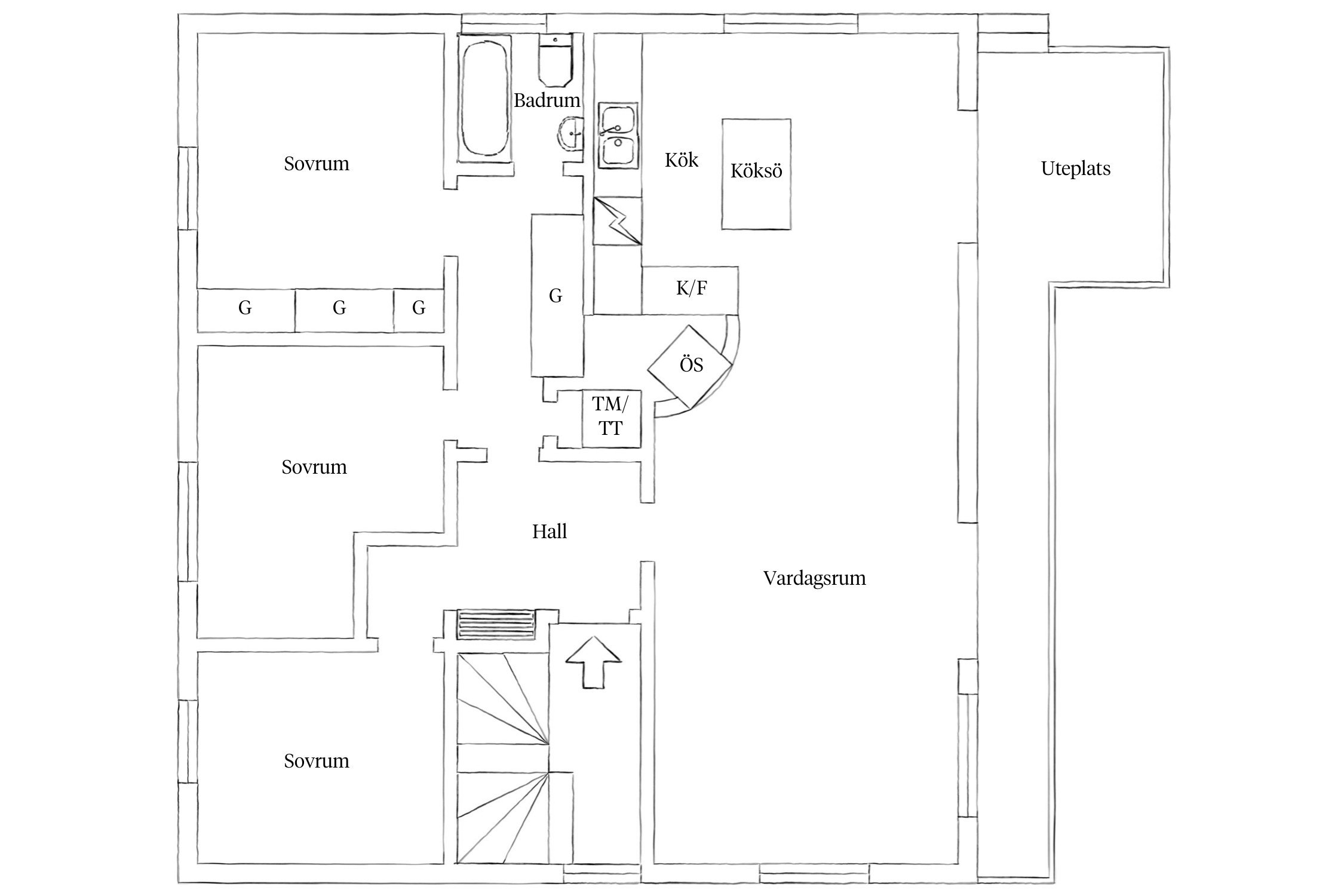
Välkomna in i ett oemotståndligt hem om 115 kvm. Här möts ni direkt av en rymlig och välkomnande hall som erbjuder gott om avhängningsmöjligheter. Här är väggarna vitmålade och på golvet ligger vacker ekparkett.
Från hallen når man vardagsrummet som har en härligt öppen och social planlösning mot köket. Från de stora fönsterpartierna, som vetter mot bostadens uteplats. Här strömmar ljuset fritt och bidrar till rummets luftiga känsla. Här kan man enkelt möblera med en större soffgrupp, soffbord och tv-möbel. Vidare ryms här även ett större matsalsbord. Här är väggarna vitmålade och på golvet ligger vacker och tidsenlig fiskbensparkett.
Det stilrena köket är inrett med stilrena materialval med luckor i snygg ljusgrå ton och vitt kakel runt arbetsytorna. Vidare erbjuder köket gott om arbetsytor mycket tack vare rummets moderna köksö. Köket är utrustat med kyl och frys med ismaskin från Samsung, samt ugn, induktionshäll och en diskmaskin. Även här är väggarna vita och på golvet ligger den vackra fiskbensparketten.
Bostaden har tre väl tilltagna sovrum varav två i fil som nås via hallen och ljungfrukammaren. Det första av de tre sovrummen rymmer med enkelhet en dubbelsäng och erbjuder gott om smart förvaring genom två klädkammare. Här är väggarna målade i behaglig ljusgrå ton och på väggarna ligger stilren ekparkett. De två sovrummen i fil är även de väl tilltagna och rymmer båda två en större säng och ytterligare förvaringsmöbel. Även här återfinns vacker ekparkett. Det mindre av de tre sovrummen kan enkelt göras om till ett hobbyrum, gästrum eller varför inte ett hemmakontor vid behov.
Bostadens badrum är inrett i tidlösa materialval. Väggarna är kaklade i vitt och på golvet ligger smakfullt grå klinker vilket skapar en snygg kontrast mot de annars vita väggarna. Utrustningen består av en vägghängd wc, handfat med tillhörande kommod och ett badkar med dusch. I samband med att man renoverade badrummet 2015 gjorde man om bostadens gästtoalett till en tvättstuga som är helkaklad i samma toner som badrummet.



*Areauppgifter enligt bostadsföreningen
inkl. värme, vatten, kabel-tv, sophantering och garage.
Kabel-Tv
Fiber - valfri leverantör
Bostadsrättens indirekta nettoskuldsättning baseras på föreningens skulder/lån minus föreningens räntebärande tillgångar och likvida medel. Beräkningen är gjord och baseras enbart på den senaste tillgängliga årsredovisningen. För mer information kontakta ansvarig fastighetsmäklare.
Brf Nibor bildades 2015 och består av 3 bostadsrätter och 1 hyresrätt för uthyrning.
Fastigheten innehas med tomträtt som gäller till januari 2026 och ska omförhandlas 2025.
Under våren 2025 så höjde föreningen avgiften med 10%. Dem bevakar sina utgifter noggrannt och har inte beslutat några ytterligare justeringar (information från föreningen 2025-10-29)
Utförda renoveringar:
2015: Badrumsfönster byttes i samband med helrenovering av badrummet.
Höst 2020: Fasaden totalrenoverades, särskilt den sydvästra sidan.
Höst 2020: Köksfönster på sydvästra sidan byttes i samband med fasadrenoveringen.
2020: Robotgräsklippare köptes in för gemensam skötsel av trädgården.
2022: Byggnation av stomme för balkongen på andra våningen.
Höst 2022: Yale Doorman-kodlås installerades vid huvudentrén.
2023: Framsidan och trädgården gjordes om med markduk och stenar (påbörjat 2022).
Höst 2025: Trapphuset renoverades och målades om i sin helhet, inklusive ny elinstallation och belysning.
Inget planerat underhåll utan sedvanligt underhåll. (information från föreningen 2026-03-03)
Det finns två garage i föreningen som hör till de två stora lägenheterna på plan 1 och 2.
Fiber finns. Föreningen har ingen gemensam leverantör för kabel-tv eller bredband.
Gemensam lummig trädgård för medlemmarna att nyttja.
Källaren har förråd, tvättstuga, toalett samt 2 garageplatser.
Som ett av Göteborgs allra mest centrala villaområden har Örgryte alltid varit eftertraktat och det finns inget som tyder på att intresset avtar. Örgryteborna själva tycker att man inte kan bo bättre och det är lätt att hålla med. För hur fantastiskt är det inte att åt ena hållet ha hela centrala stan på lagom avstånd och åt andra hållet Göteborgs största naturområde Delsjön som trädgård. Allt i ett lugnt och rofyllt område som domineras av vackra villor från 1900-talets första hälft.
SLOTTSBYGGNADER OCH FOLKHEMSFUNKIS
Örgryte har en spännande och anrik bakgrund med många kulturhistoriskt intressanta byggnader, som Wilhelmsberg, Stora Torp och Villa Odinslund. När Göteborg grundats 1621 blev Örgryte hem för stadens mest framträdande familjer som gärna byggde sig slottsliknande herrgårdar.
Tidigare var området jordbruksmark och de gamla gårdarna som låg här – Skår, Bö och Jakobsdal, fick ge namn till stadsdelens olika delar när den började byggas ut i början av förra seklet. Ambitionen var att skapa en trädgårdsstad efter engelsk förebild, med främst villor för en välbeställd medelklass.
Blandningen av stora och små villor, radhus och flerbostadshus från flera olika epoker skapar tillsammans med lätt krökta gator och promenadstråk en idyllisk förstadsmiljö som det är svårt att inte falla för.
GAMLA ANOR OCH MODERNA LÄGENHETER
Örgryte har det perfekta läget: storstadspuls runt ena hörnet och promenadstråk och motionsmöjligheter runt andra. Jobbar man i centrum tar man sig gärna dit till fots och blickar man ut över stan känns det som att man bor mitt i, fast med ett stillsamt lugn i den omedelbara närheten. Huvudleden Delsjövägen ringlar sig från Sankt Sigfrids plan genom Örgryte och bort mot Torp och Kålltorp.
Söder om vägen ligger Skår med bostadshus i utpräglad funkisstil, medan husen i de norra och östra delarna började byggas tidigare och har nyklassisistisk och nationalromantisk stil. Fortsätter du längs Delsjövägen kommer du fram till Torp, där tv-huset tidigare låg och där 500 nya bostäder blev färdigbyggda under 2017.
Området har fått sitt namn av herrgåden Stora Torp som ligger en bit in i skogsbrynet. Strax intill ligger tennisklubben GLTK med många banor både ute och inne.
VINTERPARADIS OCH BLOMMANDE TRÄD
Bor du i Örgryte blir Skatås och hela Delsjö-området en självklar del av vardagen som ger fantastiska möjligheter till naturupplevelser, promenader och träning – året om. Vintertid när snön har lagt sig väljer många att åka skidor både längs de uppkörda spåren i Delsjön eller nedför Brudarebacken, som har knapplift och konstsnö. En ledig dag tar man gärna en promenad ut i Delsjöterrängen och har man bott ett tag i området hittar man snart egna småstigar och hemliga svampställen. Men det finns även många fina promenadstråk mellan husen. Promenerar du längs Delsjöbäcken, förbi Ekmanska och Bö kan du få en skymt av öring i bäcken. Längsmed växer också bland annat bok, ek och al och i april-maj blommar magnolian.
Köpa, sälja eller värdera bostad i Örgryte? Kontakta våra mäklare i Göteborg! Passa också på att anmäla dig till vår kostnadsfria söktjänst Boagenten som hjälper dig att hitta ditt drömboende.
Kontakta mäklaren om du behöver hjälp att ta fram en boendekalkyl.
När du köper din bostad genom Bjurfors kan du ansöka om bolån till en förmånlig ränta hos vår samarbetspartner SEB.
Bokad visning. Du kan även ringa Bjurfors Bokningscenter 031-761 79 50. Välkommen!
Ansvarig mäklare