-
Köpa
Köpa -
Sälja
Sälja - Hitta bostad
- Skapa bevakning
- Hitta mäklare
Välplanerad trea i originalskick där ni har möjlighet att sätta er egna prägel
Sannegårdshamnen, Göteborg
*Avgiften inkluderar värme, vatten, kabel-tv och bredband.
**Areauppgifter enligt bostadsrättsföreningen.
På Förhand ligger bostäder som av olika anledningar inte är ute till försäljning just nu men som kan komma att säljas om förutsättningarna är rätt.
I hjärtat av Sannegårdshamnen finner ni denna välplanerade trea med balkong i fritt läge. Trevlig planlösning som separerar det privata och sociala.
På Barken Beatrices gata 8 väntar en välplanerad trea där de privata och sociala delarna delas upp på ett smart sätt. Kök och vardagsrum samsas i delvis öppen planlösning och blir den naturliga samlingspunkten. Stor balkong i sydöstligt läge med grönska som inramning ger dig en härlig förlängning till boendet och från balkongen blickar du ner mot vattnet i Sanngårdshamnen. Två rymliga sovrum i fil varav det ena kan användas till kontor, barn-, eller gästrum - valet är ert. Här är bostaden för er som söker originalskick där ni kan sätta er egna prägel.
Tvättstuga och gästlägenhet är några av de bekväma attribut föreningen tillhandahåller. Närmsta hållplats ligger ca 50 meter från bostaden och trafikeras av buss bland annat 21, 16 och 99 - du kommer in till Brunnsparken på ca 13 minuter. Vill man hellre ta båten in till city finner ni hållplats en kort promenad bort. Här trafikerar även Flygbussen som tar er smidigt in till Landvetter flygplats.
Välkommen till ett boende i Sannegårdshamnen, alldeles intill vattnet och direkt närhet till mysiga caféer, restauranger samt Hagabadet som bland annat erbjuder spa och träning. Ica Kvantum Sannegården ligger i anslutning till bostadsområdet och här finns även konditoriet Steinbrenner & Nyberg, apotek, blomsteraffär samt gymmet Fitness 24/7. Varför inte ta en promenad längst kajen, eller slå er ner på något mysigt café i området? Här finns något för alla!
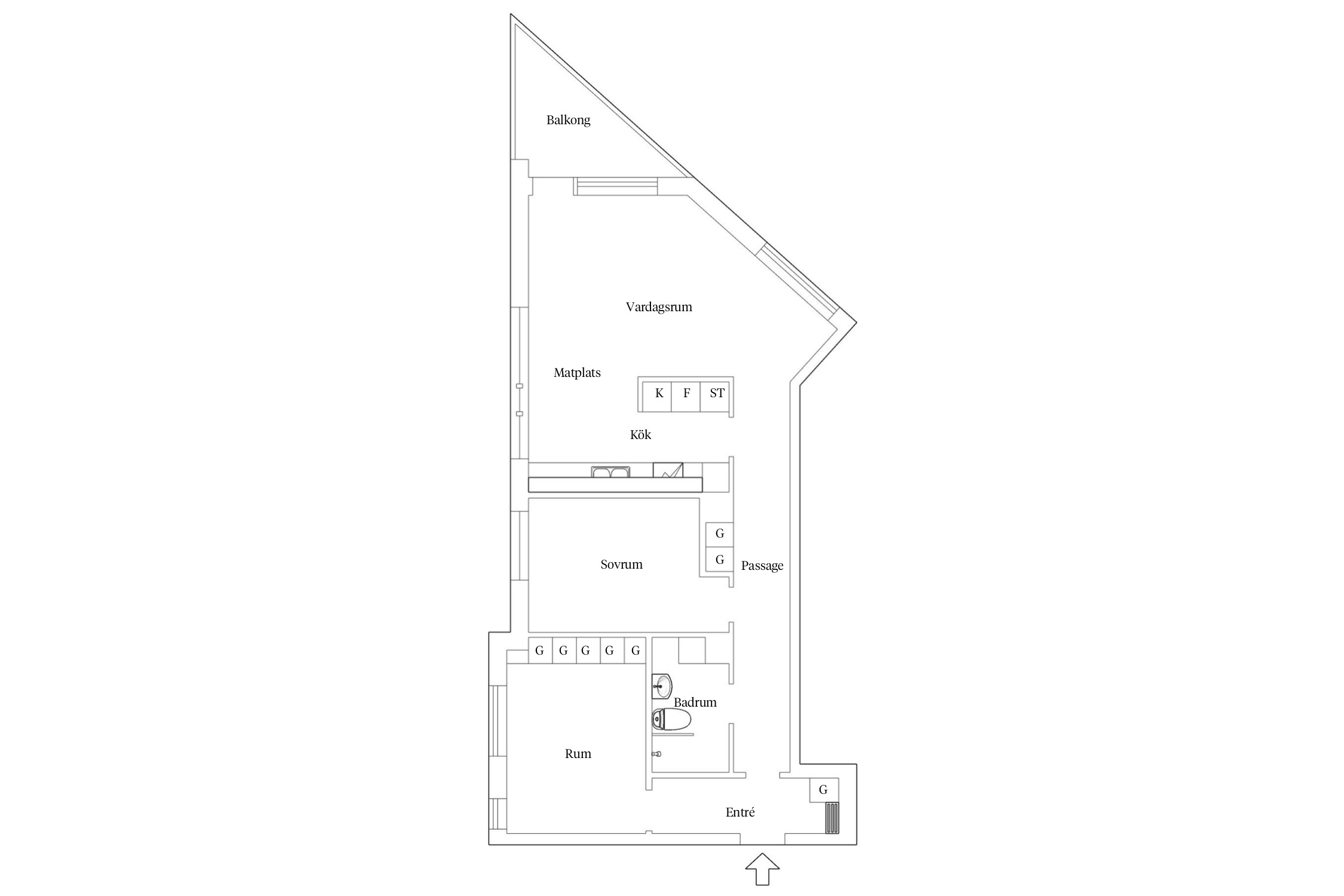
Hallen binder samman bostadens samtliga rum. Här finns en garderob. På golvet ligger parkett som är genomgående för bostaden och väggarna är vitmålade.
Direkt till vänster om hallen ligger ett av sovrummen. Fönster ut mot gården ger minimal insyn och ett ostört läge. Här finns flera garderober för klädförvaring.
Några steg in via en passage när ni badrummet som är helkaklat i ljusa färgval. Här finns toalett, handfat med kommod, spegelskåp med belysning samt dusch bakom en rundad glasvägg. För bekvämlighet i vardagen finns också en tvättmaskin.
I passagen når ni det andra sovrummet som likt det första är rymligt till ytan. Här finns en garderob för klädförvaring.
I slutet av passagen nås kök och vardagsrum som samsas i delvis öppen planlösning. Köket har luckor i ek vilket ger ett trivsamt intryck. Gött om skåp och arbetsytor gör detta till ett lättarbetat kök. Här finns kyl och frys i fullhöjd, spis, fläkt samt diskmaskin. Vardagsrummet har fönster i flera väderstreck vilket låter ljuset få sprida sig i rummet. Härifrån når ni balkongen där ni åt ena håller blickar mot vattnet i hamnen och åt andra hållet åt grönskande Sörhallsberget.



Sannegården 44:1
*Areauppgifter enligt bostadsrättsföreningen.
Avgiften inkluderar värme, vatten, kabel-tv och bredband.
Stor balkong i sydöstligt läge.
Bostadsrättens indirekta nettoskuldsättning baseras på föreningens skulder/lån minus föreningens räntebärande tillgångar och likvida medel. Beräkningen är gjord och baseras enbart på den senaste tillgängliga årsredovisningen. För mer information kontakta ansvarig fastighetsmäklare.
Driftkostnaderna är uppskattade och baserade på liknande storlek till lägenhet i området då ingen bor i bostaden.
*Betalas av säljare
Föreningen består av två flerbostadshus med totalt 53 bostadsrätter med adresserna Barken Beatrices gata 2-8 och Barken Storegrunds gata 1. Föreningen disponerar över två tvättstugor (en på Barken Beatrices gata 8 samt en på Barken Storegrunds gata 7.) Tvättstugorna har två tvättmaskiner, torktumlare och torkrum. Det finns också cykel- och barnvagnsgarage i källaren samt en föreningslokal med övernattningsmöjlighet som man kan hyra. (Barken Storegrunds gata 7). Båtplats sköts av Sannegårdens båtklubb. Lediga platser uthyres i mån av plats.
Föreningen höjde avgiften med 10% från januari 2025.
Beslutad höjning om 5% from januari 2026.
Fastigheten är fullvärdesförsäkrad i Länsförsäkringar.
Inga större underhåll planerade.
Garageplatser finns under husen, 28 st som tillhör föreningen och kostar 850 kr/mån och till garageplats är det extern kö som sköts via HSB. Det finns även MC-platser. Det finns laddstolpar på alla parkeringsplatser.
P-plats ute finns via Göteborgs kommun med månadskort, P9.
Finns även möjlighet att söka plats i andra föreningars garage.
TV (grundutbud av kanaler) och bredband via Telenor ingår i månadsavgiften. Bredbandet erbjuder hastigheter upp till 1000 Mbit/s.
Trevlig innergård med lekplats och många grönytor.
Gästlägenhet (Barken Storegrunds gata 7), cykelrum, barnvagnsrum, cykelverkstad samt två tvättstugor (Barken Beatrices gata 8 och Barken Storegrunds gata 7).
Besök gärna föreningens hemsida www.riggen.se
Sannegårdshamnen är ett vattennära område med sköna stråk och vackra bostadsområden. Utsikten är storslagen. Bostadskvarteren öppnar sig mot vattnet, där fartyg och mindre båtar seglar förbi. Man bor vid vattnet men ändå mitt i stan.
Nybyggnation och modern design blandas med bevarandet av värdefulla fastigheter från den tidigare varvstiden. Här finns bostads- och hyresrätter, skolor och företag. Det finns också butiker, mataffär, bageri, restauranger, bar, teater, gym, anrika Hagabadet och konstnärsateljéer.
Här finns även grönområde att strosa i. Sörhallsberget och Slottsberget är några exempel. Den vackert träskodda kajpromenaden i Sannegården inbjuder till promenader längs vattnet.
På Norra Älvstranden finns ett stort utbud av meningsfulla fritidsaktiviteter. Vid den gamla kvarnen på Eriksberg kan man träna med Friskis & Svettis i deras modernaste anläggning och på Lundby Strand finns en stor och välutrustad idrottshall. Vill man koppla av finns Hagabadet Älvstranden nära till hands och erbjuder både yoga och spa. I teatersalongen Blå Hallen på Eriksberg hålls större konferenser, utställningar och konserter. Lundbys kulturskola erbjuder ett brett utbud, här kan barnen spela musik och teater, dansa, sjunga, måla och jobba med keramik - för att bara nämna något.
I Sannegårdshamnen finns ICA kvantum, blombutik, Steinberg Nyberg café och gym. Detta mycket lättillgängligt för dig som boende i Sannegården. Vid Eriksbergs centrum finner man flera butiker, systembolag, apotek och en stor matvaruaffär.
Cityfärjan Älvsnabben går från Eriksbergskajen i tät trafik mellan båda sidor av älven. Förutom att vara ett bekvämt och snabbt sätt att resa till centrum utan bil och parkeringsbekymmer, så är det ett mycket tilltalande sätt att se staden och vattnet. Det finns också bra förbindelser med buss till city. Det är även enkelt att ta sig ut på de stora lederna.
Köpa, sälja eller värdera bostad i Sannegårdshamnen? Kontakta våra Bjurfors mäklare på Hisingen! Passa också på att anmäla dig till vår kostnadsfria söktjänst Boagenten som hjälper dig att hitta ditt drömboende.
Kontakta mäklaren om du behöver hjälp att ta fram en boendekalkyl.
När du köper din bostad genom Bjurfors kan du ansöka om bolån till en förmånlig ränta hos vår samarbetspartner SEB.
Ansvarig mäklare