-
Köpa
Köpa -
Sälja
Sälja - Hitta bostad
- Skapa bevakning
- Hitta mäklare
Attraktivt läge med inglasad balkong högt upp i huset
Torslanda - Amhult, Göteborg
*I månadsavgiften ingår värme, sophantering, kabel-TV, bredbandstelefoni och förråd. El, varm- och kallvatten debiteras individuellt efter förbrukning. Det tillkommer ett obligatoriskt tillägg på 850 kr/mån för kapitalskuld till föreningen.
**Areauppgifter från bostadsrättsföreningen och säljaren
På Förhand ligger bostäder som av olika anledningar inte är ute till försäljning just nu men som kan komma att säljas om förutsättningarna är rätt.
Kvalitativ och kvadratsmart tvårummare med inglasad balkong söker ny ägare! Öppen och ljus planlösning med inglasad balkong belägen mot innergården
För dig som vill bo på bekvämt promenadavstånd till all tänkbar service har Brf Landningsbanan ett helt perfekt läge. I Amhult finns det mesta man kan önska sig - närhet till havet, serviceutbudet i centrala Amhult och härliga grön- och strövområden. Kulturhuset Vingen erbjuder allt från restaurang och bio till konstutställningar och direktsända operaföreställningar och blir din närmsta granne. Bilen nås lätt genom att ta hissen ner i garaget under husen. För dig som hellre åker kommunalt ligger Amhults resecentrum bara någon minut bort. I högtrafik går bussarna var femte minut och tar dig smidigt in till Göteborg Central på endast 20 minuter.
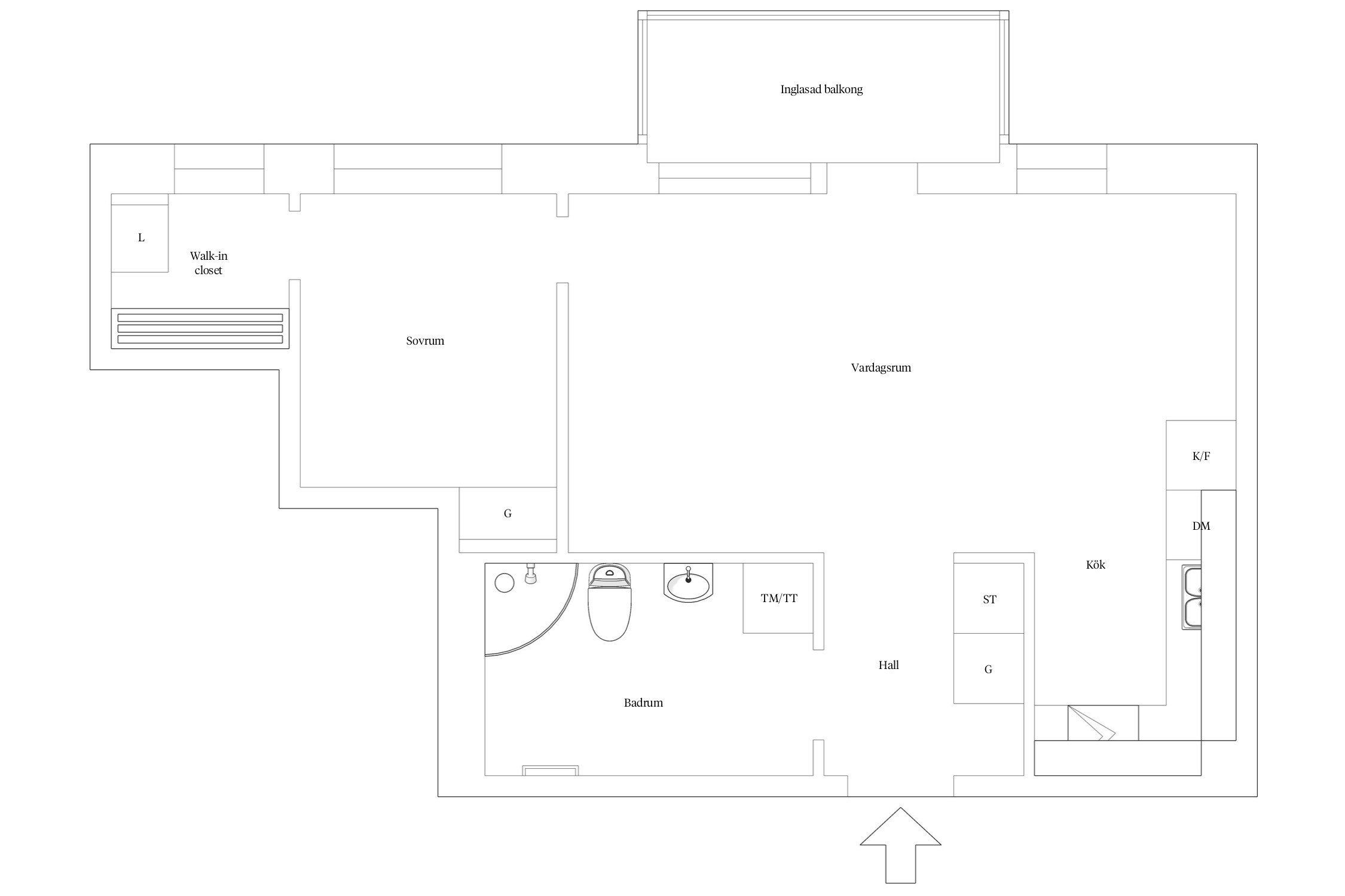
Välkomnande hall som erbjuder bra avhängningsmöjligheter för ytterkläder och skor. Ytterligare klädförvaring finns i garderob. På golvet ligger tröskellös ekparkett och flyter genomgående i hela lägenheten.
Vidare in i lägenheten nås de sociala sällskapsytorna. Här återfinns en öppen planlösningen mellan kök och vardagsrum som skapar en social samvaro. Ett ljust och härligt rum som har generösa fönsterpartier som släpper in rikligt med dagsljus. Här möblerar du efter egen smak och tycke, vardagsrummet rymmer en stor soffgrupp och TV-möbel. I anslutning till vardagsrummet ligger det moderna köket vilket tillför rymd i sällskapsytorna. Härifrån ges möjlighet att underhålla gäster samtidigt som middagen tillagas. Köket är rymligt och har gott om arbetsytor för tillagning. Vita skåpsluckor och vitt kakel över den mörka arbetsbänken i laminat. Hushållsmaskiner i vitt utförande, spishäll, fläkt, ugn, mikro, kombinerad kyl/frys samt diskmaskin underlättar vardagens alla bestyr. I anslutning till köket finns det gott om plats för ett större matbord som rymmer familj och vänner.
Från sällskapsytan nås den inglasade balkongen belägen högt upp mot innergården. Möblera med loungemöbel eller cafébord och njut av ett härligt läge. Innergården är grönskande med träd och planteringar och är en levande miljö för umgänge och lekplats för de allra minsta.
Innanför vardagsrummet återfinns det rofyllda sovrummet. Ett välplanerat sovrum med plats för den större sängen och förvaringsmöbel för den som önskar. I direkt anslutning till sovrummet finns en praktisk klädkammare med fönster som i dagsläget nyttjas som arbetsrum.
Badrummet är stilrent inrett med ett ljusgrått klinkergolv och vitt kakel på väggarna. Stor härlig dusch bakom vikbara väggar, handdukstork, handfat integrerat i kommod med tillhörande spegelskåp, samt praktiskt kombinerad tvätt-och torktumlare.
Välkommen med ert intresse av Segelflyget 8!



*Areauppgifter från bostadsrättsföreningen och säljaren
I månadsavgiften ingår värme, sophantering, kabel-TV, bredbandstelefoni och förråd. El, varm- och kallvatten debiteras individuellt efter förbrukning. Det tillkommer ett obligatoriskt tillägg på 850 kr/mån för kapitalskuld till föreningen.
Inglasad balkong med utsikt över innergårdens grönska och här är det härlig morgonsol. Det ryms loungegrupp och planteringar.
Bostadsrättens indirekta nettoskuldsättning baseras på föreningens skulder/lån minus föreningens räntebärande tillgångar och likvida medel. Beräkningen är gjord via Bopedia. För mer information kontakta ansvarig fastighetsmäklare.
Det tillkommer ett obligatoriskt tillägg på 850 kr/mån för kapitalskuld till föreningen.
*Betalas av köpare
BRF Landningsbanan är en äkta bostadsrättsförening som äger fastigheten Göteborg Amhult 204:1 i Göteborgs kommun. På fastigheten finns 2 st byggnader med 60 st bostadsrättslägenheter med adress Segelflyget 6 och 8. Fastigheten stod klar 2016 och föreningen bildades 2013. Lägenheterna är fördelade på 2 st 1 rok, 36 st 2 rok och 22 st 3 rok.
Uppvärmning sker via fjärrvärmenätet som värmer upp lägenheterna via vattenburna radiatorer. Vattenförbrukning och hushållsel för varje lägenhet regleras av föreningen efter förbrukning.
Föreningen har enligt Årsredovisningen 2024 en belåningsgrad på 10 387 kr. Föreningens ekonomiska förvaltning handhas av Bredablick i Göteborg. För mer info om föreningen, se Årsredovisningen.
Föreningens årsavgift ändrades 2024-01-01 då den höjdes med 2,0 %. Föreningen höjde avgiften med 3,0 % 2025-01-01 och 5% 2026-01-01. (Enligt samtal med styrelsen 2026-03-05).
Föreningens fastighet är fullvärdesförsäkrad hos Folksam och har bostadsrättstillägg.
Planerade renoveringar:
Föreningen har inga planerade underhåll i dagsläget.
Föreningen har 47 st garageplatser som kan hyras av medlemmarna. En plats kostar 700 kr/mån respektive en plats med laddstolpe kostar 850 kr/mån. Till platserna är det separat kö.
Digital-TV (grundutbud), bredband och bredbandstelefoni via Telia Triple Play ingår i avgiften. TV-utbudet och bredbandet kan utökas och uppgraderas efter önskemål.
Gemensam innergård med uppväxt grönska, gräsmatta och lekplats med sandlåda för de allra minsta. Gården är bilfri och delas med Brf Lufthamnen och hyreshuset Tornet. Även garaget och infartsvägen är gemensamhetsanläggning.
Föreningen har gemensamma cykelförråd beläget i byggnad på gården. Barnvagnsförråd och lägenhetsförråd finns i byggnaden. Sopsugsnedkast finns mellan husen.
Till lägenheten finns ett förråd som ingår i avgiften.
BO KUSTNÄRA I TORSLANDA
I Torslanda bor du med närhet till havet, norra skärgården och lantliga omgivningar, samtidigt som storstaden Göteborg finns runt hörnet.
BARNVÄNLIGT I VACKER MILJÖ
Torslanda tillhör stadsdelen Västra Hisingen och bebyggelsen i området består av både villor, radhus och bostadsrättslägenheter. Många barnfamiljer väljer att flytta till detta barnvänliga område då det finns både förskolor och grundskolor här. Torslanda består av de gamla socknarna Björlanda och Torslanda och omfattar även Arendal.
Kustlivet bjuder på många möjligheter till avkoppling och naturupplevelser och här finns flera olika badplatser. Hällsviks badplats, Hästeviksbadet och Sillviksbadet med Sillviks naturreservat för att nämna några. Här ligger också flera stora båthamnar som Torslanda Lagun och Björlanda Kile, som är en av norra Europas största hamn.
Högt över havet reser sig Telegrafberget i Sillvik, ta en promenad dit och du får en vacker utsikt över vattnet. Härifrån kan du se en stor del av den norra skärgården och en klar dag faktiskt ända till Marstrand med Carlstens fästning.
För dig som är idrottsintresserad finns bland annat Torslanda Golfklubb som med både en 18-hålsbana och en korthålsbana om 9-hål. Lockar hästryggen desto mer så har Torslanda flera fina stall och ridskolor. I området finns träningsanläggningar och olika idrottsföreningar för till exempel fotboll, handboll, innebandy och tennis.
TA DIG ENKELT TILL BÅDE CITY OCH SKÄRGÅRDEN
I Amhults centrum är utbudet stort i form av butiker, kulturhus, bank, vårdcentral, apotek och livsmedelsbutik. Området står under utveckling och fler bostäder, butiker och kontor växer fram här. Med sitt läge vid Öckeröleden är det gångavstånd till hav, bad och båtliv i den bohuslänska skärgården.
Med kollektivtrafik eller bil tar du dig smidigt in till stan och övriga Hisingen. Från Torslanda har du också nära till färjeläget på Lilla Varholmen med färjor som tar dig ut i Göteborgs norra skärgård med Hönö och Björkö som närmsta öarna. Från dessa öar tar du dig lätt vidare med färja eller bil till andra öar i Öckerö kommun.
KONTAKT
Köpa, sälja eller värdera bostad i Torslanda - Amhult? Kontakta våra Bjurfors mäklare i Torslanda! Passa också på att anmäla dig till vår kostnadsfria söktjänst Boagenten som hjälper dig att hitta ditt drömboende.
Kontakta mäklaren om du behöver hjälp att ta fram en boendekalkyl.
När du köper din bostad genom Bjurfors kan du ansöka om bolån till en förmånlig ränta hos vår samarbetspartner SEB.
Ansvarig mäklare
Extra kontaktperson