-
Köpa
Köpa -
Sälja
Sälja - Hitta bostad
- Skapa bevakning
- Hitta mäklare
Högt och fritt läge med havsutsikt i populära Andalen
Torslanda - Andalen, Göteborg
*Areauppgifter enligt taxeringsinformationen
Bokad visning. Du kan även ringa Bjurfors Bokningscenter 031-761 79 50. Välkommen!
Här är drömmen för dig som vill bo högt och fritt med en underbar utsikt över Göteborgs vackra skärgård med en magnifik vy som sträcker sig till Vinga fyr. Tomten har härliga ytor om 1359 kvm med vackra berghällar och uppfyller drömmarna om ett bekvämt och havsnära boende. Smakfullt enplanshus med altaner som sträcker sig längs med fastigheten. Här erbjuds underbara sociala ytor med öppen planlösning mellan kök och allrum vilket ger rymliga ytor för familj och vänner att umgås på. Högt i tak med ryggåstak som skapar rymd. Från allrummet öppnas det upp med glasdörr mot ett magiskt uterum. Här finns idag två sovrum men möjlighet att skapa flera om så önskas.
För dig som älskar havet, båtlivet och svalkande dopp väntar en idyll precis runt hörnet. I havsnära Andalen finns flera badplatser i närheten, där du kan njuta av bad från både stränder, klippor, hopptorn och bryggor. Populära Andalsbadet och Sandviksbadet ligger inom bekvämt promenadavstånd. Cyklar du en kort sträcka når du även charmiga Torslanda Havsbadskoloni med sin långgrunda badvik, Torslanda Golfklubb, Torslanda Lagun samt Grefabs hamn med möjlighet till egen båtplats. Här bor du dessutom med gångavstånd till både skola, förskola och utmärkta kommunikationer, där X6 bussen snabbt tar dig in till centrala Göteborg. I närområdet finns även Amhults centrum med ett brett serviceutbud, kommersiella butiker och familjära restauranger. Välkommen med ert intresse!
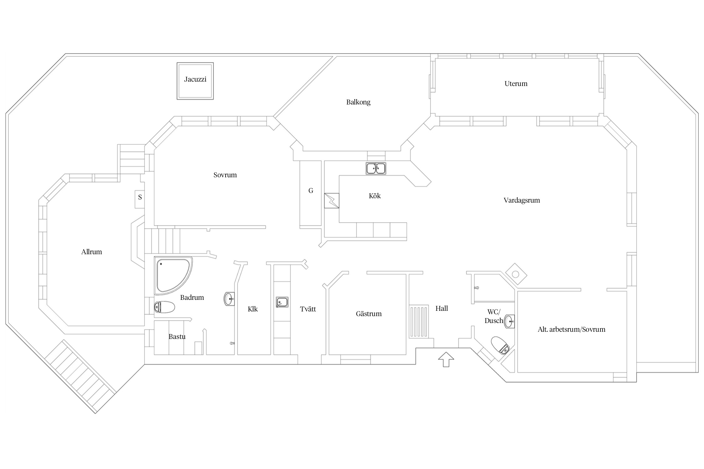
Välkommen in till denna trevliga villa. Hallen är välkomnande och trevlig med klinkergolv som övergår till parkett som löper vidare in i bostaden.
Här finns gott om plats för avhängning för ytterkläder.
Från hallen nås det rymliga allrummet med ryggåstak och stora fönsterpartier vilket ger ett skönt ljus och så klart vacker havsutsikt. Spotlights i taket ger fint ljus när mörkret faller på. Här finns en braskamin som bidrar med myskänsla och värme under den kalla årstiden. Med utgång till den rymliga terrassen så öppnar man lätt upp altandörren och bjuder in våren och sommaren och utökar sällskapsytorna.
Från allrummet ett etage upp har man idag en skön soffgrupp att samla familj och vänner. Här finns även möjlighet för att extra sovrum om så önskas.
I anslutning till allrummet nås uterummet som är isolerat även för höst och vinter. Här njuter man av sköna stunder med vacker vy. Skjutdörrar på gavlarna som öppnar upp mot altanerna.
Köket är bra planerat och lättarbetat, köksbaren vänder sig trevligt mot matplatsen. Här kan man sitta och njuta av en god kopp kaffe eller duka upp en härlig buffé. Arbetsbänkarna är av laminat. Spishäll, fläkt, ugn, integrerad diskmaskin samt kyl och frys.
Fönstren följer rummet och ger ett vackert ljus och fantastisk havsutsikt vid matplatsen att njuta av vid middagen.
Här kan man duka upp till stora middagar med familj och vänner.
Från hallen till vänster finns det ett trevligt sovrum eller gästrum vilket som passar bäst för familjen.
Vidare in i bostaden möts vi av ett föräldrasovrum som erbjuder en magisk utsikt, här vaknar man till morgonsolen och somnar till de sista soltimmarna. Här finns även en rymlig skjutdörrsgarderob med bra förvaring.
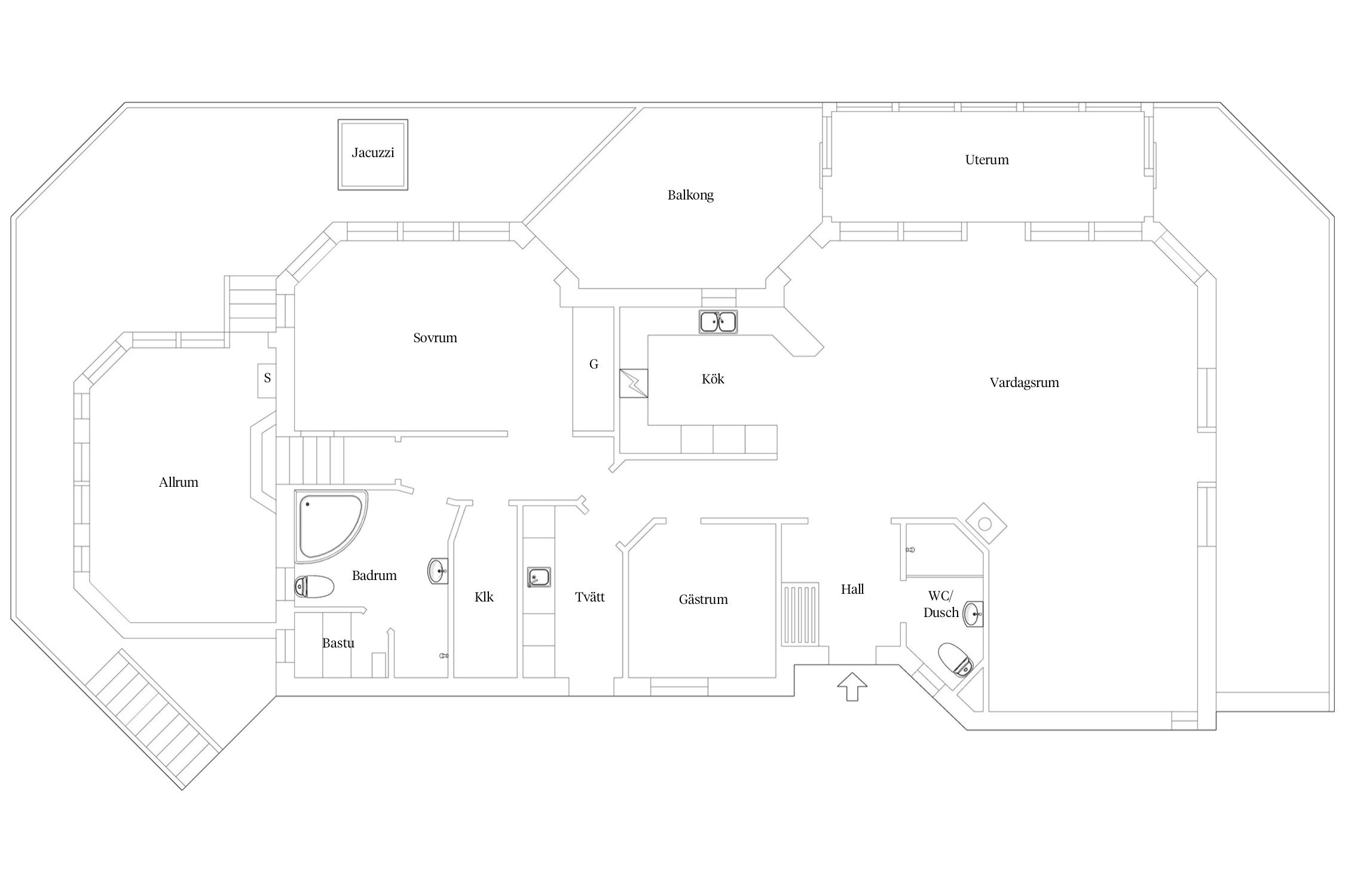
Från föräldrarsovrummet en trappa ner möts vi av ett ljust rum med flera fönster från tak till golv samt utgång till altan med spabad. Idag används detta rum som kontor men finns möjlighet att användas till både sovrum eller extra tv - rum, här finns även braskamin. Vill man öppna upp till källardelen och intergrera källaren med bostadsdelen så är det möjligt.
Badrummet är rymligt med både bastu dusch och badkar. Helkaklat i ljusa färger.
Klädvårdsrummet är även det bra planerat med praktiska lösningar så det blir lätt med familjens klädvård.
Här finns tvättmaskin och torktumlare samt värmepannan.
Helkaklat badrum i anslutning till hallen. Här finns wc, dusch samt kommod.
Villan är mycket trevlig och måste upplevas på plats. Varmt välkomna på visning.



Entréplan
Entréplan med alt planlösning
Källare med varmförråd
Amhult 1:120
*Areauppgifter enligt taxeringsinformationen
Nuvarande fastighetsägare har bott i huset sedan det byggdes.
2007/08 Utfördes en tillbyggnad av huset samt att uterum byggdes.
2011 Byttes frånluftsvärmepumpen ut (Nibe 750).
2016 Målades huset om senast då även takpannor målades.
Sorbtionsavfuktare är installerad i källardel relativt nyligen.
Fristående garage
Härliga altaner som sträcker sig längs med fastigheten. Här njuter man av högt läge med magisk utsikt.
Kommunalt vatten, Kommunalt avlopp. Tryckavloppspump
Bergstomt som pryds av vackra klippor och ljung som pryder naturen på hösten.
Vid garaget plats för två bilar.
Detaljplan (1993-08-20)
Gemensamhetsanläggning: Göteborg andalen ga:2 ändamål: Vägar
Förmån: Officialservitut Väg, 14-TRL-1094.1
Fiber
Posten för uppvärmning är inkl nätavgift.
Det finns 5 st pantbrev uttagna om sammanlagt 1 433 000 kr
BO KUSTNÄRA I TORSLANDA
I Torslanda bor du med närhet till havet, norra skärgården och lantliga omgivningar, samtidigt som storstaden Göteborg finns runt hörnet.
BARNVÄNLIGT I VACKER MILJÖ
Torslanda tillhör stadsdelen Västra Hisingen och bebyggelsen i området består av både villor, radhus och bostadsrättslägenheter. Många barnfamiljer väljer att flytta till detta barnvänliga område då det finns både förskolor och grundskolor här. Torslanda består av de gamla socknarna Björlanda och Torslanda och omfattar även Arendal.
Kustlivet bjuder på många möjligheter till avkoppling och naturupplevelser och här finns flera olika badplatser. Hällsviks badplats, Hästeviksbadet och Sillviksbadet med Sillviks naturreservat för att nämna några. Här ligger också flera stora båthamnar som Torslanda Lagun och Björlanda Kile, som är en av norra Europas största hamn.
Högt över havet reser sig Telegrafberget i Sillvik, ta en promenad dit och du får en vacker utsikt över vattnet. Härifrån kan du se en stor del av den norra skärgården och en klar dag faktiskt ända till Marstrand med Carlstens fästning.
För dig som är idrottsintresserad finns bland annat Torslanda Golfklubb som med både en 18-hålsbana och en korthålsbana om 9-hål. Lockar hästryggen desto mer så har Torslanda flera fina stall och ridskolor. I området finns träningsanläggningar och olika idrottsföreningar för till exempel fotboll, handboll, innebandy och tennis.
TA DIG ENKELT TILL BÅDE CITY OCH SKÄRGÅRDEN
I Amhults centrum är utbudet stort i form av butiker, kulturhus, bank, vårdcentral, apotek och livsmedelsbutik. Området står under utveckling och fler bostäder, butiker och kontor växer fram här. Med sitt läge vid Öckeröleden är det gångavstånd till hav, bad och båtliv i den bohuslänska skärgården.
Med kollektivtrafik eller bil tar du dig smidigt in till stan och övriga Hisingen. Från Torslanda har du också nära till färjeläget på Lilla Varholmen med färjor som tar dig ut i Göteborgs norra skärgård med Hönö och Björkö som närmsta öarna. Från dessa öar tar du dig lätt vidare med färja eller bil till andra öar i Öckerö kommun.
KONTAKT
Köpa, sälja eller värdera bostad i Torslanda - Andalen? Kontakta våra Bjurfors mäklare i Torslanda! Passa också på att anmäla dig till vår kostnadsfria söktjänst Boagenten som hjälper dig att hitta ditt drömboende.
Kontakta mäklaren om du behöver hjälp att ta fram en boendekalkyl.
När du köper din bostad genom Bjurfors kan du ansöka om bolån till en förmånlig ränta hos vår samarbetspartner SEB.
Bokad visning. Du kan även ringa Bjurfors Bokningscenter 031-761 79 50. Välkommen!
Extra kontaktperson