-
Köpa
Köpa -
Sälja
Sälja - Hitta bostad
- Skapa bevakning
- Hitta mäklare
Tomt i lugnt område nära skog och natur
Torslanda, Göteborg
På Förhand ligger bostäder som av olika anledningar inte är ute till försäljning just nu men som kan komma att säljas om förutsättningarna är rätt.
Naturnära tomt i lugnt område med närhet till centrala Göteborg och Volvo
Nu ges en möjlighet att förvärva denna generösa tomt om 1 660 kvadratmeter, belägen i ett lugnt och naturnära område längst in på en återvändsgata. Här erbjuds ett privat och ostört läge, där skog och grönska utgör era närmaste grannar – en idealisk plats för er som drömmer om ett hem i harmoni med naturen, utan att göra avkall på tillgänglighet.
Tomtens placering skapar fina förutsättningar för ett personligt boende med naturen som självklar del av vardagen. Här finns utrymme att skapa ett hem där ute- och innemiljö samspelar, med lugnet som ständig följeslagare.
Här bor man lugn och ostört men där kommunikationerna mycket goda. Från Hästlyckan når ni Volvo samt de större trafiklederna på mindre än fem minuter, vilket gör tomten särskilt attraktiv för den som vill kombinera naturboende med smidig vardagslogistik.
Inom kort avstånd ligger även Skra Bro, där ett nytt närcentrum är under utveckling med planerade butiker, förskolor och bostäder – ett tillskott som ytterligare stärker områdets attraktivitet och framtida värde.
Enligt gällande detaljplan medges en huvudbyggnad med en sammanlagd byggyta om 75 kvm och en maximal byggnadshöjd om 3,5 meter
Uthus/komplementbyggnad med en maximal byggnadshöjd om 2,5 meter
För fullständig information se bifogad detaljplan. Bland dokumenten finns även tomtkarta för vidare planering och orientering.
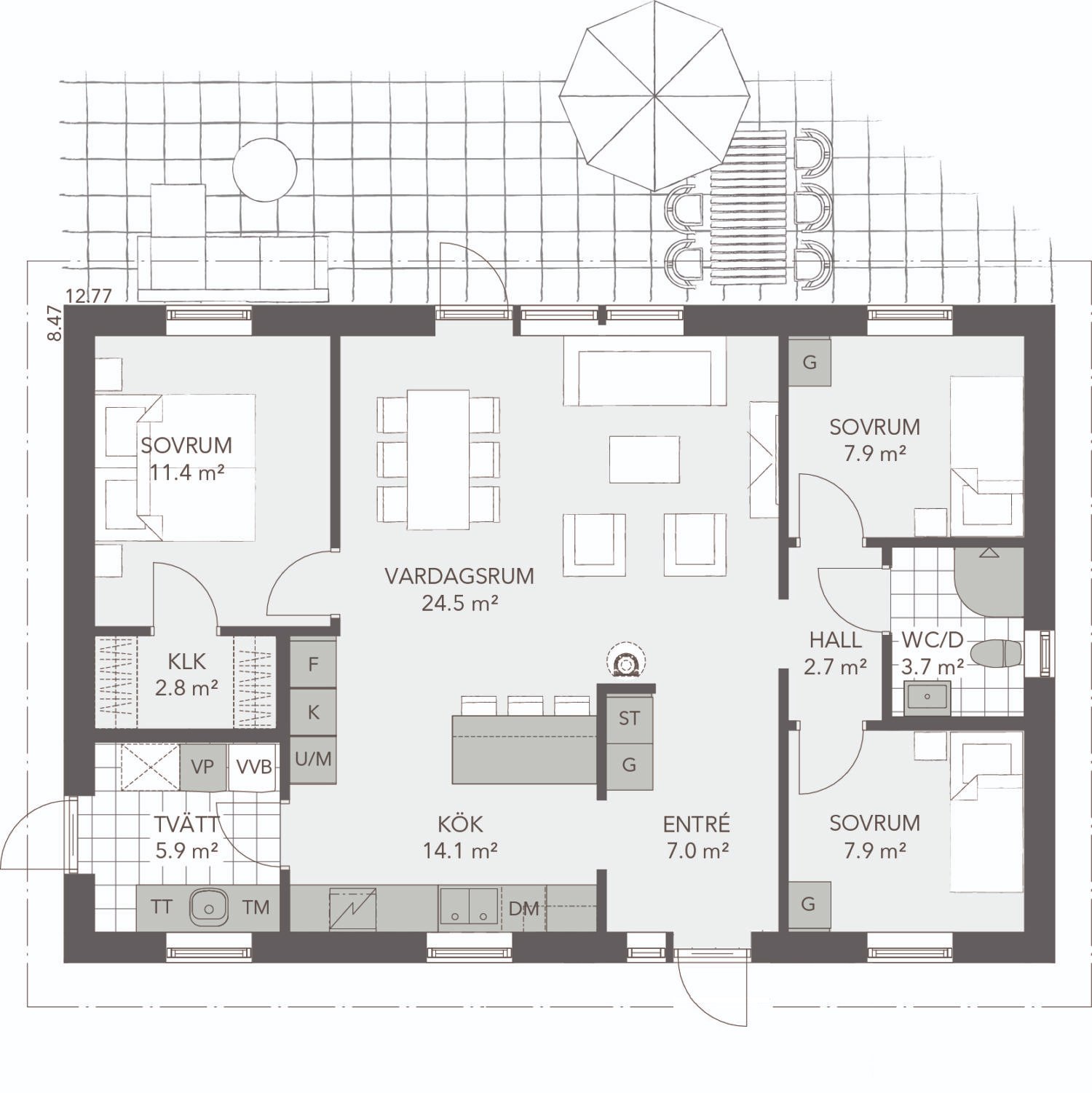
Tomten är inte knuten till någon husleverantör men vi presenterar ett förslag från Fiskarhedenvillan på 105kvm där man nyttjar de nya byggreglerna, och där man kan utöka byggnadsarean med 30kvm i samband med bygglov.
Finns intresse för husförslaget kontakta Ida Runnquist, Fiskahedenvillan 031-300 03 72 för mera information om husförslaget.
Mäklarens uppdrag omfattar endast förmedling av tomten. Entreprenadavtal avseende uppförande av ett bostadshus ingås mellan husleverantör och köparen. Mäklaren förmedlar inte entreprenaden.
Byggnadsplan (1959-04-23)
Förmån: Officialservitut Vattentäkt, 1480K-2008F72.1
Förmån: Officialservitut Väg, 14-BJL-1553.1



Planlösning Sparven 105kvm
Sörred 7:13
Vatten saknas, Avlopp saknas.
Byggnadsplan (1959-04-23)
Förmån: Officialservitut Vattentäkt, 1480K-2008F72.1
Förmån: Officialservitut Väg, 14-BJL-1553.1
Enligt ö.k
BO KUSTNÄRA I TORSLANDA
I Torslanda bor du med närhet till havet, norra skärgården och lantliga omgivningar, samtidigt som storstaden Göteborg finns runt hörnet.
BARNVÄNLIGT I VACKER MILJÖ
Torslanda tillhör stadsdelen Västra Hisingen och bebyggelsen i området består av både villor, radhus och bostadsrättslägenheter. Många barnfamiljer väljer att flytta till detta barnvänliga område då det finns både förskolor och grundskolor här. Torslanda består av de gamla socknarna Björlanda och Torslanda och omfattar även Arendal.
Kustlivet bjuder på många möjligheter till avkoppling och naturupplevelser och här finns flera olika badplatser. Hällsviks badplats, Hästeviksbadet och Sillviksbadet med Sillviks naturreservat för att nämna några. Här ligger också flera stora båthamnar som Torslanda Lagun och Björlanda Kile, som är en av norra Europas största hamn.
Högt över havet reser sig Telegrafberget i Sillvik, ta en promenad dit och du får en vacker utsikt över vattnet. Härifrån kan du se en stor del av den norra skärgården och en klar dag faktiskt ända till Marstrand med Carlstens fästning.
För dig som är idrottsintresserad finns bland annat Torslanda Golfklubb som med både en 18-hålsbana och en korthålsbana om 9-hål. Lockar hästryggen desto mer så har Torslanda flera fina stall och ridskolor. I området finns träningsanläggningar och olika idrottsföreningar för till exempel fotboll, handboll, innebandy och tennis.
TA DIG ENKELT TILL BÅDE CITY OCH SKÄRGÅRDEN
I Amhults centrum är utbudet stort i form av butiker, kulturhus, bank, vårdcentral, apotek och livsmedelsbutik. Området står under utveckling och fler bostäder, butiker och kontor växer fram här. Med sitt läge vid Öckeröleden är det gångavstånd till hav, bad och båtliv i den bohuslänska skärgården.
Med kollektivtrafik eller bil tar du dig smidigt in till stan och övriga Hisingen. Från Torslanda har du också nära till färjelägret på Lilla Varholmen med färjor som tar dig ut i Göteborgs norra skärgård med Hönö och Björkö som närmsta öarna. Från dessa öar tar du dig lätt vidare med färja eller bil till andra öar i Öckerö kommun.
KONTAKT
Köpa, sälja eller värdera bostad i Torslanda? Kontakta våra Bjurfors mäklare i Torslanda! Passa också på att anmäla dig till vår kostnadsfria söktjänst Boagenten som hjälper dig att hitta ditt drömboende.
Kontakta mäklaren om du behöver hjälp att ta fram en boendekalkyl.
När du köper din bostad genom Bjurfors kan du ansöka om bolån till en förmånlig ränta hos våra banksamarbetspartners Söderberg & Partners och SEB.
Ansvarig mäklare