-
Köpa
Köpa -
Sälja
Sälja - Hitta bostad
- Skapa bevakning
- Hitta mäklare
Välplanerad trea med ett fantasiskt läge
Tynnered, Göteborg
*Inkl. värme, kallvatten, kabel-tv och p-plats. Föreningen har individuell mätning och debitering av hushållsel och varmvatten genom ett IMD avtal.
**Enligt lägenhetsförteckning.
Bokad visning. Du kan även ringa Bjurfors Bokningscenter 031-761 79 50. Välkommen!
Bokad visning. Du kan även ringa Bjurfors Bokningscenter 031-761 79 50. Välkommen!
Välkommen till en modern och välplanerad lägenhet med ett av de absolut bästa lägena i föreningen. Komplett boende där parkering ingår i avgiften.
Välkommen till en modern och välplanerad lägenhet i Fiskebäck / Tynnered, med ett av de absolut bästa lägena i föreningen. Här erbjuds en trevlig trea på våning två, med balkong mot sydväst som erbjuder fri sikt över odlingslotter och lummig grönska alldeles utanför. Den attraktiva planlösningen är fördelad över två rymliga sovrum, ett stort vardagsrum, stilrent renoverat kök med naturlig matplats samt ett sobert badrum som totalrenoverades vid föreningens stambyte 2011. Här bor du i ett lugnt läge i området med goda förvaringsmöjligheter och stora sociala ytor.
Brf Grevegården är en både omtyckt och stabil förening med en social känsla. I denna förening utnyttjas fördelarna med ett problemfritt boende och närheten till frisk natur med hav och vackra strövområden. På bekvämt avstånd nås såväl citykärnan som expansiva Frölunda torg. Bekvämligheter såsom affär, förskolor och skolor finns i området och via goda kommunikationer, inte minst via buss X5, tar man sig på ca. 10 min. På sommaren cyklar man gärna ut till havet, vill man in till citykärnan så nås Järntorget och Centralstationen smidigt via buss.
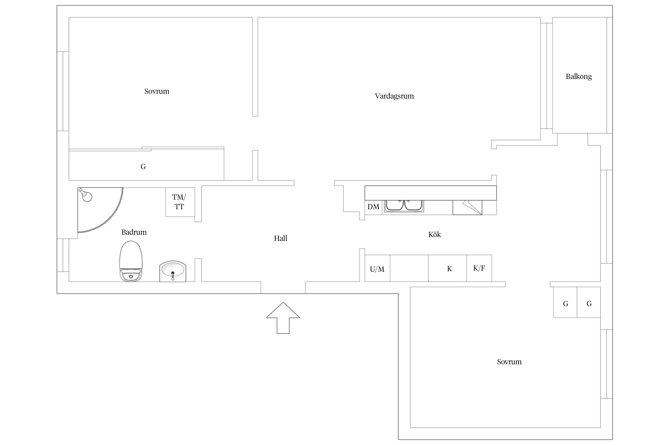
Välkommen till populära Beryllgatan, en lika stabil som omtyckt förening. Härifrån har du nära till det mesta och goda möjligheter att ta dig till Göteborgs samtliga stadsdelar. Innergårdarna är fina med uppskattade lekplatser för de små. Bostaden disponeras enligt följande;
Entrén är välkomnande, möjligheter till avhängning till vänster i hallen. Ljusa väggar ger ett luftigt intryck och harmoniserar med en läcker akustikpanel längs ena väggen. Lägenheten är utrustad med säkerhetsdörr.
Till höger i hallen ligger det smakfulla köket. Med sinne för både det praktiska och det estetiska är köket en dröm i sig för dig som gillar matlagning och större middagar. Skåpsluckorna går i ljus ton med gott om förvaring för kockens alla redskap via över- och underskåp på vardera sida. En tidlös bänkskiva som matchas med ett vitt kakel ovan. Den maskinella utrustningen består av kyl & frys, ugn & mikro i bekväm arbetshöjd, spishäll, fläkt samt diskmaskin. Matplatsen invid fönstret är given och ger plats åt 4–6 middagsgäster. Härifrån finns också utgång till den underbara balkongen som är ett av bostadens absoluta attribut. Solens strålar når balkongen från lunch till kväll, belägen med ett uppskattat sydväst-läge. Här finns plats för bod & stolar samt blomsterarrangemang. Läget är fantastiskt, fritt från insyn och med de gemytliga odlingslotterna och lummiga grönskan utanför.
Vardagsrummet tenderar med lätthet att bli bostadens givna sällskapsutrymme. Möjligt att inreda med soffdel tillsammans med kompletterande möblemang samt matsalsbord för den som önskar. Lättmöblerat samt ett härligt ljusinsläpp tack vare det stora fönsterpartiet som erbjuder fri utsikt över omgivningen utanför. Väggarna är ljust målade med undantag för akustikpanel och på golvet ligger ett klassiskt parkettgolv i original som snyggt harmoniserar.
Bostaden erbjuder två rymliga sovrum. Master bedroom har ett rofyllt läge och här ges det plats för en större säng med tillhörande sidobord. Väggarna är målade i en mjuk och behaglig kulör som matchas med ett stilrent golv. Förvaringen löses med hjälp av en rymlig garderob som är utrustad med skjutdörrar. Det andra sovrummet nås från köket och har också ljusa ytskikt. Plats för säng, skrivbord samt förvaringsmöbel om så önskas. Lämpar sig utmärkt som barnrum, kontor eller gästrum.
Bostadens badrum har en sober prägel och renoverades i samband med föreningens stambyte. Resultatet är utmärkt med helkaklade ytskikt och modern badrumsinredning samt klinker med komfortvärme som både torkar upp och värmer gott under fötterna. Fönster som skänker ljus och ger bra vädringsmöjlighet. Duschhörna med dörrar av klarglas, handdukstork, wc, extra bred kommod, handdukstork samt översittande spegelskåp med belysning är inredning som badrummet försetts med. Egna tvättmöjligheter via tvättmaskin och torktumlare som ett utmärkt komplement till föreningen tvättstugor.
Välkommen att trivas!



Tynnered 25:6
*Enligt lägenhetsförteckning.
Inkl. värme, kallvatten, kabel-tv och p-plats. Föreningen har individuell mätning och debitering av hushållsel och varmvatten genom ett IMD avtal.
Till lägenheten finns ett tillhörande förråd, beläget i källaren. I föreningen finns en rad gemensamma tvättstugor med tillhörande torkrum. Utöver ovanstående finns också cykel & barnvagnsförråd och inte minst ett gemensamt gym, beläget i källaren av Beryllgatan 23. Det finns även skyddsrum i alla huskroppar, boulebana och odlingslotter för den med gröna fingrar. Föreningen har således ett flertal lokaler att tillgå.
På innergårdarna finns trevliga lekplaster för barnen och uteplatser som kan nyttjas av föreningens medlemmar. Synnerligen välskötta innergårdar med många vackra blommor och buskar.
Balkong, vetter mot sydväst.
Parkeringsplats i garage ingår.
Ansluten till kabelnät. Leverantör: Tele 2. Mer info: <a href="https://www.hsb.se/goteborg/brf/grevegarden/lagenheter/kabel-tv/">https://www.hsb.se/goteborg/brf/grevegarden/lagenheter/kabel-tv/</a>
Bredband. Via indraget fiber. Du väljer själv leverantör, det finns ca 16 stycken via fibernätet.
Bostadsrättens indirekta nettoskuldsättning baseras på föreningens skulder/lån minus föreningens räntebärande tillgångar och likvida medel. Beräkningen är gjord och baseras enbart på den senaste tillgängliga årsredovisningen. För mer information kontakta ansvarig fastighetsmäklare. Uträkningen är eventuellt baserad på fel andelstal och kan därför vara felaktig.
*Betalas av säljare
HSB Grevegården är en stor förening om 444 lägenheter, fördelat på sex stycken flerbostadshus. Parkeringsmöjligheterna är goda och erbjuds via två parkeringsdäck. Föreningen är aktiv och välskött med god ekonomi och stora ambitioner för ett gott boende.
I denna förening är de större renoveringarna utförda. Att nämna i raden, stamrenovering slutfördes 2011 samtidigt som all el byttes ut.
Beryllgatan är perfekt beläget. Nära till det mesta och ett stenkast från natur och Göteborgs vackra havspärlor. In till stan tar man sig snabbt och smidigt. Med snabbuss, linje 50, från hållplats Beryllgatan till Nordstan tar det endast 14 minuter och vidare till Korsvägen ytterligare 8 minuter. Ett utmärkt komplement till citykärnans shoppingutbud erbjuds via närliggande Frölunda torg som de senare åren expanderat och moderniserats.
Expeditionen på Beryllgatan 11 har öppet helgfria måndagar kl. 18:30 - 19:30, tel: 031-29 40 57. Föreningen har också flera lokaler att tillgå för en låg kostnad.
För mer information, besök föreningens hemsida där du hittar mer matnyttig info; www.hsb.se/goteborg/grevegarden
Parkeringsdäcken har renoverats under 2019.
Föreningen har under 2018 utökat utomhusbelysningen i området.
Parkeringsplats ingår i avgiften.
Det finns tvättstuga, torkrum, cykelförråd och källarförråd.
Det finns odlingslotter att hyra.
MED NÄRHET TILL BÅDE NATUR OCH SHOPPING
I Tynnered bor du nära centrum, men har samtidigt förmånen att ha havet alldeles runt knuten. Det är också nära till shopping på Frölunda Torg och området bjuder på en mix av lägenheter, radhus och villor.
SALTSTÄNK OCH CITYPULS
Tynnered är så nära havet att det nästan går att känna de salta stänken från sovrumsfönstret. Efter jobbet kan du slänga badkläderna i cykelkorgen och rulla ner till havet för ett dopp. Hur många kan skryta med det i en storstad? Klippbadare siktar med fördel in sig på Ganlet medan den som föredrar strand eller brygga tar kurs mot Fiskebäcks badplats. När andan faller på – eller jobbet kallar, nås centrum på under halvtimmen med spårvagn eller buss. Det går också smidigt att cykelpendla för dig som arbetar inne i stan.
OPALTTORGET I NYA KLÄDER
Vid Opaltorget startar spårvagnslinjerna som frekvent avgår mot centrum. Området kring torget började byggas i mitten av 60-talet och står idag inför stora förändringar och en spännande utveckling. Ett nytt fräscht torgkvarter har växt fram med stor livsmedelsbutik, 500 nybyggda bostäder och ett uppdaterat parkområde.
FÖRSTKLASSIG SHOPPING
I närheten hittar du det stora köpcentret Frölunda Torgs många butiker och grannen Frölunda Kulturhus med bibliotek, badhus och kulturevenemang. En annan tillgång är Ruddalens motionsspår och idrottsanläggning med fotbollsplaner, bandybana och möjligheter att åka skridskor under vintern. I området Grevegården hittar du Beryllgatans Odlarförening där hobbyodlare sätter sina gröna fingrar i arbete.
Köpa, sälja eller värdera bostad i Tynnered? Kontakta våra mäklare i Västra Göteborg! Passa också på att anmäla dig till vår kostnadsfria söktjänst Boagenten som hjälper dig att hitta ditt drömboende.
Kontakta mäklaren om du behöver hjälp att ta fram en boendekalkyl.
När du köper din bostad genom Bjurfors kan du ansöka om bolån till en förmånlig ränta hos våra banksamarbetspartners Söderberg & Partners och SEB.
Bokad visning. Du kan även ringa Bjurfors Bokningscenter 031-761 79 50. Välkommen!
Bokad visning. Du kan även ringa Bjurfors Bokningscenter 031-761 79 50. Välkommen!
Ansvarig mäklare