-
Köpa
Köpa -
Sälja
Sälja - Hitta bostad
- Skapa bevakning
- Hitta mäklare
Radhusgavel i mycket fint skick och med bra planlösning på ett av de bästa lägena i området.
Tynnered, Göteborg
*Säljarens information
Biarean fördelas på uterum ca 17 kvm och förråd på framsidan ca 9 kvm.
Vänligen boka in er på visning eller kontakta mäklaren för mer information.
Vänligen boka in er på visning eller kontakta mäklaren för mer information.
Fint och till stora delar nyrenoverat hus med öppen planlösning, 4 sovrum, fint kök och ett smakfullt renoverat badrum. Stort och helt nybyggt uterum
Denna fräscha radhusgavel har kanske bästa läget i området med sitt fria läge och lite större tomt. Från huset är det behagligt cykelavstånd till fina bad och småbåtshamnar och med bra kommunikationer når man centrala Göteborg på en halvtimme. Fin uteplats på framsidan där man har perfekt solläge hela dagen och kvällen. Det nybyggda uterummet på baksidan blir en förlängning av vardagsrummet och används av säljarna större delen av året.
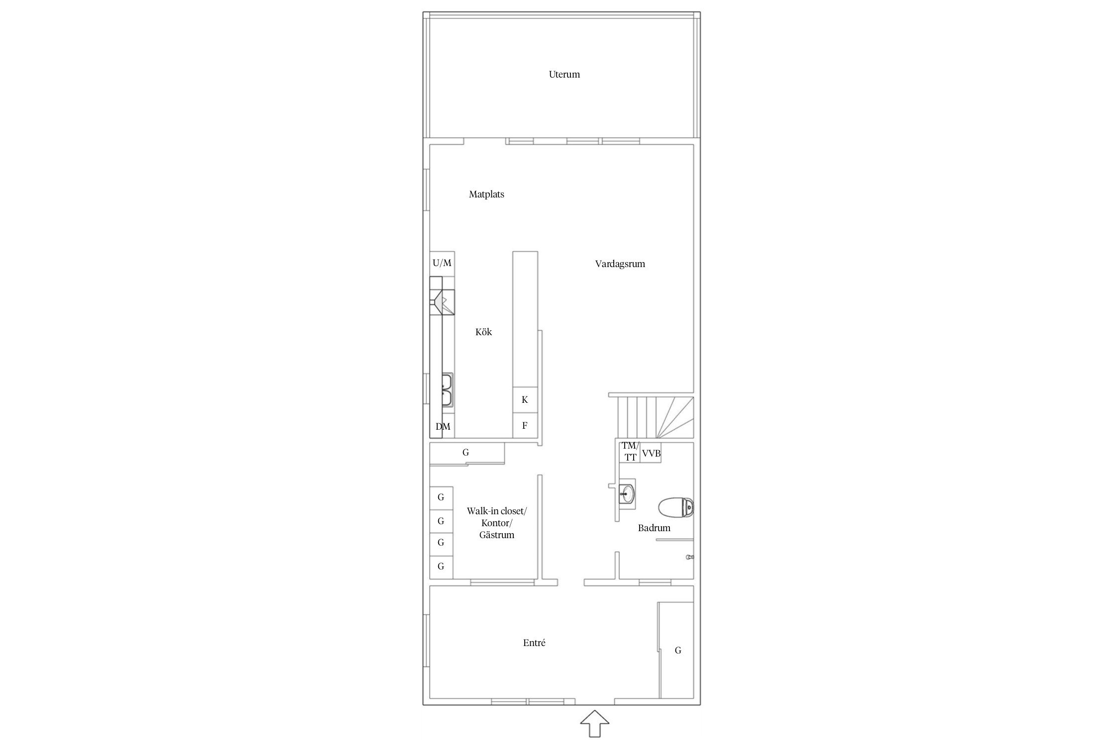
PLANLÖSNING ENTRÉPLAN: Stor och tillbyggd entré med gott om plats för avhängning av ytterkläder i en garderob med skjutdörrar. Lyxigt nog får man även plats med en liten sittgrupp här. Denna del om ca 15 kvm har stora fönster och byggdes till 2018.
Innanför entrén ligger en hall med klinkergolv och golvvärme samt ett rum med mycket förvaring i form av flera garderober. Detta rum kan även användas som kontor eller gästrum.
Ljust och rymligt vardagsrum med snyggt laminatgolv, vitmålade väggar och öppen planlösning mot det fina köket. Här finns plats för såväl stor soffa som matbord med plats för många gäster.
Köket, som totalrenoverades på ett fint sätt 2012 och uppgraderades 2023, har gott om förvaringsutrymmen, fina arbetsytor och en bra matplats. På golvet i köket ligger samma snygga golv som i vardagsrummet och även här är väggarna vitmålade. Vitvarorna är från 2012 (spis och spisfläkt) , 2018 (diskmaskin), 2022 (kyl och frys) samt 2023 (mikrovågsugn).
Badrummet totalrenoverades och byggdes om på ett smakfullt sätt 2024 med helkaklade väggar, klinkergolv med golvvärme, duschplats, handfat och wc. Här finns även en praktisk tvättdel med tvättmaskin och torktumlare (Siemens) från 2012.
PLANLÖSNING ÖVRE PLAN: En trappa upp finns ett litet allrum/kontorshörna med ljust laminatgolv och vitmålade väggar.
Här finns dessutom tre bra sovrum med snyggt och ljust laminatgolv, vitmålade väggar samt gott om förvaring i form av rejäla garderober i samtliga rum.
Badrummet, som är från 2012, har helkaklade väggar samt klinkergolv med golvvärme, duschplats, handfat och wc.



Tynnered 37:28
*Säljarens information
Biarean fördelas på uterum ca 17 kvm och förråd på framsidan ca 9 kvm.
Samtliga fönster byttes ut 2012.
Dräneringsarbeten har utförts runt huset samt mot stödmur 2012. Badrummet på övre plan totalrenoverades 2012.
En tillbyggnad av entré utfördes 2018.
Köket renoverades 2012 och kompletterades 2023.
Tvättstuga/badrum och toalett totalrenoverades 2024.
Altanen byggdes om till uterum 2025.
Avloppen relinades 2025.
All el i byggnaden har bytts ut löpande och är idag jordad. Fasadpanelen byttes ut på fram och baksida 2019.
Fint uterum om ca 17 kvm som kan användas året runt.
På framsidan finns ett inrett förråd om ca 8 kvm (med dusch och toalett). Ihop med detta förråd sitter en tillbyggnad som sannolikt kommer att tas bort innan tillträdet.
Trevlig uteplats på framsidan och lyxigt uterum på baksidan.
Kommunalt vatten, Kommunalt avlopp.
Garage för en bil samt fri parkering på samfällighetens p-platser. Diskussioner pågår i samfälligheten om att installera elbilsladdare i garage eller på p-platserna.
Tomtindelning (1970-05-25) Stadsplan (1969-11-21)
Gemensamhetsanläggning: Göteborg tynnered ga:2 ändamål: Vägar, Vattenförsörjning, Avloppsanläggning, Elledning och/eller belysning, Garage och/eller parkering
Fiber är installerat.
Observera att 30 % av tomträttsavgälden om 16 600 kr/år är avdragsgill och att nettokostnaden/år blir 11 620 kr/år eller 968 kr/månad.
Enligt överenskommelse
Det finns 12 st pantbrev uttagna om sammanlagt 2 000 000 kr
MED NÄRHET TILL BÅDE NATUR OCH SHOPPING
I Tynnered bor du nära centrum, men har samtidigt förmånen att ha havet alldeles runt knuten. Det är också nära till shopping på Frölunda Torg och området bjuder på en mix av lägenheter, radhus och villor.
SALTSTÄNK OCH CITYPULS
Tynnered är så nära havet att det nästan går att känna de salta stänken från sovrumsfönstret. Efter jobbet kan du slänga badkläderna i cykelkorgen och rulla ner till havet för ett dopp. Hur många kan skryta med det i en storstad? Klippbadare siktar med fördel in sig på Ganlet medan den som föredrar strand eller brygga tar kurs mot Fiskebäcks badplats. När andan faller på – eller jobbet kallar, nås centrum på under halvtimmen med spårvagn eller buss. Det går också smidigt att cykelpendla för dig som arbetar inne i stan.
OPALTTORGET I NYA KLÄDER
Vid Opaltorget startar spårvagnslinjerna som frekvent avgår mot centrum. Området kring torget började byggas i mitten av 60-talet och står idag inför stora förändringar och en spännande utveckling. Ett nytt fräscht torgkvarter har växt fram med stor livsmedelsbutik, 500 nybyggda bostäder och ett uppdaterat parkområde.
FÖRSTKLASSIG SHOPPING
I närheten hittar du det stora köpcentret Frölunda Torgs många butiker och grannen Frölunda Kulturhus med bibliotek, badhus och kulturevenemang. En annan tillgång är Ruddalens motionsspår och idrottsanläggning med fotbollsplaner, bandybana och möjligheter att åka skridskor under vintern. I området Grevegården hittar du Beryllgatans Odlarförening där hobbyodlare sätter sina gröna fingrar i arbete.
Köpa, sälja eller värdera bostad i Tynnered? Kontakta våra mäklare i Västra Göteborg! Passa också på att anmäla dig till vår kostnadsfria söktjänst Boagenten som hjälper dig att hitta ditt drömboende.
Kontakta mäklaren om du behöver hjälp att ta fram en boendekalkyl.
När du köper din bostad genom Bjurfors kan du ansöka om bolån till en förmånlig ränta hos vår samarbetspartner SEB.
Vänligen boka in er på visning eller kontakta mäklaren för mer information.
Vänligen boka in er på visning eller kontakta mäklaren för mer information.