-
Köpa
Köpa -
Sälja
Sälja - Hitta bostad
- Skapa bevakning
- Hitta mäklare
Ljus och inbjudande trea med skön balkong.
Utby, Göteborg
*I avgiften ingår värme, vatten, internet, kabel-tv och bostadsrättstillägg
**Areauppgifter enligt föreningen
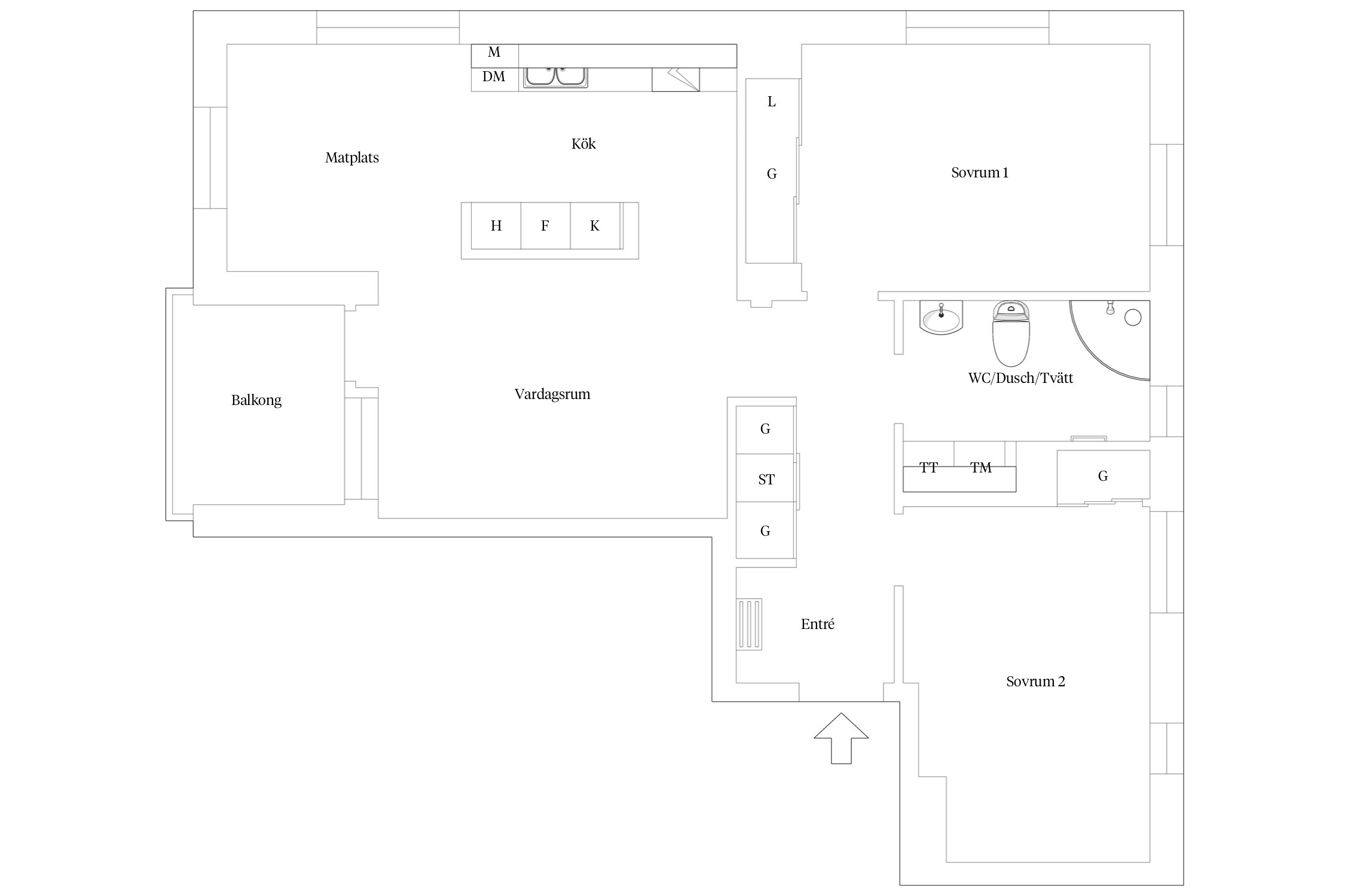
Härlig bostad med två rymliga sovrum och rofylld känsla. Nära strövområden, kommunikationer och skola.
Varmt välkomna till denna fina trea i rofyllda Fjällbo Park. Här bor ni med naturen runt hörnet och stadspulsen på lagom avstånd.
Ta hissen eller trappan upp till våning två och detta fina hem. Här väntar ett trivsamt boende med fina detaljer. Genomgående i lägenheten är färgvalen genomtänkta och harmoniska. Stuckaturerna i vägg/takvinkel ger det lilla extra till känslan i hemmet.
Sovrummen är två till antalet och känns båda rymliga och luftiga. I båda sovrummen finns förvaring i skjutdörrsgarderober.
Badrummet är helkaklat med skön golvvärme under klinkerplattorna. Här finns dusch, WC och handfat. Även tvättmaskin och torktumlare finns att tillgå.
Köket från Marbodal ligger i halvöppen planlösning mot vardagsrummet. Detta är klassiskt färgsatt med ljusa skåpsfronter och bänkskiva i mörkgrå laminat. Kylen och frysen är i fullhöjd.
I köket har matbordet fått sin plats i gaveln med fönster i två väderstreck.
Vardagsrummet har plats för soffan och TV-möbeln. Från vardagsrummet kommer ni ut på balkongen som har skön eftermiddagssol och vy över ängen och villaområdet längre bort.
Området runt lägenheten är lugnt och familjevänligt med goda möjligheter att utforska den vackra naturen. Här har ni gångavstånd till flera förskolor och skolor.
För den aktive finns närhet till fotbollsplaner på Lemmingsvallen. Gym, volleyboll och utomhushinderbana bland mycket annat hittar ni på Prioritet Serneke arena i Kviberg
Bra kommunikationer mot både Göteborg och Partille via buss finns nära bostaden. Service finns i form av bland annat Ica Nära Utby, I love pizza, köpcentret Allum och Sävedalens köpgatan nås inom kort cykel- buss-, eller bilresa.
Varmt välkomna med ert intresse!



Utby 129:5
*Areauppgifter enligt föreningen
I avgiften ingår värme, vatten, internet, kabel-tv och bostadsrättstillägg
2025 Trätrall på balkongen.
2025 Ommålning av hall, kök, vardagsrum samt ett av sovrummen.
2024 Tapetsering och ommålning av ett av sovrummen.
2022 Stuckaturer i alla rum.
Källarförråd i samma hus.
Balkong om ca 5 kvm med skön eftermiddagssol.
TV via fiber från Tele 2.
Bredband via fiber från Tele 2.
Bostadsrättens indirekta nettoskuldsättning baseras på föreningens skulder/lån minus föreningens räntebärande tillgångar och likvida medel. Beräkningen är gjord och baseras på senaste tillgängliga årsredovisningen. För mer information kontakta ansvarig fastighetsmäklare.
I posten övrigt ingår kostnaden för elnät.
*Betalas av köpare
Brf Fjällbo Park består av 90 bostadsrättslägenheter fördelade på fem hus. Lägenheterna har 1–4 rok på 32 till 102 kvadratmeter. Alla balkonger och uteplatser är placerade i västerläge.
-19 st 1 rok
-27 st 2 rok
-32 st 3 rok
-12 st 4 rok
Den ekonomiska och tekniska förvaltningen sköts av SBC.
Inga planerade avgiftshöjningar. Senaste höjningen skedde med 2026-01-01 med 2%.
Totalt 69 parkeringsplatser i form av markparkeringar. 43 är fasta parkeringar och 26 är tillståndsparkeringar.
Parkeringsplatserna hyrs via Familjebostäder. Den fasta ligger på 1014kronor/ månad. Tillståndsparkering 780kronor/ månad.
Till parkeringarna är det separat kö.
Husen är anslutna till stängd fiber för IP-telefoni, internet och TV via ComHem. Hastigheten är upp till 100/100 och ingår i månadsavgiften. Leverantör Tele 2.
På de gemensamma gårdarna är det enkelt att trivas och umgås. Här finns plats för både grillkvällar, barnkalas och odling av egna grönsaker. Gårdarna passar sömlöst in i de lugna kvarteren runtomkring där det även finns lekplats och större grönytor. Husen har egna parkeringsplatser och i det gemensamma cykelhuset finns även plats för den som vill skruva lite extra på cykeln. I bostadsrättsföreningen finns också en gemensamhetslokal och övernattningslägenhet.
I hus 5 finns en gästlägenhet och en gemensamhetslokal med WC/dusch och pentry. I centrum av de fem husen finns det ett större cykelförråd med verkstad.
Markbehållare för kompost- och restavfall samt miljörum i centrum av de fem husen.
Förrådsutrymme finns i källaren
Säljaren kommer att ta med sig den kompletterade garderobsinredingen, taklamporna i köket samt inredningen i förrådet.
BO I BARNVÄNLIGA UTBY
Öster om Göteborg ligger den natursköna stadsdelen Utby. Här bor du i en egnahemstadsdel i ett lugnt, trivsamt och barnvänligt område. Det är ett lugnt och bekvämt boende men ändå nära till storstadens puls.
VILLAOMRÅDEN OCH VACKER NATUR
Utby har en härlig och gammaldags atmosfär med blandad äldre och modern bebyggelse samt en vacker natur. Området växte fram under förra århundradet och består nästan uteslutande av mindre radhus och villor. I Utbynäs ligger exklusiva och tidstypiska nationalromantiska trävillor i en vacker miljö längs med Säveån.
I närliggande Utbybergen och Fjällbo Ängar finner du vackra naturomgivningar att ströva i. Utbybergens branta klippväggar lockar varje år många klättrare. Uppifrån bergsområdet har man en fantastisk utsikt över Göteborg och går man den fina naturstigen som är cirka 5 km når man ett stort bronsåldersröse och den fina sjön Bergsjön. Bergsjön är Göteborgs högst belägna badsjö och ligger 100 meter över havet. Vid kanten av Utbybergen ligger Fjällbo Ängar som är inramad av en vacker ekskog. En populär plats att mötas vid och grilla, spela brännboll, fotboll och andra utomhusaktiviteter. Det finns också fina promenadstråk längs med laxrika Säveån.
AKTIVITETER FÖR STORA OCH SMÅ
Du har goda kommunikationer både till centrala Göteborg och Partille. I anslutning till Allum köpcentrum i Partille hittar du all shopping och service du kan tänkas behöva.
Här möts människor i alla åldrar och det är en ökad inflyttning av yngre familjer som uppskattar den barnvänliga omgivningen. Den direkta närheten till barnomsorg, kombinerat med många roliga aktiviteter för barn och ungdomar i alla åldrar gör Utby populärt. Det finns gott om förskolor och grundskolor i området. Dessutom finns det friskolor, kulturskola med musik och dramaundervisning och flera enskilda förskolor.
Köpa, sälja eller värdera bostad i Utby? Kontakta våra mäklare i Partille! Passa också på att anmäla dig till vår kostnadsfria söktjänst Boagenten som hjälper dig att hitta ditt drömboende.
Kontakta mäklaren om du behöver hjälp att ta fram en boendekalkyl.
När du köper din bostad genom Bjurfors kan du ansöka om bolån till en förmånlig ränta hos våra banksamarbetspartners Söderberg & Partners och SEB.
Ansvarig mäklare