-
Köpa
Köpa -
Sälja
Sälja - Hitta bostad
- Skapa bevakning
- Hitta mäklare
Välplanerad villa med mycket bra läge!
Mölnlycke-Djupedalsäng, Härryda
*Areauppgifter enligt taxeringsinformationen
Bokad visning. Du kan även ringa Bjurfors Bokningscenter 031-761 79 50. Välkommen!
Väldisponerad villa i ett plan med suterrängvåning och familjevänlig planlösning, altan med solläge och insynsskyddad baksida.
Med ett högt läge och uteplatser med sol från förmiddag till kväll erbjuds nu en villa i ett plan med suterrängvåning och ett utmärkt, ostört läge. Det är nära till Mölnlycke centrum och till förskola, skola upp till 9:e klass och fotbollsplaner som nås utan att behöva passera någon bilväg. Inom kort promenadavstånd når du vackra Finnsjöns strövområde med flera fina promenadstråk och elljusspår. I närområdet finns gång- och cykelbanor som gör det lätt att ta sig till centrum, skolor, ICA-butik, fotbollsplaner, boulebanor samt skateboard-ramp.
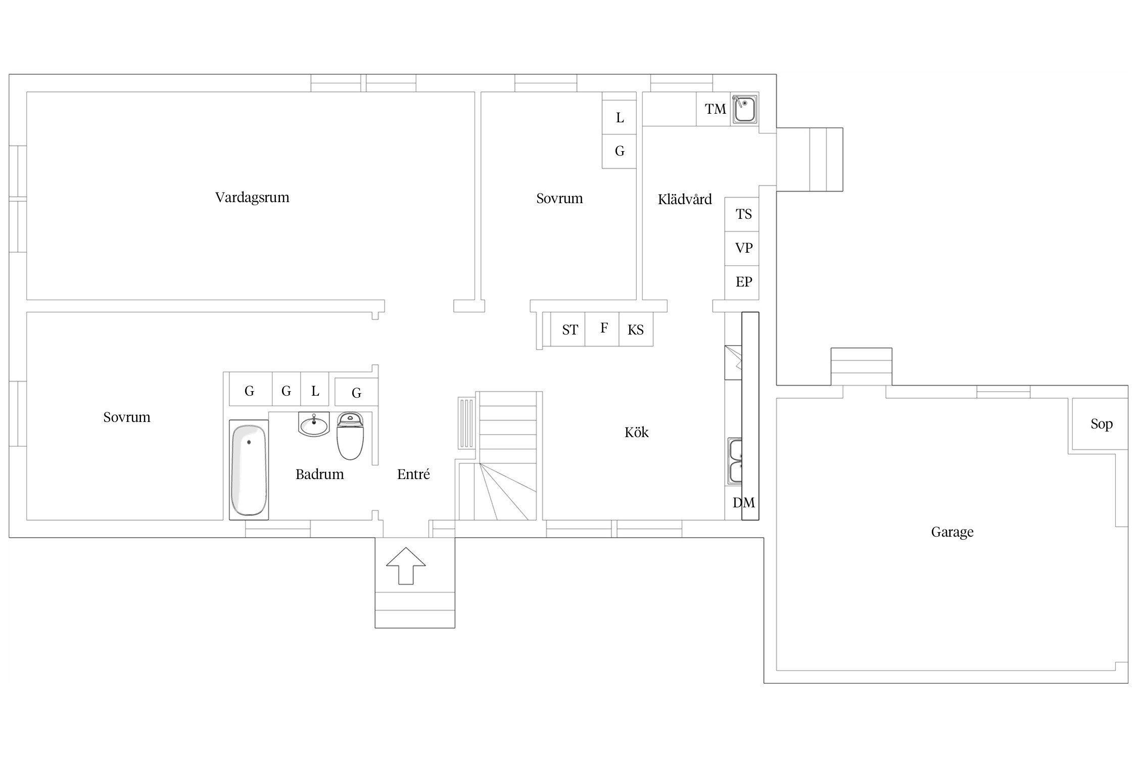
Den välplanerade villan erbjuder idag 4 sovrum. På varje våningsplan finns 2 sovrum, sällskapsrum och badrum.
I entrévåningen finns ett rymligt kök med plats för många att umgås i. Från vardagsrummet finns fönster ut mot den insynsskyddade altanen och trädgården.
En trappa ner möts vi av ett trivsamt sällskapsrum med med dörr ut till altanen och trädgården. Halva suterrängvåningen består av ett outgrävt utrymme. Vidbyggt till huset finns ett rymligt garage.
Det är ett dödsbo som säljer fastigheten. Besiktning kommer genomföras 8/4.
Varmt välkomna på visning!
Entréhall
Stig in i en välkomnande hall med parkettgolv och gott om plats för ytterkläder och skor.
Vardagsrum
Det vackra parkettgolvet följer med in i vardagsrummet. Med villans höga läge får man en fin vy över grannskapet.
Kök
Eköket från Marbodal renoverades 2017 och vitvarorna är löpande utbytta. Köket är utrustat med skåp bakom vita köksluckor och pryds av en mörk bänkskiva och vitt kakel som stänkskydd. Här finns diskmaskin, spis, fläkt samt dubbel kyl och frys.
Tvättstuga
Innanför köket finns tvättstuga med egen ingång.
Sovrum
På detta plan finns det två sovrum. Det största sovrummet har plats för en dubbelsäng och är ca 12 kvm och sovrum nr 2 ca 10 kvm.
Badrum
Badrummet är från byggåret och är utrustat med badkar, wc, handfat med badrumsskåp och spegel.
Suterrängplan
Sällskapsrum
Stort sällskapsrum. Perfekt för barn/ungdomar att hänga i.
Sovrum
2 bra sovrum. Båda med dörr ut till altan och trädgård.
Badrum
Badrum från byggåret med dusch, wc och handfat.
Denna välplanerade och välskötta bostad är perfekt för den aktiva familjen som söker både bekvämlighet och trivsel.



Entrévåning
Nedervåning
Djupedalsäng 1:244
*Areauppgifter enligt taxeringsinformationen
Larm finns
2017 - Ny frånluftsvärmepump (servad 2025)
2017 - Marbodalköket renoverades. Omlackerade luckor. Nya handtag, nytt golv och målat kakel. Ny bänkskiva 2026. Vitvaror bytta löpande.
2019 (Ca) - Entrégången grusad. Ny trappa och plantering i slänt.
2019 - Fasaden byttes. Fönster målade utvändigt
2025 - Nytt yttertak
Kommunalt vatten & avlopp.
Vattenskyddsområde (2022-12-20) Tomtindelning (1981-10-27) Stadsplan (1979-12-20)
Last: Avtalsservitut Ledning, 14-IM2-79/3339.1
Avtalsservitut Ledning
Flexibelt
Det finns 3 st pantbrev uttagna om sammanlagt 693 400 kr
Mölnlycke är centralort i Härryda kommun. Många familjer väljer att bo i tätortens vackra bostadsområden, där naturen finns precis utanför dörren och storstaden bara en bit bort. De ypperliga kommunikationerna i kommunen gör det enkelt att ta sig till Göteborg eller vidare ut i Sverige och världen - Landvetters flygplats ligger endast 1,5 mil bort.
Härryda kommun består till hälften av skog och vildmark som kan erbjuda dig många vandringsleder och motionsspår i naturskön miljö. Det finns tre sporthallar i Mölnlycke och även tennishall. Flera olika föreningar erbjuder sportaktiviteter i form av bl.a. gymnastik, innebandy och ridning.
Rådasjön är en av många sjöar i Härryda kommun, och här finner man Säteribadet som är en mycket populär badplats. I Mölnlycke ligger också Wendelsbergsparken. Här finns nästan alla svenska löv- och barrträd representerade. Dessutom är parken magnifik med alla sina dammanläggningar.
Förskoleverksamheten i Härryda kommun bedrivs i form av förskola, familjedaghem och öppen förskola. Det finns totalt 19 grundskolar och man arbetar utifrån ett 0-16 årsperspektiv. Det innebär bl.a. att förskola och grundskola arbetar tätt ihop med gemensamma mål. Hulebäcksgymnasiet i Mölnlycke har elever från hela kommunen i sitt upptagningsområde.
Samhället Mölnlycke växte fram som bostäder för arbetare vid Mölnlycke fabriker. Fabrikerna grundades 1849 och här tillverkades textilier och diverse textilprodukter ända fram till slutet av 1990-talet. En stor del av produktionen gick på export och efterfrågan krävde en ny fabrik – Hulebäcksfabriken, som byggdes år 1875. 1995 invigdes Hulebäcksgymnasiet, som är byggt kring den gamla fabriksbyggnaden. Idag har området runt Mölnlycke fabriker renoverats och hyser restauranger och företag.
Råda Säteri i Mölnlycke är känt redan från 1300-talet. De byggnader vi ser idag är från 1700-talet och mycket välbevarade.
Det går snabbt att ta sig med bil eller kollektivtrafik till alla orter i kommunen. Bussar går till och från Göteborg och från Mölnlycke, Hindås och Rävlanda kan man åka tåg. Med bil når man Göteborgs centrum på ca 15 minuter och med buss tar det ca 20 minuter. Förutom buss- och tågförbindelser till Göteborg och ut i Sverige ligger även Landvetters flygplats mitt i kommunen med flyg vidare ut i Europa och världen.
Köpa, sälja eller värdera bostad i Mölnlycke? Kontakta våra mäklare i Härryda! Passa också på att anmäla dig till vår kostnadsfria söktjänst Boagenten som hjälper dig att hitta ditt drömboende.
Kontakta mäklaren om du behöver hjälp att ta fram en boendekalkyl.
När du köper din bostad genom Bjurfors kan du ansöka om bolån till en förmånlig ränta hos våra banksamarbetspartners Söderberg & Partners och SEB.
Bokad visning. Du kan även ringa Bjurfors Bokningscenter 031-761 79 50. Välkommen!