-
Köpa
Köpa -
Sälja
Sälja - Hitta bostad
- Skapa bevakning
- Hitta mäklare
Kedjehus med fin utvecklingspotential & härlig trädgård intill skogsparti
Mölnlycke - Pixbo, Härryda
*Areauppgifter enligt taxeringsinformationen
Bokad visning. Du kan även ringa Bjurfors Bokningscenter 031-761 79 50. Välkommen!
1,5-plans kedjehus i attraktiva Pixbo med potential att utvecklas till ett perfekt boende för barnfamiljen. Lättskött insynsskyddad trädgård.
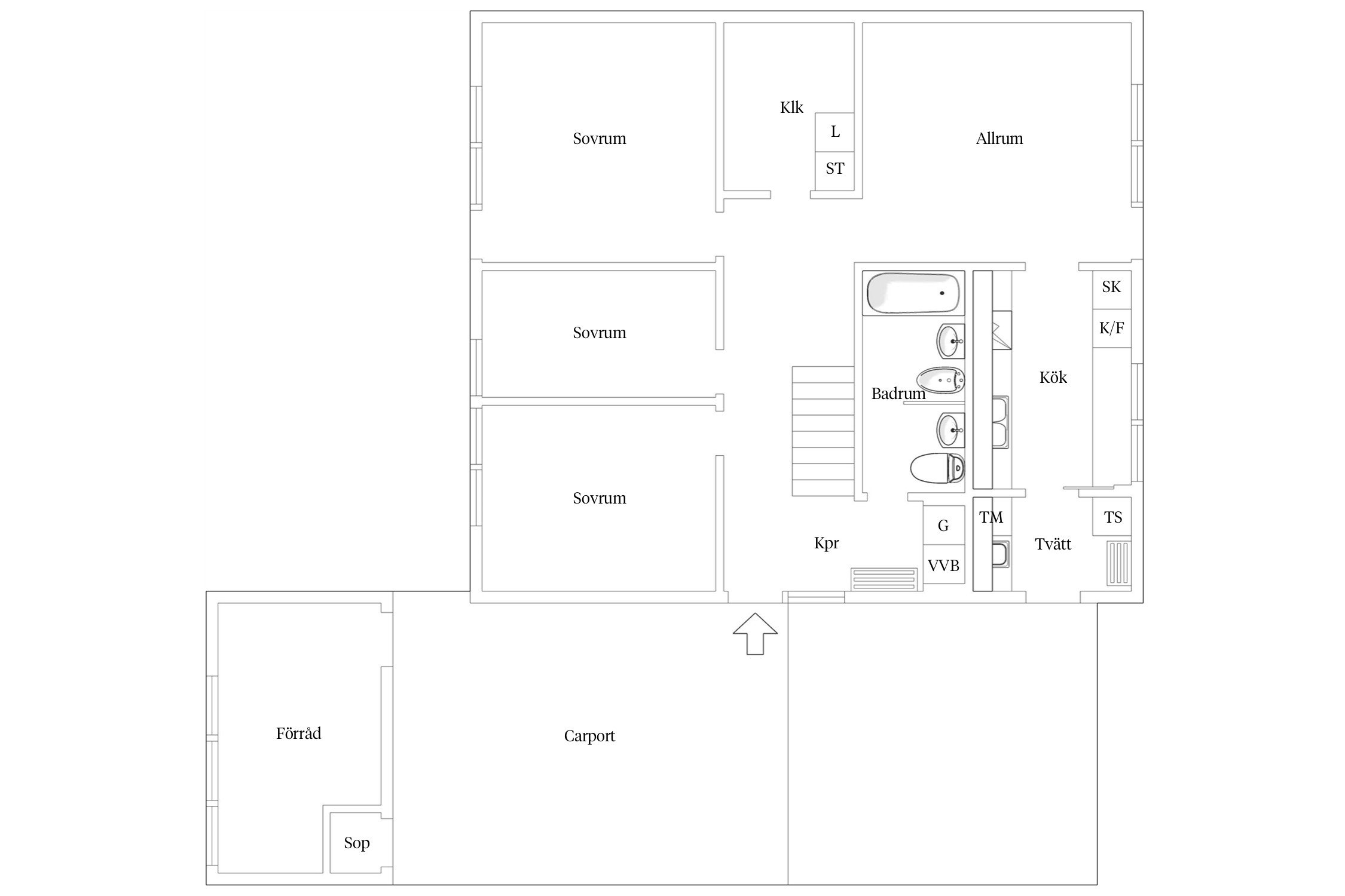
Välkommen till ett 1,5-plans kedjehus på lugn och barnvänlig gata i det omtyckta Pixbo-området. Huset har genomgående äldre ytskikt men är välskött och trevligt planerat med möjlighet till många sovrum. Ett bra tillfälle för den stora barnfamiljen med renoveringsdrömmar. Här får man möjligheten att sätta sin egen prägel på interiören och utforma planlösningen utefter familjens behov. Utvändigt är huset i bra skick.
Entréplanet fördelas över tre sovrum i god storlek, entréhall, kök och allrum. Därutöver finns praktiska utrymmen i form av badrum, klädkammare och tvättstuga i anslutning till groventrén. Hjärtat i huset är det ljusa trevliga allrummet med stora fönsterpartier och glasad dörr mot husets fina & privata baksida.
Från den generösa entréhallen nås det övre planet. Här uppe finns idag två stora rum och ett badrum. Med relativt enkla möjligheter skulle här kunna skapas fler sovrum om det behovet finns.
Utomhusmiljön är ett av husets stora plusvärden. Det lugna läget mot det fina lövskogspartiet intill bjuder in till utevistelse och avkoppling. Här finns de bästa förutsättningarna för härliga dagar med grillning, utemiddagar och lek i skogen. Här finns en altan och ett inglasat uterum som blir ett extra vardagsrum under stora delar av året.
Pixbo är känt för sin natursköna omgivning och rika utbud av fritidsaktiviteter. Inom bekvämt gångavstånd hittar du lekplats, fotbollsplaner, tennishall, padelbanor och möjligheter till fiske. För den badsugne erbjuder Södra Långvattnet kristallklart vatten för härliga dopp under sommarmånaderna eller den mer barnvänliga Vällsjön. Området är mycket barnvänligt med närhet till skolor och barnomsorg, vilket gör vardagen smidig för barnfamiljer.
För pendlaren är läget idealiskt. Med bil tar du dig till både Mölndal och Mölnlycke centrum på cirka 5 - 10 minuter, där du finner ett brett utbud av butiker, restauranger och serviceinrättningar. Kollektivtrafiken är väl utbyggd, vilket gör det enkelt att ta sig till Göteborg, Mölnlycke och Mölndal. Området har en egen hållplats som bland annat trafikeras av busslinje X90.
Till fastigheten hör en carport med laddbox och ett rymligt förråd, vilket ger gott om förvaringsutrymme och skyddad parkering för bilen. Huset är väl underhållet och inflyttningsklart, redo att bli ditt nya drömhem.
Säljaren är ett dödsbo och kommer friskrivas från ansvar för dolda fel i fastigheten.
Välkommen på visning!



Pixbo 1:415
*Areauppgifter enligt taxeringsinformationen
1990 – Utbyggnad av tak
1990 – 18 fönster + 2 dörrar
1991 – 1 fönster
1991 – Plåtarbete & bläck
1994 – Renovering badrum
1997 – Parkett övre plan
2001 – Parkettgolv entré
2003 – Marbodalkök
2005 – Takbyte. Benders.
2006 – Markiser
2008 – Nytt staket & viss panel
2011 – Nya ytterdörrar
2011 – Snörasskydd
2013 – Krypgrundsavfuktare
2014 – Ny asfalt i carport
2016 – Trappa grovkök
2016 – Ommålning framsida samt panelbyte
2020 - Algbehandling
2020 – Offert på byte av förrådstak
2022 – Spolat avloppsrör
2023 – Ommålning baksida
2025 – Rengöring och byte av panel
Carport och förråd
Kommunalt vatten & avlopp.
Vattenskyddsområde (2022-12-20) Stadsplan (1973-08-23)
Last: Avtalsservitut Vattenledning mm, 14-IM2-73/3084.1
Last: Officialservitut Tillträde, 14-RÅD-1761A.63
Förmån: Officialservitut Tillträde, 14-RÅD-1761A.62
Förmån: Officialservitut Tillträde, 14-RÅD-1761A.64
Tv och bredband via fiber
Avtalsservitut Vattenledning mm
Soporna töms varannan vecka.
Elkostnaden är beräknad till 1,5 kr/kWh
Det finns 2 st pantbrev uttagna om sammanlagt 150 000 kr
Mölnlycke är centralort i Härryda kommun. Många familjer väljer att bo i tätortens vackra bostadsområden, där naturen finns precis utanför dörren och storstaden bara en bit bort. De ypperliga kommunikationerna i kommunen gör det enkelt att ta sig till Göteborg eller vidare ut i Sverige och världen - Landvetters flygplats ligger endast 1,5 mil bort.
Härryda kommun består till hälften av skog och vildmark som kan erbjuda dig många vandringsleder och motionsspår i naturskön miljö. Det finns tre sporthallar i Mölnlycke och även tennishall. Flera olika föreningar erbjuder sportaktiviteter i form av bl.a. gymnastik, innebandy och ridning.
Rådasjön är en av många sjöar i Härryda kommun, och här finner man Säteribadet som är en mycket populär badplats. I Mölnlycke ligger också Wendelsbergsparken. Här finns nästan alla svenska löv- och barrträd representerade. Dessutom är parken magnifik med alla sina dammanläggningar.
Förskoleverksamheten i Härryda kommun bedrivs i form av förskola, familjedaghem och öppen förskola. Det finns totalt 19 grundskolar och man arbetar utifrån ett 0-16 årsperspektiv. Det innebär bl.a. att förskola och grundskola arbetar tätt ihop med gemensamma mål. Hulebäcksgymnasiet i Mölnlycke har elever från hela kommunen i sitt upptagningsområde.
Samhället Mölnlycke växte fram som bostäder för arbetare vid Mölnlycke fabriker. Fabrikerna grundades 1849 och här tillverkades textilier och diverse textilprodukter ända fram till slutet av 1990-talet. En stor del av produktionen gick på export och efterfrågan krävde en ny fabrik – Hulebäcksfabriken, som byggdes år 1875. 1995 invigdes Hulebäcksgymnasiet, som är byggt kring den gamla fabriksbyggnaden. Idag har området runt Mölnlycke fabriker renoverats och hyser restauranger och företag.
I området pågår en förvandling med nya bostäder och en ny sporthall.
Råda Säteri i Mölnlycke är känt redan från 1300-talet. De byggnader vi ser idag är från 1700-talet och mycket välbevarade.
Det går snabbt att ta sig med bil eller kollektivtrafik till alla orter i kommunen. Bussar går till och från Göteborg och från Mölnlycke, Hindås och Rävlanda kan man åka tåg. Med bil når man Göteborgs centrum på ca 15 minuter och med buss tar det ca 20 minuter. Förutom buss- och tågförbindelser till Göteborg och ut i Sverige ligger även Landvetters flygplats mitt i kommunen med flyg vidare ut i Europa och världen.
Köpa, sälja eller värdera bostad i Mölnlycke - Pixbo? Kontakta våra mäklare i Härryda! Passa också på att anmäla dig till vår kostnadsfria söktjänst Boagenten som hjälper dig att hitta ditt drömboende.
Kontakta mäklaren om du behöver hjälp att ta fram en boendekalkyl.
När du köper din bostad genom Bjurfors kan du ansöka om bolån till en förmånlig ränta hos vår samarbetspartner SEB.
Bokad visning. Du kan även ringa Bjurfors Bokningscenter 031-761 79 50. Välkommen!