-
Köpa
Köpa -
Sälja
Sälja - Hitta bostad
- Skapa bevakning
- Hitta mäklare
Rymlig 30-tals villa med högt läge och sjöglimt!
Mölnlycke, Härryda
*Areauppgifter enligt taxeringsinformationen
Bokad visning. Du kan även ringa Bjurfors Bokningscenter 031-761 79 50. Välkommen!
Med ett lugnt och högt läge på Lyckevägen finner ni denna trevliga och generösa villa. Med upp till sex sovrum finns här plats för den större familjen.
Fastigheten är nyligen avstyckad och en byggklar tomt om 884 m² finns till salu.
Entréplanet upplevs rymligt och inbjudande. Köket, som ligger till vänster om hallen, har den äldre och charmiga touchen. Detta är ett ljust och trivsamt kök med matplats och dörr ut till en terrass med söder och västerläge.
Från köket nås generösa sällskapsytor i form av matsal och vardagsrum. Centralt placerad mellan rummen finns en murad och putsad öppen spis. Utanför vardagsrummet finns en terrass och bubbelbadkar.
Vid vardagsrummets bortre del har man byggt till en entré och hall som nyttjas som läshörna. I detta våningsplan finns också ett rymligt sovrum och en gästtoalett.
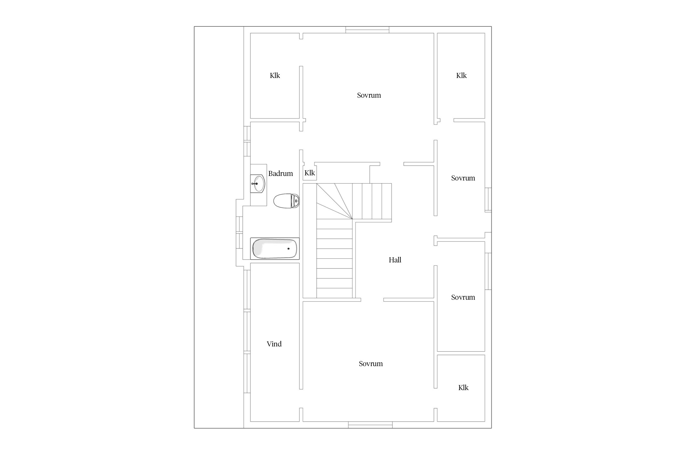
Den vita trappan leder oss upp till ovanvåningen där vi möts av en sällskapsyta, 2 mindre och 2 större sovrum, där det ena har utgång till balkong med utsikt. Flera klädkammare och förvaring i sidovind. Här finns också ett helkaklat badrum med badkar.
Det finns även en källarvåning som har använts till uthyrning med separat ingång. Här finns pentry, sovrum, sällskapsrum med öppen spis (används inte idag), helkaklat badrum med dusch, helkaklad tvättstuga med dusch och ett stort förråd. Här finns också en dörr ut till trädgården.
Den inbjudande och uppvuxna trädgården har plan och lekvänlig gräsmatta och frukträd.
Villans centrala läge gör det enkelt att promenera ner till Mölnlycke centrum eller badplatsen i Rådasjön. Alldeles i närheten finns busshållplats som tar dig till Mölndals bro och Mölnlycke centrum för vidare transport in till Göteborg.
Med sitt lugna läge, närhet till naturen och alla praktiska bekvämligheter är detta en villa som passar den aktiva och sociala familjen. Här får ni både ett fantastiskt boende och en livsstil med enkel tillgång till promenader, ridning och fiske. Ett hem att trivas i!



Entrévåning
Ovanvåning
Källarvåning
Kullbäckstorp 2:19
*Areauppgifter enligt taxeringsinformationen
*Huset byggdes till 1976
Carport och takkupa har tillkommit
Huset är omdränerat och avloppsrör är utbytta
1992 - Yttertaket renoverades
1998 - Vatten från egen brunn till kommunalt
1998 - Takreparation (pannor -92)
1999 - Badrum uppe. Balkongdörr i köket. Altan framsida.
1999 - Nytt avlopp och dränering tre sidor av huset. En del 2016. (ej entresidan)
1999 - All el byttes i omgångar
2000 - Balkongräcke
2000 - Carport och gäststuga
2000 - Plank mot vägen till Mölndal
2000 - Kök renoverades
2003 - Bergvärme. Inredde rum till gäster i källarplan
2004 - Toalett renoverades på entréplan
2006 - Byte av avloppstammar utom i trapphuset, grävde upp källaren för golvvärme
2008 - Byte av avloppsstam trapphus. Panel i trapphus. Inredde källaren till uthyrningsdel
2011 - Tvättstuga med dusch och toalett renoverades
2013 - Bytte fönster ovanvåning
2014 - Bytte fönster på andra våningsplanet
2016 - Dränering på nytt på baksidan. Ny altan
2016 - Byggde uppfart och trappa på framsidan
2017 - Plåtarbete, rännor och taksteg. Målade gavlarna och carporten. Installerade inbrottslarm
2022 - Allrum konverterades till två mindre sovrum på övervåningen. Laddstolpe för elbil installerades
2023 - Utomhus spa-bad och utedusch
2024 - Ny bergvärmepump
2024 (oktober) - Bergvärmepanna
Carport och förråd
Kommunalt vatten & avlopp.
Vattenskyddsområde (2022-12-20) Byggnadsplan (1947-12-31)
Gemensamhetsanläggning: Härryda mölnlycke ga:8 ändamål: Vägar
Tv och bredband via fiber
Elförbrukningen är ett normalår och kostnaden är beräknad på 1,50 kr/kWh
Spa-badet är uppvärmt året om
Laddbox finns
Det finns 14 st pantbrev uttagna om sammanlagt 2 000 000 kr
BO I EXPANSIVA MÖLNLYCKE
Mölnlycke ligger i expansiva Härryda kommun. Många familjer väljer att bo i tätortens vackra bostadsområden, där naturen finns precis utanför dörren och storstaden bara en bit bort. De ypperliga kommunikationerna i kommunen gör det enkelt att ta sig till Göteborg eller vidare ut i Sverige och världen – Landvetter Airport ligger bara ett par kilometer bort.
MED MÖJLIGHET TILL MÅNGA AKTIVITETER
Närheten till både storstaden och naturen har gjort Mölnlycke, liksom övriga tätorter i Härryda kommun, attraktivt att bo i. Många företag har valt att rota sig i kommunen på grund av det strategiska läget strax utanför Göteborg och de goda kommunikationerna vilket har ökat inflyttningen. Förutom smidiga buss- och tågförbindelser till Göteborg och ut i Sverige ligger Landvetter Airport nära som tar dig vidare ut i Europa och världen.
Var du än väljer att bosätta dig i Härryda kommun kommer skogen vara en av dina grannar. Här finns många vandringsleder och motionsspår i natursköna omgivningar. Vid både Finnsjön och Wendelsparken finns elljusspår och området kring Rådasjön är naturreservat. Mölnlyckeborna gillar ett aktiv liv. Är det inte i någon av skogarna så utövar man sin sport i någon av idrottshallarna. Populära sporter är fotboll, innebandy, gymnastik och ridning. Flera stora gymkedjor har etablerat sig här och för dig som gillar golf ligger Chalmers Golfklubb strax öster om Mölnlycke och erbjuder 18 vackra hål i parkmiljö.
HITTA DITT SMULTRONSTÄLLE
Härryda kommun har hundratals sjöar och du kommer med all säkerhet hitta ditt smultronställe för bad och fiske. Här finns Rådasjön och Säteribadet som är populära badplatser. I området ligger också den vackra anlagda Wendelsbergsparken. Här finns nästan alla svenska löv- och barrträd representerade och den är magnifik med alla sina dammanläggningar. Ett besök på Råda Säteri är den perfekta utflykten. Dess historia började på 1300-talet och de byggnader som vi ser idag är från 1700-talet och mycket välbevarade. Här finns både restaurang och café som omgärdas av vacker natur.
Mölnlycke växte fram som bostäder för arbetare vid Mölnlycke fabriker. Fabrikerna grundades i mitten av 1800-talet och här tillverkades textilier och textilprodukter under 150 år. En stor del av produktionen gick på export och efterfrågan krävde en ny fabrik – Hulebäcksfabriken. Idag har området runt Mölnlycke fabriker renoverats. Förutom bostäder finner du numera restauranger och företag här. I slutet av förra sekelskiftet invigdes Hulebäcksgymnasiet som är byggt kring den gamla fabriksbyggnaden. Förutom gymnasieskolan finns i Mölnlycke många förskolor och flera grundskolor att välja på. Grundskolan arbetar tätt ihop med förskolan mot gemensamma mål.
Köpa, sälja eller värdera bostad i Mölnlycke? Kontakta våra mäklare i Härryda! Passa också på att anmäla dig till vår kostnadsfria söktjänst Boagenten som hjälper dig att hitta ditt drömboende.
Kontakta mäklaren om du behöver hjälp att ta fram en boendekalkyl.
När du köper din bostad genom Bjurfors kan du ansöka om bolån till en förmånlig ränta hos vår samarbetspartner SEB.
Bokad visning. Du kan även ringa Bjurfors Bokningscenter 031-761 79 50. Välkommen!