-
Köpa
Köpa -
Sälja
Sälja - Hitta bostad
- Skapa bevakning
- Hitta mäklare
Charmigt hus i tre plan med naturnära läge och härlig veranda
Kärna, Kungälv
*Areauppgifter enligt taxeringsinformationen
Bokad visning.
På Förhand ligger bostäder som av olika anledningar inte är ute till försäljning just nu men som kan komma att säljas om förutsättningarna är rätt.
Välkommen till detta trivsamma och välplanerade hus i tre plan, beläget längst in på en lugn väg med skogen som närmsta granne.
Här bor du högt och ostört – perfekt för dig som söker både närhet till naturen och ett mysigt hem med många möjligheter.
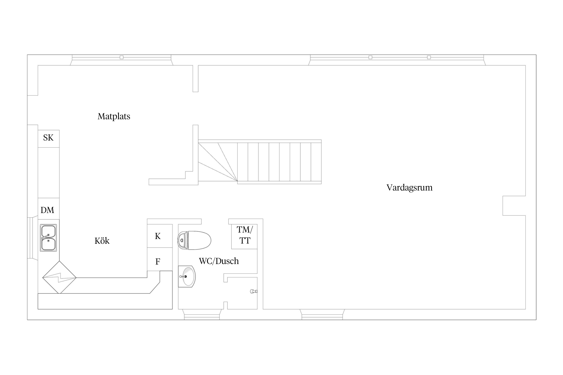
Entréplan
På entréplan möts du av två rymliga sovrum med gott om plats för både förvaring och möblering.
Mellanplan
En våning upp finner du husets sociala hjärta: ett stort och ljust vardagsrum med kamin som skapar en varm och inbjudande atmosfär året runt.
Intill ligger köket, praktiskt utformat med god arbetsyta och direkt utgång till en underbar veranda – idealisk för sommarkvällar, middagar med vänner eller bara en stunds avkoppling.
På samma våningsplan finns även ett fräscht badrum.
Övre plan
Längst upp i huset finns ytterligare två sovrum, ett allrum med bra ljusinsläpp samt ett badrum utrustat med tvättmaskin.
Perfekt som privat barn eller gästavdelning.
Läge
Huset ligger högt och insynsskyddat längst in på gatan, med skogen direkt bakom – en idyll för dig som uppskattar lugn, friluftsliv och en naturnära vardag.



Dotorp 1:16
*Areauppgifter enligt taxeringsinformationen
*Ombyggnad/Tillbyggnad: 1982 mitt av -90
2023-2025:
Målat om större delen av huset
2022:
Lagt nya golv+målat väggar och nya lister i båda sovrum samt hall på plan 3.
Målat väggar i kök
2019-2022:
Omfattande dränering runt hus samt runt hela tomten
2019:
Nya tapet och målat i trappuppgångar
2015:
Renoverat badrum plan 2
2010-2012:
Demontering plintar, uppgjutning mur
Första dränering
Kommunalt VA via Dusö samfällighet
Gemensamhetsanläggning: Kungälv dotorp ga:1 ändamål: Avloppsanläggning
Gemensamhetsanläggning: Kungälv dotorp ga:2 ändamål: Vattenförsörjning
Gemensamhetsanläggning: Kungälv dotorp ga:3 ändamål: Avloppsanläggning
Förmån: Avtalsservitut Avloppsledning, 14-IM3-82/11601.1
Bredband finns, fiber finns i området.
Det finns 15 st pantbrev uttagna om sammanlagt 1 783 000 kr
SMÅSTADSLIV OCH UNDERBAR NATUR
Kungälv är en blomstrande stad där dofter av blommor leder dig genom kullerstensgatorna. Här ligger också vackra Marstrand som bjuder på lugn på vintern och fylls av vimmel och event på sommaren. Välkommen till Kungälv, småstaden mellan hav och storstad.
MED NATUREN IN PÅ KNUTEN
Här bor du med småstadskänsla men med storstaden Göteborg bara två mil bort. Kungälv har det mesta, allt från charmiga gamla trähus till helt nybyggda områden. Staden har en dramatisk historia och dess vingslag känns än idag. Den har stått värd för ett nordiskt fredsavtal, bränts ner fyra gånger, länge tillhört Norge men sen mitten av 1600-talet är Kungälv svenskt.
Här bor du i den lilla staden med det stora utbudet. Du hittar också sköna naturupplevelser och havet ligger bara en liten bit bort. Den vackra landsbygden ger dig möjlighet till mysigt lantligt boende.
Ett populärt natur- och vildmarksområde är Svartedalens inre delar, beläget norr om Kungälv. Det är känt för storslagen natur, mäktiga skogar, trolska raviner, höga utsiktsberg, en rik flora och fauna samt många vackra sjöar. Bohusleden är en vandringsled som startar i Lindome strax söder om Göteborg och slingrar sig 37 mil till målet i Strömstad. Etapper genom Kungälv är Fontin-Grandalen och Grandalen-Bottenstugan. Marstrand är en otroligt vacker ö som är fylld av liv hela sommaren, den är något lugnare vintertid men är då en oas för själen. Ön är känd över hela världen för alla seglingsevent och sin skönhet.
Förutom fina vandringsleder och fiskesjöar erbjuder Kungälv många föreningsidrotter. För den golfintresserade har Kungälv hela sju golfbanor att välja mellan. Vid Fontins motionscentral finns naturlekplats, utegym, motionsspår, stigar och leder. Köpcenter Kongahälla Center erbjuder butiker, caféer, restauranger och hälsa i skön atmosfär.
NÄRHET TILL GÖTEBORG
I Kungälv finns ett stort utbud av förskolor och skolor. Det finns även flera KY-utbildningar med varierande inriktning. Byggnaden Mimers Hus är ett kulturhus och ett kunskapscentrum med gymnasieelever och personer som går vuxenutbildningar.
Närheten till Göteborg har gjort att kommunikationerna till och från Kungälv är mycket väl utbyggda. Det går expressbussar mellan Kungälv och Göteborg. Pendeltåg mellan Ytterby och Göteborg.
KONTAKT
Köpa, sälja eller värdera bostad i Kungälvs kommun? Kontakta våra mäklare i Kungälv! Passa också på att anmäla dig till vår kostnadsfria söktjänst Boagenten som hjälper dig att hitta ditt drömboende.
Kontakta mäklaren om du behöver hjälp att ta fram en boendekalkyl.
När du köper din bostad genom Bjurfors kan du ansöka om bolån till en förmånlig ränta hos vår samarbetspartner SEB.
Bokad visning.
Ansvarig mäklare
Extra kontaktperson