-
Köpa
Köpa -
Sälja
Sälja - Hitta bostad
- Skapa bevakning
- Hitta mäklare
Välskött villa med en fantastisk utsikt över vackra Aspen
Lerum-Rydsberg, Lerum
*Areauppgifter enligt taxeringsinformationen
Bokad visning - varmt välkommen med din anmälan!
På Förhand ligger bostäder som av olika anledningar inte är ute till försäljning just nu men som kan komma att säljas om förutsättningarna är rätt.
Välkommen till Lunnagatan 13 där denna hemtrevliga villa om totalt 201 kvm ger gott om plats för hela familjen!
Här erbjuds ett trivsamt och välplanerat boende om totalt hela 201 kvadratmeter fördelat på 6 rum, varav 4 sovrum – perfekt för den växande familjen eller för dig som önskar extra utrymme för hemmakontor eller gäster. Huset, som uppfördes 1946, bjuder på en härlig kombination av karaktär och funktionella ytor, uppdelat i tre plan.
En fin grusgång leder dig fram till husets farstukvist och väl innanför ytterdörren möts du av ljusa och inbjudande ytor där varje kvadratmeter är smart utnyttjad. De generösa sällskapsytorna bjuder in till både vardagsliv och sociala tillställningar, medan de stora fönsterpartierna släpper in ett härligt ljusflöde som skapar en varm och välkomnande atmosfär.
De fyra sovrummen ger flexibilitet och möjligheter för både familjeliv och individuella behov. Här finns gott om plats att skapa personliga rum, barnrum eller arbetsyta – allt efter livets olika skeden.
Källaren erbjuder fantastiska ytor i form av allrum, en stor tvättstuga, ett helkaklat badrum och bra förrådsutrymmen. Ett av förråden används idag som kontor och i det andra är det förberett för ett kök vilket möjliggör för framtida uthyrningsmöjlighet av källaren.
Den härliga utsikten gör dig påmind såväl i trädgården som på insidan och från altanen i syd/väst kommer du kunna njuta av magiska solnedgångar över den glittrande sjön.
Gott om plats för familjens fordon i garage med intilliggande carport och på den asfalterade uppfarten. Elbilsladdare finns installerad.
Bergvärmen bidrar till låga driftkostnader trots husets storlek - något som gör gott i kalkylen.
Den uppvuxna miljön kring huset skapar en fin atmosfär och nivåskillnaderna i trädgården delar upp denna annars stora gräsytan. Här finns plan yta för lek och umgänge i kombination med växtlighet och trevliga uteplatser.
Här bor du i ett eftertraktat och barnvänligt villakvarter med närhet till natur, skolor och service, samtidigt som goda kommunikationer tar dig smidigt vidare mot Göteborg.
Detta är ett hem att trivas i - varmt välkommen!
Du välkomnas in i denna hemtrevliga bostad via den tillbyggda farstukvisten. I hallen finns plats för avhängning av ytterkläder i garderober bakom skjutdörrar i spegelglas.
Ytterligare några kliv in och du möts av husets hjärta, kök, matplats och vardagsrum. Det moderna köket är både praktiskt och snyggt. Här erbjuds gott om såväl bänkyta som förvaring. Bänkskivan i trä bryter av fint mot den annars ljusa inredningen. Maskinparken i köket består av kyl i fullhöjd, inbyggnadsugn samt mikro, diskmaskin samt induktionshäll och fläktkåpa. Samtliga vitvaror i rostfritt. Fönster åt flera väderstreck bidrar till ett härligt ljusinsläpp.
Köket är öppet mot matplatsen och härifrån fastnar blicken på den hänförande utsikten. Här erbjuds en fin vy över den glittrande sjön. Det höga läget gör att insidan är helt insynsskyddad. Från matplatsen nås också den stora altanen i två nivåer. Här njuter du av solen från mitt på dagen till sena kvällen.
Det intilliggande vardagsrummet är av väl tilltagen storlek. Här blir den öppna spisen med insats en mysig och rogivande detalj samtidigt som den bidrar till en extra värmekälla under årets kallare månader.
På entréplanet finns ett första av fyra sovrum. Rummet är av bra storlek och här ryms gott och väl en dubbelsäng. Ett fint plankgolv pryder golvet som en charmig detalj. Här finns gott om förvaring i form av garderober bakom skjutdörrar.
Entréplanets badrum ligger i anslutning till entrén och är helkaklat utrustat med toalett, handfat med kommod, spegelskåp samt badkar. Golvvärmen bidrar till extra komfort och gör att du alltid sätter fötterna på ett varmt underlag.
En trappa upp möts du av en rymlig hall som knyter ihop rummen på det övre planet. Ett stort fönster släpper in mängder med ljus.
Här uppe finns tre bra sovrum med förvaring i både garderober och i sidovindar. Samtliga tre rum är av bra storlek, perfekta för barnrum eller kontor.
Husets källare erbjuder helt fantastiska ytor där varje kvadratmeter kan nyttjas till fullo. I hela källaren ligger det klinker på golvet vilket bidrar till fräscha och lättstädade ytor. Ett stort allrum med braskamin ligger i anslutning till hallen med egen ingång från husets gavel. I denna hall är det förberett för installation av kök om du vill möjliggöra ett bra utrymme för framtida uthyrning. Här finns idag en rostfri kyl samt frys i fullhöjd.
I källaren finns husets andra badrum, även detta helkaklat och utrustat med toalett, handfat med kommod, spegelskåp samt dusch bakom vikväggar. Även här finns golvvärme.
Den mycket praktiska tvättstugan erbjuder inte bara praktiska ytor för hantering av tvätten utan också goda möjligheter för förvaring tack vare dess väl tilltagna storlek. Här finns både tvättmaskin och torktumlare samt gott om bänkyta med underliggande skåp samt vägghängda hyllor för förvaring.
Ett stort förråd i källaren används idag som kontor.



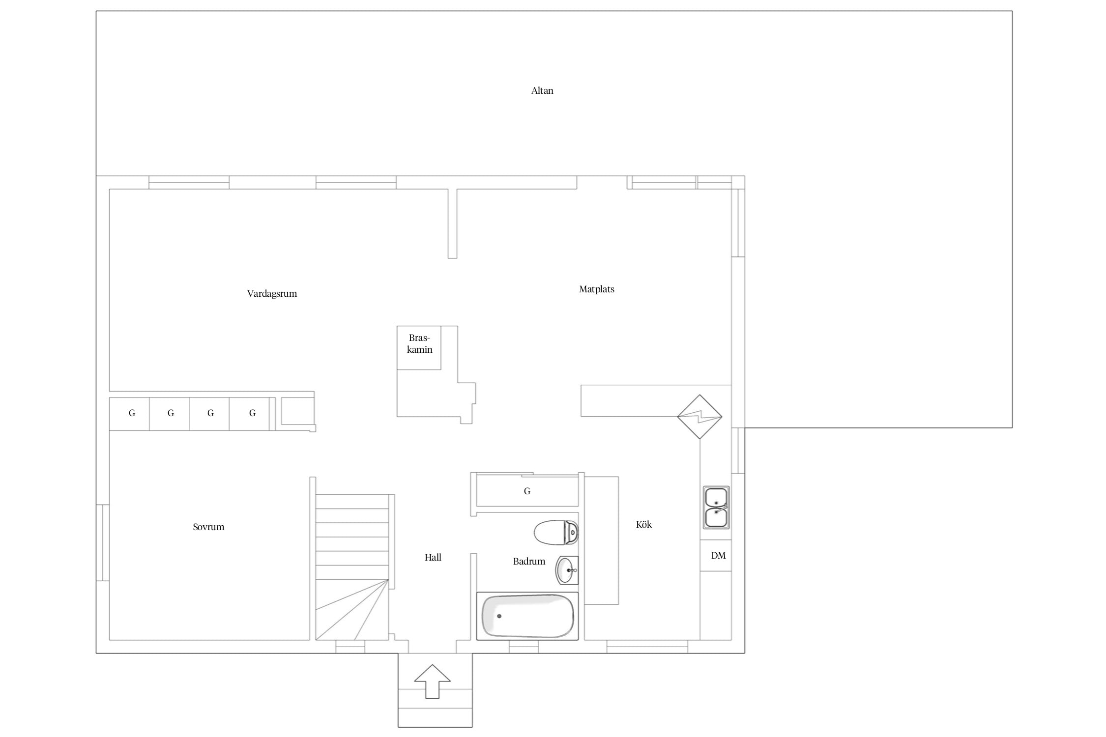
Planritning entréplan
Planritning övre plan
Planritning källare
Rydsberg 8:70
*Areauppgifter enligt taxeringsinformationen
2025: Delvis ny gräsmatta, ny stenmur, två stora rabatter anlades, garaget renoverades och carport byggdes, taket tvättades, kaminen i källaren installerades och samtidigt glidgjöts skorstenen i källaren , airmove (för fördelning av värmen från kaminen) installerades i källaren, Yale Doorman installerades i källaren.
2024: Lagt om skiffergången samt grusgång till huset, renoverat källaren (putsat alla väggar och målat med silikatfärg, klinkergolv, bytt ut gjutgärnsbrunnen, installerat två nya element), slipat golv i vardagsrum och matrum samt målat i vardagsrum. Gipsat, målat, bytt lister i samtliga rum på övervåningen, heltäckningsmatta i samtliga rum på övervåningen.
Tidigare ägare:
2018: Garagetaket renoverades med nya betongpannor, papp och läkt, bergvärme installerades, L-stöd som tegelfasaden vilar på (halvtegel) byttes ut, Yale Doorman lås installerades.
2017: Garageuppfarten asfalterades, väggen mellan kök och matplats togs bort.
2014: Fiber installerades.
2013: El samt elcentral byttes ut inkl el till garaget.
2011: Ny altan.
2010: Merparten av fönsterna byttes, farstukvisten byggdes.
2008: Köket renoverades, badrum på entréplan renoverades.
2007: Tvättstugan renoverades.
2006: Badrum i källaren renoverades.
2005: Kassett monterades i den öppna spisen och skorstenen glidgjöts invändigt.
1997: Merparten av avloppsrören byttes ut.
1993: Dränering.
1992: Taket lades om och takkupan byggdes.
Garage med intilliggande carport
I ett underbart läge med sol från mitt på dagen till sena kvällen finns den fina altanen i två nivåer.
Vid husets entrésida finns en grusad yta är du kan njuta av morgonsolen. Även under farstukvisten vid entrén kan du njuta av dagens första kopp kaffe i den ljumna morgonsolen.
Kommunalt vatten, Kommunalt avlopp.
Huset är beläget i en sluttande tomt men här erbjuds också plana ytor gräs för lek och umgänge.
Garage, carport samt asfalterad uppfart.
Byggnadsplan (1988-01-14)
Förmån: Avtalsservitut Avloppsledningar, 1441IM-04/26273.1
Fiber
I posten för uppvärmning ingår även hushållsel samt nätavgifter.
I posten för vatten och avlopp ingår även renhållning.
Det finns 13 st pantbrev uttagna om sammanlagt 4 608 000 kr
Välkommen till Lerum, en stad på landet men med ett bekvämt avstånd till Göteborg. I och omkring Lerum hittar du underbar natur med djupa skogar och över 200 sjöar. I centrum finns dessutom restauranger, ett fullt serviceutbud och flera specialbutiker. Likaså erbjuder Lerum ett brett kulturliv med teater, historiska byggnader och museer.
OMRÅDET
Omgivningarna kring Lerum erbjuder många och vackra naturupplevelser. För den fiskeintresserade borgar fiskevårdsåtgärder för ett bra fiske året om. Härliga bad vid fina sandstränder i Stamsjön, Aspen, Mjörn, Lensjön för att nämna några.
FRITID
Lerums kommun erbjuder bra golfanläggningar. På t.ex. Öijared, Sveriges största anläggning med tre högklassiga 18-hålsbanor och en 9-håls pay-and-play-bana, slår du ut från taket på det prisbelönta klubbhuset. Vid sjön Aspen finns Lerums Segelsällskap, som är är en av Sveriges största jolleklubbar. För de hästintresserade erbjuder flera ridskolor möjlighet till undervisning för såväl nybörjare som riktigt erfarna ryttare. Vill man hålla sig inomhus är Vattenpalatset ett välbesökt utflyktsmål. I Stenkullen finns ett nav med idrottsanläggningar som ishall, friidrottsarena och handbollshall inklusive ett sportcentrum med gym. Fotboll, ishockey, innebandy, konståkning för att nämna några sporter som har bra förutsättningar inom kommunen.
UTBILDNING
I Lerums kommun finns både enskilda och kommunala förskolor och grundskolor inklusive särskolor. Den stora gymnasieskolan har många olika linjer att välja mellan. Trygghet, utveckling och inspiration ligger till grund för verksamheten inom kommunen och man lägger särskilt fokus på att förbereda eleverna för kommande studier och vuxenliv.
KULTUR OCH SERVICE
Vid stranden till sjön Sävelången ligger Nääs Fabriker. I historiska och vackra fabriksbyggnader samsas numera flera olika verksamheter i en kreativ miljö, det är ett brukssamhälle för 2000-talet. Här finns näringsliv med handel, hotell, restaurang, café och konferenslokaler. Nääs fabriker har ett strategiskt läge utefter E20. Nääs slott är med sin orörda 1800-tals interiör unikt för Skandinavien. Aspenäs herrgård, med anor från 1500-talet, är idag en konferensanläggning vid Aspens vattenbryn, en oas för möten och fester, med plats för flera hundra gäster. Kärleksfullt hemlagade mat och övernattningsmöjligheter.
KOMMUNIKATIONER
Pendeltåget mellan Göteborg och Alingsås stannar i Lerum, Stenkullen och Floda och erbjuder ett snabbt och smidigt färdsätt. Flera direktbussar går mellan Lerum och Göteborg. Det lokala bussnätet mellan de olika orterna i kommunen är också det väl utbyggt.
Köpa, sälja eller värdera bostad i Lerum? Kontakta våra mäklare i Lerum! Passa också på att anmäla dig till vår kostnadsfria söktjänst Boagenten som hjälper dig att hitta ditt drömboende.
Kontakta mäklaren om du behöver hjälp att ta fram en boendekalkyl.
När du köper din bostad genom Bjurfors kan du ansöka om bolån till en förmånlig ränta hos våra banksamarbetspartners Söderberg & Partners och SEB.
Bokad visning - varmt välkommen med din anmälan!
Ansvarig mäklare