-
Köpa
Köpa -
Sälja
Sälja - Hitta bostad
- Skapa bevakning
- Hitta mäklare
Hemtrevlig souterrängvilla med underbar trädgård, centralt läge och garage
Lerum - Södra, Lerum
*Areauppgifter enligt taxeringsinformationen
Bokad visning. Du kan även ringa Bjurfors Bokningscenter 031-761 79 50. Välkommen!
Bokad visning. Du kan även ringa Bjurfors Bokningscenter 031-761 79 50. Välkommen!
På Förhand ligger bostäder som av olika anledningar inte är ute till försäljning just nu men som kan komma att säljas om förutsättningarna är rätt.
Denna villa om totalt 282 kvm är ett gyllene tillfälle för familjen som vill sätta sin egen prägel på sitt nästa boende
Nu är det dags för denna hemtrevliga villa, som haft samma ägare sedan det byggdes 1969, att hitta en ny familj som vill flytta in och trivas. Bostaden som erbjuds är mycket familjär med historia och originaldetaljer som har en framtid full av potential! Här finns det gott om plats med sina 282 kvm totalt fördelat på fina sociala ytor, trivsamt kök, sex sovrum samt bra förvaringsmöjligheter på två rymliga våningsplan.
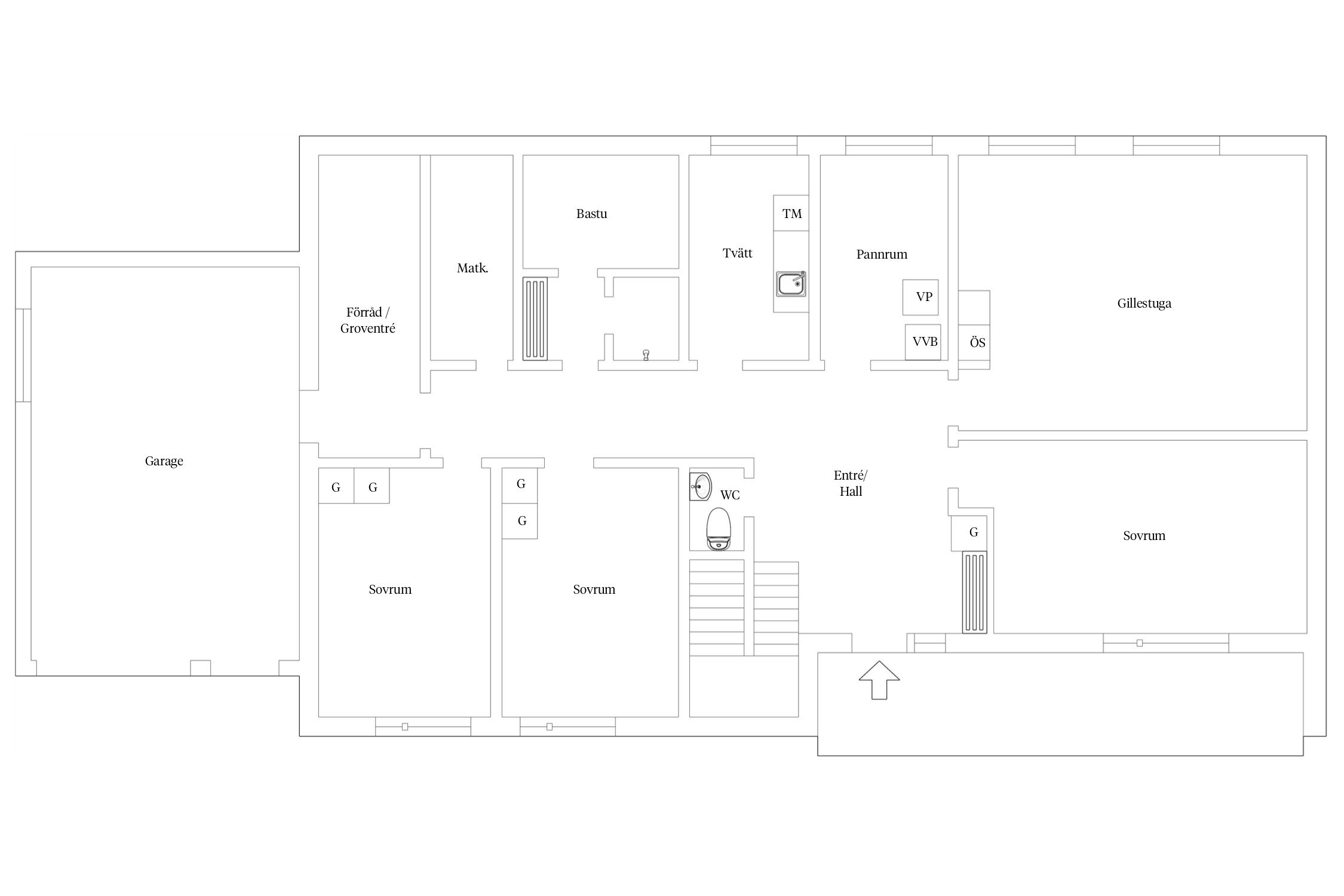
Souterrängplanet välkomnar oss in via den vackra ytterdörren och erbjuder en rymlig hall med förvaring i garderob för ytterkläderna. På detta plan finns också tre av bostadens sovrum med vackert ljusinsläpp från framsidan samt gäst-wc, pannrum, rymlig tvättstuga med goda upphängningsmöjligheter, bastu och dusch, klassisk matkällare samt groventré med direktaccess till det vidbyggda garaget på ca 30 kvm. På detta plan hittar vi även en mycket charmig gillestuga som blir en naturlig samlingspunkt för vänner och bekanta framför den värmande öppna spisen.
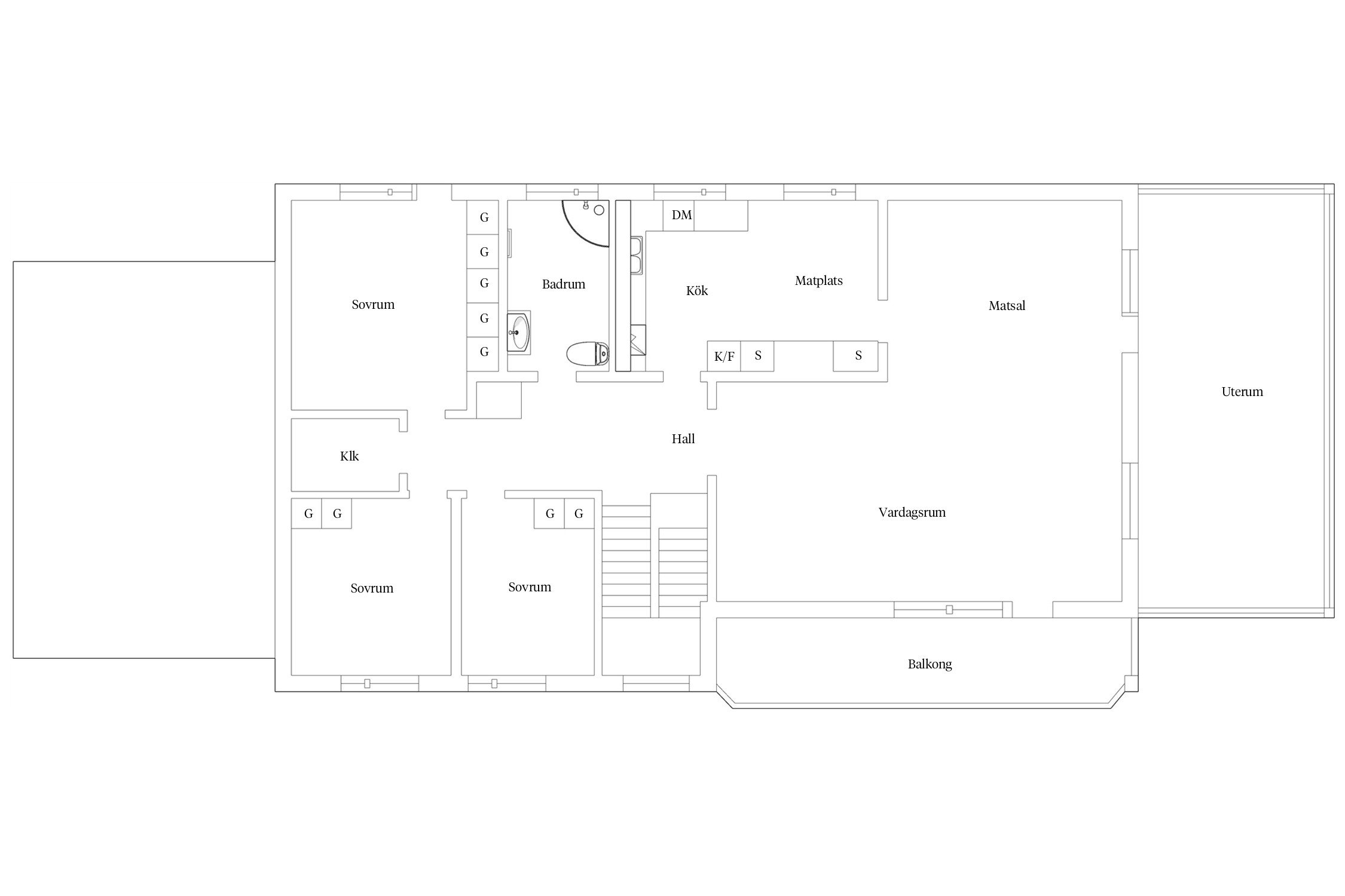
Via den välbevarade och karaktäristiska 60-talstrappan från hallen kommer vi upp på husets övervåning. Här uppe hittar vi allrum och matplats, trivsamt kök, tre rymliga sovrum, en klädkammare och ett helkaklat badrum. Från det sovrum som idag används som master bedroom nås en stenlagd uteplats med härlig morgonsol. Genom en lucka i taket nås bostadens stora vind, där man har mycket goda förvaringsmöjligheter för julpynt och annat man önskar ställa undan.
Bostadens sociala ytor består av ett allrum och rymlig matplats med gott om plats för stor soffgrupp samt ett stort matsalsbord. Här finns fönster i flera väderstreck vilket ger ett fantastiskt ljus. På golven ligger en vacker träparkett med klassiskt holländskt mönster. Från vardagsrummets ena altandörr nås den anslutande balkongen med soligt läge. Här umgås man gärna under sommarmånadernas ljumna kvällar och njuter av den slående utsikten över Lerum samt den vackra glimten man får av sjön Aspen. Ifrån den andra altandörren så kommer vi ut i det inglasade uterummet på ca 15 kvm som förlänger utomhussäsongen avsevärt.
På vår och sommarhalvåret slås man av den underbara trädgården och välkomnas av blommande körsbärsträd, frodiga äppelträd, pampig magnolia och röda rosor. Nuvarande ägare har lagt ner mycket tid och omsorg här vilket man tydligt märker. Här blommar olika typer av blommor och träd under årets olika säsonger. På tomten står ett växthus som levererat rikligt med gröna delikatesser långt in på hösten. Gräsmattan runt huset lockar både stora och små till lek och avkoppling.
Läget är mycket centralt med gångavstånd till allt som Lerums centrum har att erbjuda i form av handel, restauranger och goda kommunikationer. Strax utanför tomtgränsen väntar lantligare omgivningar och på promenadavstånd ligger Stamsjöns badplats med sin omtyckta och långgrunda strand med bryggor och hopptorn sommartid. På vintern brukar skridsko- och skidåkarna ta över.
Varmt välkomna på visning av Edward Olssons Backe 14, ett gyllene tillfälle att skapa ert drömboende i omtyckta södra Lerum!
Hall
Välkomnande och väl tilltagen hall med gott om plats för avhängning och förvaring. Hallen fungerar som husets nav och binder samman entréplanet på ett naturligt och lättillgängligt sätt. Härifrån nås både sovrum, gillestuga och praktiska biytor.
Sovrum ett
Bostadens första sovrum är ljust och fint med gott om plats för säng och annat möblemang. Detta nyttjas även gärna som kontor om så önskas.
Gillestuga
En generös och trivsam gillestuga med gott om plats för både soffgrupp och umgänge. Ett perfekt extrarum för familjens filmkvällar, tonårshäng eller gäster. Rummets avskilda placering skapar en lugn och ombonad atmosfär. Den öppna spisen sprider skön värme och bidrar med en mysig atmosfär.
Klädkammare
Praktisk klädkammare i anslutning till hallen som ger utmärkta förvaringsmöjligheter och bidrar till ett ordnat hem.
Tvättstuga
Funktionell tvättstuga med tvättmaskin, vattenho och bra arbetsytor som underlättar vardagens alla bestyr. Här finns gott om plats för tvätthantering och upphängning av kläder.
Bastu / Dusch
En härlig bastu med tillhörande dusch, en uppskattad lyx i vardagen. Perfekt för avkoppling efter träning eller kyliga dagar.
Matkällare
Denna bostad erbjuder flera fina förvaringsmöjligheter, där bland annat en klassisk matkällare som kanske kan inredas till vinkällare.
Groventré
Funktionell groventré, även här med fina förvaringsmöjligheter. Perfekt för att slussa in leriga barn efter en rolig dag på förskolan. Härifrån nås det vidbyggda garaget för bekväm access till bilen.
Sovrum två och tre
Entréplanets två andra sovrum ligger i fil, båda med stora fönster mot framsidan och bra förvaring i dubbelgarderober. Dessa två rum rymmer med enkelhet säng, skrivbord och annat möblemang. I det första av de två sovrummet finns även dörr till smart förvaring under trappan.
WC
Praktiskt placerad WC i anslutning till hallen med toalett och handfat.
Övre plan
Fin trappa i trä leder oss upp till bostadens övre plan.
Allrum och matplats
Via dubbeldörrar från hallen når man bostadens allrum och matplats. Här slås man av ljuset och utsikten över Lerum och glimten av sjön Aspen. Rummet är stort nog för både stor soffgrupp och matbord. Här känner man sig välkommen att sitta ner och umgås länge vid olika sociala tillställningar. På golvet ligger vacker träparkett och under fönster sitter fina fönsterbrädor i marmor. Ifrån detta rum når man både balkong och uterum.
Kök
Välplanerat kök med generösa arbetsytor och god förvaring. Maskinparken består av kombinerad ugn och spis, fläkt, diskmaskin samt kyl och frys. I köket finns bra plats för ett matbord som har sin givna plats intill fönster ut mot baksidan. Här samlas man och samtalar hela familjen under helgens lugna frukostar.
Badrum
Fräscht och helkaklat badrum med handfat i kommod, förvaring bakom spegelskåp, handdukstork, duschhörna och toalett. Under de ljusa klinkerplattorna ligger skön golvvärme.
Sovrum fyra
Det övre planets första sovrum är också bostadens största. Här inne finns gott om plats för dubbelsäng och sängbord. Smart originalförvaring i inbyggda garderober i helvägg. Härifrån nås en stenlagd uteplats med härlig morgonsol.
Klädkammare
Praktisk och rymlig klädkammare som erbjuder bra förvaring i anslutning till de tre sovrummen på övre plan.
Sovrum fem och sex
Även det övre planet har ytterligare två fina sovrum i fil med fönster ut mot framsidan, bra förvaring i garderober samt gott om plats för säng och skrivbord.
Vidbyggt garage
Garage med direktaccess till huset som är bekvämt året runt. Rymmer en bil i dagens mått och här finns även plats för förvaring och arbetsyta.



Planskiss entréplan
Planskiss övre plan
Lerum 33:7
*Areauppgifter enligt taxeringsinformationen
Radonmätning 2007 70 Bq (gränsvärdet är 200 Bq)
1990 - byte av två gavelfönster i sydväst
1995 - bytt skadade stenar på fasad i sydväst
2000 - skorsten beslås med koppar- och blyplåt
2002 - ny panna
2004 - bytt papp, läkt, betongpannor samt vindskivor på bostadshus och garage
2005 - dränerat om
2005 - renoverat duschrummen
2007 - nya plåtar på gavel i sydväst
2009 - Uterum byggdes. Bygglov finns.
2008 - installation av luft/vattenvärmepump och varmvattenberedare
2015 - nytt expansionskärl
2015 - innertrappa slipas och lackas
2020 - bytt limträbalk på gavel i uterum
2021 - byte av blandare i tvättstuga
2025 - byte av vattenmätarkonsol
Balkong längs med husets långsida.
Inglasat uterum med öppningsbara fönster och altandel runt om.
Stenlagd uteplats i anslutning till huvudsovrummet på övre plan.
Kommunalt vatten, Kommunalt avlopp.
Uppfart framför huset för flera bilar. Vidbyggt garage med plats för bil och förvaring.
Byggnadsplan (1963-12-20)
Fiber
I posten för VA ingår även renhållning.
Det finns 3 st pantbrev uttagna om sammanlagt 340 000 kr
Välkommen till Lerum, en stad på landet men med ett bekvämt avstånd till Göteborg. I och omkring Lerum hittar du underbar natur med djupa skogar och över 200 sjöar. I centrum finns dessutom restauranger, ett fullt serviceutbud och flera specialbutiker. Likaså erbjuder Lerum ett brett kulturliv med teater, historiska byggnader och museer.
OMRÅDET
Omgivningarna kring Lerum erbjuder många och vackra naturupplevelser. För den fiskeintresserade borgar fiskevårdsåtgärder för ett bra fiske året om. Härliga bad vid fina sandstränder i Stamsjön, Aspen, Mjörn, Lensjön för att nämna några.
FRITID
Lerums kommun erbjuder bra golfanläggningar. På t.ex. Öijared, Sveriges största anläggning med tre högklassiga 18-hålsbanor och en 9-håls pay-and-play-bana, slår du ut från taket på det prisbelönta klubbhuset. Vid sjön Aspen finns Lerums Segelsällskap, som är är en av Sveriges största jolleklubbar. För de hästintresserade erbjuder flera ridskolor möjlighet till undervisning för såväl nybörjare som riktigt erfarna ryttare. Vill man hålla sig inomhus är Vattenpalatset ett välbesökt utflyktsmål. I Stenkullen finns ett nav med idrottsanläggningar som ishall, friidrottsarena och handbollshall inklusive ett sportcentrum med gym. Fotboll, ishockey, innebandy, konståkning för att nämna några sporter som har bra förutsättningar inom kommunen.
UTBILDNING
I Lerums kommun finns både enskilda och kommunala förskolor och grundskolor inklusive särskolor. Den stora gymnasieskolan har många olika linjer att välja mellan. Trygghet, utveckling och inspiration ligger till grund för verksamheten inom kommunen och man lägger särskilt fokus på att förbereda eleverna för kommande studier och vuxenliv.
KULTUR OCH SERVICE
Vid stranden till sjön Sävelången ligger Nääs Fabriker. I historiska och vackra fabriksbyggnader samsas numera flera olika verksamheter i en kreativ miljö, det är ett brukssamhälle för 2000-talet. Här finns näringsliv med handel, hotell, restaurang, café och konferenslokaler. Nääs fabriker har ett strategiskt läge utefter E20. Nääs slott är med sin orörda 1800-tals interiör unikt för Skandinavien. Aspenäs herrgård, med anor från 1500-talet, är idag en konferensanläggning vid Aspens vattenbryn, en oas för möten och fester, med plats för flera hundra gäster. Kärleksfullt hemlagade mat och övernattningsmöjligheter.
KOMMUNIKATIONER
Pendeltåget mellan Göteborg och Alingsås stannar i Lerum, Stenkullen och Floda och erbjuder ett snabbt och smidigt färdsätt. Flera direktbussar går mellan Lerum och Göteborg. Det lokala bussnätet mellan de olika orterna i kommunen är också det väl utbyggt.
Köpa, sälja eller värdera bostad i Lerum? Kontakta våra mäklare i Lerum! Passa också på att anmäla dig till vår kostnadsfria söktjänst Boagenten som hjälper dig att hitta ditt drömboende.
Kontakta mäklaren om du behöver hjälp att ta fram en boendekalkyl.
När du köper din bostad genom Bjurfors kan du ansöka om bolån till en förmånlig ränta hos vår samarbetspartner SEB.
Bokad visning. Du kan även ringa Bjurfors Bokningscenter 031-761 79 50. Välkommen!
Bokad visning. Du kan även ringa Bjurfors Bokningscenter 031-761 79 50. Välkommen!
Ansvarig mäklare