-
Köpa
Köpa -
Sälja
Sälja - Hitta bostad
- Skapa bevakning
- Hitta mäklare
Familjevilla med stora sociala ytor
Hällingsjö, Mark
*Areauppgifter enligt taxeringsinformationen
Bokad visning. Du kan även ringa Bjurfors Bokningscenter 031-761 79 50. Välkommen!
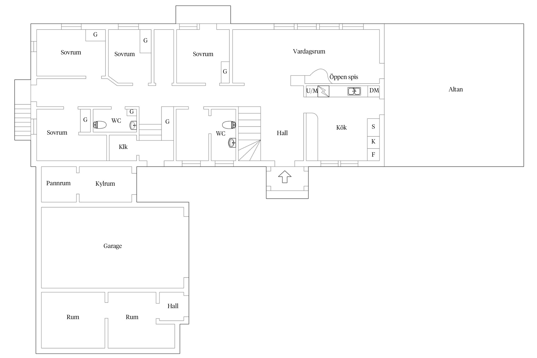
Nu har du chansen att förvärva denna charmiga villa, belägen på en idyllisk trädgårdstomt i det omtyckta området Gäddhult Björkbacken. Huset, som byggdes 1981, är en gedigen enplansvilla med källare och erbjuder totalt ca 224 kvm fördelat på 8 rum och kök, varav 5 sovrum. Den generösa tomten om 2919 kvm består av plana gräsytor, perfekta för lek och aktiviteter, samt en inbjudande uteplats.
Här finns många av de kvaliteter man kan önska sig: rymliga sociala ytor, en fantastisk stor tomt och möjligheter att skapa ett hemmakontor. Om du längtar efter ett lugnt lantliv med gott om utrymme, är detta hus ett perfekt val. Bostaden erbjuder ett generöst boende med stora, ljusa ytor. Du välkomnas av en rymlig hall med gott om plats för avhängning av kläder och skor. Huset har ett klassiskt kök med matplats, tre badrum varav ett med bastu, fem sovrum, ett vardagsrum med mysig braskamin och ett allrum med braskamin. Endast 75 meter från Östra Ingsjön, kan du njuta av en stor altan i soligt läge, idealisk för sommarkvällar med nära och kära. Dessutom gränsar tomten direkt till skogen, rik på bär och svamp.
Dubbelgarage om ca 65 kvm (uppvärms med luft/luftvärmepump) är ihop byggd med verkstad samt två rum som kan användas som kontor eller gästrum.
Sammantaget är detta en mycket tilltalande villa med en väl genomtänkt planlösning, perfekt för den sociala och aktiva familjen. Här är det bara att flytta in och börja njuta av livet.
Hall
Den välplanerade och inbjudande hallen välkomnar dig med ljusa väggar och ett stilrent mörkt klinkergolv. Här finns gott om utrymme för avhängning och förvaring, vilket skapar en prydlig och ordnad entré för dig och dina gäster.
Kök Köket, i direkt anslutning till hallen, blir snabbt hemmets hjärta med sin inbjudande atmosfär. Här är det enkelt att samlas för trevliga middagar, och från köket når du direkt ut till altanen i västerläge, perfekt för kvällssolen. Köket erbjuder generösa förvaringsutrymmen och välplanerade arbetsytor som underlättar matlagningen. Den moderna maskinparken inkluderar induktionshäll, kyl och frys, fläkt, diskmaskin samt ugn och mikro, och den charmiga vedspisen sprider en hemtrevlig värme under kyliga dagar.
Vardagsrum
Det rymliga vardagsrummet är den naturliga samlingspunkten i huset, där mycket dagsljus strömmar in genom stora fönster. Den öppna spisen ger en mysig känsla och blir en självklar plats att samlas kring. Här finns gott om plats för både soffgrupp och matgrupp, och parkettgolvet bidrar till en elegant och tidlös atmosfär.
Altan
Från både köket och vardagsrummet når du den generösa altanen, som bjuder på en fantastisk utsikt över trädgården och den omgivande naturen. Med plats för både loungemöbler och matbord är detta den perfekta platsen för att njuta av soliga eftermiddagar och ljumma sommarkvällar.
Sovrum 1
Master bedroom nås direkt från hallen och erbjuder en harmonisk och rofylld miljö. Rummet har en inbyggd garderob och gott om plats för en dubbelsäng, samt utgång till en balkong på husets södra sida, där morgonsolen gör varje dag till en bra start.
Badrum 1
Det smakfullt renoverade badrummet från 2020 imponerar med sin moderna våtrumsmatta och stilrena våtrumstapet. Här finns ett badkar för avkopplande stunder, en praktisk kommod, samt stämningsfulla spotlights.
Sovrum 2
Detta lättmöblerade och trivsamma sovrum har en inbyggd garderob och gott om plats för en dubbelsäng. Ett perfekt rum för att skapa en personlig och mysig atmosfär.
Sovrum 3
Det rogivande och charmiga sovrummet har två fönster som vetter åt olika väderstreck, vilket ger ett fantastiskt ljusinsläpp och en skön känsla av rymd.
Badrum 2
Det mindre, men praktiska badrummet är utrustat med duschkabin, toalett och kommod, och är en smidig lösning för familjens behov.
Sovrum 4
Detta ljusa och trevliga rum har både golv och väggar i ljusa toner. Fönstret vetter mot baksidan och låter morgonsolen stråla in, vilket skapar en perfekt start på dagen.
Källare
I källaren möts du av ett inbjudande allrum med en stämningsfull öppen spis, en idealisk plats för avkoppling och samvaro under årets kyligare månader.
Sovrum 5
Det femte sovrummet i huset är rymligt och har en praktisk garderob. Detta mångsidiga rum kan användas som ett trivsamt gästrum, ett rogivande kontor eller kanske en kreativ ateljé.
Tvättstuga
Den väldisponerade och fräscha tvättstugan är utrustad med både tvättmaskin och torktumlare samt en arbetsbänk, vilket underlättar vardagens bestyr och ger utrymme för förvaring och organisation.
Badrum 3
Det tredje badrummet är ett stort och inbjudande utrymme som erbjuder en plats för relax och avkoppling. Här finns en bastu för sköna stunder, en dusch och en wc, vilket gör detta till en perfekt plats för att koppla av efter en lång dag.



Gäddhult 1:26
*Areauppgifter enligt taxeringsinformationen
Renoveringar och förbättringar per år
2019
Garaget målades invändigt och en luft/luftvärmepump installerades, arbetet utfördes av Hulta Kyl & Frys. Taket på hela fastigheten byttes ut och ersattes med nya betongpannor, läkt och takduk, vilket utfördes av Tareno AB. I entréhallen lades nya ytskikt och köket fick ett nytt golv – båda arbetena utfördes av fastighetsägaren.
2020
En duschkabin monterades in i dusch/toalettutrymmet på entréplanet. Delar av fönstren på entréplanet byttes ut av Tareno AB. En luft/luftvärmepump installerades även på entréplanet, detta utfördes av Hulta Kyl & Frys. Badrummet/toaletten på entréplan renoverades av Bredin & Co AB och våtrumsintyg finns. I pump/kylrummet installerades en varmvattenberedare, arbetet utfördes av fackman.
2021
Stora delar av träfasaden målades om av fastighetsägaren. Nya ytskikt lades i passagen på entréplanet. Ett nytt element installerades i groventrén och en vägg utanför bad/toalett på entréplanet revs – samtliga arbeten utfördes av fastighetsägaren.
2022
Tvättstugan i källaren renoverades av George Andersons Golv AB och även här finns våtrumsintyg.
Renoveringar och förbättringar av nuvarande ägare
2024
Åtta fönster samt altandörren byttes ut.
2025
En ny infiltrationsanläggning installerades av Trollbackens Entreprenad AB.
Fastighetsägaren har även låtit en elektriker dra om delar av husets el och själv målat den bakre fasaden.
Enskilt vatten, Enskilt avlopp.
Tomtarea 2 919 m² (friköpt).
Gemensamhetsanläggning: Härryda mörtsjöos ga:6 ändamål: Vägar
Förmån: Avtalsservitut Avloppsanläggning, 1463IM-01/30820.1
Förmån: Officialservitut Väg i samfälld vägmark, 15-SÄT-1440.2
Förmån: Officialservitut Väg, 15-SÄT-1440.1
Via fiber
Det finns 16 st pantbrev uttagna om sammanlagt 4 440 000 kr
Vill du köpa, sälja eller värdera bostad i Västra Götaland? Kontakta våra mäklare i Göteborg! Passa också på att anmäla dig till vår kostnadsfria söktjänst Boagenten som hjälper dig att hitta ditt drömboende.
Kontakta mäklaren om du behöver hjälp att ta fram en boendekalkyl.
När du köper din bostad genom Bjurfors kan du ansöka om bolån till en förmånlig ränta hos vår samarbetspartner SEB.
Bokad visning. Du kan även ringa Bjurfors Bokningscenter 031-761 79 50. Välkommen!