-
Köpa
Köpa -
Sälja
Sälja - Hitta bostad
- Skapa bevakning
- Hitta mäklare
Öjersjö, Partille
*I månadsavgiften ingår värme. Obligatoriskt tillägg tillkommer om 185 kr/mån gäller bredband/digital och IP-telefoni. Total månadsavgift blir därför 7 769kr. Varje lägenhet har separat avläsare för varm- och kallvatten samt för egen förbrukning av hushållsel. Kostnaden för detta läggs på månadsavgiften.
**Bostadsföreningen
På Förhand ligger bostäder som av olika anledningar inte är ute till försäljning just nu men som kan komma att säljas om förutsättningarna är rätt.
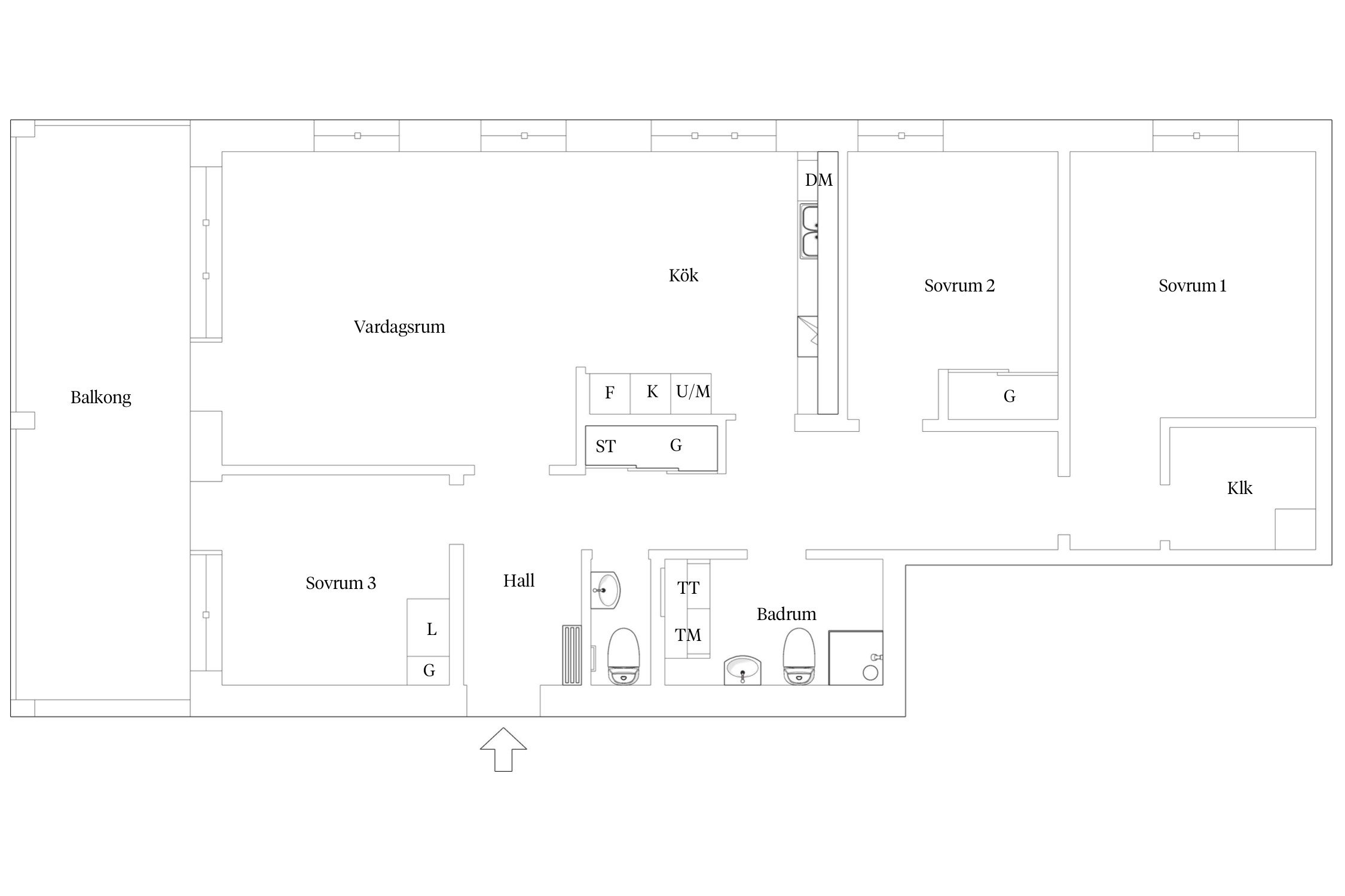
Ljus och rymlig 4:a med stor balkong om 20 kvm i naturnära Öjersjö.
Välkommen till denna välplanerade och smakfulla 4:a om hela 107 kvm i markplan. Bostaden präglas av ett härligt ljusinsläpp, en social planlösning mellan kök och vardagsrum samt en generös balkong om 20 kvm som förlänger vardagsrummet ut mot den omgivande naturen. Här bor ni i ett lugnt och naturnära område där skog och grönska blir en naturlig del av vardagen. Den rymliga balkongen erbjuder en rogivande plats för morgonkaffet, avkoppling i solen eller trevliga middagar under sommarkvällarna.
Lägenheten har en generös takhöjd som ger ett härligt ljusinsläpp och en luftig känsla genom hela bostaden. Den moderna och påkostade interiören speglar en känsla av stil och kvalitet som passar den som söker det lilla extra.
När du kliver in i bostaden möts du av en praktisk hall med smart förvaring bakom eleganta skjutdörrar, vilket gör att du enkelt kan hålla ordning och reda. Hallen leder vidare till de öppna och luftiga ytorna i bostadens övriga rum.
Det ljusa vardagsrummet har en öppen planlösning och smälter sömlöst ihop med det moderna köket. Här kan du njuta av sociala tillställningar och middagar med familj och vänner i en inbjudande och stilren miljö. För den som älskar naturen är den stora balkongen på 20 kvm en riktig höjdpunkt. En del av balkongen är inglasad. Här kan du njuta av utsikten över den vackra omgivande naturen i full harmoni, både i lugnet och i det fria.
Bostaden har tre rymliga sovrum i bra storlek, vilket gör den väl lämpas för familjen. Det ena sovrummet har tre garderober som ger gott om förvaring. Härifrån når du också den härliga balkongen. Det andra sovrummet har gröna väggar och rymmer både säng och skrivbord. Garderob med skjutdörrar och plats för extra byrå om å önskas. Master bedroom har närhet till en väl tilltagen klädkammare, vilket gör det lätt att hålla ordning på kläder och tillhörigheter.
Lägenheten erbjuder två stilfulla badrum med kakel och klinker. Det större badrummet är välutrustat med wc, handfat i kommod, tvättmaskin och torktumlare med praktisk arbetsbänk ovan samt ett härligt badkar. Det mindre badrummet har wc, handfat och spegelskåp, perfekt för vardagens behov.
Här bor ni i populära HSB brf Ramselyckan, en välskött förening i familjevänliga Öjersjö med närhet till natur, skolor, förskolor och fina promenadstråk. Samtidigt finns goda kommunikationer som tar er smidigt vidare mot Partille och Göteborg.
Ett hem som kombinerar komfort, funktion och naturnära livskvalitet.
Varmt välkommen till Brase-Emmas väg 11A.



*Bottenplan
**Bostadsföreningen
I månadsavgiften ingår värme. Obligatoriskt tillägg tillkommer om 185 kr/mån gäller bredband/digital och IP-telefoni. Total månadsavgift blir därför 7 769kr.
Varje lägenhet har separat avläsare för varm- och kallvatten samt för egen förbrukning av hushållsel. Kostnaden för detta läggs på månadsavgiften.
Ett förråd hör till lägenheten
103 st p-platser. Parkering kostar 500 kr/månad för vanlig parkering. Parkering med laddstolpe kostar 650 kr/månad exklusive förbrukning.
Separat kö till parkeringsplatserna.
Det finns flera gästparkeringar för besökande.
Föreningen har inga garage- eller carportplatser.
Telia Tripple play
Bredband
250/250
Bostadsrättens indirekta nettoskuldsättning baseras på föreningens skulder/lån minus föreningens räntebärande tillgångar och likvida medel. Beräkningen är gjord via Bopedia. För mer information kontakta ansvarig fastighetsmäklare.
Uppgifterna för driftkostnader är nuvarande ägares kostnader och dessa kan komma att ändras beroende på hushållets sammansättning och levnadssätt.
*Betalas av säljare
Brf Ramselyckan är en del av det nya området Gökegård som växer fram i Öjersjö. Föreningen kommer att bestå av 8 småskaliga hus om 4 våningar, byggda enligt miljömärkningen svanens krav på flerbostadshus.
103 st p-platser. Parkering kostar 500 kr/månad för vanlig parkering. Parkering med laddstolpe kostar 650 kr/månad exklusive förbrukning.
Separat kö till parkeringsplatserna.
Det finns flera gästparkeringar för besökande.
Föreningen har inga garage- eller carportplatser.
250/250 Mbit bredband, digital-TV och IP-telefoni.
Mellan husen finns det två lekplatser för barnen, soliga sitt ytor, gräsytor samt planteringar.
Det finns en nära en större lekplats för hela kvarteret, en skogslekplats som ligger nära övre delen av föreningen och på kommunens mark.
Föreningen har en gemensamhetslokal för styrelsemöten, mindre evenemang och för bokningsbara övernattningar. I det innovativa miljörummet blir avfallshantering plötsligt behagligt med hjälp av utsmyckning på väggarna och smarta, effektiva lösningar som gör det lätt att hålla rent.
I huset finns i markplan cykel- och barnvagnsrum. Lägenhetsförråd finns i närliggande komplements byggnad.
I huset finns i markplan cykel- och barnvagnsrum. Lägenhetsförråd finns i närliggande komplements byggnad.
Bara någon minuts promenad bort ligger Gökegårds centrumdel. Där finns bl a vårdcentral, restaurang samt en ny matbutik, Coop. Lite längre upp på Öjersjövägen finns Öjersjö centrum med servicebutik, pizzeria, thairestaurang, frisör och barnavårdscentral.
I natursköna Öjersjö smälter bebyggelsen samman med Kåsjön, det vackra Hålsjöområdet, naturreservaten vid Knipeflågsbergen och Delsjön, samt den attraktiva golfbanan. Det naturnära läget till trots nås Göteborgs breda utbud av service och storstadspuls på ca 10-15 min med bil eller buss.
OMRÅDET
Öjersjö etablerades under 1500- och 1600-talen och bestod till en början av 6 gårdar som bedrev jordbruk i de mindre bördiga skogsmarkerna. Fram till på 1950-talet började området, som dessförinnan varit ett sommarstugeområde, att bebyggas med permanentbostäder. Under 1980-talet tog nybyggnationen fart och idag finns det knappt några sommarstugor eller tomter kvar i området. Öjersjö är ett mycket expansivt område med närhet till både stad, natur och Landvetters flygplats.
UTBILDNING
I Öjersjö finns kommunala skolor med tillhörande förskolor. Det finns ett flertal privata förskolor varav en montessoriförskola. Gymnasier finns i både Partille och Mölnlycke.
FRITID
Öjersjö har ett rikt utbud av fritidsaktiviteter med bland annat fotbollsplan där Öjersjö IF spelar och Partille Golfklubbs omväxlande skogsbana. Kåsjön samt närliggande Hålsjön ger fina möjligheter till bad, paddling och fiske. Naturreservaten i den omedelbara omgivningen ger ett omväxlande utbud av spår för promenader, löpning och skidåkning. Inom kommunen finns både ridhus, friidrottsanläggning, ishall och ett flertal idrottshallar.
SERVICE
I Öjersjö centrum finns bland annat närbutik, frisör, öppen förskola och distriktssköterska. Köpcentrumet Allum med omkring 100 butiker finns ungefär 10 minuter bort med bil.
KOMMUNIKATIONER
Från Öjersjö tar man sig enkelt via riksväg 40 in till Göteborg på en kvart. Till Landvetters flygplats tar ni er på 10 minuter. Området trafikeras med buss till både centrala Göteborg och Partille Centrum.
Köpa, sälja eller värdera bostad i Öjersjö? Kontakta våra mäklare i Partille! Passa också på att anmäla dig till vår kostnadsfria söktjänst Boagenten som hjälper dig att hitta ditt drömboende.
Kontakta mäklaren om du behöver hjälp att ta fram en boendekalkyl.
När du köper din bostad genom Bjurfors kan du ansöka om bolån till en förmånlig ränta hos vår samarbetspartner SEB.
Ansvarig mäklare