-
Köpa
Köpa -
Sälja
Sälja - Hitta bostad
- Skapa bevakning
- Hitta mäklare
Fjällboende med tre sovrum, bastu, härlig balkong och optimalt ski in ski out läge
Tandådalen , Malung-Sälen
*Inklusive VA, parkering, snöröjning, sophantering, yttre underhåll
På Förhand ligger bostäder som av olika anledningar inte är ute till försäljning just nu men som kan komma att säljas om förutsättningarna är rätt.
Välplanerad lägenhet med tre rejäla sovrum, två badrum och uppdaterat kök nära lift, längdspår och service i Tandådalen Panorama.
I attraktiva Panorama i Tandådalen bor ni med ett läge som verkligen sätter tonen för hela vistelsen. Här startar dagen med att spänna på sig skidorna precis utanför huset och glida ut i längdspåret eller ta den korta vägen till liften för en dag i backen. Lika enkelt är det att avsluta dagen med att ta sig hem igen, slå sig ner på balkongen och låta solen dröja kvar medan fjällmiljön ramar in kvällen.
Närheten till Tandådalens utbud gör att ni har restauranger, butiker och service inom bekvämt räckhåll vilket ger en smidig och avkopplande tillvaro oavsett om ni är här över en helg eller en längre period. Här samsas det aktiva fjällivet med det enkla vardagslivet.
Bostaden är belägen en trappa upp med egen entré och erbjuder en planlösning som passar såväl familjen som det större sällskapet. Storstugan blir en naturlig samlingspunkt med sin halvöppna planlösning mellan kök, matplats och vardagsrumsdel. Här finns gott om utrymme för gemensamma måltider, spelkvällar och lugna stunder framför fönstren efter en dag ute.
Köket är uppdaterat med grå spegelluckor och rostfria vitvaror och har en funktionell utformning som gör det enkelt att laga mat tillsammans. Från storstugan nås balkongen i söderläge, där solen ligger på under stora delar av dagen och skapar en självklar plats för återhämtning.
Tre sovrum med totalt åtta bäddar ger bra flexibilitet och gör det enkelt att samla både familj och vänner. Lägenheten har två badrum med dusch, varav ett med bastu, vilket uppskattas efter en dag på fjället. I anslutning till entrén finns dessutom ett praktiskt skidförråd som förenklar vardagen.
Bostaden erbjuder en fin grund att utgå från och ger er möjlighet att över tid sätta er egen prägel och skapa ett personligt fjällboende i ett läge som många söker sig till.
Varmt välkommen att kontakta Bjurfors Sälen för mer information!
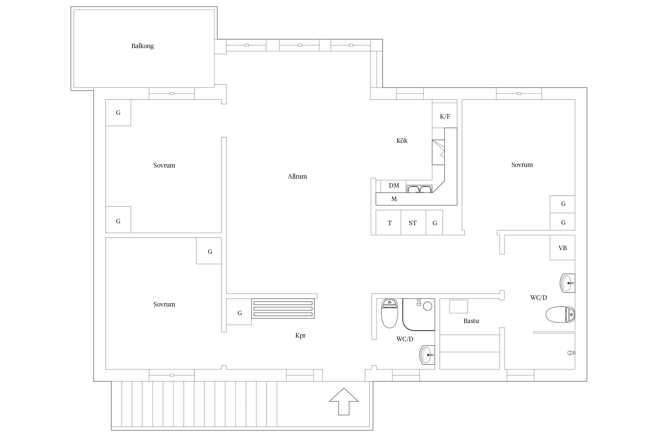
Hall
Entré via hall med klinkergolv, bröstpanel samt målad väv och vitt tak. Plats för garderob och avhängning av ytterkläder.
Sovrum 1
Plastmatta, målad väv och vitt tak. Plats för garderob. Idag möblerat med våningssäng av familjetyp med bredare underslaf, möjlighet att möblera med dubbelsäng.
WC/Dusch
Plastmatta på golvet, kakel på väggarna och vitt tak. Utrustat med duschkabin, WC, handfat, spegelskåp och handdukstork.
Storstuga/Kök
Parkettgolv, bröstpanel samt målad väv och vitt tak. Öppen planlösning med plats för generös soffgrupp och matbord för åtta personer.
Kök med gråa skåpsluckor och bänkskiva i kompositsten. Utrustat med diskmaskin från Bosch, ugn, mikro samt kombinerad kyl och frys i rostfritt från Whirlpool. Utgång till balkong i sydvästläge.
Master bedroom
Plastmatta, målad väv och vitt tak. Plats för dubbelsäng och två garderober.
Inre hall/passage
Parkettgolv, bröstpanel samt målad väv och vitt tak. Plats för torkskåp, klädskåp och mindre garderob.
Sovrum 2
Plastmatta, målad väv och vitt tak. Två våningssängar samt plats för garderob.
Badrum/Bastu
Plastmatta på golvet, kakel på väggarna och vitt tak. Utrustat med duschkabin, WC, handfat och handdukstork. Bastu med plats för cirka fyra personer och aggregat från Tylö.



Inklusive VA, parkering, snöröjning, sophantering, yttre underhåll
Luftvärmepump bytt
Kök bytt ca 2017
Förråd utvändigt
Balkong i s/v-läge, ca 5 kvm
Parkering intill bostaden
Fiber
Bostadsrättens indirekta nettoskuldsättning baseras på föreningens skulder/lån minus föreningens räntebärande tillgångar och likvida medel. Beräkningen är gjord och baseras på senaste tillgängliga årsredovisningen. För mer information kontakta ansvarig fastighetsmäklare.
Övrigt=Fiber
Vill du köpa, sälja eller värdera bostad i Dalarna? Kontakta våra mäklare! Passa också på att anmäla dig till vår kostnadsfria söktjänst Boagenten som hjälper dig att hitta ditt drömboende.
Här hittar du samtliga kommuner i Dalarna där Bjurfors har bostäder till salu just nu!
Kontakta mäklaren om du behöver hjälp att ta fram en boendekalkyl.
När du köper din bostad genom Bjurfors kan du ansöka om bolån till en förmånlig ränta hos våra banksamarbetspartners Söderberg & Partners och SEB.
Extra kontaktperson