-
Köpa
Köpa -
Sälja
Sälja - Hitta bostad
- Skapa bevakning
- Hitta mäklare
Välplanerad etagevilla med lantlig charm och utsikt över ängarna
Onsala - Orreviken, Kungsbacka
*Areauppgifter enligt taxeringsinformationen
På Förhand ligger bostäder som av olika anledningar inte är ute till försäljning just nu men som kan komma att säljas om förutsättningarna är rätt.
Bostaden med ca 178 kvm boarea kombinerar en unik planlösning och lantlig idyll med närhet till hav och salta bad
Välkommen till en mycket välskött villa med en trivsam planlösning och närhet till hav och vackra naturområden– ett hem där det lantliga lugnet får vara en självklar del av bostaden och vardagen.
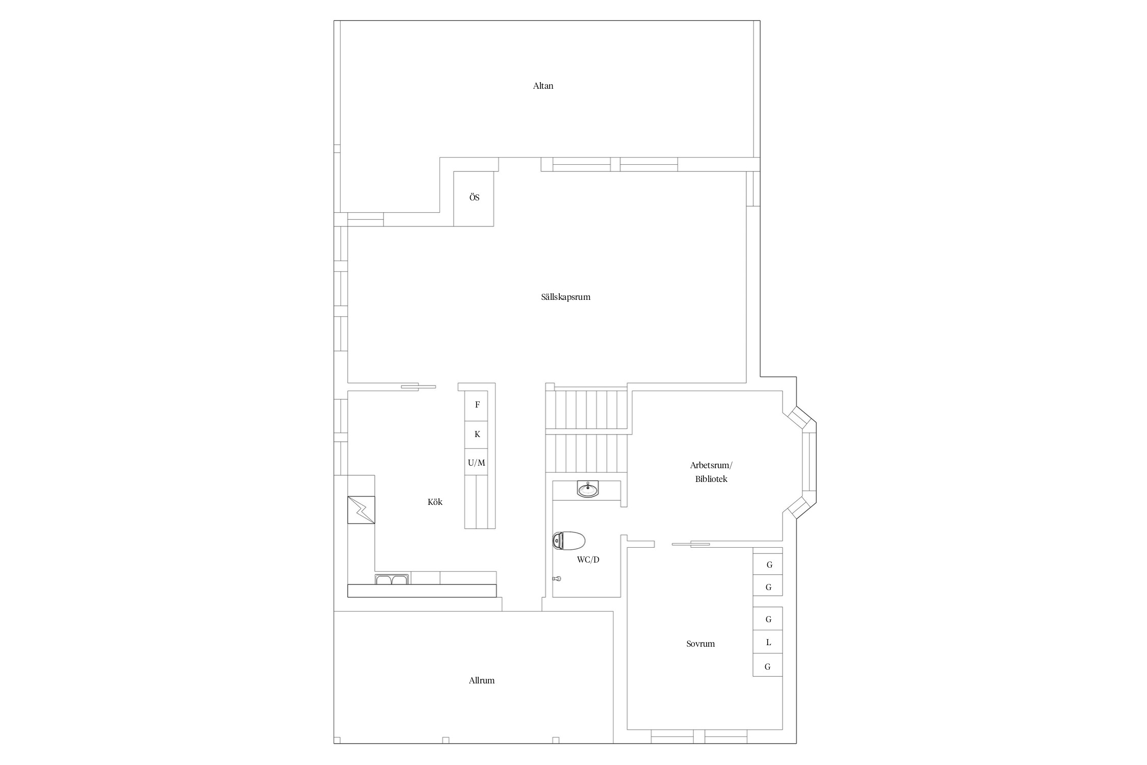
Denna etagevilla har varit i familjens ägo från byggnation och är omsorgsfullt placerad i den gröna omgivningen med vacker utsikt över böljande fält och grönskande ängar. Invändigt möts du av en unik planlösning i flera etage, där varje nivå och del av bostaden, har sin egen karaktär och genomtänkta funktion. Suterrängvillan med etagevåningar skapar rymd för såväl bostadens fyra sovrum, tre badrum, två sällskapsrum, bibliotek, kök och matsal.
Den generösa hallen ger ett välkomnande första intryck och på entréplan erbjuds tre rofyllda sovrum, ett allrum med plats för familj och vänners gemenskap samt ett rymligt badrum med wc, dusch, handfat med kommod och gott om förvaring. En halvtrappa upp finns en rymlig tvättstuga, bostadens andra badrum och vidare även förråd samt matkällare för praktisk förvaring som enkelt nås mellan de två våningarna– allt genomtänkt och lättillgängligt med en centraldammsugare som underlättar vardagen.
På den övre våningen öppnar bostaden upp för ett socialt och trivsamt våningsplan, som blir till hemmets hjärta, där kök möter matsal och sällskapsrum med en luftig takhöjd upp till nock samt stora glaspartier som bjuder in naturens årstider från flera väderstreck utanför fönstren. Köket från Nordbo har de senare åren fått nyare delar av den maskinella utrustningen såsom kyl och frys, spishäll ugn och kombinerad micro/ ugn samt en dekorativ bänkskiva av massiv bok. Köksbordet får sin naturliga plats framför fönstran i köket som låter er blicka ut över trädgården. Vidare mellan matsal och sällskapsrum finns en vacker eldstad som ger såväl mysiga stunder och värme som sprider sig i mellan våningsplanen. Härifrån kan öppna upp till en av bostadens två altaner som låter er blicka ut mot naturens vackra och föränderliga landskap. Njut av morgon- och förmiddagssol från den närliggande uteplatsen vid köket, där ni kan duka ut frukosten och få en harmonisk start på dagen.
Ytterligare ett etage upp erbjuds bibliotek, kontor med burspråk och och ett rogivande sovrum tillsammans med ett tredje och mer privat badrum finns dusch, wc handfat och kommod. Den här platsen är perfekt för den som arbetar hemifrån, läser, skriver eller bara vill dra sig undan en stund med utsikt över den skiftande utsikten i den närliggande naturen.
Den generösa trädgårdstomten, om strax över 3000 kvm, bjuder på levande former av bergspartier, grönskande gräsytor och soliga platser för både odling, lek och avkoppling. Här finns plats för både barnens spring och aktivitet, sommarens middagar och en dröm om växthus eller blomstrande köksträdgård. Denna levande trädgård följer årstidernas skiftningar och låter er skapa efter egna önskemål.
Bilen parkerar ni enkelt och smidigt i carporten och på uppfarten finns gott om plats för fler bilar och fordon.
På Gamla Pykstensvägen bor ni i en lantlig idyll och familjevänligt område med närhet till skolor, förskolor och barnens aktiviteter samt fina badplatser med klippor och badbryggor. För den båtintresserade finns flertalet närliggande småbåtshamnar och fina möjligheter till båtliv. Naturen kring Orreviken och Röda Holme erbjuder badplatser med vackra klippor och sandstrand för salta bad. Från bostaden når ni bra bussförbindelser som enkelt och smidigt tar er in till Kungsbackas stadskärna och stadens utbud, gymnasium och centralstationen för vidare jobb och nöjen- en bra kombination av lantlig idyll och närhet till Göteborg via E6an eller 158an. I Gottskär, längre ut på Onsalahalvön, finns flera trevliga restauranger och glasscaféer där ni kan njuta av gemenskapen i hamnen och flera evenemang som anordnas av de lokala arrangörerna. Vidare från Gottskärs hamn kan ni njuta av naturen på Utholmen där ni kan bada bland klipporna, hoppa från badtornet och fiska krabbor i fjorden.
Varmt välkomna på visning!
Kontakta ansvarig mäklare, Nina Stolpe för mer information.



Viken 5:17
*Areauppgifter enligt taxeringsinformationen
Solpaneler/ solceller och Centraldammsugare
2025
Påfyllning av köldmedium värmepannan + ny bandkabel
Nymålning av hela huset
2023
Byte av förångare och expansionskärl i värmepanna
Byte av optimerare solceller på ett ställe
Ny jordfelsbrytare för ytterbelysningen
Panelbyte och målning framsida övre plan
2021
Nya knivar robotgräsklipparen (Wolf Robo scooter 1800)
Ny markis på balkongen
Elinstallation av markis på balkongen
Jordfelsbrytare byts
2020
Byte av kretskort värmepanna
Vertikalmarkis
Elinstallation av vertikalmarkis
Service (Wolf Robo scooter 1800)
2019
Dämpare till kompressor byts värmepanna
Ny Husqvarna kyl och frys
Nytt av tak- papp, läkt, pannor
Solcellsanläggning
2018
Värmepump, ny kompressor
Bänkskiva massiv bok
Ny spishäll Smaklig
Ny Micro kombin ugn Smaksak
Ny Ugn Smaksak
2017
Altan
Panelbyte och målning framsida nedre plan
2015
Inköp av Robotgräsklippare Wolf Robo scooter 1800
2014
Ny centraldammsugarslang
2010
Ny värmepump Fighter 310p
Niagara duschvägg
Ny Bosch diskmaskin
1992
Vattenburen golvvärme i alla rum
Kommunalt vatten, Kommunalt avlopp.
Trädgårdstomt med bergspartier och gräsytor
Gemensamhetsanläggning: Kungsbacka viken ga:2
Last: Officialservitut Vatten och avloppsledningar, 1384-01/20.1
Last: Officialservitut Vatten och avloppsledningar, 1384-01/20.2
Förmån: Avtalsservitut Utfart, D201900239329:1.1
Fiber
Nyttjanderätt Tele
I kostnad för el ingår kostnad för uppvärmning och o kostnad för VA ingår renhållning från Kungsbacka kommun.
Det finns 10 st pantbrev uttagna om sammanlagt 2 900 000 kr
Det sägs att den som mäter livskvalitet i materiella ting aldrig blir nöjd. Verklig livskvalitet handlar ju om någonting helt annat; att varje dag vakna upp med havet som närmsta granne, uppleva vädrets växlingar året om och den harmoniska känslan i att se solen sjunka ner bakom horisonten i väster.
OMRÅDET
I Onsala är havet alltid närvarande och som onsalabo finns alla möjligheter att ta vara på de möjligheter som havet ger. Att segla, surfa, dyka, paddla kajak eller bara hänga på stranden i timtal är självklarheter när man bor på Sveriges guldkust – halvön Onsala.
HISTORIA
Från början var Onsala en lantbruks- och sjöfararbygd och bär spår ända till järnåldern. När den västsvenska sjöfartsnäringen nådde sin höjdpunkt, blev Onsala hem åt framstående kaptener och kapare. Genom sjöfarten lyckades många av traktens bönder utöka sin inkomst vid sidan av jordbruket. Tack vare dubbelarbetet blev många av dem välbärgade och kunde bygga ut sina gårdar. Kring 1800-talets slut förvandlades många av dessa gårdar till sommarvillor och Onsala blev så småningom ett populärt turistmål. Sedan dess har sommarområdena fyllts på av alltfler åretrunthus längs kusten, vilket skapat fina variationer i bebyggelsen. Här finns gamla villor i nationalromantisk stil, pittoreska stugor och många nyproducerade hus med slående havsutsikt. Här kan man bo längst ut i kustbandet där Västerhavet lockar till äventyr, eller i vindskyddat läge in mot Onsalafjorden. Ett sådant idylliskt område är Gottskär, med vackra villor som dominerar bergssluttningarna ner mot havet samt restauranger, bryggor och butiker.
Onsalas popularitet har gjort halvön förhållandevis tätbebyggd men du behöver inte ta dig många kilometer på småvägarna inåt Onsalalandet för att befinna dig mitt på landsbygden, bland hästgårdar och kantarellskogar.
KULTUR OCH FRITID
Stillheten och lugnet till trots finns det massor att se och göra i Onsala. Utöver de rekreationsmöjligheter som havet och naturen ger, kan man som onsalabo också välja att bl.a. spela tennis eller rida. För golfspelare finns Gräppås Golfbana i natursköna omgivningar, med val på 9- eller 18-hålsbana. Området kring Onsala lockar även med många spännande utflyktsmål. Varför inte ta båten ut till Nidingen – ett 4 km långt stenrev med världens äldsta dubbelfyr. En fascinerande och unik miljö med föränderlig form och kristallklart vatten.
Köpa, sälja eller värdera bostad i Onsala? Kontakta våra mäklare i Kungsbacka! Passa också på att anmäla dig till vår kostnadsfria söktjänst Boagenten som hjälper dig att hitta ditt drömboende.
Kontakta mäklaren om du behöver hjälp att ta fram en boendekalkyl.
När du köper din bostad genom Bjurfors kan du ansöka om bolån till en förmånlig ränta hos vår samarbetspartner SEB.