-
Köpa
Köpa -
Sälja
Sälja - Hitta bostad
- Skapa bevakning
- Hitta mäklare
Stor lägenhet med villakänsla och egen trädgård
Söder, Varberg
*Inkl. värme
**Föreningens information
Ett stenkast från strandpromenaden, med havsbrisen runt hörnet och mysiga restauranger inom räckhåll bygger Derome Brf Stormgatan.
Här kan du hitta din egen oas i en av Varbergs mysigaste stadsdelar.
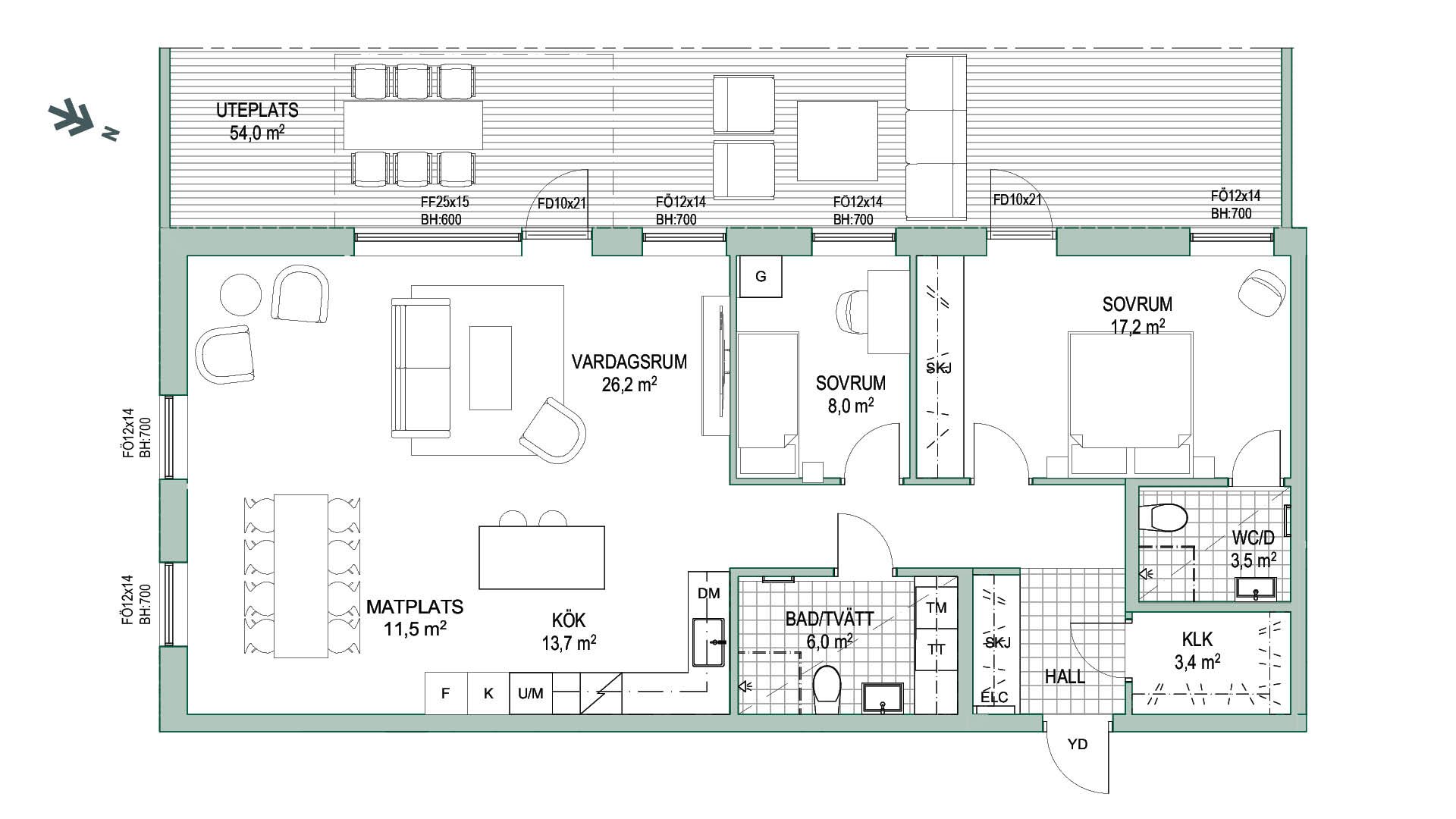
Den här genomtänkta trean i markplan bjuder på generösa ytor, social öppen planlösning, gott om förvaring och en stor trädgårdsyta. Här bor du i en praktisk bostadsrätt med allt det goda som huslivet har att erbjuda. Det stilrena vinkelköket, den rymliga matplatsen och vardagsrummet utgör bostadens naturliga samlingspunkt. Här finns gott om plats för middagar med familj och vänner och köksön blir en självklar mötesplats efter en dag vid havet. Från fönstren strömmar ljuset in och bidrar till en fin samverkan mellan inomhus- och utomhusmiljö. Det ljusa enstavsparkettgolvet ger bostaden en känsla av lyx.
Från vardagsrummet tar du dig ut till din egen uteplats med rymligt trädäck, gräsmatta och härlig kvällssol.
Det stora sovrummet har plats för både dubbelsäng och förvaring i skjutdörrsgarderober och egen utgång till uteplatsen och en egen wc. Det andra sovrummen kan med fördel användas som gästrum eller hemmakontor. I lägenheten finns ytterligare ett helkaklat badrum med tvättmaskin och torktumlare för att förenkla vardagen.
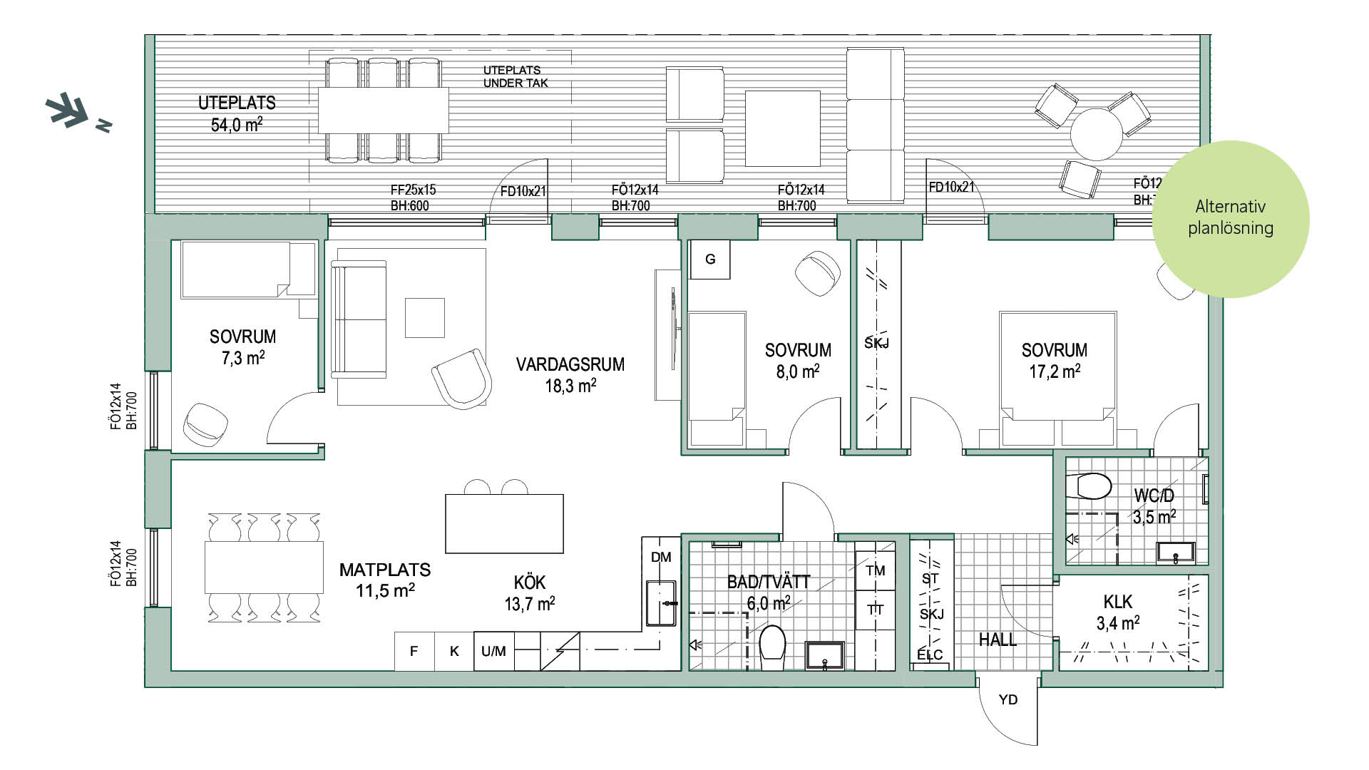
Bostaden erbjuder även ett alternativ i planlösningen där ett extra rum kan adderas, vilket ger möjlighet till fyra rum och kök.
Den gemensamma innergården med utekök, odlingslådor, orangeri och sittplatser blir en plats att landa på med grannarna under långa sommarkvällar och varma sensommardagar.
Lägenheten har ett förråd i trädgården och bilen parkerar du tryggt och säkert i garaget. Har du elbil så kan du välja elbilsladdning som tillval.
På Stormgatan bor du på cykelavstånd till allt det bästa Varberg har att erbjuda. Sommartid lockar strandpromenadens populära uteserveringar, där du kan njuta av mat, dryck och fantastisk atmosfär vid havet. En kort promenad bort finns centrum med torget och mysiga butiker.
Välkommen hem till din plats vid havet och ett boende att längta hem till varje dag.



*Föreningens information
Inkl. värme
Förråd i anslutning till uteplats och förråd i källaren
Öppen fiber från Varberg Energi. Kollektivt gruppavtal för bredband
Bostadsrättens indirekta nettoskuldsättning ges i separat information inför upplåtelseavtal
Avgifterna för kall- och varmvatten samt hushållsel är schablonberäknade och debiteras efter verklig förbrukning i efterhand.
*Betalas av köpare
Ett flerbostadshus med 4 våningsplan och underliggande källare samt ett orangeri. Huset innehåller 23 lägenheter. Källaren innehåller förråd, teknikrum, garage samt cykelparkeringar.
Under entreprenadtiden kommer fastigheten vara försäkrad genom entreprenören, vid slutbesiktning kommer de vara fullvärdesförsäkrade.
Parkeringsgarage på källarplan med 23 parkeringsplatser, varav 8 med ladduttag för elbil.
Hyra garageplats: 750 kr/månad.
Hyra garageplats med ladduttag för elbil: 950 kr/mån. Kostnad för elförbrukning tillkommer.
Föreningen har fiber och är ansluten till Varberg Energi och net@seaside. Det finns ett kollektivt gruppavtal men varje bostadsrättshavare tecknar själv sitt abonnemang.
På gården finns gemensamma gräsytor med sittplatser och plats för odlingslådor. Här finns också ett orangeri för trevliga sammankomster för föreningens medlemmar.
Till varje lägenhet finns ett tillhörande förråd. Här finns också plats för cykelparkering.
Ovanstående uppgifter är inhämtade av berörd förening. Observera att dessa uppgifter kan ändras eller bli felaktiga och intressenter uppmanas därför att själva kontrollera uppgifterna med bostadsrättsföreningen om det är av särskild vikt för den enskilde.
Årsredovisning och stadgar finns att ta del av på vår hemsida bjurfors.se/varberg.
På attraktiva Söder har du nära till hav och centrum. Här finns blandad bebyggelse, fina villaområden och trivsamma bostadsrättsföreningar. I närområdet finns Hästhagaberget med fina promenadstråk genom böljande fårhagar och vacker natur samt utsikt mot Subbe fyr i söder och Varbergs fästning i norr. Var du än bor på Söder kan du promenera till Strandpromenaden för ett morgonbad eller en power walk längs havet. Till torget, mittpunkten i centrum, och dess handel onsdagar och lördagar är det bara några minuter på cykeln. I centrum finns det gott om fina butiker, klädkedjor, restauranger och allmän handel.
Från Söder är det gång- och cykelavstånd till det mesta i staden. Bussförbindelser är goda och inne i stan finns en större bussterminal som kan ta dig till stadens utkanter. Här finns också tågcentralen och till Göteborg tar det inte mer än 35 minuter och Falkenberg 15 minuter. Vill du pendla med bil tar det cirka 10 minuter ut till motorvägen och härifrån är det inte mer än 45 minuter till Göteborg.
På Söder finns både vårdcentral, tandläkare och BVC. Här finns ett antal mindre närbutiker men även närhet till de större matkedjorna. Här finns även flera förskolor och ett antal skolor, både för de mindre och större barnen. På Söder finns även ett trevligt hotell med restaurang. Här kan du under sommartid njuta av levande musik och en drink på hotellets bakgård eller sitta under parasollet och njuta av en bit mat. Hotellet är även känt för sina romprovningar och har ett mindre spa i de nedre delarna av hotellet.
För den som tycker om att motionera finns åtskilliga möjligheter kring Söder. Alldeles i närheten, i Påskbergsskogen, finns ett elljusspår för den som antingen vill ta en behaglig promenad eller en stärkande löptur. För den som intresserar sig för andra sportaktiviteter finns Påskbergsvallens fotbollsanläggning i närheten. Här tränar och spelar Varbergs BOIS och GIF och här finns även friidrottsföreningens träningsarena. Under sommartid finns även Simstadion, en utomhusarena med både 50-metersbassäng och lekbassänger för de mindre.
Köpa, sälja eller värdera bostad i Söder? Kontakta våra mäklare i Varberg. Passa också på att anmäla dig till vår kostnadsfria söktjänst Boagenten som hjälper dig att hitta ditt drömboende.
Kontakta mäklaren om du behöver hjälp att ta fram en boendekalkyl.
När du köper din bostad genom Bjurfors kan du ansöka om bolån till en förmånlig ränta hos vår samarbetspartner SEB.
Ansvarig mäklare