-
Köpa
Köpa -
Sälja
Sälja - Hitta bostad
- Skapa bevakning
- Hitta mäklare
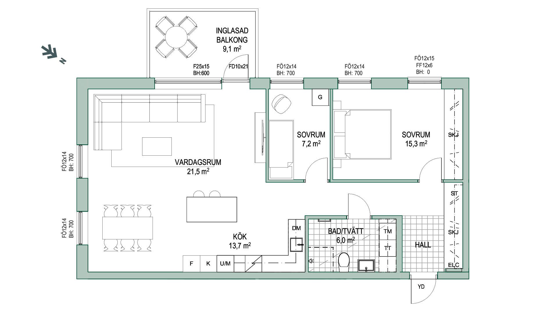
Elegant trea med inglasad balkong i kvällssol
Varberg
*Inkl. värme
**Föreningens
Ett stenkast från strandpromenaden, med havsbrisen runt hörnet och mysiga restauranger inom räckhåll bygger Derome Brf Stormgatan.
Denna eleganta trea på andra våningen erbjuder en luftig och social planlösning mellan kök och vardagsrum, två välplacerade sovrum samt en trivsam inglasad balkong i kvällssol där du kan njuta av ljumma sommarkvällar.
När du kliver in i hallen möts du av gott om förvaringsmöjligheter i den rymliga skjutdörrsgarderoben. Vidare in i passagen ligger de två generösa sovrummen samt det helkaklade badrummet, utrustat med både tvättmaskin och torktumlare. Det sandfärgade vinkelköket skapar tillsammans med vardagsrummet en öppen och social yta där familj och vänner kan samlas efter en dag vid havet. Genom de generösa fönstren flödar ljuset in och lyfter fram det eleganta enstavsparkettgolvet som skänker rummet en känsla av lyx. Från vardagsrummet tar du dig ut till den stora inglasade balkongen där solnedgången står för underhållningen under fina kvällar.
I den här lägenheten finns en alternativ planlösning där du kan välja att ta bort ett sovrum och göra lägenheten till en stor tvåa istället.
Den gemensamma innergården med utekök, odlingslådor, orangeri och flera trevliga sittplatser blir en naturlig samlingsplats där du kan umgås med grannarna och njuta av den trivsamma miljön.
Bilen parkerar du tryggt och säkert i garaget. Har du elbil så kan du välja elbilsladdning som tillval. I garaget finns även ett förråd som tillhör bostaden.
På Stormgatan bor du på cykelavstånd till allt det bästa Varberg har att erbjuda. Sommartid lockar strandpromenadens populära uteserveringar, där du kan njuta av mat, dryck och fantastisk atmosfär vid havet. En kort promenad bort finns centrum med torget och mysiga butiker.
Välkommen hem till din plats vid havet.



*Föreningens
Inkl. värme
Eget val av Tv-utbud
Öppen fiber från Varberg Energi. Kollektivt gruppavtal för bredband
Bostadsrättens indirekta nettoskuldsättning ges i separat information inför upplåtelseavtal
Avgifterna för kall- och varmvatten samt hushållsel är schablonberäknade och debiteras efter verklig förbrukning i efterhand.
*Betalas av köpare
Ett flerbostadshus med 4 våningsplan och underliggande källare samt ett orangeri. Huset innehåller 23 lägenheter. Källaren innehåller förråd, teknikrum, garage samt cykelparkeringar.
Under entreprenadtiden kommer fastigheten vara försäkrad genom entreprenören, vid slutbesiktning kommer de vara fullvärdesförsäkrade.
Parkeringsgarage på källarplan med 23 parkeringsplatser, varav 8 med ladduttag för elbil.
Hyra garageplats: 750 kr/månad.
Hyra garageplats med ladduttag för elbil: 950 kr/mån. Kostnad för elförbrukning tillkommer.
Föreningen har fiber och är ansluten till Varberg Energi och net@seaside. Det finns ett kollektivt gruppavtal men varje bostadsrättshavare tecknar själv sitt abonnemang.
På gården finns gemensamma gräsytor med sittplatser och plats för odlingslådor. Här finns också ett orangeri för trevliga sammankomster för föreningens medlemmar.
Till varje lägenhet finns ett tillhörande förråd. Här finns också plats för cykelparkering.
Ovanstående uppgifter är inhämtade av berörd förening. Observera att dessa uppgifter kan ändras eller bli felaktiga och intressenter uppmanas därför att själva kontrollera uppgifterna med bostadsrättsföreningen om det är av särskild vikt för den enskilde.
Årsredovisning och stadgar finns att ta del av på vår hemsida bjurfors.se/varberg.
ALLMÄNT OM OMRÅDET
Varberg är en spännande kuststad med allt på behändigt avstånd. Närheten till havet är påtaglig och den vackra strandpromenaden ligger bara några få minuter från centrum. Det är en inspirerande och historisk plats med något för alla. På sommaren finns flera härliga stränder att välja mellan, här bjuds på både mjuk och skön sand, klippor och berghällar. Apelviken som är den största stranden är berömd för sin fina surfing och strandnära restauranger.
Inåt landet öppnar sig den vackra och sagolika bokskogen i Åkulla som anses vara ett av Sveriges främsta bokskogsområden. Inom området finns ett tjugotal sjöar och tolv naturreservat.
Förutom den fantastiska naturen erbjuder Varberg även kultur, shopping, nöjen och ett aktivt föreningsliv. För den som tycker om att motionera finns åtskilliga möjligheter. Det finns bland annat en motionsslinga längs havet med fantastisk utsikt. För den som hellre tränar inomhus finns även ett stort utbud av träningsanläggningar, både för gym-och idrottsaktiviteter.
NÄRSERVICE
I centrala Varberg finns flera förskolor, F-9-skolor samt gymnasieskolor i närheten.
KOMMUNIKATION
Varberg har det perfekta läget med pendlingsavstånd till såväl Kungsbacka, Göteborg och Borås i norr samt Falkenberg och Halmstad i söder.
Vill du köpa, sälja eller värdera bostad i Varbergs kommun? Kontakta våra mäklare i Varberg. Passa också på att anmäla dig till vår kostnadsfria söktjänst Boagenten som hjälper dig att hitta ditt drömboende.
Kontakta mäklaren om du behöver hjälp att ta fram en boendekalkyl.
När du köper din bostad genom Bjurfors kan du ansöka om bolån till en förmånlig ränta hos vår samarbetspartner SEB.
Ansvarig mäklare
Extra kontaktperson