-
Köpa
Köpa -
Sälja
Sälja - Hitta bostad
- Skapa bevakning
- Hitta mäklare
Sekelskiftesvilla med drömläge!
Nälden, Krokom
*Areauppgifter enligt taxeringsinformationen
På Förhand ligger bostäder som av olika anledningar inte är ute till försäljning just nu men som kan komma att säljas om förutsättningarna är rätt.
Kakelugnar, burspråk , sjöutsikt, generös takhöjd och härliga trägolv. Välkomna till nummer ett på Karl Johans väg - Ett hem med karaktär och känsla!
Välkommen till ett hem som verkligen har allt – en otroligt rymlig sekelskiftesvilla med historia, karaktär, charm och ett läge som är svårslaget. Här har vid sekelskiftet Dr D.H Vistrand uppfört denna ståndsmässiga villa med sjöutsikt, lugnet runt knuten och ändå nära till allt du behöver. Villan är belägen i hjärtat av Nälden, med bästa läget i byn – ett område där både barnfamiljer och naturälskare trivs.
Redan vid första steget in möts du av generös takhöjd, vackra trägolv och tidstypiska detaljer som djupa fönsternischer, dubbeldörrar, burspråk och en inbjudande glasveranda. Här finns flera kakelugnar och en vedspis som skapar både värme och atmosfär – perfekt för mysiga kvällar året om.
Den representativa villan är fördelad på två våningar samt ett vindsutrymme med potential, vilket ger gott om plats för både familjeliv, gäster och hobbyverksamhet. De stora rummen bjuder in till både vardagsliv och fest, och planlösningen gör det enkelt att skapa sociala ytor eller avskilda hörn för lugn och ro.
Utemiljön är lika imponerande som insidan. Här finns en pool för varma sommardagar, ett gårdshus, flera garage och en ladugård med många användningsområden och dessutom en tomt som ger både frihet och avskildhet. Oavsett om ni drömmer om att skaffa höns, odla, leka, bada eller bara njuta av utsikten mot sjön – här finner ni plats för allt.
Läget i Nälden är perfekt för dig som vill ha det bästa av två världar. Ni bor här lugnt och naturnära, men har ändå nära till skolor, service och goda kommunikationer mot både Östersund och Åre, där Östersund nås med tåg på så kort tid som 20 minuter. Här finns förskola, skola och ett aktivt föreningsliv som gör det enkelt att känna sig hemma.
Detta är ett boende som erbjuder både historia och framtid – ett hem att växa i, vårda och älska. Oavsett om ni söker en familjevilla med plats för allt, ett representativt boende med karaktär eller bara vill leva med sjöutsikt och sekelskiftescharm, så är detta ett unikt tillfälle just för er.
Välkomna med er intresseanmälan redan idag – ert drömhem i Nälden väntar!
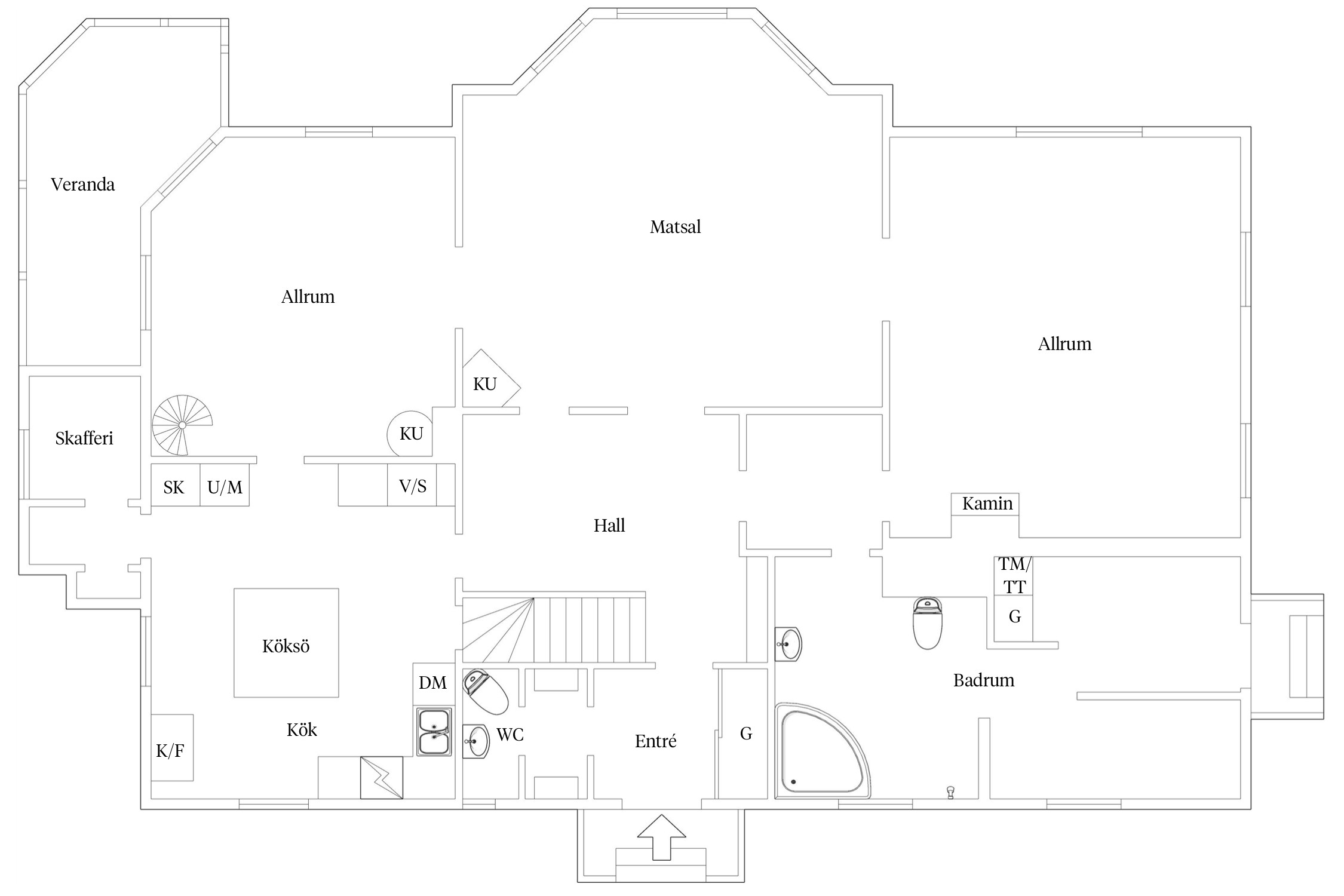
ENTRÉ - ENTRÉPLAN
Välkomnande entré med klinkergolv med golvvärme. Tapetserade väggar. Skjutdörrsgarderob för praktisk förvaring. Inre hall som leder in mot Wc-rum. Även här finner ni utrymme för praktisk klädavhängning. Vidare in i hjärtat av huset med rymligt möblerbart allrum med öppet mot övre plan för härlig ljus och rymd.
WC-RUM - ENTRÉPLAN
Klinkergolv med golvvärme och kaklade väggar. Utrustat med WC, handfatskommod och spegel.
KÖK - ENTRÉPLAN
Härligt lantkök i vitt med bänkskiva i laminat och grått samt vitt kakel. Här är vedspisen i centrum och köksön skapar härlig bänkyta för matlagning och sitt platser. Walk-in skafferiet är väldigt väl tilltaget och hörnläget ger härligt ljusinsläpp. Sittbänk under fönstret passar perfekt in i den härligt lantliga känslan. Ytskikten är ljusa och matchas perfekt av det mörkt träfärgade golvet med golvvärme. Maskinellt är köket utrustat med induktionshäll, spisfläkt, varmluftsugn, mikrovågsugn, diskmaskin samt lyxig side-by-side kyl/frys med ismaskin och kallvatten.
ALLRUM - ENTRÉPLAN
Rymligt allrum med underbart trägolv och kakelugnen i centrum. Här finns gott om utrymme för sällskapsmöbler. Målade väggar och spiraltrappa till övre plan. Härifrån når ni även den inglasade verandan.
MATSAL - ENTRÉPLAN
Via härliga dubbeldörrar välkomnas ni in i matsalen som rymmer det stora matsalsbordet. Här är burspråket med sin sjöutsikt är i centrum. Även här finner ni ett gediget trägolv med känsla och tapetserade väggar.
ALLRUM - ENTRÉPLAN
Här är den öppna spisen i centrum och värmer gott. Även här finns gott om utrymme för sällskap. Trägolv och tapetserade väggar.
BADRUM/TVÄTTSTUGA - ENTRÉPLAN
Helkaklat badrum med golvvärme. Ljust kakel och klinker. Badrummet är välutrustat med både wc, dusch, bubbelbadkar och bastu. Här är även utrustat med WC, handfat och spotlights i taket. Badrummet och tvättstugan nås även via groventré utifrån. Tvättstugedelen är utrustad med tvättmaskin och torktumlare
ÖVRE PLAN
Trappan till övre plan välkomnar er till ett öppet möblerbart allrum med trägolv varifrån de flesta av övre planets rum nås.
SOVRUM - ÖVRE PLAN
Sovrum med alkov i snedtak. Laminatgolv och målade väggar. Vid detta rum finns även ett tvättrum med handfat.
SOVRUM - ÖVRE PLAN
Sovrum som nyttjas som kontor, med kattvind intill. Laminatgolv och ljusa väggar.
ALLRUM - ÖVRE PLAN
Alrum med kakelugn, trägolv och målade väggar. Utgång till inglasad balkong.
SOVRUM - ÖVRE PLAN
Sovrum där spiraltrappan från entréplanet kommer upp. Laminatgolv och tapetserade väggar. Skjutdörrsgarderob samt rymlig walk-in closet.
WC-RUM - ÖVRE PLAN
Rum med wc och handfat. Klinkergolv och kaklade väggar.
INREDNINGSBAR KALLVIND
Från övre planet nås även en inredningsbar kallvind via rejäl trappa. Här är ett sovrum inrett och vidare finns stora utrymmen att inreda vidare efter behov.



Smedsåsen 1:36, 1:54 och 1:83
*Areauppgifter enligt taxeringsinformationen
Luft/vattenvärmepump inkopplad på vattenburet system till huset.
Pelletspanna inkopplad till både hus och pool.
Solceller på taket.
Kakelugnen i matsalen, vedspisen i köket samt öppen spis med insats i vardagsrummet är godkända för eldniing och används av nuvarande ägare.
2025 - Installerat avfuktare i krypgrund.
2024 - Ny varmvattenberedare.
2019 - Ny trekammarbrunn, nytt värmesystem
2012 - Renoverat kök.
2000 - Renoverat badrum.
Gårdshus med gästhusdel, pannrum samt trädgårdsförråd och pelletsförråd.
Två garagebyggnader med totalt 3 garageportar.
Äldre ladugård med sommarbostadsdel. Enbart använt som förrådsutrymme av nuvarande ägare.
Hundgård med hundhus.
El indraget i samtliga byggnader.
Altan med pool som värms upp via pelletspannan-
Inglasad veranda.
Enskilt vatten, Enskilt avlopp.
(Möjlighet att ansluta till kommunalt vatten och avlopp finns)
Försäljningen avser tre fastigheter, Krokom Smedsåsen 1:36, 1:54 och 1:83.
Rymlig tomt med härliga odlingsmöjligheter, med i dagsläget i huvudsak lättskött gräsmatta.
I gådshuset finns en fd sommarbostad med vedspis och kakelugn som ej används i dagsläget. Här finns även pannrum, pelletsförråd och förråd för trädgårdsredskap.
Bostaden och gårdshuset står på Smedsåsen 1:36.
Ladugården har långt tillbaka i tiden nyttjats för djurhållning.
På Smedsåsen 1:83 står båda garagen samt ladugården.
Två äldre garagebyggnader med totalt tre garageportar.
El indraget och en elbilsladdare installerad.
Byggnadsplan (1976-05-11)
Gemensamhetsanläggning: Krokom smedsåsen ga:7 ändamål: Vägar
Last: Avtalsservitut Elledning, D202200315169:1.1
TV via Fiber
Bredband via Fiber.
Avtalsservitut D-2022-00315169:1
I kostnaden för uppvärmning ingår även hushållsel.
Sotning av de eldstäder som används samt pelletspannan har utförts varje år.
Kostnaden för Väg/samfällighet avser kostnad till Näldens vägförening.
Slamtömning har utförts en gång per år och med extra kostnad för förlängd slang.
Smedsåsen 1:36 och 1:54 är samtaxerade men ej 1:83 som är taxerad som småhusenhet, tomtmark, typkod 210
Det finns 9 st pantbrev uttagna om sammanlagt 2 289 000 kr
Nälden är en industri- och serviceort som ligger 12 km väster om centralorten Krokom. I Nälden finns ICA-affär, matställen, serviceboende för äldre, folktandvård, låg- och mellanstadieskola, ishall, idrottsförening, buss och järnvägsstation. Nälden ligger i en dalgång runt Näldsjöns utlopp. Genom samhället flyter Faxån som förbinder Näldsjön och Alsensjön.
Vill du köpa, sälja eller värdera bostad i Krokom - Nälden? Kontakta våra mäklare i Östersund! Passa också på att anmäla dig till vår kostnadsfria söktjänst Boagenten som hjälper dig att hitta ditt drömboende.
Kontakta mäklaren om du behöver hjälp att ta fram en boendekalkyl.
När du köper din bostad genom Bjurfors kan du ansöka om bolån till en förmånlig ränta hos våra banksamarbetspartners Söderberg & Partners och SEB.
Ansvarig mäklare