-
Köpa
Köpa -
Sälja
Sälja - Hitta bostad
- Skapa bevakning
- Hitta mäklare
Modern familjevilla i attraktiva Odensala!
Odensala, Östersund
*Areauppgifter enligt taxeringsinformationen
Bokad förhandsvisning. Anmäl dig på bjurfors.se eller ring Bjurfors 072-529 93 04
På Förhand ligger bostäder som av olika anledningar inte är ute till försäljning just nu men som kan komma att säljas om förutsättningarna är rätt.
Stor och luftig villa i Odensala fördelat på två plan med stora sociala ytor. Välkommen hem!
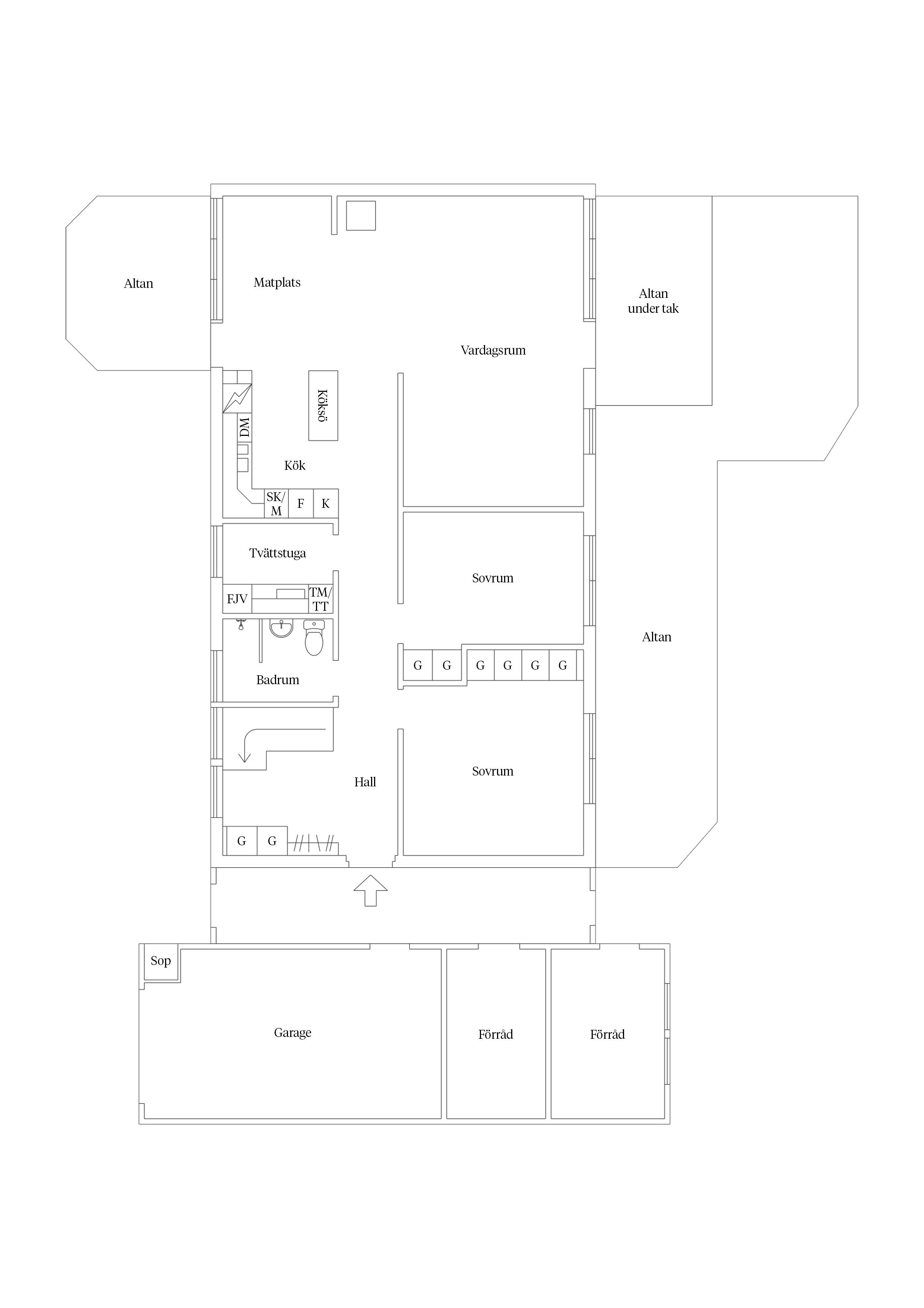
Välkommen till Körsbärsvägen och detta rymliga familjehus om 162 kvm, beläget i populära Odensala - ett område som länge varit förstahandsvalet för barnfamiljer tack vare närhet till skolor, förskolor, service och fina grönområden.
Här erbjuds ett praktiskt och lättskött boende med genomtänkt planlösning, generösa sociala ytor och gott om plats för hela familjen. Köket och vardagsrummet ligger i öppen och luftig planlösning med stora fönsterpartier som släpper in rikligt med dagsljus. Den värmande kaminen skapar extra trivsel under årets kallare månader. Från vardagsrummet och köket nås husets båda altaner som bjuder in till härliga middagar, umgänge och långa sommarkvällar i kvällssolen. Baksidan kompletteras av en mindre gräsmatta, perfekt för lek, odling eller avkoppling.
Bostaden rymmer flera sovrum, flexibla allrum och ett påkostat badrum från 2022 som ger en härlig känsla av vardagslyx. Här finns även praktisk tvättstuga, gott om förvaringsmöjligheter samt garage med tillhörande förråd.
Huset är energieffektivt med solceller på taket, fjärrvärme, 3-glasfönster och installerad elbilsladdare - ett modernt boende med bra driftskostnader och framtiden i åtanke.
Läget är svårslaget. Inom bekvämt avstånd finns skola, förskola, mataffär, gym, hälsocentral och goda kommunikationer. I närområdet erbjuds elljusspår, utegym, padelhall och Sportfältet. Naturen och badmöjligheter vid Storsjön ligger nära, liksom Lillänge köpcentrum med ett brett serviceutbud. Här bor du i ett tryggt och familjevänligt kvarter där vardagen flyter smidigt och allt finns inom räckhåll.
Ett komplett hem för dig som söker ett praktiskt, modernt och energieffektivt boende i ett av områdets mest eftertraktade lägen.
Hall
Entrén under tak leder till ytterdörren och en ljus, luftig hall som sträcker sig genom hela huset. Här finns hatthylla, plats för skoförvaring samt tre garderober och möjlighet till ytterligare förvaring. Här har man även trappa till övre plan. Ljusa väggar med två tapetserade fondväggar i blommigt mönster. På golvet liggre ett stilrent ljust vinylklickgolv som löper genom hela nedre plan.
Sovrum
Stort och rofyllt sovrum med grå väggar och tapetserad fondvägg. Förvaring i fem garderober med praktiskt PAX garderobssystem från IKEA. Takhängda skenor för gardiner ger en härlig känsla. Plats för stor säng med tillhörande möblemang.
Badrum
Badrum med svart klinkergolv med golvvärme. Utrustat med WC, handfat med kommod, spegelskåp, dusch med glasvägg och en handdukstork. På väggarna sitter en ljus våtrumsmatta. Gjort 2015.
Tvättstuga
Praktisk tvättstuga med tvättmaskin, torktumlare, fjärrvärmeanläggning, tvättho samt förvaring i skåp. Svart klinkergolv och vita väggar. Renoverad 2014.
Sovrum
Mindre sovrum lämpligt som barnrum eller gästrum. Två garderober. Vita väggar och ljus mönstrad fondtapet. Plats för säng, skrivbord och övrigt möblemang. Fint ljusinsläpp
Kök
Stort och luftigt kök som är öppet mot matplats och vardagsrum. Matplatsen rymmer 6-8 personer. Köket från HTH är praktiskt utrustat med induktionshäll, fläkt, integrerad ugn och mikro, diskmaskin, diskho samt fullstor kyl och frys i rostfritt. Praktisk köksö ger extra arbetsyta och förvaring. Stora fönsterpartier ger ett härligt ljusinsläpp. Här finns även utgång till altan på framsidan som rymmer matgrupp och härliga middagar i kvällssolen.
Vardagsrum
Ljust och inbjudande vardagsrum med öppen planlösning mot kök, där tidigare vägg mot mindre sovrum tagits bort för att skapa extra rymd och en luftig känsla. Här finns gott om plats för stor soffgrupp, TV-möbler, förvaring och övrigt möblemang efter behov. Den mysiga kaminen bidrar med både värme och trivselfaktor. Ljusa väggar och generösa ytor skapar en behaglig atmosfär. Från vardagsrummet nås den stora altanen som delvis är under tak, perfekt för sociala ytor, loungemöbler eller utekök. Vidare finns en liten gräsmatta på baksidan som ger extra yta för lek, odling eller avkoppling.
Allrum
En trappa upp möts man av ett stort och flexibelt utrymme som kan nyttjas som extra vardagsrum, träningsyta, kontor eller lekrum. Möjlighet finns att bygga om till ytterligare sovrum vid behov. Här finns även utgång till garagetaket som, efter önskemål, kan byggas om till en mindre takterrass. Ljusa väggar och laminatgolv. En bit in finns även ett stort förvaringsutrymme.
Badrum
Ett av husets absoluta guldkorn är detta förstklassiga badrum som smakfullt renoverades 2022. Grå, stilrena klinkerplattor pryder golv, väggar och snedtak. Golvvärme via fjärrvärme för extra komfort. Här finns ett ovalt badkar för avkoppling och vardagslyx samt ett stilrent svart tvättställ med rymlig kommod för förvaring. Genomtänkta svarta detaljer i form av blandare, dusch, hängare och handdukstork skapar en modern helhet. Upplyst spegel, spotar och takfönster ger ett härligt ljus.
Sovrum
Mycket stort sovrum med möjlighet att delas av till två mindre rum vid behov. Rummet rymmer idag dubbelsäng, soffa, tv-bänk, ytterligare en säng och skrivbord. Blå väggar, fönster i fönsterkupa samt plastmatta på golv.
Garage och förråd
Garage med plats för en bil samt förvaring. Här finns även solcellscentralen. I anslutning till garaget finns två separata förrådsutrymmen med gott om plats för exempelvis ved, fritidsprylar och övrig förvaring. På utsidan av garaget finns installerad elbilsladdare.



Bondbönan 3
*Areauppgifter enligt taxeringsinformationen
1992
Trevlig altan på framsida med dag- och kvällssol, stor altan på baksida som delvis ligger under tak.
Kommunalt vatten, Kommunalt avlopp.
Vidbyggt garage med plats för 1 bil, uppfart med plats för 2 bilar. Elbilsladdare finns
Stadsplan (1973-08-03)
TV via Fiber. IP-only/GlobalConnect
Fiberanslutning genom IP-only/GlobalConnect
Driftkostnader och elförbrukning är inhämtade från säljaren och bör endast ses som en uppskattning. Kostnaden kan variera och baseras på förbrukning och avtal.
Under våren
Det finns 18 st pantbrev uttagna om sammanlagt 3 239 600 kr
Odensala är det perfekta valet för dig som söker ett tryggt, aktivt och bekvämt boende – särskilt för barnfamiljer. Här finns flera förskolor och skolor, vilket gör vardagen smidig och trygg. Naturen är alltid nära, och området erbjuder fantastiska möjligheter till ett aktivt liv med elljusspår, padelhall, utegym och det populära Sportfältet – ett nav för idrott och rörelse.
I centrum av Odensala hittar du en välsorterad ICA Supermarket, pizzeria, gym och cykelaffär – allt du behöver för en bekväm vardag. Bara en kort promenad bort ligger Lillänge köpcentrum med ett brett utbud av butiker för hela familjen.
Här bor du med närhet till vackra Storsjön, där en omtyckt badstrand väntar för lata sommardagar och härliga dopp. Oavsett årstid är Odensala ett område där du har nära till både natur, service och stadens puls.
Köpa, sälja eller värdera bostad i Odensala? Kontakta våra mäklare i Östersund! Passa också på att anmäla dig till vår kostnadsfria söktjänst Boagenten som hjälper dig att hitta ditt drömboende.
Kontakta mäklaren om du behöver hjälp att ta fram en boendekalkyl.
När du köper din bostad genom Bjurfors kan du ansöka om bolån till en förmånlig ränta hos vår samarbetspartner SEB.
Bokad förhandsvisning. Anmäl dig på bjurfors.se eller ring Bjurfors 072-529 93 04
Ansvarig mäklare