Hoppa till innehåll
Vy från huset

På första parkett!

  • Besiktigad
  • På förhand
  • 124 + 124 kvm
  • 6 rum

Habo - Sjogarp, Habo

Soluppgången 4

Antal rum:
6
Boarea / Biarea:
124 kvm / 124 kvm*
Tomtarea:
1 948 kvm
Typ:
Friliggande villa

*Areauppgifter enligt taxeringsinformationen

Vill du veta mer om bostaden?

På Förhand – Vad är det?

På Förhand ligger bostäder som av olika anledningar inte är ute till försäljning just nu men som kan komma att säljas om förutsättningarna är rätt.

Läs mer om På Förhand

Ansvarig mäklare

Christian Österberg

Fastighetsmäklare / Franchisetagare

Bjurfors Jönköping
Christian Österberg

BOKA EN KOSTNADSFRI VÄRDERING

På första parkett!

Snart till salu! Gatans namn talar för sig själv. Ett läge utöver det vanliga dessutom med en planlösning som tilltalar och uterum som förför.

Beskrivning

Mer information, bilder och besiktningsprotokoll kommer inom kort.

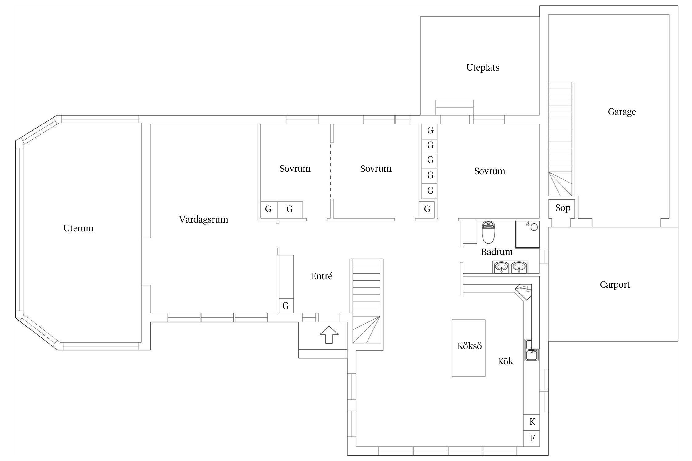
Planritning

Planlösning
Planlösning

Fakta om bostaden

Fastighetsbeteckning

Sjogarp 1:8

Information

Typ
Friliggande villa
Upplåtelseform
Friköpt
Rum
6
Antal sovrum
3
Max antal sovrum
4
Boarea
124 kvm*
Biarea
124 kvm
Tomtarea
1 948 kvm

*Areauppgifter enligt taxeringsinformationen

Byggnadssätt

Byggnadstyp
1 plan med källare
Byggår
1972
Fasad
Tegel och trä
Grund
Källare & krypgrund (utbyggnaden)
Stomme
Trä
Bjälklag
Trä
Uppvärmning
Jordvärmepump
Takbeklädnad
Betongpannor
Ventilation
Självdrag, mekanisk ventilation i badrummen.
Fönster
Treglas

Vinden nås från Llucka ovan carporten.

Ombyggnad, Renoveringar

Fastigheten har löpande förbättrats och utvecklats genom åren. År 2000 genomfördes dränering, följt av uppförandet av uterum 2004. Under 2008 gjordes en större satsning med utbyggnad av kök, nytt tak samt uppförande av carport.

Källarplanet har moderniserats i två steg där badrum och golvvärme installerades 2019, följt av en ombyggnad av delar av källaren 2025. Även entréplanet har uppdaterats med ett nytt badrum 2020.

På senare år har fastigheten kompletterats med ny jordvärmepump från Nibe (2024) samt installation av elbilsladdare samma år.

Övriga byggnader/utrymmen

Ett litet förråd på tomten.

Besiktning

Besiktigad
Ja

Vatten/Avlopp

Kommunalt vatten, Kommunalt avlopp.

Parkering

Till huset hör ett garage (nås även från källaren) samt en carport med möjlighet till laddning av elbil.

Planbestämmelser

Detaljplan (2002-02-28)

Rättigheter/gemensamhetsanläggningar

Förmån: Officialservitut Vattentäkt och vattenledning, 16-HAJ-1630.2

TV/bredband

Fastigheten är ansluten till fiber via Habo energi

Ekonomi

Taxeringsvärde
3 719 000 kr
Byggnadsvärde
2 235 000 kr
Fastställt
2024
Kod
220, Småhusenhet, bebyggd
Fastighetsskatt/Avgift
10 425 kr

Driftskostnad (per år)

Personer i hushållet
4
Hushållsström
30 119 kr
Försäkring
7 302 kr
Renhållning
3 210 kr
Vatten/Avlopp
12 357 kr
Summa
52 988 kr
Elförbrukning
14 168 kWh/år

Driftkostnader och elförbrukning är inhämtade från säljaren och bör endast ses som en uppskattning. Kostnaden kan variera och baseras på förbrukning och avtal.

Energideklaration

Utförd
Ja
Energiklass
D
Energiförbrukning per kvm och år
58
Energideklarationsdatum
2024-07-16

Pantbrev

Det finns 12 st pantbrev uttagna om sammanlagt 3 450 000 kr

Om Jönköping

Vill du köpa, sälja eller värdera bostad i Jönköping? Kontakta våra mäklare i Jönköping! Passa också på att anmäla dig till vår kostnadsfria söktjänst Boagenten som hjälper dig att hitta ditt drömboende i Jönköping.

Karta

Boendekalkyl

Kontakta mäklaren om du behöver hjälp att ta fram en boendekalkyl.

När du köper din bostad genom Bjurfors kan du ansöka om bolån till en förmånlig ränta hos våra banksamarbetspartners Söderberg & Partners och SEB.

Ansök om lånelöfte hos Söderberg & Partners

Ansök om lånelöfte hos SEB

Håll koll på detta objekt

Vill du veta mer om bostaden?

Kampanjbild Boneo