-
Köpa
Köpa -
Sälja
Sälja - Hitta bostad
- Skapa bevakning
- Hitta mäklare
Lindsdal, Kalmar
*Areauppgifter enligt taxeringsinformationen
På Förhand ligger bostäder som av olika anledningar inte är ute till försäljning just nu men som kan komma att säljas om förutsättningarna är rätt.
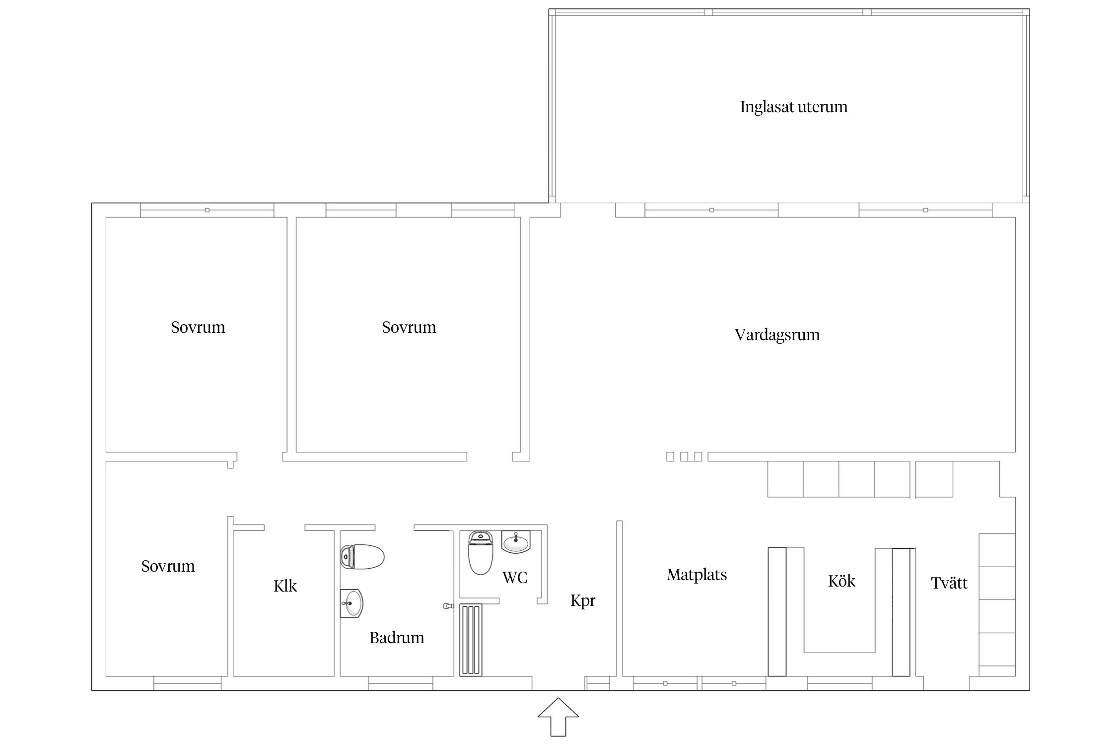
I hjärtat av barnvänliga Lindsdal saluförs inom kort detta välplanerade och hemtrevliga enplanshus på Saltkråkevägen 5. Ett modernt och inflyttningsklart hem som under senare tid genomgått omfattande renoveringar och erbjuder en genomgående fräsch helhetskänsla.
Under 2024/2025 har huset uppdaterats med nytt kök, nya golv och ytskikt samt ommålade tak. Båda toaletter har fräschats upp med nya porslin, och den separat belägna tvättstugan har nyligen renoverats med moderna lösningar. Samtliga fönster är utbytta till treglas, ett nytt fjärrvärmeaggregat är installerat och ventilationen har förbättrats genom en frånluftsfläkt på vinden.
Vardagsrummet är generöst med fint ljusinsläpp och en ny murad, egendesignad spis med Contura-insats som skapar både värme och trivsel. Härifrån nås det inglasade uterummet som förlänger säsongen och blir en naturlig plats för umgänge. Köket är stilrent och funktionellt med gott om arbetsytor och plats för matbord.I den privata delen av huset finns tre rofyllt belägna sovrum, varav ett med inbyggda garderober, samt ett badrum, gäst-wc och klädkammare. Till huset hör även garage och en nyuppförd friggebod som ger extra förvaringsmöjligheter. Trädgården erbjuder ett insynsskyddat baksideläge med gräsmatta och lummig växtlighet – perfekt för både lek och avkoppling.
Här bor ni i ett tryggt och omtyckt område med närhet till skolor, förskolor, service, grönområden och goda kommunikationer in till centrum.



Skrållan 7
*Areauppgifter enligt taxeringsinformationen
- nytt fjärrvärmeagregat
- allt nytt i tvätten
- alla vitvaror
- frånluftsfläkt på vinden installerad av Avent
- alla fönster bytta till treglas
- ny ytterdörr till tvättstugeentré
- allt nytt i köket
- alla tak ommålade
- alla element ommålade samt nya termostater med vred
- båda toaletter med nya ytskikt och porslin
- inbyggda garderober i sovrummet
- alla ytskikt och golv
- ny murad egendesignad spis med Conturainsats från Elda
- en ny friggebod uppförd på tomten
På tomten finns också ett garage samt en lekstuga.
Kommunalt vatten, Kommunalt avlopp.
Lummig tomt med insynsskyddat läge.
Garageuppfart följt av garage.
Stadsplan (1973-08-28)
Fiber
Det finns 4 st pantbrev uttagna om sammanlagt 1 955 000 kr
Det familjevänliga bostadsområdet Lindsdal är känt för sin trygga och lugna miljö med trevlig gemenskap. Här finns både villor och lägenheter, ett perfekt utgångläge för båda stora som små. Här bor du i närheten till allt som vardagen behöver: förskolor/skolor, grönskande natur, en välsorterad livsmedelsbutik och annan service samt goda kommunikationer till centrum.
Köpa, sälja eller värdera bostad i Lindsdal? Kontakta våra mäklare i Kalmar! Passa också på att anmäla dig till vår kostnadsfria söktjänst Boagenten som hjälper dig att hitta ditt drömboende.
Kontakta mäklaren om du behöver hjälp att ta fram en boendekalkyl.
När du köper din bostad genom Bjurfors kan du ansöka om bolån till en förmånlig ränta hos våra banksamarbetspartners Söderberg & Partners och SEB.
Ansvarig mäklare